314 E Broadway, Monticello, NY, 12701 | $3,900,000

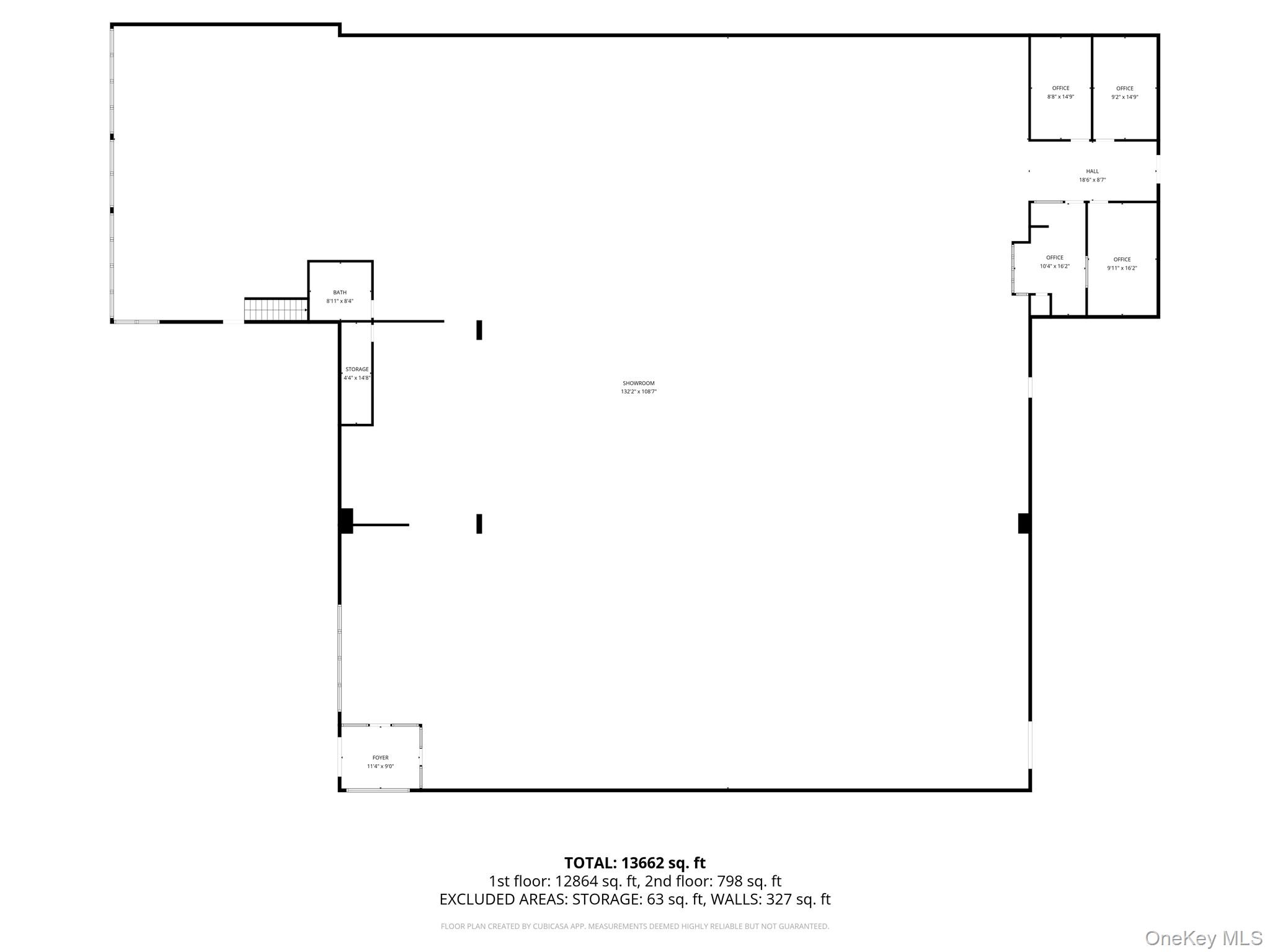
Prime commercial opportunity in the heart of Monticello! Majek Furniture, located at 314 East Broadway, offers a versatile and expansive property ideal for retail, warehouse, or mixed-use operations. The main 13, 000 sq ft showroom features impressive 12-foot ceilings, creating an open and inviting retail environment. Supporting the retail space are multiple functional areas including a 5, 000 sq ft warehouse, an additional 7, 200 sq ft warehouse, and 1, 200 sq ft of adjoining flex space, providing exceptional storage, distribution, or workspace flexibility. A newly constructed 60’ x 120’ x 14’6” warehouse (2023) with a poured concrete slab and three 12’ x 12’ commercial overhead doors adds significant value and operational capacity. Recent upgrades include a 2023 sprayed acrylic roof (10+ year lifespan), two furnaces (2012), and a new electric/propane combo air conditioning system, ensuring efficiency and comfort throughout the property. Security is enhanced with a PN alarm system installed in 2018. The property is equipped with 3-phase electric, municipal sewer and water, and offers excellent infrastructure for a variety of commercial uses. Interior features include five office spaces, a large conference room, and two half bathrooms, making it ideal for both administrative and operational needs. Decades long successful furniture business to be sold with property at the right price. Strategically located on East Broadway with strong visibility and accessibility, this property presents a rare opportunity to own a well-maintained, high-capacity commercial space in Sullivan County. Within 2 hours of NYC and 1. 5 miles from State Route 17.

Features

  • Property Type: Business
  • Construction: Aluminum Siding, Frame
  • Utilities: Cable Connected, Electricity Connected, Phone Connected, Propane, Sewer Connected, Water Connected
  • Heating: Electric, Propane
  • Cooling: Central Air
  • Acreage: 2.76
  • Est. Taxes: $39,031
  • MLS#: 986086
  • Days on Market: 1 day
  • Website: https://www.raveis.com
    /prop/986086/314ebroadway_monticello_ny?source=qrflyer
Listing information has been assembled from various sources of varying degrees of reliability. Any information critical to the buying decision should be independently verified.Listing courtesy of Land and Water Realty LLC   Phone: 845-807-2630

William Raveis Family of Services

Our family of companies partner in delivering quality services in a one-stop-shopping environment. Together, we integrate the most comprehensive real estate, mortgage and insurance services available to fulfill your specific real estate needs.

Customer Service

888.699.8876

Contact@raveis.com

Our family of companies offer our clients a new level of full-service real estate. We shall:

  • Market your home to realize a quick sale at the best possible price
  • Place up to 20+ photos of your home on our website, raveis.com
  • Provide frequent communication and tracking reports showing the Internet views your home received on raveis.com
  • Showcase your home on raveis.com with a larger and more prominent format
  • Give you the full resources and strength of William Raveis Real Estate, Mortgage & Insurance and our cutting-edge technology

To learn more about our credentials, visit raveis.com today.

Frank KolbSenior Vice President - Coaching & Strategic, William Raveis Mortgage, LLC

NMLS Mortgage Loan Originator ID 81725

203.980.8025

Frank.Kolb@raveis.com

Our Executive Mortgage Banker:

  • Is available to meet with you in our office, your home or office, evenings or weekends
  • Offers you pre-approval in minutes!
  • Provides a guaranteed closing date that meets your needs
  • Has access to hundreds of loan programs, all at competitive rates
  • Is in constant contact with a full processing, underwriting, and closing staff to ensure an efficient transaction

Ryan FortierInsurance Sales Director, William Raveis Insurance

516.739.7731

Ryan.Fortier@raveis.com

Our Insurance Division:

  • Will Provide a home insurance quote within 24 hours
  • Offers full-service coverage such as Homeowner's, Auto, Life, Renter's, Flood and Valuable Items
  • Partners with major insurance companies including Chubb, Kemper Unitrin, The Hartford, Progressive,
    Encompass, Travelers, Fireman's Fund, Middleoak Mutual, One Beacon and American Reliable

314 E Broadway, Monticello, NY, 12701

$3,900,000

Customer Service

William Raveis Real Estate

Phone: 888.699.8876

Contact@raveis.com

Frank Kolb

Senior Vice President - Coaching & Strategic

William Raveis Mortgage, LLC

Phone: 203.980.8025

Frank.Kolb@raveis.com

NMLS Mortgage Loan Originator ID 81725

5/6 (30 Yr)
Adjustable Rate Jumbo*
30 Year
Fixed-Rate Jumbo
15 Year
Fixed-Rate Jumbo
Loan Amount $3,120,000 $3,120,000 $3,120,000
Term 360 months 360 months 180 months
Initial Interest Rate** 5.250% 6.000% 5.750%
Interest Rate based on Index + Margin 8.125%
Annual Percentage Rate 6.069% 6.110% 5.932%
Monthly Tax Payment $3,253 $3,253 $3,253
H/O Insurance Payment $125 $125 $125
Initial Principal & Interest Pmt $17,229 $18,706 $25,909
Total Monthly Payment $20,607 $22,084 $29,287

* The Initial Interest Rate and Initial Principal & Interest Payment are fixed for the first and adjust every six months thereafter for the remainder of the loan term. The Interest Rate and annual percentage rate may increase after consummation. The Index for this product is the SOFR. The margin for this adjustable rate mortgage may vary with your unique credit history, and terms of your loan.

** Mortgage Rates are subject to change, loan amount and product restrictions and may not be available for your specific transaction at commitment or closing. Rates, and the margin for adjustable rate mortgages [if applicable], are subject to change without prior notice.

The rates and Annual Percentage Rate (APR) cited above may be only samples for the purpose of calculating payments and are based upon the following assumptions: minimum credit score of 740, 20% down payment (e.g. $20,000 down on a $100,000 purchase price), $1,950 in finance charges, and 30 days prepaid interest, 1 point, 30 day rate lock. The rates and APR will vary depending upon your unique credit history and the terms of your loan, e.g. the actual down payment percentages, points and fees for your transaction. Property taxes and homeowner's insurance are estimates and subject to change.