37 Secor Road, Ossining, NY, 10562 | $85,000

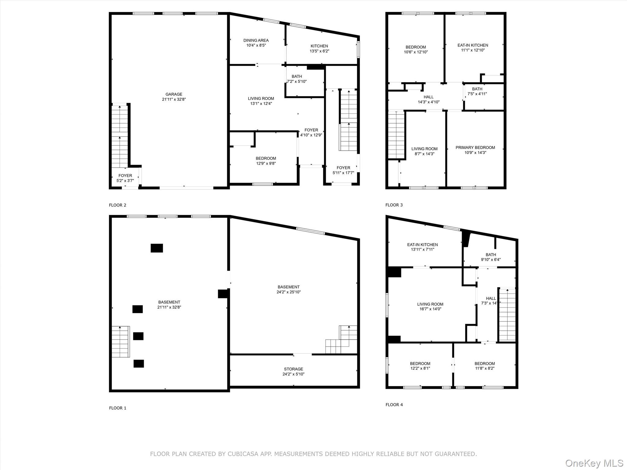
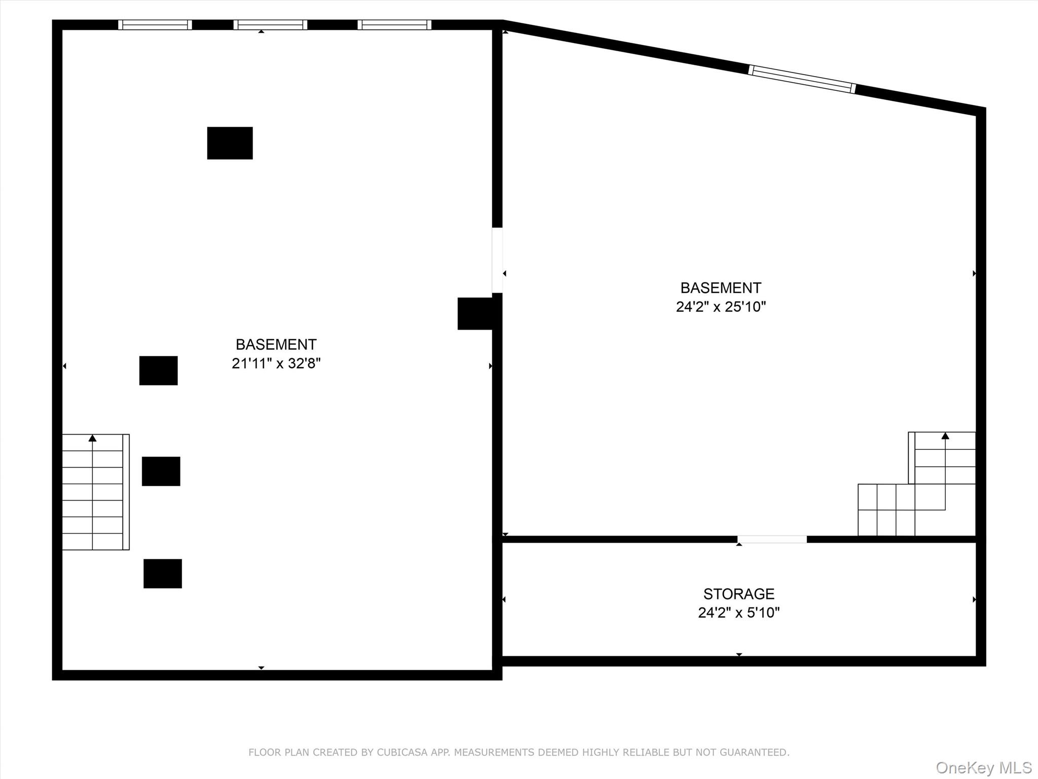
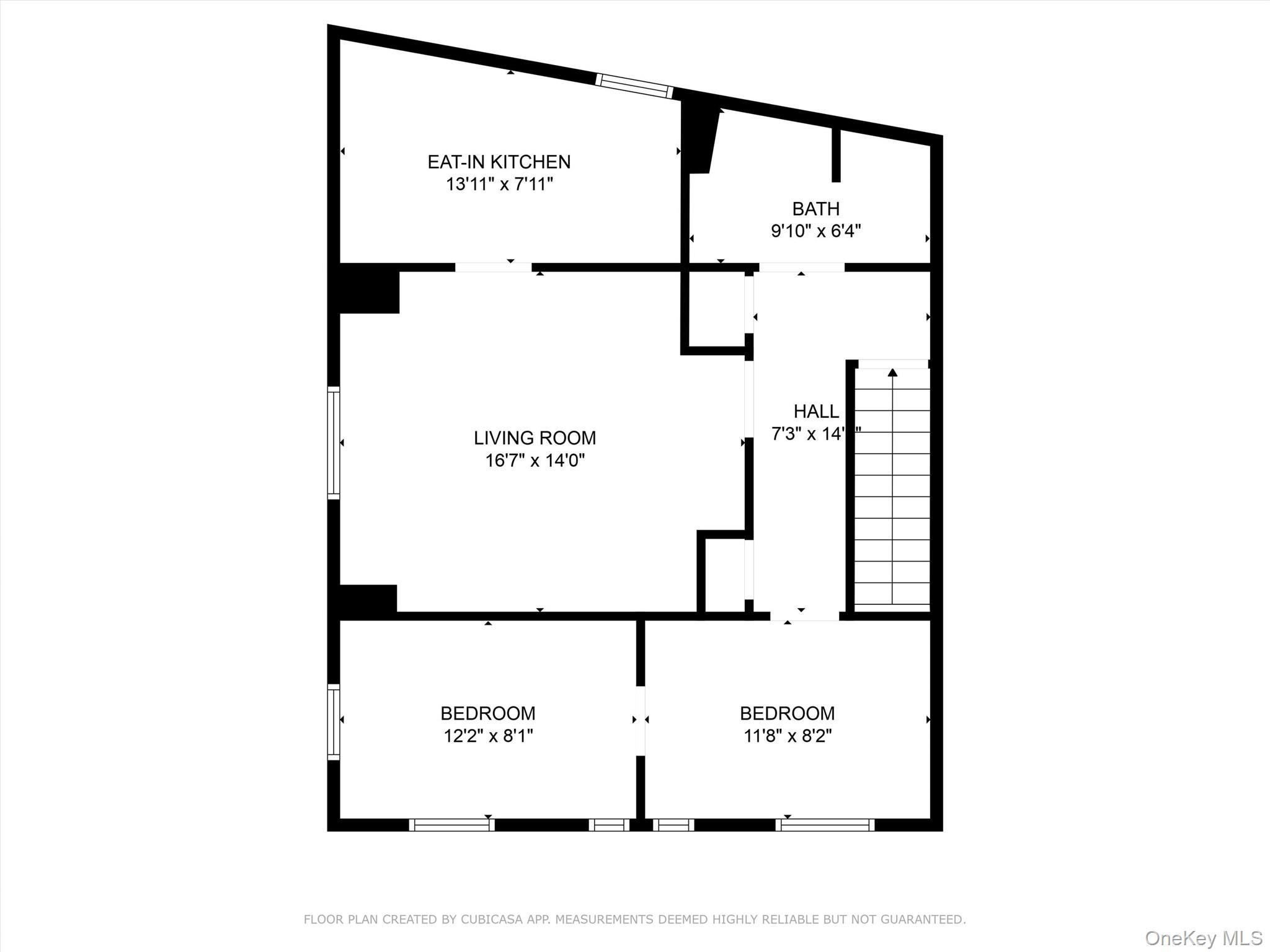
Welcome to 37 Secor Road. Being sold strictly as-is and as a buy one get one with 39 Secor Road; You cannot pass on this deal! Get this cozy 2-bedroom, 1-bathroom single family home replete with a garage, unfinished basement and unobstructed windows to the Hudson River. This home is priced to be sold as a package with the adjoining Two family home at 39 Secor Road (MLS # 973596 offered @ $675K). These two homes are on one deed with two separate tax lots, but they are adjoined with ONE furnace and one oil tank. The single-family home is being sold for CASH ONLY while a buyer can obtain financing for the two bedroom over one-bedroom multi-family home. This is an amazing opportunity for a first time or seasoned investor. Both units are being sold strictly AS-IS but boast two new roofs. The unfinished basement extends the length of both homes. Street parking for the multi-family home, but there is a municipal lot located behind the homes. 37/39 is a short distance to the Ossining training station and down-town Ossining alike. Both homes have access to basement that can be closed off by installing a door. Unfinished basements have windows and exterior access if a buyer would like.

Features

  • Rooms: 4
  • Bedrooms: 2
  • Baths: 1 full
  • Style: Carriage House
  • Year Built: 1900
  • Garage: 1-car
  • Heating: Oil
  • Cooling: Wall/Window Unit(s)
  • Basement: Full, Unfinished, Walk-Out Access
  • Approx Sq. Feet: 1,380
  • Acreage: 0.02
  • Est. Taxes: $8,232
  • Elem. School: Brookside
  • Middle School: Anne M Dorner Middle School
  • High School: Ossining High School
  • School District: Ossining
  • Appliances: Gas Range, Refrigerator
  • MLS#: 973600
  • Days on Market: 5 days
  • Website: https://www.raveis.com
    /prop/973600/37secorroad_ossining_ny?source=qrflyer
Listing information has been assembled from various sources of varying degrees of reliability. Any information critical to the buying decision should be independently verified.

William Raveis Family of Services

Our family of companies partner in delivering quality services in a one-stop-shopping environment. Together, we integrate the most comprehensive real estate, mortgage and insurance services available to fulfill your specific real estate needs.

Monica GonzalezLuxury Properties Specialist

857.389.5963

Monica.Gonzalez@Raveis.com

Our family of companies offer our clients a new level of full-service real estate. We shall:

  • Market your home to realize a quick sale at the best possible price
  • Place up to 20+ photos of your home on our website, raveis.com
  • Provide frequent communication and tracking reports showing the Internet views your home received on raveis.com
  • Showcase your home on raveis.com with a larger and more prominent format
  • Give you the full resources and strength of William Raveis Real Estate, Mortgage & Insurance and our cutting-edge technology

To learn more about our credentials, visit raveis.com today.

Andrew van DykVP, Mortgage Banker, William Raveis Mortgage, LLC

NMLS Mortgage Loan Originator ID 23716

781.490.5670

Andrew.vanDyk@raveis.com

Our Executive Mortgage Banker:

  • Is available to meet with you in our office, your home or office, evenings or weekends
  • Offers you pre-approval in minutes!
  • Provides a guaranteed closing date that meets your needs
  • Has access to hundreds of loan programs, all at competitive rates
  • Is in constant contact with a full processing, underwriting, and closing staff to ensure an efficient transaction

Jennifer HartRegional Sales Manager, William Raveis Insurance

978.457.6220

Jennifer.Hart@raveis.com

Our Insurance Division:

  • Will Provide a home insurance quote within 24 hours
  • Offers full-service coverage such as Homeowner's, Auto, Life, Renter's, Flood and Valuable Items
  • Partners with major insurance companies including Chubb, Kemper Unitrin, The Hartford, Progressive,
    Encompass, Travelers, Fireman's Fund, Middleoak Mutual, One Beacon and American Reliable

37 Secor Road, Ossining, NY, 10562

$85,000

Monica Gonzalez

Luxury Properties Specialist

William Raveis Real Estate

Phone: 857.389.5963

Monica.Gonzalez@Raveis.com

Andrew van Dyk

VP, Mortgage Banker

William Raveis Mortgage, LLC

Phone: 781.490.5670

Andrew.vanDyk@raveis.com

NMLS Mortgage Loan Originator ID 23716

5/6 (30 Yr)
Adjustable Rate Conforming*
30 Year
Fixed-Rate Conforming
15 Year
Fixed-Rate Conforming
Loan Amount $68,000 $68,000 $68,000
Term 360 months 360 months 180 months
Initial Interest Rate** 5.990% 6.250% 5.375%
Interest Rate based on Index + Margin 8.125%
Annual Percentage Rate 6.403% 6.431% 5.668%
Monthly Tax Payment $686 $686 $686
H/O Insurance Payment $75 $75 $75
Initial Principal & Interest Pmt $407 $419 $551
Total Monthly Payment $1,168 $1,180 $1,312

* The Initial Interest Rate and Initial Principal & Interest Payment are fixed for the first and adjust every six months thereafter for the remainder of the loan term. The Interest Rate and annual percentage rate may increase after consummation. The Index for this product is the SOFR. The margin for this adjustable rate mortgage may vary with your unique credit history, and terms of your loan.

** Mortgage Rates are subject to change, loan amount and product restrictions and may not be available for your specific transaction at commitment or closing. Rates, and the margin for adjustable rate mortgages [if applicable], are subject to change without prior notice.

The rates and Annual Percentage Rate (APR) cited above may be only samples for the purpose of calculating payments and are based upon the following assumptions: minimum credit score of 740, 20% down payment (e.g. $20,000 down on a $100,000 purchase price), $1,950 in finance charges, and 30 days prepaid interest, 1 point, 30 day rate lock. The rates and APR will vary depending upon your unique credit history and the terms of your loan, e.g. the actual down payment percentages, points and fees for your transaction. Property taxes and homeowner's insurance are estimates and subject to change.