20 Elmore Way, South Windsor, CT, 06074 | $789,000

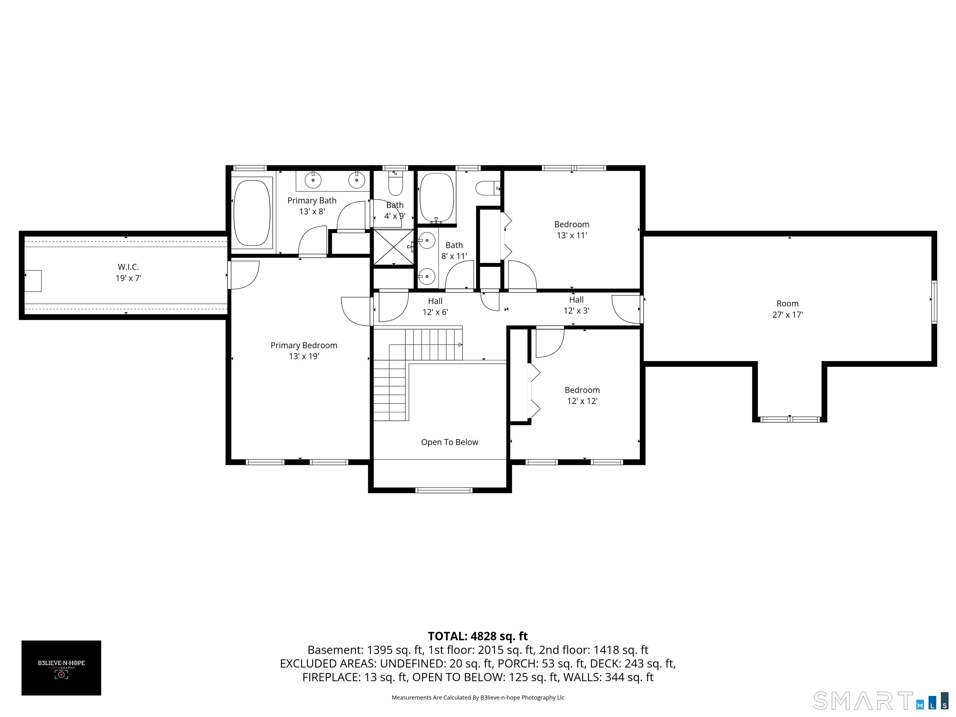
PHENOMENAL LOCATION for this sprawling and charming home One of the most striking homes in Deming Hill Estates, offering exceptional curb appeal and a premier culdesac location. Set on over an acre of beautifully maintained land, this property welcomes you with double front doors opening to a dramatic twostory foyer with a soaring 20ft ceiling and palladium window. The first floor features an open, sunfilled layout with gleaming hardwood floors throughout. The expansive kitchen offers abundant cabinetry and generous granite counter space, flowing seamlessly into the oversized family room with fireplace. Sliders lead to a spacious deck and large, level backyard bordered by 25 ft of conservation land for added privacy. A mudroom with washer, dryer, and builtins completes the main level. Upstairs, the impressive primary suite includes a 7x19 walkin closet and private bath with jetted tub and double vanity, along with two additional large bedrooms. Additional highlights include three full baths, a Kloter Farms shed, and a lower level plumbed for a future full bath. This petfree home features a new roof (2025) and new heating/air Condition system (2021). Conveniently located near shopping, dining, Buckland Mall, and I84, this home blends elegance, comfort, and convenience. Seller proactively had engineer inspect the foundation for peace of mind and buyer's convenience. Report in MLS attachments. GHAR contracts preferred. No Escalation clauses. BUYER CONCESSIONS OFFERED, PAID BY SELLER. AUDIO AND VIDEO RECORDING IN AND OUTSIDE THE HOUSE

Features

  • Rooms: 8
  • Bedrooms: 4
  • Baths: 3 full
  • Laundry: Main Level
  • Style: Colonial
  • Year Built: 2001
  • Garage: 2-car Attached Garage,Off Street Parking
  • Heating: Hot Air
  • Cooling: Central Air
  • Basement: Full,Unfinished,Full With Hatchway
  • Above Grade Approx. Sq. Feet: 2,671
  • Acreage: 1.03
  • Est. Taxes: $14,529
  • Lot Desc: Level Lot
  • Elem. School: Orchard Hill
  • Middle School: Per Board of Ed
  • High School: South Windsor
  • Appliances: Gas Range,Microwave,Refrigerator,Dishwasher,Disposal,Washer,Dryer
  • MLS#: 24166938
  • Website: https://www.raveis.com
    /eprop/24166938/20elmoreway_southwindsor_ct?source=qrflyer
Copyright © 2026  SmartMLS, Inc.
The data relating to real estate for sale on this website appears in part through the SMARTMLS Internet Data Exchange program, a voluntary cooperative exchange of property listing data between licensed real estate brokerage firms, and is provided by SMARTMLS through a licensing agreement. Listing information is from various brokers who participate in the SMARTMLS IDX program and not all listings may be visible on the site. The property information being provided on or through the website is for the personal, non-commercial use of consumers and such information may not be used for any purpose other than to identify prospective properties consumers may be interested in purchasing. Some properties which appear for sale on the website may no longer be available because they are for instance, under contract, sold or are no longer being offered for sale. Property information displayed is deemed reliable but is not guaranteed.
Listing courtesy of RE/MAX Right Choice   Phone: (860) 788-7001

Room Information

Type DescriptionDimensionsLevel
Bedroom 1 Ceiling Fan,Wall/Wall Carpet11.0 x 13.0Upper
Bedroom 2 Ceiling Fan,Wall/Wall Carpet11.0 x 13.0Upper
Bedroom 3 17.0 x 27.0Upper
Dining Room 9 ft+ Ceilings,Ceiling Fan,Hardwood Floor12.0 x 13.0Main
Family Room 9 ft+ Ceilings,Fireplace,Wall/Wall Carpet19.0 x 22.0Main
Office 9 ft+ Ceilings12.0 x 13.0Main
Primary Bedroom Ceiling Fan,Full Bath,Whirlpool Tub,Walk-In Closet,Wall/Wall Carpet13.0 x 19.0Upper

William Raveis Family of Services

Our family of companies partner in delivering quality services in a one-stop-shopping environment. Together, we integrate the most comprehensive real estate, mortgage and insurance services available to fulfill your specific real estate needs.

Customer Service

888.699.8876

Contact@raveis.com

Our family of companies offer our clients a new level of full-service real estate. We shall:

  • Market your home to realize a quick sale at the best possible price
  • Place up to 20+ photos of your home on our website, raveis.com
  • Provide frequent communication and tracking reports showing the Internet views your home received on raveis.com
  • Showcase your home on raveis.com with a larger and more prominent format
  • Give you the full resources and strength of William Raveis Real Estate, Mortgage & Insurance and our cutting-edge technology

To learn more about our credentials, visit raveis.com today.

Frank KolbSenior Vice President - Coaching & Strategic, William Raveis Mortgage, LLC

NMLS Mortgage Loan Originator ID 81725

203.980.8025

Frank.Kolb@raveis.com

Our Executive Mortgage Banker:

  • Is available to meet with you in our office, your home or office, evenings or weekends
  • Offers you pre-approval in minutes!
  • Provides a guaranteed closing date that meets your needs
  • Has access to hundreds of loan programs, all at competitive rates
  • Is in constant contact with a full processing, underwriting, and closing staff to ensure an efficient transaction

Robert ReadeInsurance Sales Director, William Raveis Insurance

860.690.5052

Robert.Reade@raveis.com

Our Insurance Division:

  • Will Provide a home insurance quote within 24 hours
  • Offers full-service coverage such as Homeowner's, Auto, Life, Renter's, Flood and Valuable Items
  • Partners with major insurance companies including Chubb, Kemper Unitrin, The Hartford, Progressive,
    Encompass, Travelers, Fireman's Fund, Middleoak Mutual, One Beacon and American Reliable

Ray CashenPresident, William Raveis Attorney Network

203.925.4590

For homebuyers and sellers, our Attorney Network:

  • Consult on purchase/sale and financing issues, reviews and prepares the sale agreement, fulfills lender
    requirements, sets up escrows and title insurance, coordinates closing documents
  • Offers one-stop shopping; to satisfy closing, title, and insurance needs in a single consolidated experience
  • Offers access to experienced closing attorneys at competitive rates
  • Streamlines the process as a direct result of the established synergies among the William Raveis Family of Companies

20 Elmore Way, South Windsor, CT, 06074

$789,000

Customer Service

William Raveis Real Estate

Phone: 888.699.8876

Contact@raveis.com

Frank Kolb

Senior Vice President - Coaching & Strategic

William Raveis Mortgage, LLC

Phone: 203.980.8025

Frank.Kolb@raveis.com

NMLS Mortgage Loan Originator ID 81725

5/6 (30 Yr)
Adjustable Rate Conforming*
30 Year
Fixed-Rate Conforming
15 Year
Fixed-Rate Conforming
Loan Amount $631,200 $631,200 $631,200
Term 360 months 360 months 180 months
Initial Interest Rate** 5.750% 6.125% 5.375%
Interest Rate based on Index + Margin 8.125%
Annual Percentage Rate 6.275% 6.284% 5.595%
Monthly Tax Payment $1,211 $1,211 $1,211
H/O Insurance Payment $92 $92 $92
Initial Principal & Interest Pmt $3,684 $3,835 $5,116
Total Monthly Payment $4,987 $5,138 $6,419

* The Initial Interest Rate and Initial Principal & Interest Payment are fixed for the first and adjust every six months thereafter for the remainder of the loan term. The Interest Rate and annual percentage rate may increase after consummation. The Index for this product is the SOFR. The margin for this adjustable rate mortgage may vary with your unique credit history, and terms of your loan.

** Mortgage Rates are subject to change, loan amount and product restrictions and may not be available for your specific transaction at commitment or closing. Rates, and the margin for adjustable rate mortgages [if applicable], are subject to change without prior notice.

The rates and Annual Percentage Rate (APR) cited above may be only samples for the purpose of calculating payments and are based upon the following assumptions: minimum credit score of 740, 20% down payment (e.g. $20,000 down on a $100,000 purchase price), $1,950 in finance charges, and 30 days prepaid interest, 1 point, 30 day rate lock. The rates and APR will vary depending upon your unique credit history and the terms of your loan, e.g. the actual down payment percentages, points and fees for your transaction. Property taxes and homeowner's insurance are estimates and subject to change.