441 S Country Road, E. Patchogue (East Patchogue), NY, 11772 | $999,000

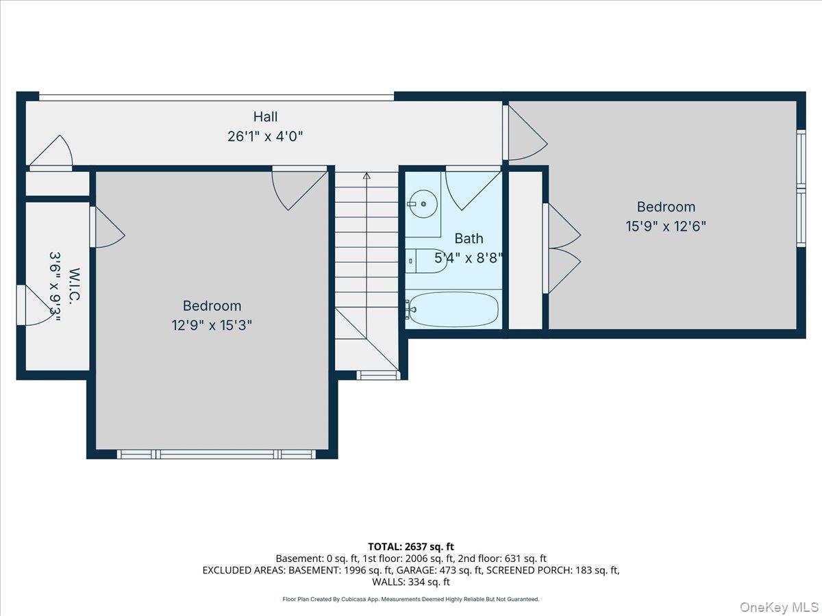
Tucked away within a private, secluded community off South Country Road, this post-modern beauty is situated on 1. 57 landscaped acres. An impressive double-door entry opens to a formal entryway, setting the tone for the home’s inviting and spacious layout. Inside, you’ll find a sun-filled living room with a gas fireplace that flows seamlessly into the formal dining room and eat-in kitchen — the true centerpiece of the home. The kitchen features custom wood cabinetry with crown molding, granite countertops, and a large center island providing the perfect space for casual dining and entertaining. It is equipped with stainless steel appliances, including a gas cooktop with a vent hood, double wall ovens, and a built-in microwave. Recessed lighting and rich hardwood floors enhance the warm, inviting atmosphere. The open layout flows into the surrounding spaces, including a delightful three-season room—perfectly blending indoor and outdoor living. The first-floor primary bedroom features a full en-suite bath and double sliders leading to the expansive mahogany back deck. Also on the first floor is a second bedroom with access to its own full bath. Step outside to your own private retreat featuring a 50-foot mahogany deck, a charming front mahogany porch, a bluestone patio, and a fenced yard—offering the ultimate setting for relaxation and entertaining in complete privacy. Heading upstairs, the second-floor balcony-style hallway creates a dramatic and airy architectural feature that overlooks the main living area and enhances the home’s open-concept design. The second floor offers two gracious bedrooms and an additional full bath. Additional highlights include a full 8ft basement, 2 car attached garage, central vacuum, 2-zone HVAC system, 200-amp electric, Andersen windows, vinyl siding with aluminum trim, and an 11-zone in-ground sprinkler system and a storage shed. Set within a quiet, private enclave, this exceptional property offers a rare opportunity to enjoy estate-like living with unmatched privacy, space, and versatility—all just moments from the water and both Bellport and Patchogue Village amenities.

Features

  • Town: E. Patchogue
  • Rooms: 8
  • Bedrooms: 4
  • Baths: 3 full / 1 half
  • Style: Post Modern
  • Year Built: 2001
  • Garage: 2-car
  • Heating: Forced Air, Hot Air
  • Cooling: Central Air
  • Basement: Full
  • Approx Sq. Feet: 3,037
  • Acreage: 1.57
  • Est. Taxes: $18,300
  • Lot Desc: Front Yard, Landscaped, Level, Near Golf Course, Near Public Transit, Near School, Near Shops, Part Wooded, Sprinklers In Front, Sprinklers In Rear
  • Elem. School: Verne W Critz Elementary School
  • Middle School: Bellport Middle School
  • High School: Bellport Senior High School
  • School District: South Country
  • Appliances: Convection Oven, Dishwasher, Dryer, Exhaust Fan, Gas Cooktop, Microwave, Refrigerator, Stainless Steel Appliance(s), Washer, Gas Water Heater
  • MLS#: 982197
  • Days on Market: 2 days
  • Website: https://www.raveis.com
    /prop/982197/441scountryroad_epatchogue_ny?source=qrflyer
Listing information has been assembled from various sources of varying degrees of reliability. Any information critical to the buying decision should be independently verified.Listing courtesy of Signature Premier Properties   Phone: 631-567-0100

William Raveis Family of Services

Our family of companies partner in delivering quality services in a one-stop-shopping environment. Together, we integrate the most comprehensive real estate, mortgage and insurance services available to fulfill your specific real estate needs.

Customer Service

888.699.8876

Contact@raveis.com

Our family of companies offer our clients a new level of full-service real estate. We shall:

  • Market your home to realize a quick sale at the best possible price
  • Place up to 20+ photos of your home on our website, raveis.com
  • Provide frequent communication and tracking reports showing the Internet views your home received on raveis.com
  • Showcase your home on raveis.com with a larger and more prominent format
  • Give you the full resources and strength of William Raveis Real Estate, Mortgage & Insurance and our cutting-edge technology

To learn more about our credentials, visit raveis.com today.

Frank KolbSenior Vice President - Coaching & Strategic, William Raveis Mortgage, LLC

NMLS Mortgage Loan Originator ID 81725

203.980.8025

Frank.Kolb@raveis.com

Our Executive Mortgage Banker:

  • Is available to meet with you in our office, your home or office, evenings or weekends
  • Offers you pre-approval in minutes!
  • Provides a guaranteed closing date that meets your needs
  • Has access to hundreds of loan programs, all at competitive rates
  • Is in constant contact with a full processing, underwriting, and closing staff to ensure an efficient transaction

Ryan FortierInsurance Sales Director, William Raveis Insurance

516.739.7731

Ryan.Fortier@raveis.com

Our Insurance Division:

  • Will Provide a home insurance quote within 24 hours
  • Offers full-service coverage such as Homeowner's, Auto, Life, Renter's, Flood and Valuable Items
  • Partners with major insurance companies including Chubb, Kemper Unitrin, The Hartford, Progressive,
    Encompass, Travelers, Fireman's Fund, Middleoak Mutual, One Beacon and American Reliable

441 S Country Road, E. Patchogue (East Patchogue), NY, 11772

$999,000

Customer Service

William Raveis Real Estate

Phone: 888.699.8876

Contact@raveis.com

Frank Kolb

Senior Vice President - Coaching & Strategic

William Raveis Mortgage, LLC

Phone: 203.980.8025

Frank.Kolb@raveis.com

NMLS Mortgage Loan Originator ID 81725

5/6 (30 Yr)
Adjustable Rate Jumbo*
30 Year
Fixed-Rate Jumbo
15 Year
Fixed-Rate Jumbo
Loan Amount $799,200 $799,200 $799,200
Term 360 months 360 months 180 months
Initial Interest Rate** 5.125% 5.875% 5.625%
Interest Rate based on Index + Margin 8.125%
Annual Percentage Rate 6.021% 5.984% 5.806%
Monthly Tax Payment $1,525 $1,525 $1,525
H/O Insurance Payment $92 $92 $92
Initial Principal & Interest Pmt $4,352 $4,728 $6,583
Total Monthly Payment $5,969 $6,345 $8,200

* The Initial Interest Rate and Initial Principal & Interest Payment are fixed for the first and adjust every six months thereafter for the remainder of the loan term. The Interest Rate and annual percentage rate may increase after consummation. The Index for this product is the SOFR. The margin for this adjustable rate mortgage may vary with your unique credit history, and terms of your loan.

** Mortgage Rates are subject to change, loan amount and product restrictions and may not be available for your specific transaction at commitment or closing. Rates, and the margin for adjustable rate mortgages [if applicable], are subject to change without prior notice.

The rates and Annual Percentage Rate (APR) cited above may be only samples for the purpose of calculating payments and are based upon the following assumptions: minimum credit score of 740, 20% down payment (e.g. $20,000 down on a $100,000 purchase price), $1,950 in finance charges, and 30 days prepaid interest, 1 point, 30 day rate lock. The rates and APR will vary depending upon your unique credit history and the terms of your loan, e.g. the actual down payment percentages, points and fees for your transaction. Property taxes and homeowner's insurance are estimates and subject to change.