16 Seaway Drive, Copiague, NY, 11726 | $849,990

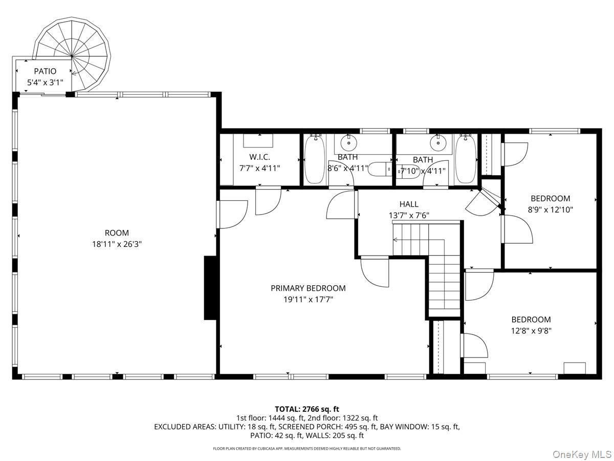
Welcome to “Salt Life” at Great South Bay Estates! Come and join the lifestyle of this exclusive beach and boating community deep into the Great Neck peninsula of Copiague Harbor – X-Zone! NO FLOOD INSURANCE REQUIRED! Just a few houses from the Great South Bay, this huge, sun-drenched, expanded Custom Colonial offers oversized windows, 3-4 large Bedrooms, including a main suite with dressing alcove, full bath and WIC; and 2 additional full baths, one with a jetted, soaker tub! The stylish, well-appointed eat-in-kitchen with breakfast nook comes dressed with granite counters and Stainless Steel appliances and features a gas stovetop plus built-in microwave and separate wall oven with convection cooking! The adjacent room is spacious for gatherings and spills into the first-floor, fully windowed Sunroom with additional seating and lounging areas offering views of the well-landscaped yard. The formal Dining Room with its front bump-out can accommodate even those wandering beyond the dinner table, while the living room features a wood-burning fireplace for additional warmth and ambience. There’s even a first-floor billiard/game room with a bay window. While the second floor accommodates the sleeping quarters, it also features a spacious second Sunroom with spiral stairs to the backyard and patio. This spacious home is heated by a newer gas furnace circulating hot water through 4 zones of baseboard convection radiators, while a newer, hot water storage tank provides domestic hot water and the newer C/AC cools in summer along with direct vent, A/C and heat units in each of the enclosed sunrooms. If needed, the flexible floorplan can adjust to a first-floor bedroom suite with full bath. Close proximity to the bay with marina and beach rights included for required $200 annual HOA fee. Boat docking is also available. This is a large, custom home on an oversized lot in a resort-style community, and it’s waiting for you!

Features

  • Rooms: 12
  • Bedrooms: 4
  • Baths: 3 full
  • Laundry: In Bathroom
  • Style: Colonial
  • Year Built: 1976
  • Heating: Hot Water
  • Cooling: Central Air
  • Approx Sq. Feet: 3,588
  • Acreage: 0.29
  • Est. Taxes: $19,051
  • HOA Fee: $200 Annually
  • Lot Desc: Back Yard, Front Yard, Landscaped, Level, Private
  • Elem. School: Susan E Wiley School
  • Middle School: Copiague Middle School
  • High School: Walter G O'Connell Copiague High Sch
  • School District: Copiague
  • Appliances: Convection Oven, Cooktop, Dishwasher, Dryer, Gas Cooktop, Microwave, Oven, Refrigerator, Stainless Steel Appliance(s), Washer, Gas Water Heater
  • MLS#: 982616
  • Days on Market: 5 days
  • Website: https://www.raveis.com
    /prop/982616/16seawaydrive_copiague_ny?source=qrflyer
Listing information has been assembled from various sources of varying degrees of reliability. Any information critical to the buying decision should be independently verified.Listing courtesy of Coldwell Banker American Homes   Phone: 516-798-4100

William Raveis Family of Services

Our family of companies partner in delivering quality services in a one-stop-shopping environment. Together, we integrate the most comprehensive real estate, mortgage and insurance services available to fulfill your specific real estate needs.

Customer Service

888.699.8876

Contact@raveis.com

Our family of companies offer our clients a new level of full-service real estate. We shall:

  • Market your home to realize a quick sale at the best possible price
  • Place up to 20+ photos of your home on our website, raveis.com
  • Provide frequent communication and tracking reports showing the Internet views your home received on raveis.com
  • Showcase your home on raveis.com with a larger and more prominent format
  • Give you the full resources and strength of William Raveis Real Estate, Mortgage & Insurance and our cutting-edge technology

To learn more about our credentials, visit raveis.com today.

Frank KolbSenior Vice President - Coaching & Strategic, William Raveis Mortgage, LLC

NMLS Mortgage Loan Originator ID 81725

203.980.8025

Frank.Kolb@raveis.com

Our Executive Mortgage Banker:

  • Is available to meet with you in our office, your home or office, evenings or weekends
  • Offers you pre-approval in minutes!
  • Provides a guaranteed closing date that meets your needs
  • Has access to hundreds of loan programs, all at competitive rates
  • Is in constant contact with a full processing, underwriting, and closing staff to ensure an efficient transaction

Ryan FortierInsurance Sales Director, William Raveis Insurance

516.739.7731

Ryan.Fortier@raveis.com

Our Insurance Division:

  • Will Provide a home insurance quote within 24 hours
  • Offers full-service coverage such as Homeowner's, Auto, Life, Renter's, Flood and Valuable Items
  • Partners with major insurance companies including Chubb, Kemper Unitrin, The Hartford, Progressive,
    Encompass, Travelers, Fireman's Fund, Middleoak Mutual, One Beacon and American Reliable

16 Seaway Drive, Copiague, NY, 11726

$849,990

Customer Service

William Raveis Real Estate

Phone: 888.699.8876

Contact@raveis.com

Frank Kolb

Senior Vice President - Coaching & Strategic

William Raveis Mortgage, LLC

Phone: 203.980.8025

Frank.Kolb@raveis.com

NMLS Mortgage Loan Originator ID 81725

5/6 (30 Yr)
Adjustable Rate Jumbo*
30 Year
Fixed-Rate Jumbo
15 Year
Fixed-Rate Jumbo
Loan Amount $679,992 $679,992 $679,992
Term 360 months 360 months 180 months
Initial Interest Rate** 5.250% 6.000% 5.750%
Interest Rate based on Index + Margin 8.125%
Annual Percentage Rate 6.069% 6.110% 5.932%
Monthly Tax Payment $1,588 $1,588 $1,588
H/O Insurance Payment $92 $92 $92
Initial Principal & Interest Pmt $3,755 $4,077 $5,647
Total Monthly Payment $5,435 $5,757 $7,327

* The Initial Interest Rate and Initial Principal & Interest Payment are fixed for the first and adjust every six months thereafter for the remainder of the loan term. The Interest Rate and annual percentage rate may increase after consummation. The Index for this product is the SOFR. The margin for this adjustable rate mortgage may vary with your unique credit history, and terms of your loan.

** Mortgage Rates are subject to change, loan amount and product restrictions and may not be available for your specific transaction at commitment or closing. Rates, and the margin for adjustable rate mortgages [if applicable], are subject to change without prior notice.

The rates and Annual Percentage Rate (APR) cited above may be only samples for the purpose of calculating payments and are based upon the following assumptions: minimum credit score of 740, 20% down payment (e.g. $20,000 down on a $100,000 purchase price), $1,950 in finance charges, and 30 days prepaid interest, 1 point, 30 day rate lock. The rates and APR will vary depending upon your unique credit history and the terms of your loan, e.g. the actual down payment percentages, points and fees for your transaction. Property taxes and homeowner's insurance are estimates and subject to change.  The Total Monthly Payment does not include the estimated HOA/Common Charge payment.