26 Plains Road, Windham (South Windham), CT, 06280 | $239,900

*** Dutch Colonial Style Home Brimming with History and Potential *** This home is the former parsonage for St. Paul's Episcopal Church, with many antique features reminiscent of its time - gambrel style roof, colonial American style woodwork, wide plank floors, field stone foundation and walk ways, and accretive architecture. The home is sprawling with over 2700 Sqft, 4 bedrooms, 1 1/2 baths, large mud/laundry room, spacious eat-in kitchen, and large, lower level workshop area with natural lighting. It is steps away from historic Windham Center and Town Green, and is surrounded by other beautiful antiques homes. Per town record New gas line (2020), new stainless steel chimney liner (2020), new oil hot air furnace (2019), and oil tank (2015). Cash, conventional or rehab loans only. Home is in a historic district, rules and regulations can be found at the Town of Windham website. ***This is an estate sale, subject to probate court approval. Buyer to do due-diligence. Being sold in AS-IS/WHERE-IS including personal property ***

Features

  • Town: Windham
  • Rooms: 8
  • Bedrooms: 4
  • Baths: 1 full / 1 half
  • Laundry: Main Level
  • Style: Colonial
  • Year Built: 1732
  • Garage: Off Street Parking
  • Heating: Hot Air
  • Cooling: None
  • Basement: Full,Unfinished,Full With Walk-Out
  • Above Grade Approx. Sq. Feet: 2,758
  • Acreage: 0.3
  • Est. Taxes: $7,326
  • Lot Desc: Level Lot,Historic District
  • Elem. School: Per Board of Ed
  • Middle School: Per Board of Ed
  • High School: Per Board of Ed
  • Appliances: Oven/Range,Refrigerator,Dishwasher,Washer,Dryer
  • MLS#: 24164604
  • Website: https://www.raveis.com
    /prop/24164604/26plainsroad_windham_ct?source=qrflyer
The data relating to real estate for sale on this website appears in part through the SMARTMLS Internet Data Exchange program, a voluntary cooperative exchange of property listing data between licensed real estate brokerage firms, and is provided by SMARTMLS through a licensing agreement. Listing information is from various brokers who participate in the SMARTMLS IDX program and not all listings may be visible on the site. The property information being provided on or through the website is for the personal, non-commercial use of consumers and such information may not be used for any purpose other than to identify prospective properties consumers may be interested in purchasing. Some properties which appear for sale on the website may no longer be available because they are for instance, under contract, sold or are no longer being offered for sale. Property information displayed is deemed reliable but is not guaranteed.

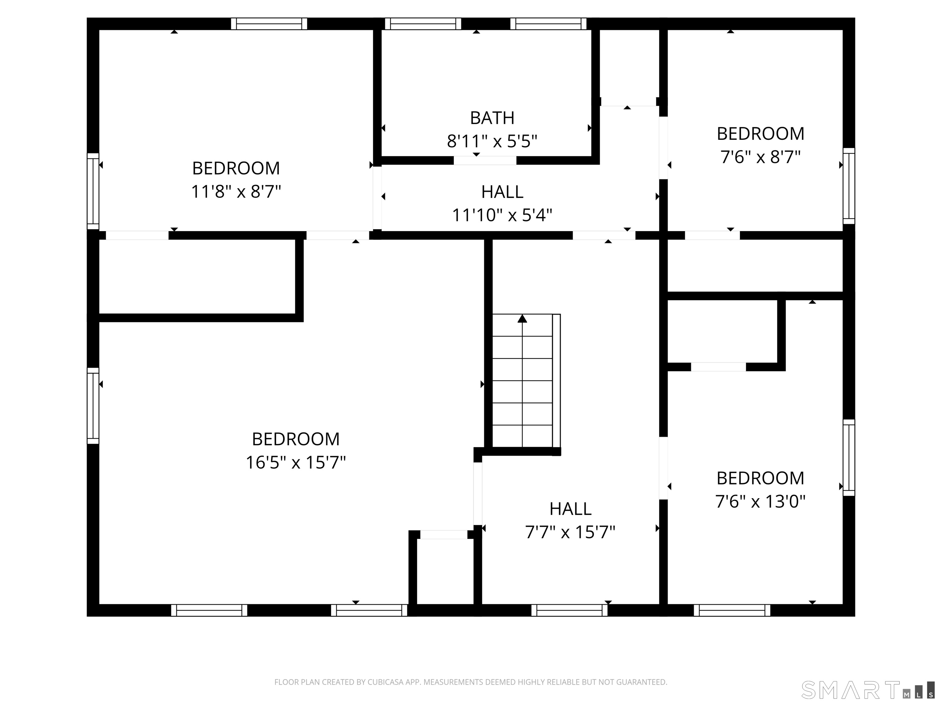
Room Information

Type DescriptionDimensionsLevel
Bedroom 1 Wide Board Floor8.0 x 11.0Upper
Bedroom 2 Wide Board Floor7.0 x 8.0Upper
Bedroom 3 Wide Board Floor7.0 x 13.0Upper
Dining Room Hardwood Floor11.0 x 15.0Main
Eat-In Kitchen 12.0 x 22.0Main
Great Room Built-Ins15.0 x 28.0Main
Living Room Fireplace,Hardwood Floor17.0 x 19.0Main
Primary Bedroom 15.0 x 16.0Upper

William Raveis Family of Services

Our family of companies partner in delivering quality services in a one-stop-shopping environment. Together, we integrate the most comprehensive real estate, mortgage and insurance services available to fulfill your specific real estate needs.

Katya MalakhovaSales Associate

714.600.9199

Katya.Malakhova@Raveis.com

Our family of companies offer our clients a new level of full-service real estate. We shall:

  • Market your home to realize a quick sale at the best possible price
  • Place up to 20+ photos of your home on our website, raveis.com
  • Provide frequent communication and tracking reports showing the Internet views your home received on raveis.com
  • Showcase your home on raveis.com with a larger and more prominent format
  • Give you the full resources and strength of William Raveis Real Estate, Mortgage & Insurance and our cutting-edge technology

To learn more about our credentials, visit raveis.com today.

Kate RockettRVP, Mortgage Banker, William Raveis Mortgage, LLC

NMLS Mortgage Loan Originator ID 1500191

617.281.4872

Kate.Rockett@raveis.com

Our Executive Mortgage Banker:

  • Is available to meet with you in our office, your home or office, evenings or weekends
  • Offers you pre-approval in minutes!
  • Provides a guaranteed closing date that meets your needs
  • Has access to hundreds of loan programs, all at competitive rates
  • Is in constant contact with a full processing, underwriting, and closing staff to ensure an efficient transaction

Nicole DelaneyInsurance Sales Director, William Raveis Insurance

781.724.3515

Nicole.Delaney@raveis.com

Our Insurance Division:

  • Will Provide a home insurance quote within 24 hours
  • Offers full-service coverage such as Homeowner's, Auto, Life, Renter's, Flood and Valuable Items
  • Partners with major insurance companies including Chubb, Kemper Unitrin, The Hartford, Progressive,
    Encompass, Travelers, Fireman's Fund, Middleoak Mutual, One Beacon and American Reliable

Ray CashenPresident, William Raveis Attorney Network

203.925.4590

For homebuyers and sellers, our Attorney Network:

  • Consult on purchase/sale and financing issues, reviews and prepares the sale agreement, fulfills lender
    requirements, sets up escrows and title insurance, coordinates closing documents
  • Offers one-stop shopping; to satisfy closing, title, and insurance needs in a single consolidated experience
  • Offers access to experienced closing attorneys at competitive rates
  • Streamlines the process as a direct result of the established synergies among the William Raveis Family of Companies

26 Plains Road, Windham (South Windham), CT, 06280

$239,900

Katya Malakhova

Sales Associate

William Raveis Real Estate

Phone: 714.600.9199

Katya.Malakhova@Raveis.com

Kate Rockett

RVP, Mortgage Banker

William Raveis Mortgage, LLC

Phone: 617.281.4872

Kate.Rockett@raveis.com

NMLS Mortgage Loan Originator ID 1500191

5/6 (30 Yr)
Adjustable Rate Conforming*
30 Year
Fixed-Rate Conforming
15 Year
Fixed-Rate Conforming
Loan Amount $191,920 $191,920 $191,920
Term 360 months 360 months 180 months
Initial Interest Rate** 6.125% 6.490% 5.750%
Interest Rate based on Index + Margin 8.125%
Annual Percentage Rate 6.424% 6.628% 5.933%
Monthly Tax Payment $611 $611 $611
H/O Insurance Payment $75 $75 $75
Initial Principal & Interest Pmt $1,166 $1,212 $1,594
Total Monthly Payment $1,851 $1,897 $2,279

* The Initial Interest Rate and Initial Principal & Interest Payment are fixed for the first and adjust every six months thereafter for the remainder of the loan term. The Interest Rate and annual percentage rate may increase after consummation. The Index for this product is the SOFR. The margin for this adjustable rate mortgage may vary with your unique credit history, and terms of your loan.

** Mortgage Rates are subject to change, loan amount and product restrictions and may not be available for your specific transaction at commitment or closing. Rates, and the margin for adjustable rate mortgages [if applicable], are subject to change without prior notice.

The rates and Annual Percentage Rate (APR) cited above may be only samples for the purpose of calculating payments and are based upon the following assumptions: minimum credit score of 740, 20% down payment (e.g. $20,000 down on a $100,000 purchase price), $1,950 in finance charges, and 30 days prepaid interest, 1 point, 30 day rate lock. The rates and APR will vary depending upon your unique credit history and the terms of your loan, e.g. the actual down payment percentages, points and fees for your transaction. Property taxes and homeowner's insurance are estimates and subject to change.