19 Goodwin Lane, Coram, NY, 11727 | $549,888

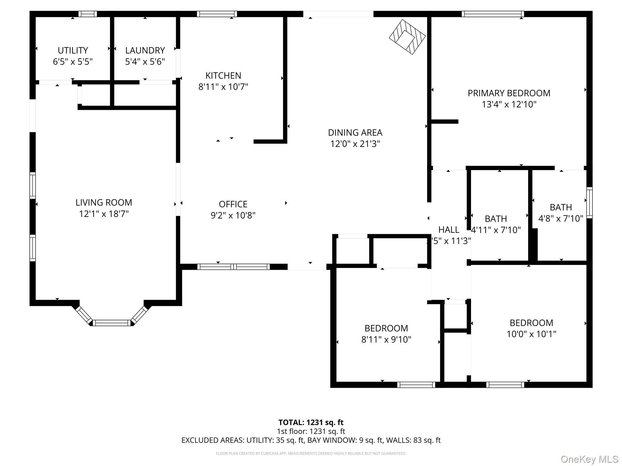
Welcome to this beautiful expanded ranch with high vaulted ceilings and a thoughtfully designed open floor plan. This home features recessed lighting, a newer roof (2018) and windows, front door and Anderson Slider, a water heater that is only 4 years young, ensuring modern amenities for your comfort. The 200 amp electrical system and central air conditioning provide reliability and efficiency, while the cozy wood burning stove adds warmth during colder months. Your dream kitchen awaits, complete with new quartz countertops and appliances installed just 3 years ago! The exterior boasts low maintenance vinyl siding, enhancing curb appeal and reducing upkeep. This home includes 3 spacious bedrooms and 2 bathrooms, featuring a recently updated primary bathroom that combines style and comfort. A possible 4th bedroom with outside entrance and Bay window. Outdoors, you'll find 3 sheds, two of which are situated on concrete slabs, offering ample storage space. Enjoy evenings around the built in firepit, or relax in the privacy of your fenced yard. Additionally, the property includes a carport as part of the sale and a 10 zone wifi sprinkler system to keep your outdoor space lush and green. Conveniently located just 8 minutes from Uncle Giuseppe’s, 10 minutes from Trader Joe’s and mere minutes from the Port Jefferson ferry and train station, this home offers easy access to shopping, dining and transportation. Property Condition: OUTSTANDING!! Features include insulated doors and solar panels owned and transferrable for energy efficiency. Don't miss this opportunity to make this stunning ranch your new home!

Features

  • Rooms: 7
  • Bedrooms: 3
  • Baths: 2 full
  • Laundry: Inside
  • Style: Ranch
  • Year Built: 1985
  • Heating: Oil, Other
  • Cooling: Central Air
  • Approx Sq. Feet: 1,500
  • Acreage: 0.35
  • Est. Taxes: $11,284
  • Elem. School: Coram Elementary School
  • Middle School: Longwood Junior High School
  • High School: Longwood High School
  • School District: Longwood
  • Appliances: Cooktop, Dishwasher, Dryer, Oven, Refrigerator, Stainless Steel Appliance(s), Washer, Oil Water Heater
  • MLS#: 979837
  • Days on Market: 13 days
  • Website: https://www.raveis.com
    /prop/979837/19goodwinlane_coram_ny?source=qrflyer
Listing information has been assembled from various sources of varying degrees of reliability. Any information critical to the buying decision should be independently verified.

William Raveis Family of Services

Our family of companies partner in delivering quality services in a one-stop-shopping environment. Together, we integrate the most comprehensive real estate, mortgage and insurance services available to fulfill your specific real estate needs.

Kevin SextonREALTOR

781.640.1484

Kevin.Sexton@raveis.com

Our family of companies offer our clients a new level of full-service real estate. We shall:

  • Market your home to realize a quick sale at the best possible price
  • Place up to 20+ photos of your home on our website, raveis.com
  • Provide frequent communication and tracking reports showing the Internet views your home received on raveis.com
  • Showcase your home on raveis.com with a larger and more prominent format
  • Give you the full resources and strength of William Raveis Real Estate, Mortgage & Insurance and our cutting-edge technology

To learn more about our credentials, visit raveis.com today.

Joanne O'KeefeVP, Mortgage Banker, William Raveis Mortgage, LLC

NMLS Mortgage Loan Originator ID 38342

978.314.1072

Joanne.OKeefe@raveis.com

Our Executive Mortgage Banker:

  • Is available to meet with you in our office, your home or office, evenings or weekends
  • Offers you pre-approval in minutes!
  • Provides a guaranteed closing date that meets your needs
  • Has access to hundreds of loan programs, all at competitive rates
  • Is in constant contact with a full processing, underwriting, and closing staff to ensure an efficient transaction

Paul BerriosRegional SVP, Insurance Sales Producer, William Raveis Insurance

978-337-3053

Paul.Berrios@raveis.com

Our Insurance Division:

  • Will Provide a home insurance quote within 24 hours
  • Offers full-service coverage such as Homeowner's, Auto, Life, Renter's, Flood and Valuable Items
  • Partners with major insurance companies including Chubb, Kemper Unitrin, The Hartford, Progressive,
    Encompass, Travelers, Fireman's Fund, Middleoak Mutual, One Beacon and American Reliable

19 Goodwin Lane, Coram, NY, 11727

$549,888

Kevin Sexton

REALTOR

William Raveis Real Estate

Phone: 781.640.1484

Kevin.Sexton@raveis.com

Joanne O'Keefe

VP, Mortgage Banker

William Raveis Mortgage, LLC

Phone: 978.314.1072

Joanne.OKeefe@raveis.com

NMLS Mortgage Loan Originator ID 38342

5/6 (30 Yr)
Adjustable Rate Conforming*
30 Year
Fixed-Rate Conforming
15 Year
Fixed-Rate Conforming
Loan Amount $439,910 $439,910 $439,910
Term 360 months 360 months 180 months
Initial Interest Rate** 5.750% 6.125% 5.375%
Interest Rate based on Index + Margin 8.125%
Annual Percentage Rate 6.275% 6.284% 5.595%
Monthly Tax Payment $940 $940 $940
H/O Insurance Payment $92 $92 $92
Initial Principal & Interest Pmt $2,567 $2,673 $3,565
Total Monthly Payment $3,599 $3,705 $4,597

* The Initial Interest Rate and Initial Principal & Interest Payment are fixed for the first and adjust every six months thereafter for the remainder of the loan term. The Interest Rate and annual percentage rate may increase after consummation. The Index for this product is the SOFR. The margin for this adjustable rate mortgage may vary with your unique credit history, and terms of your loan.

** Mortgage Rates are subject to change, loan amount and product restrictions and may not be available for your specific transaction at commitment or closing. Rates, and the margin for adjustable rate mortgages [if applicable], are subject to change without prior notice.

The rates and Annual Percentage Rate (APR) cited above may be only samples for the purpose of calculating payments and are based upon the following assumptions: minimum credit score of 740, 20% down payment (e.g. $20,000 down on a $100,000 purchase price), $1,950 in finance charges, and 30 days prepaid interest, 1 point, 30 day rate lock. The rates and APR will vary depending upon your unique credit history and the terms of your loan, e.g. the actual down payment percentages, points and fees for your transaction. Property taxes and homeowner's insurance are estimates and subject to change.