2039 State Route 208, Montgomery, NY, 12549 | $547,000

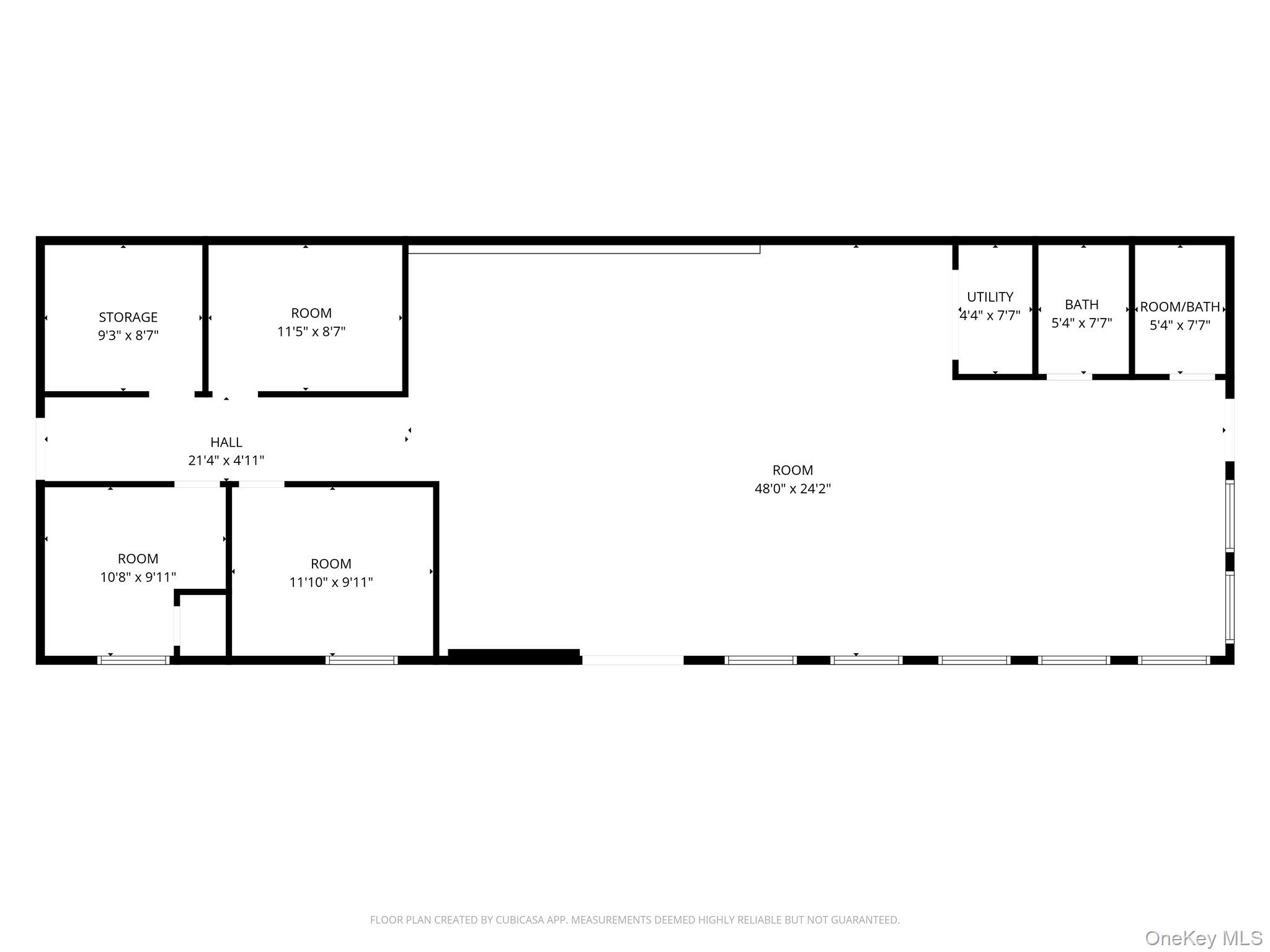
Position your business for success with this outstanding commercially zoned (B-1) property ideally located seconds from Exit 5 on Interstate 84 visible to over 14000 vehicles per day in the heart of Montgomery. Offering excellent visibility and strong sightlines, this exceptionally well-maintained building benefits from steady traffic flow and easy accessibility. Currently operating as a successful salon, the property provides exceptional versatility for a wide range of permitted uses under B-1 zoning, including retail, office and service-oriented businesses. Previously home to a deli, the building retains an existing exhaust system and even a drive-up window - making it attractive for food service or grab-and-go concepts. The site includes 19 dedicated parking spaces and is surrounded by national retailers, popular fast-food establishments and other established businesses, enhancing both exposure and customer draw. Whether you're an owner-user looking to establish or expand your business, or an investor seeking a flexible, income-producing asset, this property offers a strategic location, strong visibility and endless potential.

Features

  • Property Type: Retail
  • Construction: Frame
  • Utilities: Cable Available, Electricity Connected, Natural Gas Connected, Phone Connected, Sewer Connected, Trash Collection Private, Water Connected
  • Parking: 19-car, Parking Lot
  • Levels: 1
  • Heating: Ducts, Forced Air
  • Cooling: Central Air
  • Units: 1
  • Year Built: 2001
  • Acreage: 0.5
  • Est. Taxes: $11,465
  • Lot Desc: Level
  • MLS#: 976242
  • Days on Market: 1 day
  • Website: https://www.raveis.com
    /prop/976242/2039stateroute208_montgomery_ny?source=qrflyer
Listing information has been assembled from various sources of varying degrees of reliability. Any information critical to the buying decision should be independently verified.Listing courtesy of Howard Hanna Rand Realty   Phone: 845-928-9691

William Raveis Family of Services

Our family of companies partner in delivering quality services in a one-stop-shopping environment. Together, we integrate the most comprehensive real estate, mortgage and insurance services available to fulfill your specific real estate needs.

Customer Service

888.699.8876

Contact@raveis.com

Our family of companies offer our clients a new level of full-service real estate. We shall:

  • Market your home to realize a quick sale at the best possible price
  • Place up to 20+ photos of your home on our website, raveis.com
  • Provide frequent communication and tracking reports showing the Internet views your home received on raveis.com
  • Showcase your home on raveis.com with a larger and more prominent format
  • Give you the full resources and strength of William Raveis Real Estate, Mortgage & Insurance and our cutting-edge technology

To learn more about our credentials, visit raveis.com today.

Frank KolbSenior Vice President - Coaching & Strategic, William Raveis Mortgage, LLC

NMLS Mortgage Loan Originator ID 81725

203.980.8025

Frank.Kolb@raveis.com

Our Executive Mortgage Banker:

  • Is available to meet with you in our office, your home or office, evenings or weekends
  • Offers you pre-approval in minutes!
  • Provides a guaranteed closing date that meets your needs
  • Has access to hundreds of loan programs, all at competitive rates
  • Is in constant contact with a full processing, underwriting, and closing staff to ensure an efficient transaction

Ryan FortierInsurance Sales Director, William Raveis Insurance

516.739.7731

Ryan.Fortier@raveis.com

Our Insurance Division:

  • Will Provide a home insurance quote within 24 hours
  • Offers full-service coverage such as Homeowner's, Auto, Life, Renter's, Flood and Valuable Items
  • Partners with major insurance companies including Chubb, Kemper Unitrin, The Hartford, Progressive,
    Encompass, Travelers, Fireman's Fund, Middleoak Mutual, One Beacon and American Reliable

2039 State Route 208, Montgomery, NY, 12549

$547,000

Customer Service

William Raveis Real Estate

Phone: 888.699.8876

Contact@raveis.com

Frank Kolb

Senior Vice President - Coaching & Strategic

William Raveis Mortgage, LLC

Phone: 203.980.8025

Frank.Kolb@raveis.com

NMLS Mortgage Loan Originator ID 81725

5/6 (30 Yr)
Adjustable Rate Conforming*
30 Year
Fixed-Rate Conforming
15 Year
Fixed-Rate Conforming
Loan Amount $437,600 $437,600 $437,600
Term 360 months 360 months 180 months
Initial Interest Rate** 5.990% 6.250% 5.375%
Interest Rate based on Index + Margin 8.125%
Annual Percentage Rate 6.403% 6.431% 5.668%
Monthly Tax Payment $955 $955 $955
H/O Insurance Payment $92 $92 $92
Initial Principal & Interest Pmt $2,621 $2,694 $3,547
Total Monthly Payment $3,668 $3,741 $4,594

* The Initial Interest Rate and Initial Principal & Interest Payment are fixed for the first and adjust every six months thereafter for the remainder of the loan term. The Interest Rate and annual percentage rate may increase after consummation. The Index for this product is the SOFR. The margin for this adjustable rate mortgage may vary with your unique credit history, and terms of your loan.

** Mortgage Rates are subject to change, loan amount and product restrictions and may not be available for your specific transaction at commitment or closing. Rates, and the margin for adjustable rate mortgages [if applicable], are subject to change without prior notice.

The rates and Annual Percentage Rate (APR) cited above may be only samples for the purpose of calculating payments and are based upon the following assumptions: minimum credit score of 740, 20% down payment (e.g. $20,000 down on a $100,000 purchase price), $1,950 in finance charges, and 30 days prepaid interest, 1 point, 30 day rate lock. The rates and APR will vary depending upon your unique credit history and the terms of your loan, e.g. the actual down payment percentages, points and fees for your transaction. Property taxes and homeowner's insurance are estimates and subject to change.