304 Westervelt Ave, Staten Island, NY, 10301 | $695,000

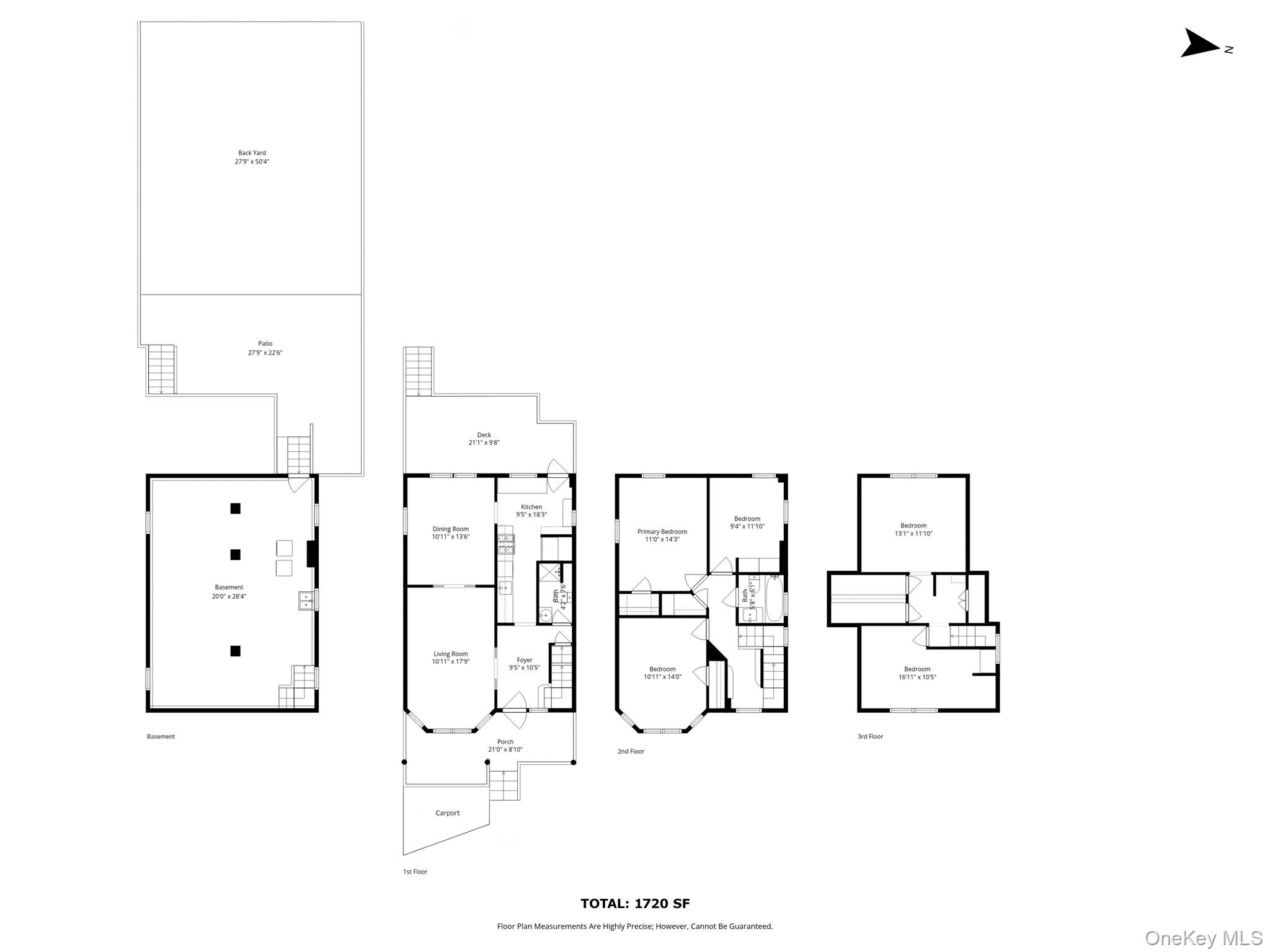
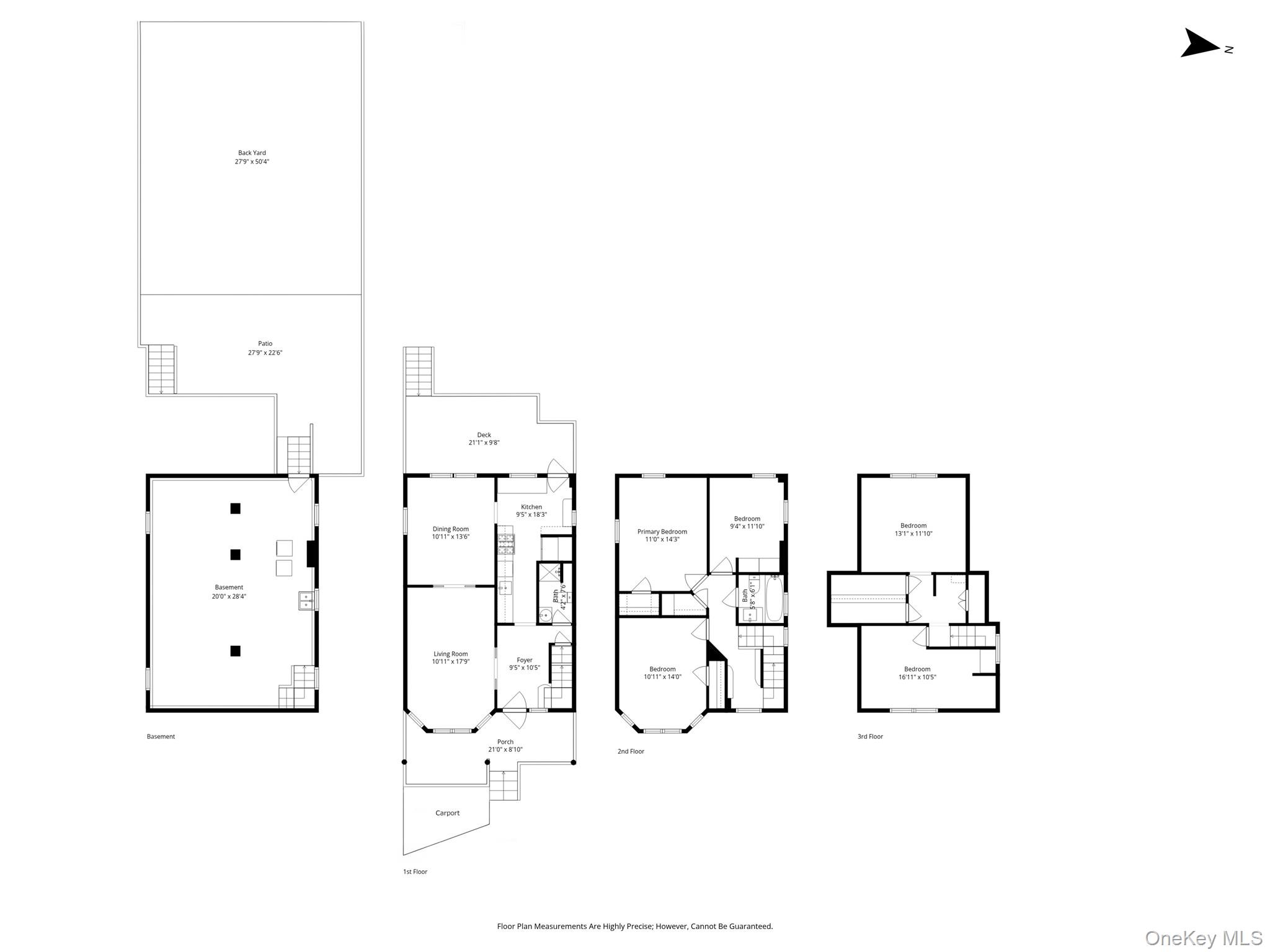
Welcome to 304 Westervelt Avenue in Saint George/ New Brighton. This 5 bedroom circa 1910 home is approx. 1720 sq. ft with original details throughout and is located in the most convenient residential neighborhood in Staten Island. There is a parking pad for one car in front. Enter the home from the restored front porch to a spacious entryway with original newel post and staircase, featuring the original frosted paneled glass entry window. The living room has original molding, trim, high ceilings and a 4 window bay overlooking the front porch. There is also a parking pad in front of the house. Details carry into the spacious formal dining room which overlooks the large rear deck and backyard . There is a spacious galley kitchen with built in microwave, dishwasher and excellent cabinet and counter space. At the rear of the kitchen is a breakfast counter, additional storage and door leading to the large deck overlooking the garden. This deck is perfect entertaining and dining al fresco. There are new pavers off the spacious 28’ by approx. 60 ft. deep garden. In addition, there is a full bathroom ( with shower stall) just off the entrance to the basement. Upstairs, the second floor has three large bedrooms with great closet space, a full bathroom and original paneled doors and details throughout. The third floor has 2 bedrooms, walk in closets and excellent storage. There is an attic above that if you choose to utilize the space. The mechanicals of the building are excellent with a new water heater, well maintained gas furnace and upgrading to the draining ( new dry well). The unfinished basement has high ceilings, a washer/dryer and there has been no issues with flooding or moisture due to the dry well. Best of all this historic home is a just a 10 minutes away from the free Staten Island ferry , NYC Fast Ferry, shops and restaurants on Hyatt Street, Stuyvesant Place, Bay Street, Empire Outlets and ferry Terminal. Don’t miss this rare opportunity to own a beautiful vintage home in one of Staten Island’s most coveted neighborhoods.

Features

  • Rooms: 9
  • Bedrooms: 5
  • Baths: 2 full
  • Laundry: In Basement
  • Style: Other
  • Year Built: 1910
  • Heating: Natural Gas
  • Cooling: Wall/Window Unit(s)
  • Basement: Finished
  • Approx Sq. Feet: 1,720
  • Acreage: 0.08
  • Est. Taxes: $5,403
  • Elem. School: Ps 31 William T Davis
  • Middle School: Is 61 William A Morris
  • High School: Curtis High School
  • School District: New York City Geographic District #31
  • Appliances: Dishwasher, Dryer, Electric Water Heater, Microwave, Oven, Refrigerator
  • MLS#: 976775
  • Days on Market: 1 day
  • Website: https://www.raveis.com
    /prop/976775/304westerveltave_statenisland_ny?source=qrflyer
Listing information has been assembled from various sources of varying degrees of reliability. Any information critical to the buying decision should be independently verified.Listing courtesy of Corcoran   Phone: 929-487-3500

William Raveis Family of Services

Our family of companies partner in delivering quality services in a one-stop-shopping environment. Together, we integrate the most comprehensive real estate, mortgage and insurance services available to fulfill your specific real estate needs.

Customer Service

888.699.8876

Contact@raveis.com

Our family of companies offer our clients a new level of full-service real estate. We shall:

  • Market your home to realize a quick sale at the best possible price
  • Place up to 20+ photos of your home on our website, raveis.com
  • Provide frequent communication and tracking reports showing the Internet views your home received on raveis.com
  • Showcase your home on raveis.com with a larger and more prominent format
  • Give you the full resources and strength of William Raveis Real Estate, Mortgage & Insurance and our cutting-edge technology

To learn more about our credentials, visit raveis.com today.

Frank KolbSenior Vice President - Coaching & Strategic, William Raveis Mortgage, LLC

NMLS Mortgage Loan Originator ID 81725

203.980.8025

Frank.Kolb@raveis.com

Our Executive Mortgage Banker:

  • Is available to meet with you in our office, your home or office, evenings or weekends
  • Offers you pre-approval in minutes!
  • Provides a guaranteed closing date that meets your needs
  • Has access to hundreds of loan programs, all at competitive rates
  • Is in constant contact with a full processing, underwriting, and closing staff to ensure an efficient transaction

Ryan FortierInsurance Sales Director, William Raveis Insurance

516.739.7731

Ryan.Fortier@raveis.com

Our Insurance Division:

  • Will Provide a home insurance quote within 24 hours
  • Offers full-service coverage such as Homeowner's, Auto, Life, Renter's, Flood and Valuable Items
  • Partners with major insurance companies including Chubb, Kemper Unitrin, The Hartford, Progressive,
    Encompass, Travelers, Fireman's Fund, Middleoak Mutual, One Beacon and American Reliable

304 Westervelt Ave, Staten Island, NY, 10301

$695,000

Customer Service

William Raveis Real Estate

Phone: 888.699.8876

Contact@raveis.com

Frank Kolb

Senior Vice President - Coaching & Strategic

William Raveis Mortgage, LLC

Phone: 203.980.8025

Frank.Kolb@raveis.com

NMLS Mortgage Loan Originator ID 81725

5/6 (30 Yr)
Adjustable Rate Conforming*
30 Year
Fixed-Rate Conforming
15 Year
Fixed-Rate Conforming
Loan Amount $556,000 $556,000 $556,000
Term 360 months 360 months 180 months
Initial Interest Rate** 6.250% 6.490% 5.750%
Interest Rate based on Index + Margin 8.125%
Annual Percentage Rate 6.507% 6.649% 6.026%
Monthly Tax Payment $450 $450 $450
H/O Insurance Payment $92 $92 $92
Initial Principal & Interest Pmt $3,423 $3,511 $4,617
Total Monthly Payment $3,965 $4,053 $5,159

* The Initial Interest Rate and Initial Principal & Interest Payment are fixed for the first and adjust every six months thereafter for the remainder of the loan term. The Interest Rate and annual percentage rate may increase after consummation. The Index for this product is the SOFR. The margin for this adjustable rate mortgage may vary with your unique credit history, and terms of your loan.

** Mortgage Rates are subject to change, loan amount and product restrictions and may not be available for your specific transaction at commitment or closing. Rates, and the margin for adjustable rate mortgages [if applicable], are subject to change without prior notice.

The rates and Annual Percentage Rate (APR) cited above may be only samples for the purpose of calculating payments and are based upon the following assumptions: minimum credit score of 740, 20% down payment (e.g. $20,000 down on a $100,000 purchase price), $1,950 in finance charges, and 30 days prepaid interest, 1 point, 30 day rate lock. The rates and APR will vary depending upon your unique credit history and the terms of your loan, e.g. the actual down payment percentages, points and fees for your transaction. Property taxes and homeowner's insurance are estimates and subject to change.