Lagrangeville, NY, 12540 | $629,000

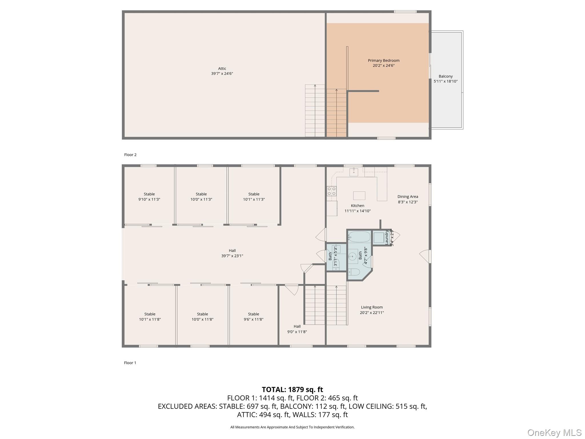
Unique Barndominium on 3+ beautiful acres in Dutchess County. 2 additional neighboring farm land parcels are also available to purchase (4+ acres and 20 acres) Set on gently rolling fields, this one-of-a-kind Barndominium offers an open, airy layout with abundant natural light - creating the perfect backdrop for country living, equestrians, art studio or a weekend getaway. Package deals available if interested in additional land, this would be an ideal horse property with attached 6-stall barn, wash stall and feed/tack room. Looking for a peaceful space for creativity? The barn would make a fabulous artist studio or contractor's warehouse - high ceiling, open floorplan and ready for your vision. The living space is attached to the barn (talk about easy access in any kind of weather!)! Enjoy wide-open views, peaceful country living, and a convenient location just minutes to shops, schools, and commuter routes. Brand new roof was installed in the Fall 2025. Gorgeous farm acreage is subdivided into 3 lots including 3+ acres with the barndominium, 4+ acres fully engineered new home site and an additional fully engineered ridgeline new home site on 20+ acres with stunning mountain views abutting million dollar homes. Whether you’re dreaming of horses in the pasture, fresh eggs in the morning, or simply a place to spread out and enjoy nature, this Lagrangeville Barndominium offers the lifestyle you’ve been looking for. If you are looking for a large creative space, artist studio or contractor's warehouse, the barn is a functional workshop space with its own half bath. The barn-side dimensions are approximately 36 x 40 (total structure including living space is 36 x 60), this property is suitable for many different purposes. Seller is finalizing the subdivision.

Features

  • Rooms: 5
  • Bedrooms: 1
  • Baths: 1 full / 1 half
  • Laundry: Inside
  • Style: Barndominium
  • Year Built: 1996
  • Heating: Electric, See Remarks
  • Cooling: Ductless
  • Basement: None
  • Approx Sq. Feet: 1,000
  • Acreage: 3.19
  • Est. Taxes: $9,680
  • Lot Desc: Cleared, Near Golf Course, Near School, Other, See Remarks, Subdivided, Views
  • View: Park/Greenbelt, Skyline
  • Elem. School: Vail Farm Elementary School
  • Middle School: Union Vale Middle School
  • High School: Arlington High School
  • School District: Arlington
  • Appliances: Dishwasher, Dryer, Microwave, Range, Refrigerator, Stainless Steel Appliance(s), Washer
  • MLS#: 916015
  • Days on Market: 102 days
  • Website: https://www.raveis.com
    /prop/916015/_lagrangeville_ny?source=qrflyer
Listing information has been assembled from various sources of varying degrees of reliability. Any information critical to the buying decision should be independently verified.

William Raveis Family of Services

Our family of companies partner in delivering quality services in a one-stop-shopping environment. Together, we integrate the most comprehensive real estate, mortgage and insurance services available to fulfill your specific real estate needs.

Monica GonzalezLuxury Properties Specialist

857.389.5963

Monica.Gonzalez@Raveis.com

Our family of companies offer our clients a new level of full-service real estate. We shall:

  • Market your home to realize a quick sale at the best possible price
  • Place up to 20+ photos of your home on our website, raveis.com
  • Provide frequent communication and tracking reports showing the Internet views your home received on raveis.com
  • Showcase your home on raveis.com with a larger and more prominent format
  • Give you the full resources and strength of William Raveis Real Estate, Mortgage & Insurance and our cutting-edge technology

To learn more about our credentials, visit raveis.com today.

Andrew van DykVP, Mortgage Banker, William Raveis Mortgage, LLC

NMLS Mortgage Loan Originator ID 23716

781.490.5670

Andrew.vanDyk@raveis.com

Our Executive Mortgage Banker:

  • Is available to meet with you in our office, your home or office, evenings or weekends
  • Offers you pre-approval in minutes!
  • Provides a guaranteed closing date that meets your needs
  • Has access to hundreds of loan programs, all at competitive rates
  • Is in constant contact with a full processing, underwriting, and closing staff to ensure an efficient transaction

Jennifer HartRegional Sales Manager, William Raveis Insurance

978.457.6220

Jennifer.Hart@raveis.com

Our Insurance Division:

  • Will Provide a home insurance quote within 24 hours
  • Offers full-service coverage such as Homeowner's, Auto, Life, Renter's, Flood and Valuable Items
  • Partners with major insurance companies including Chubb, Kemper Unitrin, The Hartford, Progressive,
    Encompass, Travelers, Fireman's Fund, Middleoak Mutual, One Beacon and American Reliable

Lagrangeville, NY, 12540

$629,000

Monica Gonzalez

Luxury Properties Specialist

William Raveis Real Estate

Phone: 857.389.5963

Monica.Gonzalez@Raveis.com

Andrew van Dyk

VP, Mortgage Banker

William Raveis Mortgage, LLC

Phone: 781.490.5670

Andrew.vanDyk@raveis.com

NMLS Mortgage Loan Originator ID 23716

5/6 (30 Yr)
Adjustable Rate Conforming*
30 Year
Fixed-Rate Conforming
15 Year
Fixed-Rate Conforming
Loan Amount $503,200 $503,200 $503,200
Term 360 months 360 months 180 months
Initial Interest Rate** 5.990% 6.250% 5.375%
Interest Rate based on Index + Margin 8.125%
Annual Percentage Rate 6.403% 6.431% 5.668%
Monthly Tax Payment $807 $807 $807
H/O Insurance Payment $92 $92 $92
Initial Principal & Interest Pmt $3,014 $3,098 $4,078
Total Monthly Payment $3,913 $3,997 $4,977

* The Initial Interest Rate and Initial Principal & Interest Payment are fixed for the first and adjust every six months thereafter for the remainder of the loan term. The Interest Rate and annual percentage rate may increase after consummation. The Index for this product is the SOFR. The margin for this adjustable rate mortgage may vary with your unique credit history, and terms of your loan.

** Mortgage Rates are subject to change, loan amount and product restrictions and may not be available for your specific transaction at commitment or closing. Rates, and the margin for adjustable rate mortgages [if applicable], are subject to change without prior notice.

The rates and Annual Percentage Rate (APR) cited above may be only samples for the purpose of calculating payments and are based upon the following assumptions: minimum credit score of 740, 20% down payment (e.g. $20,000 down on a $100,000 purchase price), $1,950 in finance charges, and 30 days prepaid interest, 1 point, 30 day rate lock. The rates and APR will vary depending upon your unique credit history and the terms of your loan, e.g. the actual down payment percentages, points and fees for your transaction. Property taxes and homeowner's insurance are estimates and subject to change.