195 Rockledge Avenue, Buchanan, NY, 10511 | $950,000

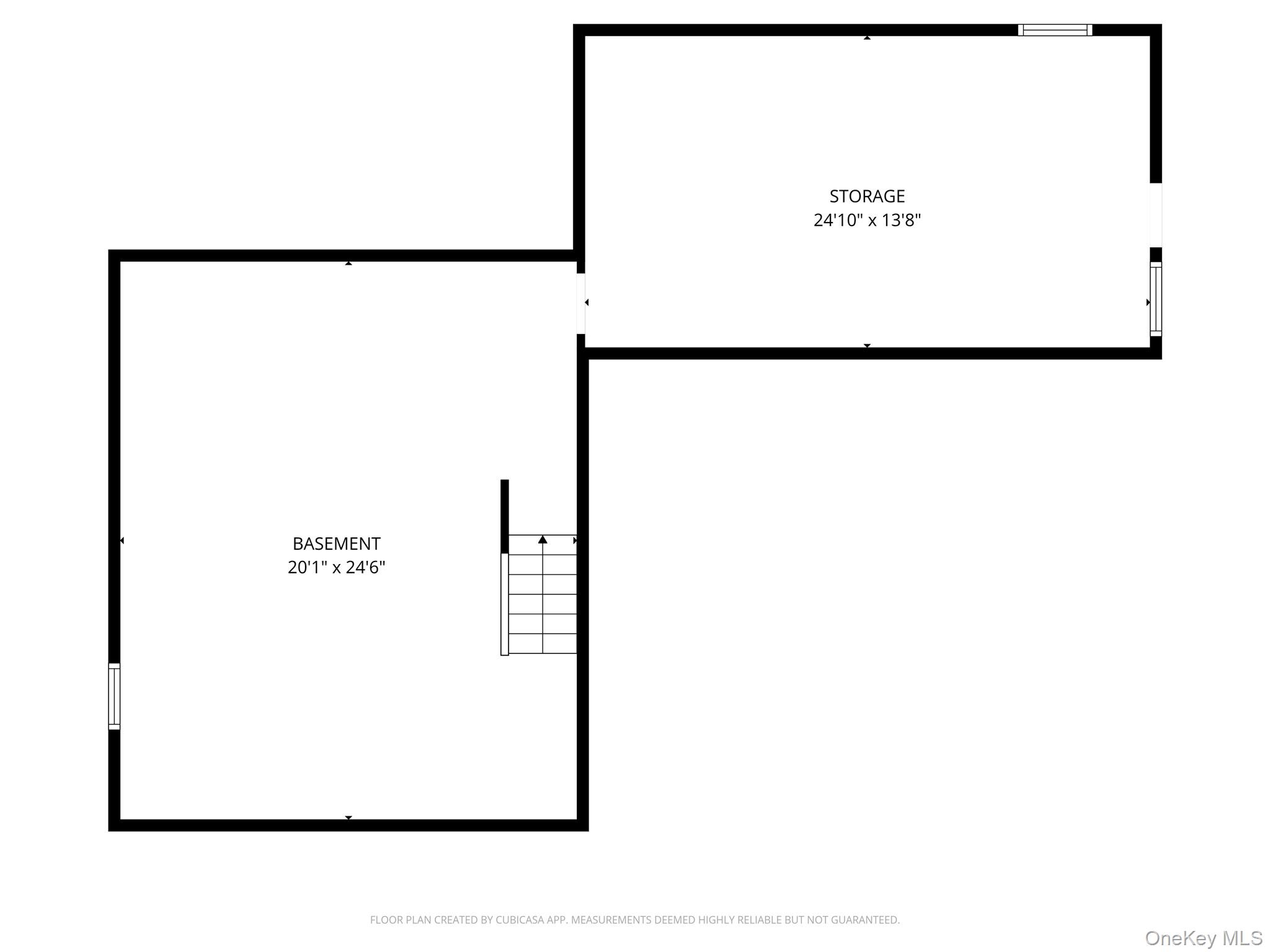
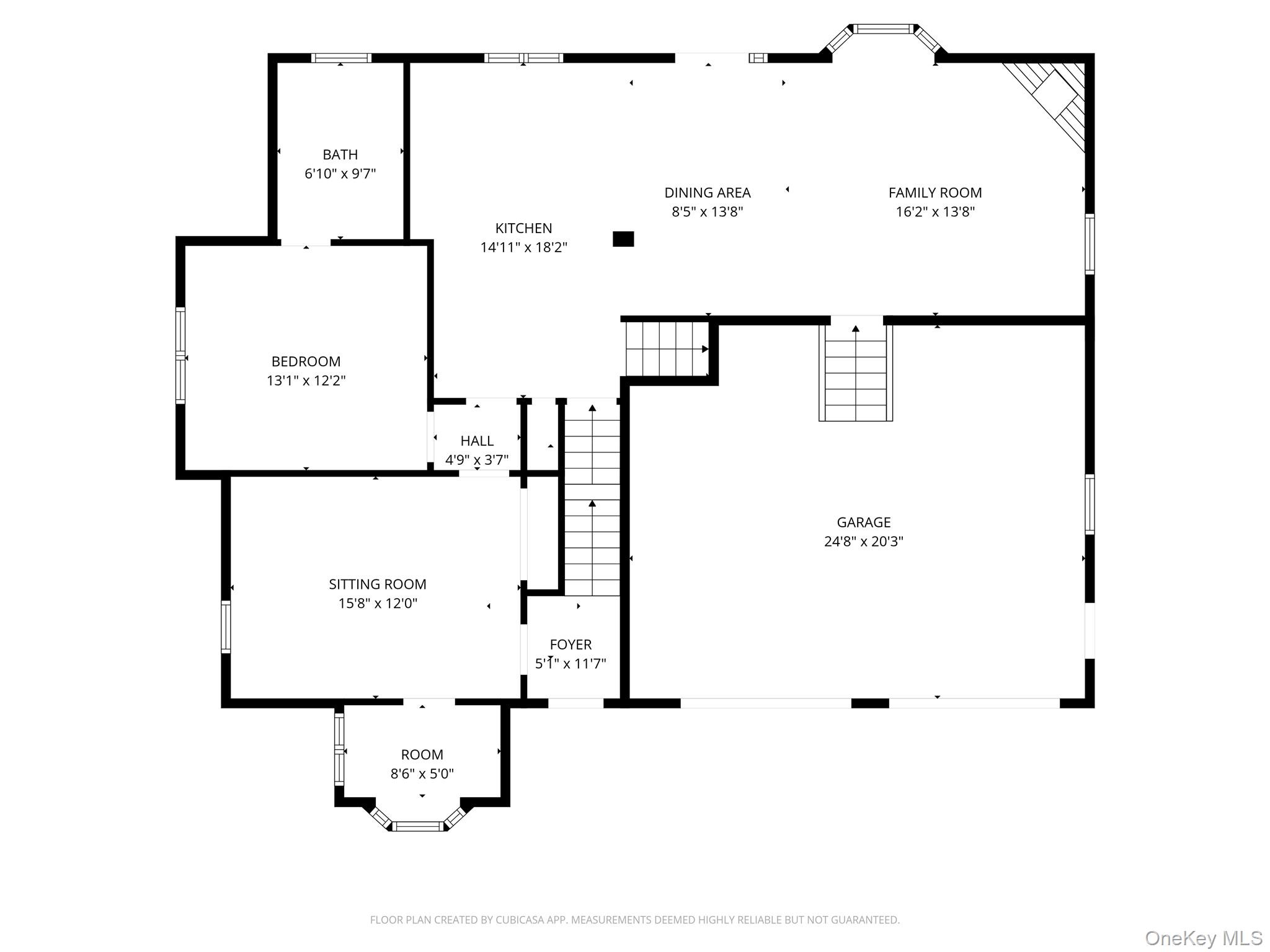
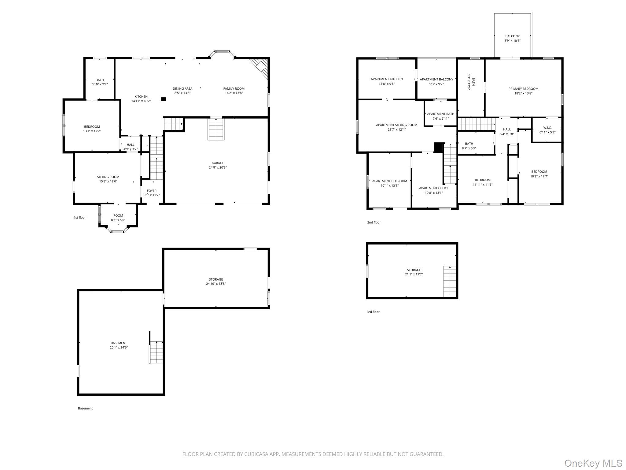
1 Bedroom unit photos and some main unit photos have been added-more photos coming today( 3/31)- Nestled in the charming village of Buchanan, New York, this rare, fully updated duplex presents an exceptional opportunity for both homeowners and investors. Truly turn-key, this property offers the perfect blend of comfort, flexibility, and modern convenience. The main two-story residence features four spacious bedrooms and three full bathrooms, thoughtfully designed for today’s lifestyle. The primary bedroom has a full bathroom and private balcony perfect for stargazing at night. . Bright, open-concept living spaces are complemented by hardwood floors throughout and well-appointed finishes that create a warm, inviting atmosphere. The living room and kitchen flow seamlessly to an oversized deck, overlooking a private backyard complete with a saltwater swimming pool and a tranquil man-made waterfall—ideal for both entertaining and everyday enjoyment. Additional highlights include abundant storage space in the basement and attic, as well as a two-car garage. An au pair or nanny suite further enhances the home’s versatility, offering flexible options for live-in assistance. Adding to the property’s appeal is a separate one-bedroom apartment located on the second floor. Perfect for rental income or guests, this private unit features its own kitchen and direct access to a rear deck—an inviting outdoor space for relaxing or entertaining. Whether you’re seeking to offset your mortgage with rental income or need flexible living arrangements, this unique duplex offers outstanding value in a desirable Hudson Valley location, just moments from the Hudson River, local parks, and convenient commuter routes.

Features

  • Bedrooms: 5
  • Baths: 4 full
  • Laundry: In Basement
  • Style: Colonial
  • Year Built: 1929
  • Garage: 2-car
  • Heating: Baseboard, Oil
  • Cooling: Wall/Window Unit(s)
  • Basement: Partial
  • Acreage: 0.32
  • Est. Taxes: $18,787
  • Lot Desc: Back Yard, Level
  • View: Neighborhood
  • Elem. School: Frank G Lindsey Elementary School
  • Middle School: Blue Mountain Middle School
  • High School: Hendrick Hudson High School
  • School District: Hendrick Hudson
  • Pool: Pool Cover, Salt Water
  • MLS#: 974221
  • Days on Market: 20 days
  • Website: https://www.raveis.com
    /prop/974221/195rockledgeavenue_buchanan_ny?source=qrflyer
Listing information has been assembled from various sources of varying degrees of reliability. Any information critical to the buying decision should be independently verified.Listing courtesy of Exp Realty   Phone: 888-276-0630

William Raveis Family of Services

Our family of companies partner in delivering quality services in a one-stop-shopping environment. Together, we integrate the most comprehensive real estate, mortgage and insurance services available to fulfill your specific real estate needs.

Customer Service

888.699.8876

Contact@raveis.com

Our family of companies offer our clients a new level of full-service real estate. We shall:

  • Market your home to realize a quick sale at the best possible price
  • Place up to 20+ photos of your home on our website, raveis.com
  • Provide frequent communication and tracking reports showing the Internet views your home received on raveis.com
  • Showcase your home on raveis.com with a larger and more prominent format
  • Give you the full resources and strength of William Raveis Real Estate, Mortgage & Insurance and our cutting-edge technology

To learn more about our credentials, visit raveis.com today.

Frank KolbSenior Vice President - Coaching & Strategic, William Raveis Mortgage, LLC

NMLS Mortgage Loan Originator ID 81725

203.980.8025

Frank.Kolb@raveis.com

Our Executive Mortgage Banker:

  • Is available to meet with you in our office, your home or office, evenings or weekends
  • Offers you pre-approval in minutes!
  • Provides a guaranteed closing date that meets your needs
  • Has access to hundreds of loan programs, all at competitive rates
  • Is in constant contact with a full processing, underwriting, and closing staff to ensure an efficient transaction

Ryan FortierInsurance Sales Director, William Raveis Insurance

516.739.7731

Ryan.Fortier@raveis.com

Our Insurance Division:

  • Will Provide a home insurance quote within 24 hours
  • Offers full-service coverage such as Homeowner's, Auto, Life, Renter's, Flood and Valuable Items
  • Partners with major insurance companies including Chubb, Kemper Unitrin, The Hartford, Progressive,
    Encompass, Travelers, Fireman's Fund, Middleoak Mutual, One Beacon and American Reliable

195 Rockledge Avenue, Buchanan, NY, 10511

$950,000

Customer Service

William Raveis Real Estate

Phone: 888.699.8876

Contact@raveis.com

Frank Kolb

Senior Vice President - Coaching & Strategic

William Raveis Mortgage, LLC

Phone: 203.980.8025

Frank.Kolb@raveis.com

NMLS Mortgage Loan Originator ID 81725

5/6 (30 Yr)
Adjustable Rate Jumbo*
30 Year
Fixed-Rate Jumbo
15 Year
Fixed-Rate Jumbo
Loan Amount $760,000 $760,000 $760,000
Term 360 months 360 months 180 months
Initial Interest Rate** 5.250% 6.000% 5.750%
Interest Rate based on Index + Margin 8.125%
Annual Percentage Rate 6.069% 6.110% 5.932%
Monthly Tax Payment $1,566 $1,566 $1,566
H/O Insurance Payment $92 $92 $92
Initial Principal & Interest Pmt $4,197 $4,557 $6,311
Total Monthly Payment $5,855 $6,215 $7,969

* The Initial Interest Rate and Initial Principal & Interest Payment are fixed for the first and adjust every six months thereafter for the remainder of the loan term. The Interest Rate and annual percentage rate may increase after consummation. The Index for this product is the SOFR. The margin for this adjustable rate mortgage may vary with your unique credit history, and terms of your loan.

** Mortgage Rates are subject to change, loan amount and product restrictions and may not be available for your specific transaction at commitment or closing. Rates, and the margin for adjustable rate mortgages [if applicable], are subject to change without prior notice.

The rates and Annual Percentage Rate (APR) cited above may be only samples for the purpose of calculating payments and are based upon the following assumptions: minimum credit score of 740, 20% down payment (e.g. $20,000 down on a $100,000 purchase price), $1,950 in finance charges, and 30 days prepaid interest, 1 point, 30 day rate lock. The rates and APR will vary depending upon your unique credit history and the terms of your loan, e.g. the actual down payment percentages, points and fees for your transaction. Property taxes and homeowner's insurance are estimates and subject to change.