18 Almond Tree Lane, Warwick, NY, 10990 | $1,395,000

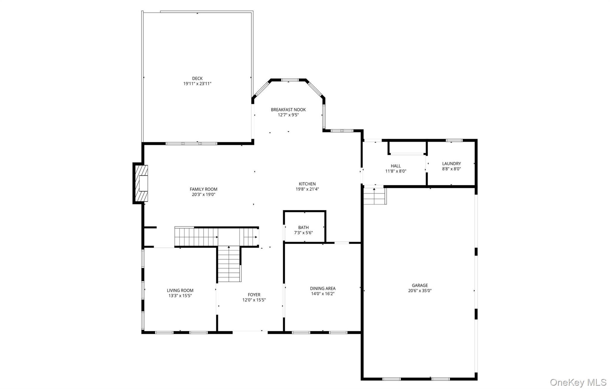
WOW . . . STUNNING 5, 802 square foot colonial/country hilltop estate with gorgeous 360 degree mountain views, full/finished walkout basement, 3-car attached garage, plus a 2-car detached garage/carriage house with partially finished loft space, AND a backyard oasis complete with in-ground pool and hot tub . . . Located in the fabulous Waterbury Estates neighborhood -- offering privacy, yet just minutes from everything . . . 5 bedrooms, 4 1/2 baths, 1. 3 beautiful acres . . . NEW: roof, hardwood, kitchen granite, laundry room granite & cabinets, all bathrooms, main level central air unit, driveway, pool hardscaping, pool cover & pump, well pump & electrical supply, fireplace insert that cuts wintertime propane bill in half, and much more (see attached Features Sheet for more details)! . . . MAIN LEVEL offers elegance and comfort with a living room, family room (with wood-burning fireplace), open chef’s kitchen (with huge island that seats 4, gas cooktop, dual wall ovens, Sub-Zero refrigerator), breakfast nook leading to 24x20 deck, powder room, laundry room and mud room . . . UPSTAIRS finds 5 bedrooms, including the 500+ square foot primary en suite with THREE walk-in closets and a 32x64 primary bathroom with radiant heat, double vanity, double shower & soaking tub, two other full bathrooms, and a sitting area . . . LOWER LEVEL (1, 606 square feet!) features media room (home theater & surround sound staying), rec room, office, full bath and ample storage . . . BACKYARD is highlighted by heated pool (gunite) with plenty of deck space for sunning and surrounded by a perennial butterfly garden, hot tub, and plenty of lawn space . . . DETACHED GARAGE (25x26) includes generous workspace area, as well as a staircase to 375 square feet of loft space perfect as an office or art space, and with additional side storage, as well as a 30 amp RV hookup . . . There’s also a whole house water filtration system, along with saltless EZ Water Softener . . . An entertainer’s delight, too (and driveway can accommodate up to 7 cars) . . . This magnificent property basks in sunlight all day, as the sun rises in the back and sets in the front -- and oh those incredible views!

Features

  • Rooms: 18
  • Bedrooms: 5
  • Baths: 4 full / 1 half
  • Laundry: Laundry Room
  • Style: Colonial, Mini Estate
  • Year Built: 1993
  • Garage: 5-car
  • Heating: Baseboard, Propane, Radiant, Radiant Floor
  • Cooling: Central Air
  • Basement: Finished, Full, Storage Space, Walk-Out Access
  • Approx Sq. Feet: 5,802
  • Acreage: 1.3
  • Est. Taxes: $19,561
  • Lot Desc: Back Yard, Front Yard, Landscaped, Near Golf Course, Near Public Transit, Near School, Near Shops, See Remarks, Views
  • View: Mountain(s), Panoramic
  • Elem. School: Sanfordville Elementary School
  • Middle School: Warwick Valley Middle School
  • High School: Warwick Valley High School
  • School District: Warwick Valley
  • Pool: In Ground
  • Appliances: Dishwasher, Gas Cooktop, Oven, Range, Refrigerator, Stainless Steel Appliance(s)
  • MLS#: 972342
  • Days on Market: 4 days
  • Website: https://www.raveis.com
    /eprop/972342/18almondtreelane_warwick_ny?source=qrflyer
Listing information has been assembled from various sources of varying degrees of reliability. Any information critical to the buying decision should be independently verified.Listing courtesy of Keller Williams Realty Boston Northwest   Phone: 845-928-8000

William Raveis Family of Services

Our family of companies partner in delivering quality services in a one-stop-shopping environment. Together, we integrate the most comprehensive real estate, mortgage and insurance services available to fulfill your specific real estate needs.

Customer Service

888.699.8876

Contact@raveis.com

Our family of companies offer our clients a new level of full-service real estate. We shall:

  • Market your home to realize a quick sale at the best possible price
  • Place up to 20+ photos of your home on our website, raveis.com
  • Provide frequent communication and tracking reports showing the Internet views your home received on raveis.com
  • Showcase your home on raveis.com with a larger and more prominent format
  • Give you the full resources and strength of William Raveis Real Estate, Mortgage & Insurance and our cutting-edge technology

To learn more about our credentials, visit raveis.com today.

Frank KolbSenior Vice President - Coaching & Strategic, William Raveis Mortgage, LLC

NMLS Mortgage Loan Originator ID 81725

203.980.8025

Frank.Kolb@raveis.com

Our Executive Mortgage Banker:

  • Is available to meet with you in our office, your home or office, evenings or weekends
  • Offers you pre-approval in minutes!
  • Provides a guaranteed closing date that meets your needs
  • Has access to hundreds of loan programs, all at competitive rates
  • Is in constant contact with a full processing, underwriting, and closing staff to ensure an efficient transaction

Ryan FortierInsurance Sales Director, William Raveis Insurance

516.739.7731

Ryan.Fortier@raveis.com

Our Insurance Division:

  • Will Provide a home insurance quote within 24 hours
  • Offers full-service coverage such as Homeowner's, Auto, Life, Renter's, Flood and Valuable Items
  • Partners with major insurance companies including Chubb, Kemper Unitrin, The Hartford, Progressive,
    Encompass, Travelers, Fireman's Fund, Middleoak Mutual, One Beacon and American Reliable

18 Almond Tree Lane, Warwick, NY, 10990

$1,395,000

Customer Service

William Raveis Real Estate

Phone: 888.699.8876

Contact@raveis.com

Frank Kolb

Senior Vice President - Coaching & Strategic

William Raveis Mortgage, LLC

Phone: 203.980.8025

Frank.Kolb@raveis.com

NMLS Mortgage Loan Originator ID 81725

5/6 (30 Yr)
Adjustable Rate Jumbo*
30 Year
Fixed-Rate Jumbo
15 Year
Fixed-Rate Jumbo
Loan Amount $1,116,000 $1,116,000 $1,116,000
Term 360 months 360 months 180 months
Initial Interest Rate** 5.375% 6.000% 5.750%
Interest Rate based on Index + Margin 8.125%
Annual Percentage Rate 6.117% 6.110% 5.932%
Monthly Tax Payment $1,630 $1,630 $1,630
H/O Insurance Payment $125 $125 $125
Initial Principal & Interest Pmt $6,249 $6,691 $9,267
Total Monthly Payment $8,004 $8,446 $11,022

* The Initial Interest Rate and Initial Principal & Interest Payment are fixed for the first and adjust every six months thereafter for the remainder of the loan term. The Interest Rate and annual percentage rate may increase after consummation. The Index for this product is the SOFR. The margin for this adjustable rate mortgage may vary with your unique credit history, and terms of your loan.

** Mortgage Rates are subject to change, loan amount and product restrictions and may not be available for your specific transaction at commitment or closing. Rates, and the margin for adjustable rate mortgages [if applicable], are subject to change without prior notice.

The rates and Annual Percentage Rate (APR) cited above may be only samples for the purpose of calculating payments and are based upon the following assumptions: minimum credit score of 740, 20% down payment (e.g. $20,000 down on a $100,000 purchase price), $1,950 in finance charges, and 30 days prepaid interest, 1 point, 30 day rate lock. The rates and APR will vary depending upon your unique credit history and the terms of your loan, e.g. the actual down payment percentages, points and fees for your transaction. Property taxes and homeowner's insurance are estimates and subject to change.