500 Nelson Avenue, Peekskill, NY, 10566 | $575,000

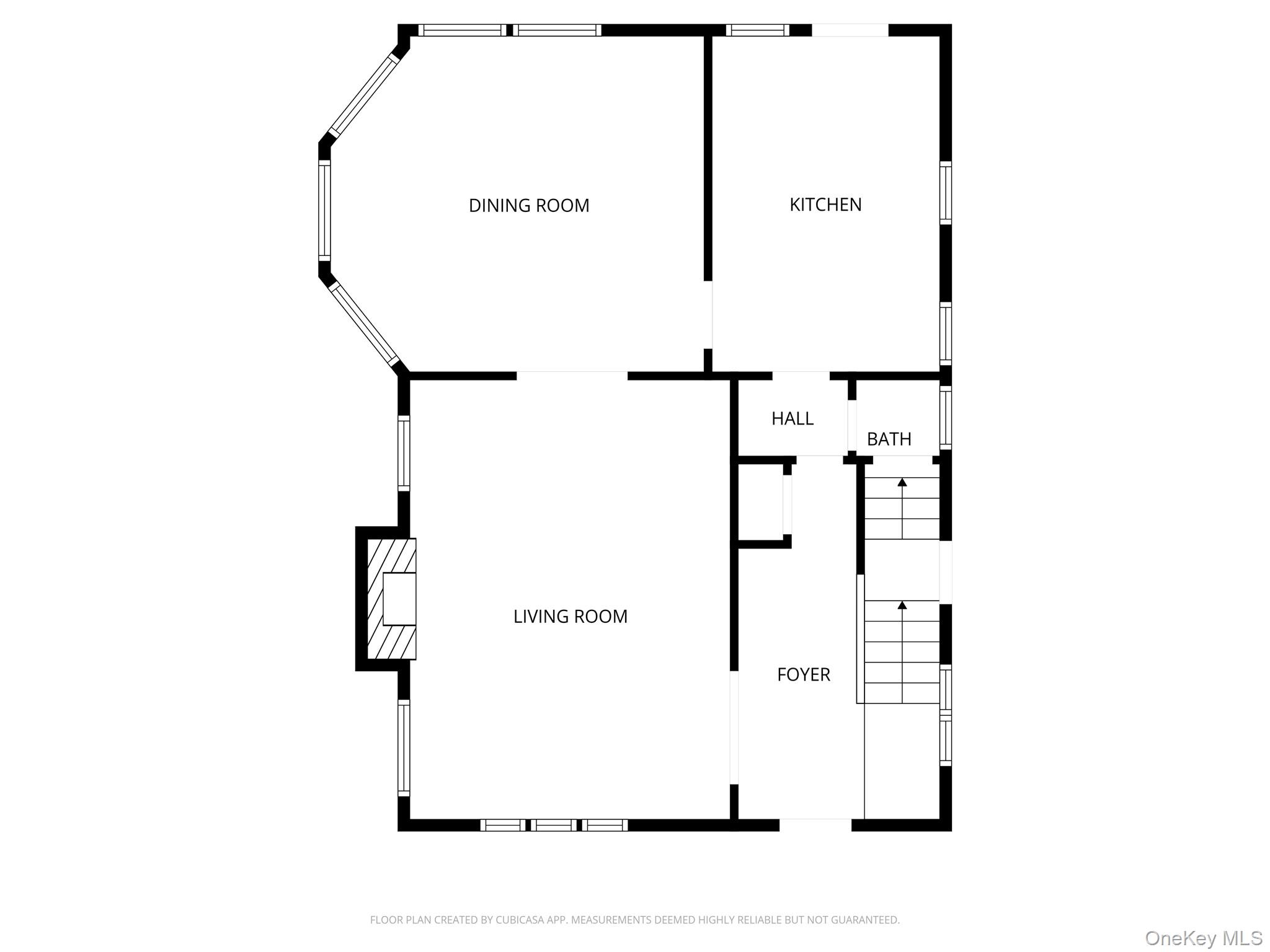
Welcome to Fort Hill House, a picture-perfect circa 1923 Craftsman-style house on a quiet corner in Peekskill's Nelson Avenue–Fort Hill Historic District. Situated just one hour north of New York City, this charming home offers two full floors of original character, thoughtful updates, and a backyard that rewards every season. The covered front porch opens to a gracious entry and a living room anchored by a working fireplace with its original mantel. Coffered ceilings and wide hardwood floors carry through both levels, and cohesive wood trim and original millwork give the home a quiet architectural integrity. The sun-filled formal dining room connects to a renovated kitchen with pantry and half bath. The upper level has three bedrooms, one with a generous walk-in closet, and a beautifully renovated full bathroom with soaking tub and handsome tilework. A new washer and dryer complete the upper floor, and new windows were installed in 2024. Outside, the dual-level backyard is among the most considered in the neighborhood. A broad bluestone patio anchors the lower level, with ivy-covered steps rising to a fire pit terrace and grassy upper area, partially shaded and opening to panoramic hilltop views. A detached two-car garage and off-street parking sit at the back of the property. The gardens have been planted with care: black-eyed susan, coneflower, milkweed, stonecrop, allium, and four hydrangeas, including a hydrangea tree, fill the back garden alongside strawberry, rosemary, and thyme. A row of peonies line the fence, lilac bushes frame the front and side of the house, and a pink dogwood explodes with color each spring. Peekskill's Fort Hill neighborhood sits one block from historic Fort Hill Park, and steps from the Paramount Hudson Valley Theater, Riverfront Green, and a walkable downtown with cafés and restaurants that have made the city one of the Hudson Valley's most vibrant and peaceful communities. With the Peekskill Metro-North station five minutes away and Grand Central Terminal just over an hour by train, Fort Hill House delivers historic character and exceptional outdoor living with an easy connection to the city.

Features

  • Rooms: 6
  • Bedrooms: 3
  • Baths: 1 full / 1 half
  • Laundry: Laundry Room
  • Style: Craftsman
  • Year Built: 1923
  • Garage: 2-car
  • Heating: Hot Water
  • Cooling: Wall/Window Unit(s)
  • Basement: Full, Storage Space, Unfinished
  • Approx Sq. Feet: 1,495
  • Acreage: 0.17
  • Est. Taxes: $12,487
  • Lot Desc: Corner Lot, Garden, Historic District, Part Wooded, Sloped, Stone/Brick Wall, Views
  • View: City, Neighborhood, Panoramic, Trees/Woods
  • Elem. School: Uriah Hill School
  • Middle School: Peekskill Middle School
  • High School: Peekskill High School
  • School District: Peekskill
  • Appliances: Dishwasher, Dryer, Freezer, Microwave, Range, Refrigerator, Washer
  • MLS#: 972438
  • Days on Market: 17 days
  • Website: https://www.raveis.com
    /prop/972438/500nelsonavenue_peekskill_ny?source=qrflyer
Listing information has been assembled from various sources of varying degrees of reliability. Any information critical to the buying decision should be independently verified.Listing courtesy of HOULIHAN LAWRENCE, INC   Phone: 518-822-0300

William Raveis Family of Services

Our family of companies partner in delivering quality services in a one-stop-shopping environment. Together, we integrate the most comprehensive real estate, mortgage and insurance services available to fulfill your specific real estate needs.

Customer Service

888.699.8876

Contact@raveis.com

Our family of companies offer our clients a new level of full-service real estate. We shall:

  • Market your home to realize a quick sale at the best possible price
  • Place up to 20+ photos of your home on our website, raveis.com
  • Provide frequent communication and tracking reports showing the Internet views your home received on raveis.com
  • Showcase your home on raveis.com with a larger and more prominent format
  • Give you the full resources and strength of William Raveis Real Estate, Mortgage & Insurance and our cutting-edge technology

To learn more about our credentials, visit raveis.com today.

Frank KolbSenior Vice President - Coaching & Strategic, William Raveis Mortgage, LLC

NMLS Mortgage Loan Originator ID 81725

203.980.8025

Frank.Kolb@raveis.com

Our Executive Mortgage Banker:

  • Is available to meet with you in our office, your home or office, evenings or weekends
  • Offers you pre-approval in minutes!
  • Provides a guaranteed closing date that meets your needs
  • Has access to hundreds of loan programs, all at competitive rates
  • Is in constant contact with a full processing, underwriting, and closing staff to ensure an efficient transaction

Ryan FortierInsurance Sales Director, William Raveis Insurance

516.739.7731

Ryan.Fortier@raveis.com

Our Insurance Division:

  • Will Provide a home insurance quote within 24 hours
  • Offers full-service coverage such as Homeowner's, Auto, Life, Renter's, Flood and Valuable Items
  • Partners with major insurance companies including Chubb, Kemper Unitrin, The Hartford, Progressive,
    Encompass, Travelers, Fireman's Fund, Middleoak Mutual, One Beacon and American Reliable

500 Nelson Avenue, Peekskill, NY, 10566

$575,000

Customer Service

William Raveis Real Estate

Phone: 888.699.8876

Contact@raveis.com

Frank Kolb

Senior Vice President - Coaching & Strategic

William Raveis Mortgage, LLC

Phone: 203.980.8025

Frank.Kolb@raveis.com

NMLS Mortgage Loan Originator ID 81725

5/6 (30 Yr)
Adjustable Rate Conforming*
30 Year
Fixed-Rate Conforming
15 Year
Fixed-Rate Conforming
Loan Amount $460,000 $460,000 $460,000
Term 360 months 360 months 180 months
Initial Interest Rate** 5.990% 6.250% 5.375%
Interest Rate based on Index + Margin 8.125%
Annual Percentage Rate 6.403% 6.431% 5.668%
Monthly Tax Payment $1,041 $1,041 $1,041
H/O Insurance Payment $92 $92 $92
Initial Principal & Interest Pmt $2,755 $2,832 $3,728
Total Monthly Payment $3,888 $3,965 $4,861

* The Initial Interest Rate and Initial Principal & Interest Payment are fixed for the first and adjust every six months thereafter for the remainder of the loan term. The Interest Rate and annual percentage rate may increase after consummation. The Index for this product is the SOFR. The margin for this adjustable rate mortgage may vary with your unique credit history, and terms of your loan.

** Mortgage Rates are subject to change, loan amount and product restrictions and may not be available for your specific transaction at commitment or closing. Rates, and the margin for adjustable rate mortgages [if applicable], are subject to change without prior notice.

The rates and Annual Percentage Rate (APR) cited above may be only samples for the purpose of calculating payments and are based upon the following assumptions: minimum credit score of 740, 20% down payment (e.g. $20,000 down on a $100,000 purchase price), $1,950 in finance charges, and 30 days prepaid interest, 1 point, 30 day rate lock. The rates and APR will vary depending upon your unique credit history and the terms of your loan, e.g. the actual down payment percentages, points and fees for your transaction. Property taxes and homeowner's insurance are estimates and subject to change.