441 Briggs Drive, Easley, SC, 29642 | $392,990

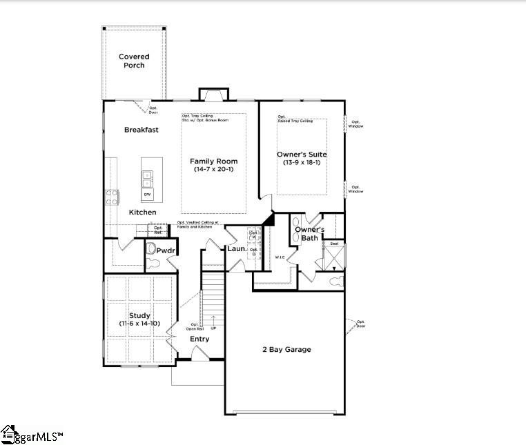
Welcome to The Reserve at Livingston Park! We are the only new homes in Easley with upscale features just off Hwy 123. The Middleton Design offers craftsman-style architecture at its finest with large windows allowing the sun to glisten throughout the home. When you enter you will be greeted by your 2 story foyer and adjacent study with cofffered ceilings and french doors which leads into your butlers pantry for extra prep space and storage with the double door pantry. Continuing into your open concept kitchen and living room, you will be wowed by the beautiful dark cabinetry, Quartz countertops, tiled backsplash, center island with sink along with upgraded stainless steel gas appliances. The living room features trey ceilings and tall windows for lots of natural light along with a gas fireplace with stone surround. The breakfast room leads out to the covered back porch which overlooks your large backyard. The Primary Suite is situated off the living room and features an expansive walk in closet, double vanities and tiled shower with seat and frameless glass door. The walk in laundry room and powder room complete the main level. As you go up the Oak staircase off the foyer, you have three additional bedrooms, two full bathrooms and a large multi use room. Smart home technology, energy-efficient construction, and a dedicated local warranty team ensure lasting convenience and comfort. The Reserve at Livingston Park is conveniently located in the sought after Easley, SC area only 11 miles from downtown Greenville and 20 miles from Table Rock, Clemson University, Lake Hartwell, and Lake Keowee. Behind the community, the mile-long phase 1 of the Brushy Creek Greenway Trail leads directly to the impressive J. B. Owens Recreation Complex. Enjoy shopping in the rapidly growing city of Easley and nearby Powdersville. Access to sought-after schools, ample employment, easy commuting, and Interstate 85. Located near plenty of shopping, restaurants, and parks on the Highway 123 corridor including the Doodle Trail and Nalley Brown Nature Park.

Features

  • Amenities: Street Lights
  • Bedrooms: 4
  • Baths: 3 full / 1 half
  • Laundry: 1st Floor, Walk-in, Electric Dryer Hookup
  • Style: Craftsman
  • Year Built: 2026
  • Garage: 2-car Attached
  • Heating: Natural Gas
  • Cooling: Electric
  • Basement: None
  • Acreage: 0.17
  • Est. Taxes: $0
  • HOA Fee: $548 Other
  • Lot Desc: 1/2 Acre or Less
  • Elem. School: Forest Acres
  • Middle School: Richard H. Gettys
  • High School: Easley
  • Appliances: Dishwasher, Disposal, Free-Standing Gas Range, Self Cleaning Oven, Gas Oven, Microwave, Gas Water Heater
  • MLS#: 1584322
  • Days on Market: 3 days
  • Website: https://www.raveis.com
    /prop/1584322/441briggsdrive_easley_sc?source=qrflyer
Copyright © 2026  Greater Greenville Association of REALTORS®. All rights reserved
This information is deemed reliable, but not guaranteed. The data relating to real estate displayed on this Site comes in part from the IDX Program of Greater Greenville Association of REALTORs. The information being provided is for consumers' personal, non-commercial use and may not be used for any purpose other than to identify prospective properties consumers may be interested in purchasing.
Listing courtesy of DRB Group South Carolina, LLC   Phone: 864-729-4168

William Raveis Family of Services

Our family of companies partner in delivering quality services in a one-stop-shopping environment. Together, we integrate the most comprehensive real estate, mortgage and insurance services available to fulfill your specific real estate needs.

Customer Service

888.699.8876

Contact@raveis.com

Our family of companies offer our clients a new level of full-service real estate. We shall:

  • Market your home to realize a quick sale at the best possible price
  • Place up to 20+ photos of your home on our website, raveis.com
  • Provide frequent communication and tracking reports showing the Internet views your home received on raveis.com
  • Showcase your home on raveis.com with a larger and more prominent format
  • Give you the full resources and strength of William Raveis Real Estate, Mortgage & Insurance and our cutting-edge technology

To learn more about our credentials, visit raveis.com today.

Melissa CohnRVP, Mortgage Banker, William Raveis Mortgage, LLC

NMLS Mortgage Loan Originator ID 16953

917.838.7300

Melissa.Cohn@raveis.com

Our Executive Mortgage Banker:

  • Is available to meet with you in our office, your home or office, evenings or weekends
  • Offers you pre-approval in minutes!
  • Provides a guaranteed closing date that meets your needs
  • Has access to hundreds of loan programs, all at competitive rates
  • Is in constant contact with a full processing, underwriting, and closing staff to ensure an efficient transaction

441 Briggs Drive, Easley, SC, 29642

$392,990

Customer Service

William Raveis Real Estate

Phone: 888.699.8876

Contact@raveis.com

Melissa Cohn

RVP, Mortgage Banker

William Raveis Mortgage, LLC

Phone: 917.838.7300

Melissa.Cohn@raveis.com

NMLS Mortgage Loan Originator ID 16953

5/6 (30 Yr)
Adjustable Rate Conforming*
30 Year
Fixed-Rate Conforming
15 Year
Fixed-Rate Conforming
Loan Amount $314,392 $314,392 $314,392
Term 360 months 360 months 180 months
Initial Interest Rate** 5.875% 6.250% 5.375%
Interest Rate based on Index + Margin 8.125%
Annual Percentage Rate 6.357% 6.419% 5.668%
Monthly Tax Payment $0 $0 $0
H/O Insurance Payment $75 $75 $75
Initial Principal & Interest Pmt $1,860 $1,936 $2,548
Total Monthly Payment $1,935 $2,011 $2,623

* The Initial Interest Rate and Initial Principal & Interest Payment are fixed for the first and adjust every six months thereafter for the remainder of the loan term. The Interest Rate and annual percentage rate may increase after consummation. The Index for this product is the SOFR. The margin for this adjustable rate mortgage may vary with your unique credit history, and terms of your loan.

** Mortgage Rates are subject to change, loan amount and product restrictions and may not be available for your specific transaction at commitment or closing. Rates, and the margin for adjustable rate mortgages [if applicable], are subject to change without prior notice.

The rates and Annual Percentage Rate (APR) cited above may be only samples for the purpose of calculating payments and are based upon the following assumptions: minimum credit score of 740, 20% down payment (e.g. $20,000 down on a $100,000 purchase price), $1,950 in finance charges, and 30 days prepaid interest, 1 point, 30 day rate lock. The rates and APR will vary depending upon your unique credit history and the terms of your loan, e.g. the actual down payment percentages, points and fees for your transaction. Property taxes and homeowner's insurance are estimates and subject to change.  The Total Monthly Payment does not include the estimated HOA/Common Charge payment.