Lot 37 Gail Circle, Rocky Point, NY, 11778 | $764,999

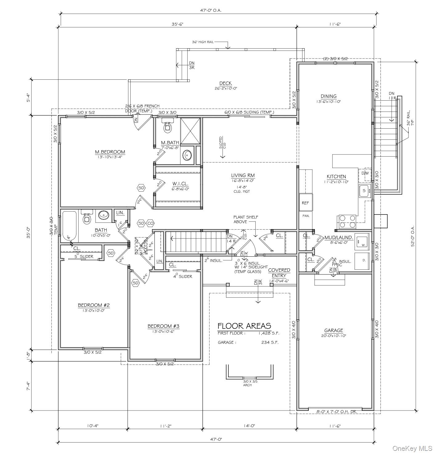
New Construction – To Be Built - The Terra Collection at The Estates at Rocky Point Welcome to The Terra Hudson Ranch, a beautifully designed one-level ranch home by Long Island’s premier builder, Terra Construction Group, located in the desirable Estates at Rocky Point. This thoughtfully crafted home offers approximately 1, 428 square feet of comfortable living space, featuring 3 bedrooms, 2 full bathrooms, a 1-car garage, partial basement, mudroom/laundry room, and soaring ceilings that enhance the open feel of the home. The bright and inviting layout showcases a dramatic living room with 14-foot ceilings, creating a spacious and airy focal point for the home. Elegant red oak or engineered white oak flooring, custom interior moldings, and an open-concept design seamlessly connect the living room, dining area, and kitchen—perfect for both everyday living and entertaining. The designer kitchen features shaker-style maple cabinetry with 42” wall cabinets, quartz countertops, ceramic tile backsplash, stainless steel sink with Kohler or Delta pull-out faucet, and a premium stainless appliance package including a 36” refrigerator with ice and water, 30” gas range with stainless canopy hood, built-in microwave, and stainless dishwasher. The primary suite offers a private retreat featuring a custom tiled shower with glass door, ceramic tile floors, custom maple vanity with granite or quartz countertop, and Kohler or Delta fixtures. Two additional bedrooms provide comfortable space for guests, or a home office. Additional conveniences include a dedicated mudroom with laundry area, providing practical everyday functionality directly off the garage. Built with quality and efficiency in mind, the home includes central air conditioning, energy-efficient insulation, PEX plumbing, and high-quality construction throughout. Exterior highlights include maintenance-free vinyl siding, 30-year architectural roof shingles, vinyl double-hung windows, asphalt driveway with paver border and walkway, underground utilities, seeded lawn, and an in-ground sprinkler system (up to 10 zones). The home is also solar-ready for future energy efficiency. Enjoy the ease of one-floor living with dramatic ceiling heights, modern finishes, and quality craftsmanship in this exciting new community.

Features

  • Rooms: 6
  • Bedrooms: 3
  • Baths: 2 full
  • Laundry: Laundry Room
  • Style: Ranch
  • Year Built: 2026
  • Garage: 1-car
  • Heating: Forced Air, Natural Gas
  • Cooling: Central Air
  • Basement: Partial, Unfinished, Walk-Out Access
  • Approx Sq. Feet: 1,428
  • Acreage: 0.34
  • Est. Taxes: $0
  • Elem. School: Joseph A Edgar Intermediate Sch
  • Middle School: Rocky Point Middle School
  • High School: Rocky Point High School
  • School District: Rocky Point
  • Appliances: Dishwasher, Dryer, ENERGY STAR Qualified Appliances, Exhaust Fan, Gas Oven, Microwave, Refrigerator, Stainless Steel Appliance(s), Tankless Water Heater
  • MLS#: 968224
  • Days on Market: 24 days
  • Website: https://www.raveis.com
    /prop/968224/lot37gailcircle_rockypoint_ny?source=qrflyer
Listing information has been assembled from various sources of varying degrees of reliability. Any information critical to the buying decision should be independently verified.

William Raveis Family of Services

Our family of companies partner in delivering quality services in a one-stop-shopping environment. Together, we integrate the most comprehensive real estate, mortgage and insurance services available to fulfill your specific real estate needs.

Lisa KohLicensed Associate Real Estate Broker

914.772.6172

Lisa.Koh@raveis.com

Our family of companies offer our clients a new level of full-service real estate. We shall:

  • Market your home to realize a quick sale at the best possible price
  • Place up to 20+ photos of your home on our website, raveis.com
  • Provide frequent communication and tracking reports showing the Internet views your home received on raveis.com
  • Showcase your home on raveis.com with a larger and more prominent format
  • Give you the full resources and strength of William Raveis Real Estate, Mortgage & Insurance and our cutting-edge technology

To learn more about our credentials, visit raveis.com today.

Vincent DiMellaVP, Mortgage Banker, William Raveis Mortgage, LLC

NMLS Mortgage Loan Originator ID 24240

914.494.1459

Vincent.DiMella@raveis.com

Our Executive Mortgage Banker:

  • Is available to meet with you in our office, your home or office, evenings or weekends
  • Offers you pre-approval in minutes!
  • Provides a guaranteed closing date that meets your needs
  • Has access to hundreds of loan programs, all at competitive rates
  • Is in constant contact with a full processing, underwriting, and closing staff to ensure an efficient transaction

Ryan FortierInsurance Sales Director, William Raveis Insurance

516.739.7731

Ryan.Fortier@raveis.com

Our Insurance Division:

  • Will Provide a home insurance quote within 24 hours
  • Offers full-service coverage such as Homeowner's, Auto, Life, Renter's, Flood and Valuable Items
  • Partners with major insurance companies including Chubb, Kemper Unitrin, The Hartford, Progressive,
    Encompass, Travelers, Fireman's Fund, Middleoak Mutual, One Beacon and American Reliable

Lot 37 Gail Circle, Rocky Point, NY, 11778

$764,999

Lisa Koh

Licensed Associate Real Estate Broker

William Raveis Real Estate

Phone: 914.772.6172

Lisa.Koh@raveis.com

Vincent DiMella

VP, Mortgage Banker

William Raveis Mortgage, LLC

Phone: 914.494.1459

Vincent.DiMella@raveis.com

NMLS Mortgage Loan Originator ID 24240

5/6 (30 Yr)
Adjustable Rate Conforming*
30 Year
Fixed-Rate Conforming
15 Year
Fixed-Rate Conforming
Loan Amount $611,999 $611,999 $611,999
Term 360 months 360 months 180 months
Initial Interest Rate** 5.875% 6.375% 5.500%
Interest Rate based on Index + Margin 8.125%
Annual Percentage Rate 6.357% 6.533% 5.794%
Monthly Tax Payment $0 $0 $0
H/O Insurance Payment $92 $92 $92
Initial Principal & Interest Pmt $3,620 $3,818 $5,001
Total Monthly Payment $3,712 $3,910 $5,093

* The Initial Interest Rate and Initial Principal & Interest Payment are fixed for the first and adjust every six months thereafter for the remainder of the loan term. The Interest Rate and annual percentage rate may increase after consummation. The Index for this product is the SOFR. The margin for this adjustable rate mortgage may vary with your unique credit history, and terms of your loan.

** Mortgage Rates are subject to change, loan amount and product restrictions and may not be available for your specific transaction at commitment or closing. Rates, and the margin for adjustable rate mortgages [if applicable], are subject to change without prior notice.

The rates and Annual Percentage Rate (APR) cited above may be only samples for the purpose of calculating payments and are based upon the following assumptions: minimum credit score of 740, 20% down payment (e.g. $20,000 down on a $100,000 purchase price), $1,950 in finance charges, and 30 days prepaid interest, 1 point, 30 day rate lock. The rates and APR will vary depending upon your unique credit history and the terms of your loan, e.g. the actual down payment percentages, points and fees for your transaction. Property taxes and homeowner's insurance are estimates and subject to change.