860 Grand Concourse, #7F, Bronx, NY, 10451 | $235,000

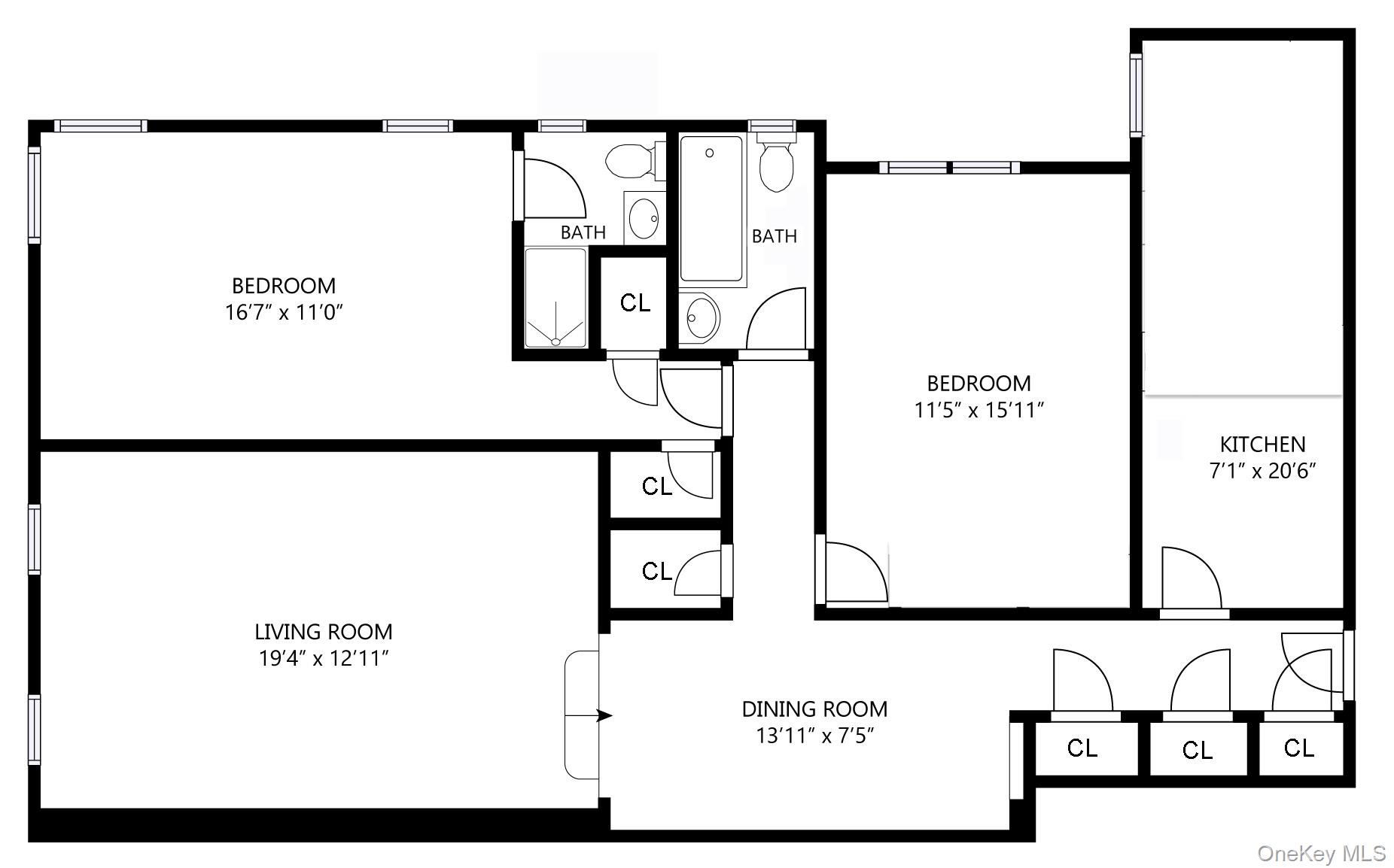
This top-floor two-bedroom, two-bathroom residence presents a rare opportunity to restore or reimagine a distinctive prewar Art Deco apartment in estate condition on the Grand Concourse. An apartment with the identical layout recently sold for over $150, 000 more than the current asking price. The exceptional layout begins with an entry hall leading into a generous dining foyer with space for a large table. From here, a graceful archway opens into the dramatic dropped living room. Located on the top floor, the living room features higher ceilings and taller windows than those on the floors below, bringing in excellent southern light. The unusually large, windowed eat-in kitchen stretches more than twenty feet and offers remarkable possibilities for redesign. Two well-proportioned bedrooms are positioned along the private hallway, including a spacious corner primary suite highlighted by an oversized corner window with views toward the Grand Concourse and the landmark Bronx Supreme Courthouse. Both bathrooms are original, with striking burgundy fixtures and trim set against pale blush tile walls. Exceptional closet space is found throughout the apartment. Built in 1941, the cooperative offers a part-time doorman and live-in superintendent, along with a laundry room and bike storage. Recent capital improvements include a new roof and an updated dual-fuel boiler system. Transportation is convenient via the nearby 4 and D subway lines—providing access to Midtown Manhattan in under twenty minutes—as well as multiple bus routes, Metro-North stations, and major highways. Yankee Stadium, neighborhood parks, shopping, and parking garages are all nearby. Pets permitted. Pied-à-terre use allowed. Maximum 85% financing.

Features

  • Parking: On Street
  • Heating: Steam
  • Cooling: Wall/Window Unit(s)
  • Rooms: 5
  • Bedrooms: 2
  • Baths: 2 full
  • Year Built: 1941
  • Approx Sq. Feet: 0
  • Elem. School: Elem School For Math, Science, Tech
  • Middle School: Acad-Personal Ldshp And Excellence
  • High School: Bronx High School Of Science
  • School District: Bronx
  • Pet Policy: Breed Restrictions, Cats OK, Dogs OK, Size Limit
  • Appliances: Gas Range
  • MLS#: 968122
  • Days on Market: 34 days
  • Website: https://www.raveis.com
    /prop/968122/860grandconcourse_bronx_ny?source=qrflyer
Listing information has been assembled from various sources of varying degrees of reliability. Any information critical to the buying decision should be independently verified.

William Raveis Family of Services

Our family of companies partner in delivering quality services in a one-stop-shopping environment. Together, we integrate the most comprehensive real estate, mortgage and insurance services available to fulfill your specific real estate needs.

Lisa FeketeSales Associate

203.809.2076

Lisa.Fekete@raveis.com

Our family of companies offer our clients a new level of full-service real estate. We shall:

  • Market your home to realize a quick sale at the best possible price
  • Place up to 20+ photos of your home on our website, raveis.com
  • Provide frequent communication and tracking reports showing the Internet views your home received on raveis.com
  • Showcase your home on raveis.com with a larger and more prominent format
  • Give you the full resources and strength of William Raveis Real Estate, Mortgage & Insurance and our cutting-edge technology

To learn more about our credentials, visit raveis.com today.

Dave BeckmanVP, Mortgage Banker, William Raveis Mortgage, LLC

NMLS Mortgage Loan Originator ID 10930

203.641.8287

Dave.Beckman@raveis.com

Our Executive Mortgage Banker:

  • Is available to meet with you in our office, your home or office, evenings or weekends
  • Offers you pre-approval in minutes!
  • Provides a guaranteed closing date that meets your needs
  • Has access to hundreds of loan programs, all at competitive rates
  • Is in constant contact with a full processing, underwriting, and closing staff to ensure an efficient transaction

Heidi SummaInsurance Sales Director, William Raveis Insurance

860.919.8074

Heidi.Summa@raveis.com

Our Insurance Division:

  • Will Provide a home insurance quote within 24 hours
  • Offers full-service coverage such as Homeowner's, Auto, Life, Renter's, Flood and Valuable Items
  • Partners with major insurance companies including Chubb, Kemper Unitrin, The Hartford, Progressive,
    Encompass, Travelers, Fireman's Fund, Middleoak Mutual, One Beacon and American Reliable

860 Grand Concourse, #7F, Bronx, NY, 10451

$235,000

Lisa Fekete

Sales Associate

William Raveis Real Estate

Phone: 203.809.2076

Lisa.Fekete@raveis.com

Dave Beckman

VP, Mortgage Banker

William Raveis Mortgage, LLC

Phone: 203.641.8287

Dave.Beckman@raveis.com

NMLS Mortgage Loan Originator ID 10930

5/6 (30 Yr)
Adjustable Rate Conforming*
30 Year
Fixed-Rate Conforming
15 Year
Fixed-Rate Conforming
Loan Amount $188,000 $188,000 $188,000
Term 360 months 360 months 180 months
Initial Interest Rate** 5.875% 6.125% 5.375%
Interest Rate based on Index + Margin 8.125%
Annual Percentage Rate 6.357% 6.304% 5.648%
Monthly Tax Payment N/A N/A N/A
H/O Insurance Payment $75 $75 $75
Initial Principal & Interest Pmt $1,112 $1,142 $1,524
Total Monthly Payment $1,187 $1,217 $1,599

* The Initial Interest Rate and Initial Principal & Interest Payment are fixed for the first and adjust every six months thereafter for the remainder of the loan term. The Interest Rate and annual percentage rate may increase after consummation. The Index for this product is the SOFR. The margin for this adjustable rate mortgage may vary with your unique credit history, and terms of your loan.

** Mortgage Rates are subject to change, loan amount and product restrictions and may not be available for your specific transaction at commitment or closing. Rates, and the margin for adjustable rate mortgages [if applicable], are subject to change without prior notice.

The rates and Annual Percentage Rate (APR) cited above may be only samples for the purpose of calculating payments and are based upon the following assumptions: minimum credit score of 740, 20% down payment (e.g. $20,000 down on a $100,000 purchase price), $1,950 in finance charges, and 30 days prepaid interest, 1 point, 30 day rate lock. The rates and APR will vary depending upon your unique credit history and the terms of your loan, e.g. the actual down payment percentages, points and fees for your transaction. Property taxes and homeowner's insurance are estimates and subject to change.