11 Burkett Street, Pelzer, SC, 29669 | $439,900

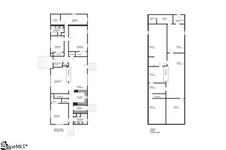
Welcome to 11 Burkett Street – Your Spacious, Stone Ranch Retreat Nestled on a picturesque 4. 2-acre estate, this expansive stone ranch home was built in 1962 and spans over 2, 500 square feet on the main level, with an additional 2, 500+ square feet of finished living area in the walk-out basement, creating more than 5000 square feet of versatile, climate-controlled space . Key Features: 4 Bedrooms on the main level, each with generous walk-in closets 2?Full bathrooms upstairs, and a convenient half bathroom downstairs New roof October 2024 Updated electric 2024 Ample storage throughout: linen closets, foyer coat closet, dining-room storage, walk in pantry, and laundry room cabinetry Cozy Living & Entertaining Spaces: Main floor features two beautiful stone fireplaces, with an additional fireplace in the basement Formal dining room seamlessly connects to a welcoming living area and kitchen —ideal for hosting and daily comfort Outdoor Paradise: The property offers a fully usable, mostly level backyard for play sets, trampolines, garden spaces, or relaxation Natural serenity includes a creek along the property line, a natural spring, shaded areas under mature hardwood and cedar trees, and peach trees for seasonal enjoyment Bonus: a 1, 500?sq?ft detached garage/carport—room for four cars plus a spacious workshop Endless Potential Downstairs: The full walk-out basement adds versatility—perfect as a home office, extra bedrooms, entertainment room, or “man cave”—with ample space and its own half bath . House Highlights at a Glance Feature Detail Style Single-story stone ranch Living Space ~2, 500?sq?ft on main + ~2, 500?sq?ft in basement Bedrooms 4 on main level Bathrooms 2 full (upstairs) + 1 half (downstairs) Fireplaces 2 on main floor, 1 in basement Storage Walk-in closets in every bedroom, pantry, foyer & laundry storage Outdoor Features Creek, spring, woods, peach trees, large level backyard Garage/Workshop 1, 500?sq?ft detached garage/carport Lot Size ~4. 2 wooded and open acres This home blends classic craftsmanship with outdoor living for today’s lifestyle. Whether you envision cozy evenings by the fireplace, weekend gatherings playing horseshoes, or your own private retreat in the lower level, this home provides unmatched flexibility and charm.

Features

  • Amenities: None
  • Bedrooms: 4
  • Baths: 2 full / 1 half
  • Laundry: 1st Floor, Electric Dryer Hookup, Washer Hookup
  • Style: Ranch
  • Year Built: 1962
  • Garage: 4-car Detached
  • Heating: Baseboard, Electric, Heat Pump
  • Cooling: Electric, Multi Units, Heat Pump
  • Basement: Partially Finished, Full, Walk-Out Access, Interior Entry
  • Acreage: 4.2
  • Est. Taxes: $2,097
  • Lot Desc: 2 - 5 Acres, Sloped, Wooded
  • Elem. School: West Pelzer
  • Middle School: Palmetto
  • High School: Palmetto
  • Appliances: Cooktop, Dishwasher, Self Cleaning Oven, Oven, Refrigerator, Electric Cooktop, Electric Oven, Double Oven, Electric Water Heater
  • MLS#: 1583614
  • Days on Market: 28 days
  • Website: https://www.raveis.com
    /prop/1583614/11burkettstreet_pelzer_sc?source=qrflyer
This information is deemed reliable, but not guaranteed. The data relating to real estate displayed on this Site comes in part from the IDX Program of Greater Greenville Association of REALTORs. The information being provided is for consumers' personal, non-commercial use and may not be used for any purpose other than to identify prospective properties consumers may be interested in purchasing.

William Raveis Family of Services

Our family of companies partner in delivering quality services in a one-stop-shopping environment. Together, we integrate the most comprehensive real estate, mortgage and insurance services available to fulfill your specific real estate needs.

Donna ScalfaniSales Associate

617.640.6542

Donna.Scalfani@Raveis.com

Our family of companies offer our clients a new level of full-service real estate. We shall:

  • Market your home to realize a quick sale at the best possible price
  • Place up to 20+ photos of your home on our website, raveis.com
  • Provide frequent communication and tracking reports showing the Internet views your home received on raveis.com
  • Showcase your home on raveis.com with a larger and more prominent format
  • Give you the full resources and strength of William Raveis Real Estate, Mortgage & Insurance and our cutting-edge technology

To learn more about our credentials, visit raveis.com today.

Joanne O'KeefeVP, Mortgage Banker, William Raveis Mortgage, LLC

NMLS Mortgage Loan Originator ID 38342

978.314.1072

Joanne.OKeefe@raveis.com

Our Executive Mortgage Banker:

  • Is available to meet with you in our office, your home or office, evenings or weekends
  • Offers you pre-approval in minutes!
  • Provides a guaranteed closing date that meets your needs
  • Has access to hundreds of loan programs, all at competitive rates
  • Is in constant contact with a full processing, underwriting, and closing staff to ensure an efficient transaction

Paul BerriosRegional SVP, Insurance Sales Producer, William Raveis Insurance

978-337-3053

Paul.Berrios@raveis.com

Our Insurance Division:

  • Will Provide a home insurance quote within 24 hours
  • Offers full-service coverage such as Homeowner's, Auto, Life, Renter's, Flood and Valuable Items
  • Partners with major insurance companies including Chubb, Kemper Unitrin, The Hartford, Progressive,
    Encompass, Travelers, Fireman's Fund, Middleoak Mutual, One Beacon and American Reliable

11 Burkett Street, Pelzer, SC, 29669

$439,900

Donna Scalfani

Sales Associate

William Raveis Real Estate

Phone: 617.640.6542

Donna.Scalfani@Raveis.com

Joanne O'Keefe

VP, Mortgage Banker

William Raveis Mortgage, LLC

Phone: 978.314.1072

Joanne.OKeefe@raveis.com

NMLS Mortgage Loan Originator ID 38342

5/6 (30 Yr)
Adjustable Rate Conforming*
30 Year
Fixed-Rate Conforming
15 Year
Fixed-Rate Conforming
Loan Amount $351,920 $351,920 $351,920
Term 360 months 360 months 180 months
Initial Interest Rate** 5.875% 6.375% 5.490%
Interest Rate based on Index + Margin 8.125%
Annual Percentage Rate 6.345% 6.533% 5.783%
Monthly Tax Payment $175 $175 $175
H/O Insurance Payment $75 $75 $75
Initial Principal & Interest Pmt $2,082 $2,196 $2,874
Total Monthly Payment $2,332 $2,446 $3,124

* The Initial Interest Rate and Initial Principal & Interest Payment are fixed for the first and adjust every six months thereafter for the remainder of the loan term. The Interest Rate and annual percentage rate may increase after consummation. The Index for this product is the SOFR. The margin for this adjustable rate mortgage may vary with your unique credit history, and terms of your loan.

** Mortgage Rates are subject to change, loan amount and product restrictions and may not be available for your specific transaction at commitment or closing. Rates, and the margin for adjustable rate mortgages [if applicable], are subject to change without prior notice.

The rates and Annual Percentage Rate (APR) cited above may be only samples for the purpose of calculating payments and are based upon the following assumptions: minimum credit score of 740, 20% down payment (e.g. $20,000 down on a $100,000 purchase price), $1,950 in finance charges, and 30 days prepaid interest, 1 point, 30 day rate lock. The rates and APR will vary depending upon your unique credit history and the terms of your loan, e.g. the actual down payment percentages, points and fees for your transaction. Property taxes and homeowner's insurance are estimates and subject to change.