863 Home Street, Bronx, NY, 10459 | $829,999

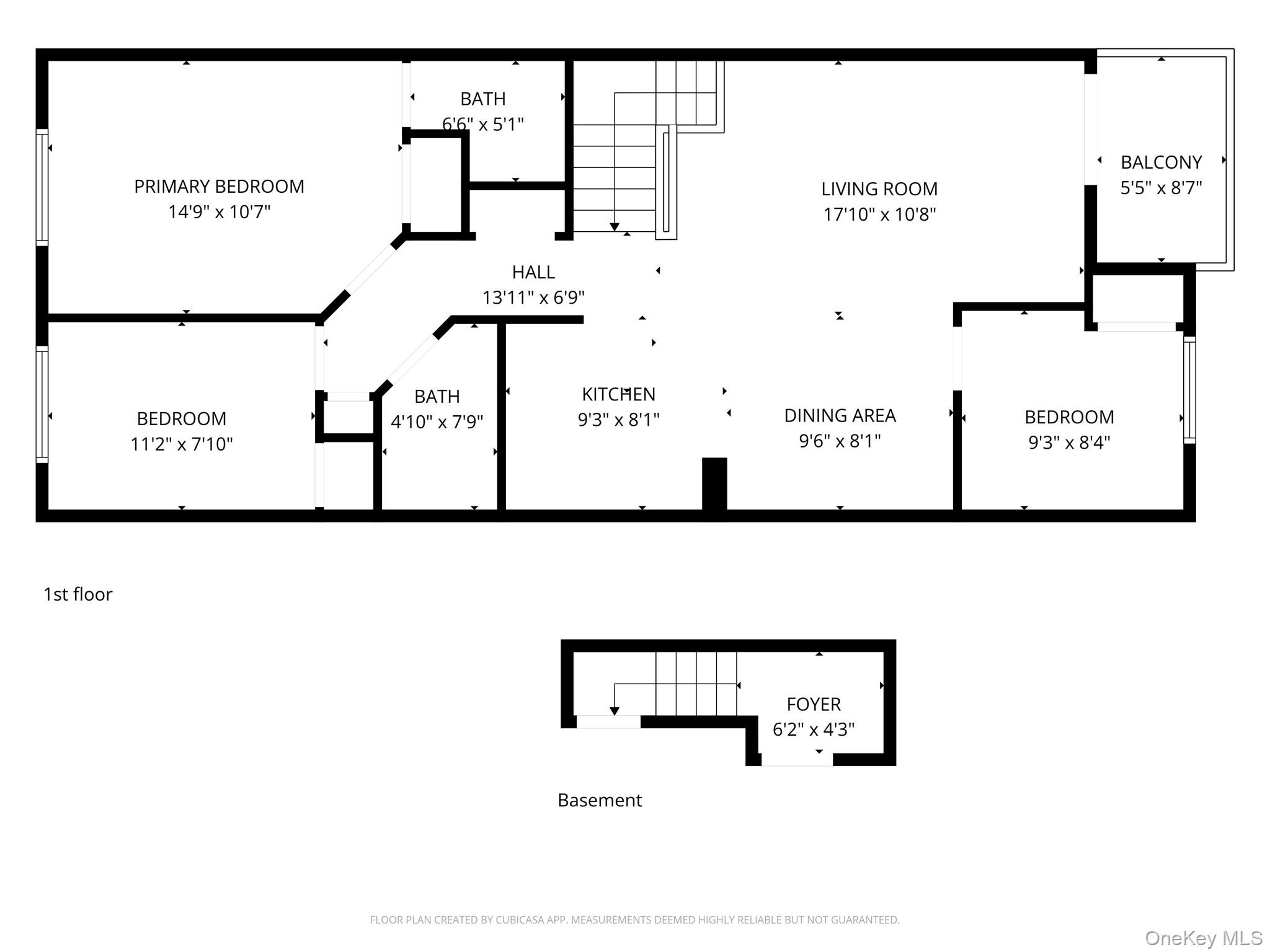
Move-In Ready Brick Multi-Family Duplex in the Longwood Section of the Bronx Welcome to this beautifully upgraded multi-family duplex offering modern updates, flexible living space, and income potential. Unit 1 (Main Level — Renovated 2024) This inviting unit features 2 bedrooms and 1 full bath with a spacious layout that includes a living room, formal dining room, and hallway entry. Hardwood floors enhance the living and dining areas, while tiled flooring lines the hallway. Enjoy a new dishwasher, baseboard heating, ceiling fans, and a generous walk-in closet. Unit 2 (Upper Level) The upper unit offers 3 bedrooms and 1½ baths with a stylish upgraded kitchen featuring dark cabinetry and granite countertops. Appliances — new refrigerator and dishwasher, stove only six years old. This unit includes a large living room, separate dining area, dark hardwood floors throughout, and a full modern bathroom. Additional highlights include mini-split AC/heating, wall units in all bedrooms, a private balcony, and one dedicated parking space. Finished Basement (Upgraded November 2025) The updated basement provides bonus living space with two rooms, 1 full bath, and a full kitchen with quartz countertops. The living room features wood panel TV mounting and upgraded high-end vinyl plank flooring throughout. Major Systems & Updates • Furnace: 7 years old • Water heater: 7 years old • Roof: less than 15 years old This well-maintained, move-in ready property offers exceptional space, modern upgrades, and versatility for homeowners or investors alike. Home ideally located near public transportation, shopping centers, schools and major highways. Don’t miss your opportunity to own this beautifully updated multi-family home. SUBJECT TO SELLER FINDING SUITABLE HOUSING.

Features

  • Bedrooms: 5
  • Baths: 3 full
  • Laundry: In Basement
  • Style: Duplex
  • Year Built: 1991
  • Heating: Baseboard
  • Cooling: Ductless, Wall/Window Unit(s)
  • Basement: Finished, Full
  • Acreage: 0.05
  • Est. Taxes: $6,429
  • School District: Bronx
  • MLS#: 965878
  • Days on Market: 13 days
  • Website: https://www.raveis.com
    /prop/965878/863homestreet_bronx_ny?source=qrflyer
Listing information has been assembled from various sources of varying degrees of reliability. Any information critical to the buying decision should be independently verified.Listing courtesy of Century 21 Full Service Realty   Phone: 845-639-1234

William Raveis Family of Services

Our family of companies partner in delivering quality services in a one-stop-shopping environment. Together, we integrate the most comprehensive real estate, mortgage and insurance services available to fulfill your specific real estate needs.

Customer Service

888.699.8876

Contact@raveis.com

Our family of companies offer our clients a new level of full-service real estate. We shall:

  • Market your home to realize a quick sale at the best possible price
  • Place up to 20+ photos of your home on our website, raveis.com
  • Provide frequent communication and tracking reports showing the Internet views your home received on raveis.com
  • Showcase your home on raveis.com with a larger and more prominent format
  • Give you the full resources and strength of William Raveis Real Estate, Mortgage & Insurance and our cutting-edge technology

To learn more about our credentials, visit raveis.com today.

Frank KolbSenior Vice President - Coaching & Strategic, William Raveis Mortgage, LLC

NMLS Mortgage Loan Originator ID 81725

203.980.8025

Frank.Kolb@raveis.com

Our Executive Mortgage Banker:

  • Is available to meet with you in our office, your home or office, evenings or weekends
  • Offers you pre-approval in minutes!
  • Provides a guaranteed closing date that meets your needs
  • Has access to hundreds of loan programs, all at competitive rates
  • Is in constant contact with a full processing, underwriting, and closing staff to ensure an efficient transaction

Ryan FortierInsurance Sales Director, William Raveis Insurance

516.739.7731

Ryan.Fortier@raveis.com

Our Insurance Division:

  • Will Provide a home insurance quote within 24 hours
  • Offers full-service coverage such as Homeowner's, Auto, Life, Renter's, Flood and Valuable Items
  • Partners with major insurance companies including Chubb, Kemper Unitrin, The Hartford, Progressive,
    Encompass, Travelers, Fireman's Fund, Middleoak Mutual, One Beacon and American Reliable

863 Home Street, Bronx, NY, 10459

$829,999

Customer Service

William Raveis Real Estate

Phone: 888.699.8876

Contact@raveis.com

Frank Kolb

Senior Vice President - Coaching & Strategic

William Raveis Mortgage, LLC

Phone: 203.980.8025

Frank.Kolb@raveis.com

NMLS Mortgage Loan Originator ID 81725

5/6 (30 Yr)
Adjustable Rate Jumbo*
30 Year
Fixed-Rate Jumbo
15 Year
Fixed-Rate Jumbo
Loan Amount $663,999 $663,999 $663,999
Term 360 months 360 months 180 months
Initial Interest Rate** 5.250% 6.000% 5.750%
Interest Rate based on Index + Margin 8.125%
Annual Percentage Rate 6.069% 6.110% 5.932%
Monthly Tax Payment $536 $536 $536
H/O Insurance Payment $92 $92 $92
Initial Principal & Interest Pmt $3,667 $3,981 $5,514
Total Monthly Payment $4,295 $4,609 $6,142

* The Initial Interest Rate and Initial Principal & Interest Payment are fixed for the first and adjust every six months thereafter for the remainder of the loan term. The Interest Rate and annual percentage rate may increase after consummation. The Index for this product is the SOFR. The margin for this adjustable rate mortgage may vary with your unique credit history, and terms of your loan.

** Mortgage Rates are subject to change, loan amount and product restrictions and may not be available for your specific transaction at commitment or closing. Rates, and the margin for adjustable rate mortgages [if applicable], are subject to change without prior notice.

The rates and Annual Percentage Rate (APR) cited above may be only samples for the purpose of calculating payments and are based upon the following assumptions: minimum credit score of 740, 20% down payment (e.g. $20,000 down on a $100,000 purchase price), $1,950 in finance charges, and 30 days prepaid interest, 1 point, 30 day rate lock. The rates and APR will vary depending upon your unique credit history and the terms of your loan, e.g. the actual down payment percentages, points and fees for your transaction. Property taxes and homeowner's insurance are estimates and subject to change.