7791 Grande Pine RD, Bokeelia, FL, 33922 | $849,900

Southwest Florida Gem located on Beautiful Pine Island which is connected by free bridges to picturesque Matlacha Isles and Cape Coral, widely recognized nationwide as one of Florida's best newer cities. 2619 SF Lakefront 3/3 Single Story Pool Home with a Den plus 3 Car Garage sitting on a 15, 000 SF Lot (. 34 of an acre) guaranteeing you a peaceful island retreat and lifestyle. Located directly at the middle of a lake with the Gulf waters less than a mile away, enjoy amazing nightly Sunset Views from your modern and spacious Screened-In Pool Lanai. For those who own a boat on a trailor you will be just 3/4 of a mile from the popular Pineland Marina Boat Launch with Capitiva, Sanibel, Useppa and Boca Grande Islands just a short boatride away. Only a few minutes drive from the more than 10 Island Restaurants along Matlacha and Pine Island, many having Tiki Hut Bars, Nightly Live Island Music and Fresh Seafood caught daily from the nearby Gulf Waters. Pine Island also is just a short drive to Fort Myers and Interstate 75 which easily connects you south to the Bonita Springs/Naples Beaches or north to the Sarasota/St Pete/Clearwater Beaches.
Recent Upgrades and Extra Features:
Brand New Modern Seam Metal 16" Panel Width Roof installed with new Facia and Gutters in 2024 (40+ year roof lifespan). Rheem 50 Gallon Tank Home Water Heater installed in 2024 along with a 6 year warranty. Kidney Shaped Swimming Pool renovated in 2024 with a new Pebbletec Flooring, Pool Tiles, Multi-Colored Pool Light along with a brand new Pool Pump. Panorama Outdoor Screened-in Pool Patio giving you an unobstructed view of the lake from your Living Room installed in 2022. Outdoor Pool Shower in the Lanai along with a convenient Pool Storage Closet. Entire Exterior of the Home repainted in 2023. American Standard 5 Ton AC Unit with Air Handler installed in 2019. Spacious Modern Den with wood/glass pocket doors, great for those who work from home. Updated 10 zone automatic sprinkler system that covers the entire property. Extended 3 Car Garage with a back door plus parking for up to 7 cars in the extra long driveway. 7 Foot High 4-Panel Multi-Slide Glass Doors open up the Living Room to the Lanai, a nice feature to have for those big parties with family & friends. Huge Grand Master BR with wooden floors and a stunning lakefront view. (3) Power Stormsmart Fabric Roll-Down Hurricane Shutters protecting the entire Lanai Area (prevents up to 150+ mph winds) including roll-down Hurricane Shutters for the Front Windows of the Home and the Glass Front Door. Aluminum Easy Lock Accordian Hurricane Shutters for all of the House Side Windows. Must see this home in person to really appreciate it's stylish beauty and value!

Features

  • Amenities: Community Boat Ramp,Community Boat Slip,Community Gulf Boat Access,Marina
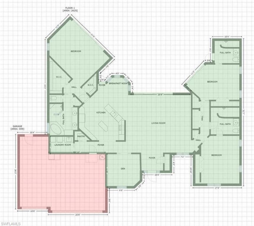
  • Rooms: 4
  • Bedrooms: 3
  • Baths: 3 full
  • Style: 1 Story/Ranch
  • Development: ALDEN PINES FIRST ADD
  • Year Built: 2003
  • Garage: 3.00 Attached
  • Heating: Central Electric
  • Cooling: Ceiling Fans,Central Electric
  • Approx Sq. Feet: 2,619
  • Acreage: 0.34
  • Est. Taxes: $6,450
  • Lot Desc: Oversize
  • View: Lake
  • Community Type: No Subdivision,Non-Gated
  • Private Pool: Yes
  • Pet Policy: No Approval Needed
  • MLS#: 226003200
  • Website: https://www.raveis.com
    /prop/226003200/7791grandepinerd_bokeelia_fl?source=qrflyer
Copyright © 2026  The source of this real property information is the copyrighted and proprietary database compilation of the Southwest Florida MLS organizations Copyright Southwest Florida MLS organizations. All rights reserved.
Courtesy of Beycome of Florida LLC

William Raveis Family of Services

Our family of companies partner in delivering quality services in a one-stop-shopping environment. Together, we integrate the most comprehensive real estate, mortgage and insurance services available to fulfill your specific real estate needs.

Customer Service

888.699.8876

Contact@raveis.com

Our family of companies offer our clients a new level of full-service real estate. We shall:

  • Market your home to realize a quick sale at the best possible price
  • Place up to 20+ photos of your home on our website, raveis.com
  • Provide frequent communication and tracking reports showing the Internet views your home received on raveis.com
  • Showcase your home on raveis.com with a larger and more prominent format
  • Give you the full resources and strength of William Raveis Real Estate, Mortgage & Insurance and our cutting-edge technology

To learn more about our credentials, visit raveis.com today.

Melissa CohnRVP, Mortgage Banker, William Raveis Mortgage, LLC

NMLS Mortgage Loan Originator ID 16953

917.838.7300

Melissa.Cohn@raveis.com

Our Executive Mortgage Banker:

  • Is available to meet with you in our office, your home or office, evenings or weekends
  • Offers you pre-approval in minutes!
  • Provides a guaranteed closing date that meets your needs
  • Has access to hundreds of loan programs, all at competitive rates
  • Is in constant contact with a full processing, underwriting, and closing staff to ensure an efficient transaction

Pedro DelgadilloInsurance Sales Director, William Raveis Insurance

305.922.5393

Pedro.Delgadillo@raveis.com

Our Insurance Division:

  • Will Provide a home insurance quote within 24 hours
  • Offers full-service coverage such as Homeowner's, Auto, Life, Renter's, Flood and Valuable Items
  • Partners with major insurance companies including Chubb, Kemper Unitrin, The Hartford, Progressive,
    Encompass, Travelers, Fireman's Fund, Middleoak Mutual, One Beacon and American Reliable

7791 Grande Pine RD, Bokeelia, FL, 33922

$849,900

Customer Service

William Raveis Real Estate

Phone: 888.699.8876

Contact@raveis.com

Melissa Cohn

RVP, Mortgage Banker

William Raveis Mortgage, LLC

Phone: 917.838.7300

Melissa.Cohn@raveis.com

NMLS Mortgage Loan Originator ID 16953

5/6 (30 Yr)
Adjustable Rate Jumbo*
30 Year
Fixed-Rate Jumbo
15 Year
Fixed-Rate Jumbo
Loan Amount $679,920 $679,920 $679,920
Term 360 months 360 months 180 months
Initial Interest Rate** 5.500% 6.000% 5.625%
Interest Rate based on Index + Margin 8.125%
Annual Percentage Rate 6.154% 6.133% 5.846%
Monthly Tax Payment $538 $538 $538
H/O Insurance Payment $92 $92 $92
Initial Principal & Interest Pmt $3,861 $4,076 $5,601
Total Monthly Payment $4,491 $4,706 $6,231

* The Initial Interest Rate and Initial Principal & Interest Payment are fixed for the first and adjust every six months thereafter for the remainder of the loan term. The Interest Rate and annual percentage rate may increase after consummation. The Index for this product is the SOFR. The margin for this adjustable rate mortgage may vary with your unique credit history, and terms of your loan.

** Mortgage Rates are subject to change, loan amount and product restrictions and may not be available for your specific transaction at commitment or closing. Rates, and the margin for adjustable rate mortgages [if applicable], are subject to change without prior notice.

The rates and Annual Percentage Rate (APR) cited above may be only samples for the purpose of calculating payments and are based upon the following assumptions: minimum credit score of 740, 20% down payment (e.g. $20,000 down on a $100,000 purchase price), $1,950 in finance charges, and 30 days prepaid interest, 1 point, 30 day rate lock. The rates and APR will vary depending upon your unique credit history and the terms of your loan, e.g. the actual down payment percentages, points and fees for your transaction. Property taxes and homeowner's insurance are estimates and subject to change.