145 Harbor Pond Drive, #2D, Meriden, CT, 06450 | $2,150

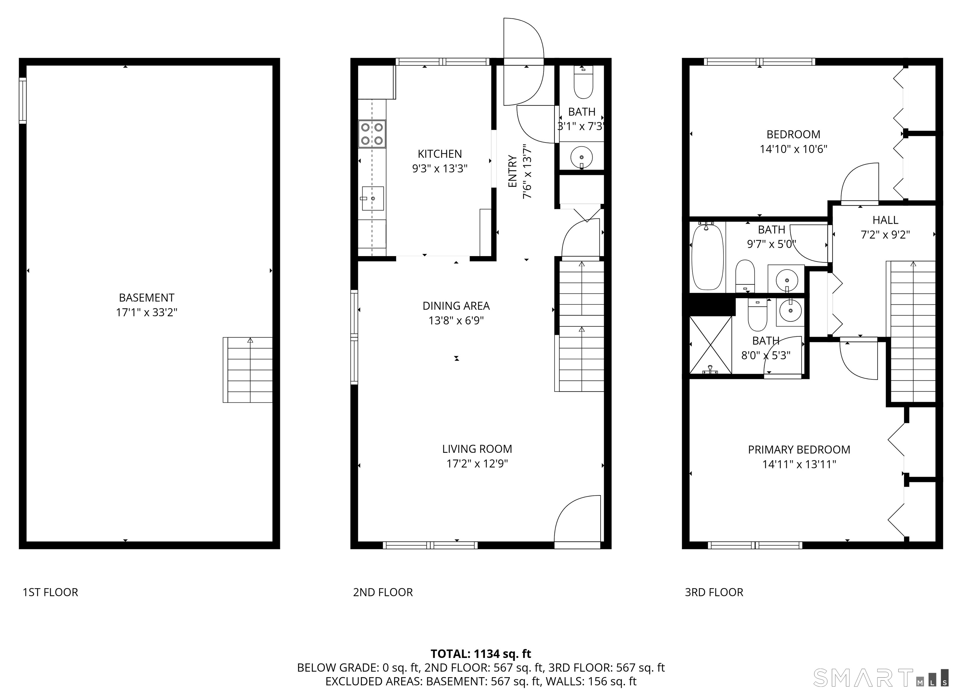
Welcome to Westfield Glen, a spacious 2-bedroom, 2. 5-bathroom townhouse offering approximately 1, 400 sq ft of comfortable living in the desirable community. Inside, you'll find oversized closets, a full basement, and thoughtfully designed living spaces with vinyl flooring in the main areas, tile in the bathrooms, and cozy carpeting in the bedrooms. Appliances are included for added convenience, and residents enjoy ample off-street parking. Conveniently located near shopping and major highways, Westfield Glen is an ideal community.

Features

  • Type: Multi Family
  • Rooms: 7
  • Bedrooms: 2
  • Baths: 2 full / 1 half
  • Style: Townhouse
  • Year Built: 1987
  • Garage: Paved,Off Street Parking,Assigned Parking
  • Heating: Baseboard,Hydro Air
  • Cooling: None
  • Basement: Full
  • Above Grade Approx. Sq. Feet: 1,400
  • Acreage: 0.05
  • Lot Desc: Lightly Wooded
  • Elem. School: Per Board of Ed
  • High School: Per Board of Ed
  • Pets Allowed: Restrictions
  • Pet Policy: Landlord approval require
  • Appliances: Electric Range,Oven/Range,Microwave,Refrigerator,Freezer,Dishwasher,Washer,Dryer
  • Lease Term Type: Per Month
  • MLS#: 24157004
  • Website: https://www.raveis.com
    /raveis/24157004/145harborponddrive_meriden_ct?source=qrflyer
The data relating to real estate for sale on this website appears in part through the SMARTMLS Internet Data Exchange program, a voluntary cooperative exchange of property listing data between licensed real estate brokerage firms, and is provided by SMARTMLS through a licensing agreement. Listing information is from various brokers who participate in the SMARTMLS IDX program and not all listings may be visible on the site. The property information being provided on or through the website is for the personal, non-commercial use of consumers and such information may not be used for any purpose other than to identify prospective properties consumers may be interested in purchasing. Some properties which appear for sale on the website may no longer be available because they are for instance, under contract, sold or are no longer being offered for sale. Property information displayed is deemed reliable but is not guaranteed.

Room Information

Type DescriptionLevel
Bedroom 1 Upper
Full Bath Upper
Half Bath Main
Kitchen Main
Living Room Main
Primary Bath Upper
Primary Bedroom Full BathUpper

William Raveis Family of Services

Our family of companies partner in delivering quality services in a one-stop-shopping environment. Together, we integrate the most comprehensive real estate, mortgage and insurance services available to fulfill your specific real estate needs.

Salvatore CarabettaSales Associate

203.379.8325

Salvatore.Carabetta@raveis.com

Our family of companies offer our clients a new level of full-service real estate. We shall:

  • Market your home to realize a quick sale at the best possible price
  • Place up to 20+ photos of your home on our website, raveis.com
  • Provide frequent communication and tracking reports showing the Internet views your home received on raveis.com
  • Showcase your home on raveis.com with a larger and more prominent format
  • Give you the full resources and strength of William Raveis Real Estate, Mortgage & Insurance and our cutting-edge technology

To learn more about our credentials, visit raveis.com today.

Melissa CohnRVP, Mortgage Banker, William Raveis Mortgage, LLC

NMLS Mortgage Loan Originator ID 16953

917.838.7300

Melissa.Cohn@raveis.com

Our Executive Mortgage Banker:

  • Is available to meet with you in our office, your home or office, evenings or weekends
  • Offers you pre-approval in minutes!
  • Provides a guaranteed closing date that meets your needs
  • Has access to hundreds of loan programs, all at competitive rates
  • Is in constant contact with a full processing, underwriting, and closing staff to ensure an efficient transaction

Pedro DelgadilloInsurance Sales Director, William Raveis Insurance

305.922.5393

Pedro.Delgadillo@raveis.com

Our Insurance Division:

  • Will Provide a home insurance quote within 24 hours
  • Offers full-service coverage such as Homeowner's, Auto, Life, Renter's, Flood and Valuable Items
  • Partners with major insurance companies including Chubb, Kemper Unitrin, The Hartford, Progressive,
    Encompass, Travelers, Fireman's Fund, Middleoak Mutual, One Beacon and American Reliable

Ray CashenPresident, William Raveis Attorney Network

203.925.4590

For homebuyers and sellers, our Attorney Network:

  • Consult on purchase/sale and financing issues, reviews and prepares the sale agreement, fulfills lender
    requirements, sets up escrows and title insurance, coordinates closing documents
  • Offers one-stop shopping; to satisfy closing, title, and insurance needs in a single consolidated experience
  • Offers access to experienced closing attorneys at competitive rates
  • Streamlines the process as a direct result of the established synergies among the William Raveis Family of Companies

145 Harbor Pond Drive, #2D, Meriden, CT, 06450

$2,150

Salvatore Carabetta

Sales Associate

William Raveis Real Estate

Phone: 203.379.8325

Salvatore.Carabetta@raveis.com

Melissa Cohn

RVP, Mortgage Banker

William Raveis Mortgage, LLC

Phone: 917.838.7300

Melissa.Cohn@raveis.com

NMLS Mortgage Loan Originator ID 16953

5/6 (30 Yr)
Adjustable Rate Conforming*
30 Year
Fixed-Rate Conforming
15 Year
Fixed-Rate Conforming
Loan Amount $1,720 $1,720 $1,720
Term 360 months 360 months 180 months
Initial Interest Rate** 5.625% 6.125% 5.375%
Interest Rate based on Index + Margin 8.125%
Annual Percentage Rate 6.258% 6.292% 5.628%
Monthly Tax Payment N/A N/A N/A
H/O Insurance Payment $75 $75 $75
Initial Principal & Interest Pmt $10 $10 $14
Total Monthly Payment $85 $85 $89

* The Initial Interest Rate and Initial Principal & Interest Payment are fixed for the first and adjust every six months thereafter for the remainder of the loan term. The Interest Rate and annual percentage rate may increase after consummation. The Index for this product is the SOFR. The margin for this adjustable rate mortgage may vary with your unique credit history, and terms of your loan.

** Mortgage Rates are subject to change, loan amount and product restrictions and may not be available for your specific transaction at commitment or closing. Rates, and the margin for adjustable rate mortgages [if applicable], are subject to change without prior notice.

The rates and Annual Percentage Rate (APR) cited above may be only samples for the purpose of calculating payments and are based upon the following assumptions: minimum credit score of 740, 20% down payment (e.g. $20,000 down on a $100,000 purchase price), $1,950 in finance charges, and 30 days prepaid interest, 1 point, 30 day rate lock. The rates and APR will vary depending upon your unique credit history and the terms of your loan, e.g. the actual down payment percentages, points and fees for your transaction. Property taxes and homeowner's insurance are estimates and subject to change.