455-4 Middle Road, Riverhead, NY, 11901 | $799,000

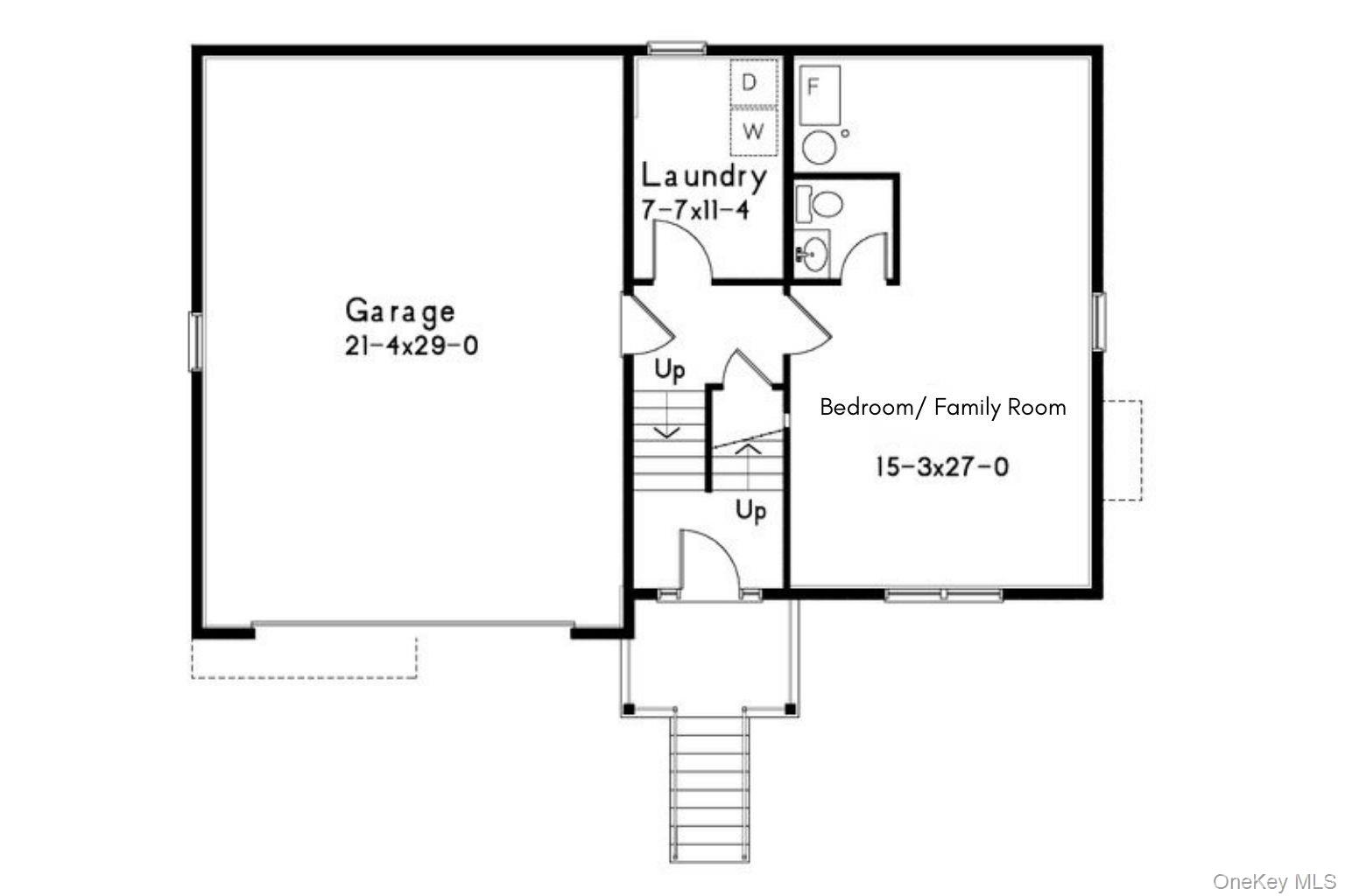
To be built- Expected Delivery Fall 2026. Introducing 455 Middle Rd Lot 4, a beautifully designed 1, 750 square foot residence that pairs classic architecture with modern comfort. The exterior features multi textured board and batten siding, crisp trim, and bold black shutters set against a light facade, creating striking curb appeal. A covered columned entry and attached two car garage with black paneled doors add both style and functionality. Inside, open concept living spaces flow seamlessly for effortless entertainment and daily living. Hardwood oak floors run throughout the main level, while a gas fireplace anchors the living area with warmth and charm. The kitchen is appointed with white shaker cabinetry, stone countertops, a stainless-steel appliance package, a farm sink, and a generous center island that connects naturally to the dining and living spaces. The primary suite offers ample closet space and a private bath with a tile shower enclosure and tile flooring. Two additional bedrooms share a well-designed hall bath. The lower level includes a laundry area with cabinetry and washer and dryer hookups, plus a fourth bedroom or flexible family room with an adjacent powder room. An ample rear deck extends the living space outdoors. The home may also be delivered with an accessory dwelling unit configuration for added income potential or multi-generational living, offering exceptional flexibility and long-term value.

Features

  • Rooms: 8
  • Bedrooms: 4
  • Baths: 2 full
  • Laundry: Electric Dryer Hookup, Washer Hookup
  • Style: Raised Ranch
  • Year Built: 2026
  • Garage: 2-car
  • Heating: Propane
  • Cooling: Central Air
  • Basement: None
  • Approx Sq. Feet: 1,750
  • Acreage: 0.6
  • Est. Taxes: $12,500
  • Elem. School: Roanoke Avenue School
  • Middle School: Riverhead Middle School
  • High School: Riverhead Senior High School
  • School District: Riverhead
  • Appliances: Dishwasher, Range, Refrigerator
  • MLS#: 961509
  • Days on Market: 1 day
  • Website: https://www.raveis.com
    /prop/961509/4554middleroad_riverhead_ny?source=qrflyer
Listing information has been assembled from various sources of varying degrees of reliability. Any information critical to the buying decision should be independently verified.Listing courtesy of Douglas Elliman Real Estate   Phone: 631-422-7510

William Raveis Family of Services

Our family of companies partner in delivering quality services in a one-stop-shopping environment. Together, we integrate the most comprehensive real estate, mortgage and insurance services available to fulfill your specific real estate needs.

Customer Service

888.699.8876

Contact@raveis.com

Our family of companies offer our clients a new level of full-service real estate. We shall:

  • Market your home to realize a quick sale at the best possible price
  • Place up to 20+ photos of your home on our website, raveis.com
  • Provide frequent communication and tracking reports showing the Internet views your home received on raveis.com
  • Showcase your home on raveis.com with a larger and more prominent format
  • Give you the full resources and strength of William Raveis Real Estate, Mortgage & Insurance and our cutting-edge technology

To learn more about our credentials, visit raveis.com today.

Frank KolbSenior Vice President - Coaching & Strategic, William Raveis Mortgage, LLC

NMLS Mortgage Loan Originator ID 81725

203.980.8025

Frank.Kolb@raveis.com

Our Executive Mortgage Banker:

  • Is available to meet with you in our office, your home or office, evenings or weekends
  • Offers you pre-approval in minutes!
  • Provides a guaranteed closing date that meets your needs
  • Has access to hundreds of loan programs, all at competitive rates
  • Is in constant contact with a full processing, underwriting, and closing staff to ensure an efficient transaction

Ryan FortierInsurance Sales Director, William Raveis Insurance

516.739.7731

Ryan.Fortier@raveis.com

Our Insurance Division:

  • Will Provide a home insurance quote within 24 hours
  • Offers full-service coverage such as Homeowner's, Auto, Life, Renter's, Flood and Valuable Items
  • Partners with major insurance companies including Chubb, Kemper Unitrin, The Hartford, Progressive,
    Encompass, Travelers, Fireman's Fund, Middleoak Mutual, One Beacon and American Reliable

455-4 Middle Road, Riverhead, NY, 11901

$799,000

Customer Service

William Raveis Real Estate

Phone: 888.699.8876

Contact@raveis.com

Frank Kolb

Senior Vice President - Coaching & Strategic

William Raveis Mortgage, LLC

Phone: 203.980.8025

Frank.Kolb@raveis.com

NMLS Mortgage Loan Originator ID 81725

5/6 (30 Yr)
Adjustable Rate Conforming*
30 Year
Fixed-Rate Conforming
15 Year
Fixed-Rate Conforming
Loan Amount $639,200 $639,200 $639,200
Term 360 months 360 months 180 months
Initial Interest Rate** 5.875% 6.125% 5.375%
Interest Rate based on Index + Margin 8.125%
Annual Percentage Rate 6.357% 6.304% 5.648%
Monthly Tax Payment $1,042 $1,042 $1,042
H/O Insurance Payment $92 $92 $92
Initial Principal & Interest Pmt $3,781 $3,884 $5,180
Total Monthly Payment $4,915 $5,018 $6,314

* The Initial Interest Rate and Initial Principal & Interest Payment are fixed for the first and adjust every six months thereafter for the remainder of the loan term. The Interest Rate and annual percentage rate may increase after consummation. The Index for this product is the SOFR. The margin for this adjustable rate mortgage may vary with your unique credit history, and terms of your loan.

** Mortgage Rates are subject to change, loan amount and product restrictions and may not be available for your specific transaction at commitment or closing. Rates, and the margin for adjustable rate mortgages [if applicable], are subject to change without prior notice.

The rates and Annual Percentage Rate (APR) cited above may be only samples for the purpose of calculating payments and are based upon the following assumptions: minimum credit score of 740, 20% down payment (e.g. $20,000 down on a $100,000 purchase price), $1,950 in finance charges, and 30 days prepaid interest, 1 point, 30 day rate lock. The rates and APR will vary depending upon your unique credit history and the terms of your loan, e.g. the actual down payment percentages, points and fees for your transaction. Property taxes and homeowner's insurance are estimates and subject to change.