2554 SW 8th St, Miami, FL, 33135 | $4,800,000

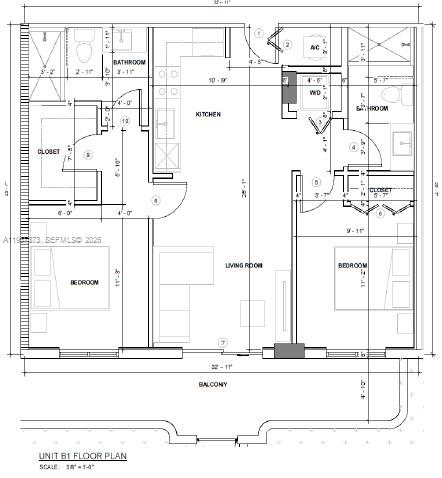
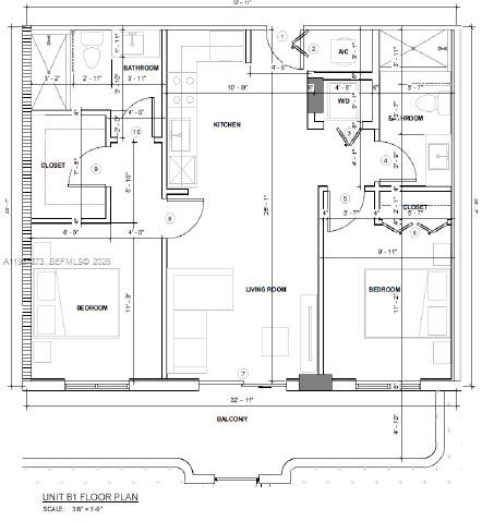
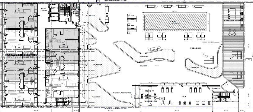
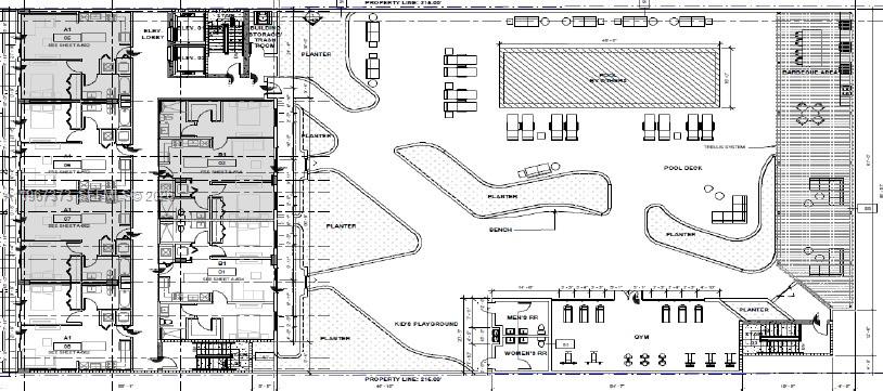
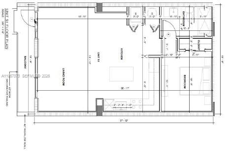
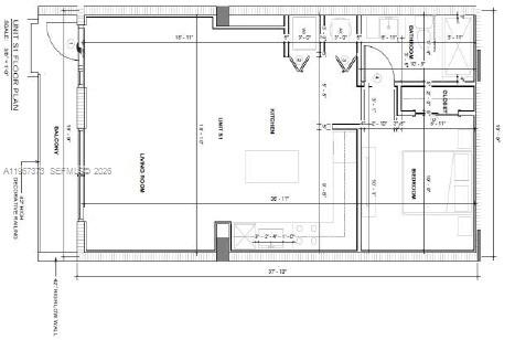
Located on Southwest 8th Street in the premium Little Havana corridor, this is an exceptional development opportunity with plans nearly approved, significantly reducing time to build. The property sits on a 21, 002 SF lot and allows for a maximum height of 8 stories under T6-8 O and T4-R zoning, permitting multifamily, hospitality, medical, and retail uses. The proposed project includes 37 residential units comprised of 3 studios (1D/1B) at 600 SF, 24 one-bedroom/one-bath units at 611 SF, and 10 two-bedroom/two-bath units at 862 SF. The mixed-use component features 2 retail spaces totaling 2, 500 SF (which can be combined), 2, 105 SF of mini storage, and 2, 500 SF of office space. The development also includes 10, 969 SF of amenities highlighted by a pool deck, gardens, and grill area, with approximately 43, 661 SF under A/C and 60 parking spaces. Strategically positioned across from the newly delivered 200-unit Gateway to Little Havana project with 10, 000 SF of retail, directly across from Miami Dade College with 6, 500 enrolled students, within walking distance to the Little Havana Arts and Entertainment District, and surrounded by more than 319, 799 residents within a three-mile radius, this project represents a prime, high-impact mixed-use investment opportunity in one of Miami’s fastest-growing urban corridors.

Features

  • Property Type: Mixed Use
  • Garage: Assigned,Common
  • Parking: 60-car
  • Units: 40
  • Zoning: 6100
  • Year Built: 2026
  • MLS#: A11967373
  • Days on Market: 4 days
  • Website: https://www.raveis.com
    /prop/A11967373/2554sw8thst_miami_fl?source=qrflyer
This information is deemed reliable, but not guaranteed. The data relating to real estate displayed on this Site comes in part from the IDX Program of MIAMI Association of REALTORS. The information being provided is for consumers' personal, non-commercial use and may not be used for any purpose other than to identify prospective properties consumers may be interested in purchasing.
Listing courtesy of ISC Realty Corp   Phone: 786-660-6802

William Raveis Family of Services

Our family of companies partner in delivering quality services in a one-stop-shopping environment. Together, we integrate the most comprehensive real estate, mortgage and insurance services available to fulfill your specific real estate needs.

Customer Service

888.699.8876

Contact@raveis.com

Our family of companies offer our clients a new level of full-service real estate. We shall:

  • Market your home to realize a quick sale at the best possible price
  • Place up to 20+ photos of your home on our website, raveis.com
  • Provide frequent communication and tracking reports showing the Internet views your home received on raveis.com
  • Showcase your home on raveis.com with a larger and more prominent format
  • Give you the full resources and strength of William Raveis Real Estate, Mortgage & Insurance and our cutting-edge technology

To learn more about our credentials, visit raveis.com today.

Melissa CohnRVP, Mortgage Banker, William Raveis Mortgage, LLC

NMLS Mortgage Loan Originator ID 16953

917.838.7300

Melissa.Cohn@raveis.com

Our Executive Mortgage Banker:

  • Is available to meet with you in our office, your home or office, evenings or weekends
  • Offers you pre-approval in minutes!
  • Provides a guaranteed closing date that meets your needs
  • Has access to hundreds of loan programs, all at competitive rates
  • Is in constant contact with a full processing, underwriting, and closing staff to ensure an efficient transaction

Pedro DelgadilloInsurance Sales Director, William Raveis Insurance

305.922.5393

Pedro.Delgadillo@raveis.com

Our Insurance Division:

  • Will Provide a home insurance quote within 24 hours
  • Offers full-service coverage such as Homeowner's, Auto, Life, Renter's, Flood and Valuable Items
  • Partners with major insurance companies including Chubb, Kemper Unitrin, The Hartford, Progressive,
    Encompass, Travelers, Fireman's Fund, Middleoak Mutual, One Beacon and American Reliable

2554 SW 8th St, Miami, FL, 33135

$4,800,000

Customer Service

William Raveis Real Estate

Phone: 888.699.8876

Contact@raveis.com

Melissa Cohn

RVP, Mortgage Banker

William Raveis Mortgage, LLC

Phone: 917.838.7300

Melissa.Cohn@raveis.com

NMLS Mortgage Loan Originator ID 16953

5/6 (30 Yr)
Adjustable Rate Jumbo*
30 Year
Fixed-Rate Jumbo
15 Year
Fixed-Rate Jumbo
Loan Amount $3,840,000 $3,840,000 $3,840,000
Term 360 months 360 months 180 months
Initial Interest Rate** 5.875% 6.125% 6.000%
Interest Rate based on Index + Margin 8.125%
Annual Percentage Rate 6.132% 6.259% 6.183%
Monthly Tax Payment N/A N/A N/A
H/O Insurance Payment $125 $125 $125
Initial Principal & Interest Pmt $22,715 $23,332 $32,404
Total Monthly Payment $22,840 $23,457 $32,529

* The Initial Interest Rate and Initial Principal & Interest Payment are fixed for the first and adjust every six months thereafter for the remainder of the loan term. The Interest Rate and annual percentage rate may increase after consummation. The Index for this product is the SOFR. The margin for this adjustable rate mortgage may vary with your unique credit history, and terms of your loan.

** Mortgage Rates are subject to change, loan amount and product restrictions and may not be available for your specific transaction at commitment or closing. Rates, and the margin for adjustable rate mortgages [if applicable], are subject to change without prior notice.

The rates and Annual Percentage Rate (APR) cited above may be only samples for the purpose of calculating payments and are based upon the following assumptions: minimum credit score of 740, 20% down payment (e.g. $20,000 down on a $100,000 purchase price), $1,950 in finance charges, and 30 days prepaid interest, 1 point, 30 day rate lock. The rates and APR will vary depending upon your unique credit history and the terms of your loan, e.g. the actual down payment percentages, points and fees for your transaction. Property taxes and homeowner's insurance are estimates and subject to change.