130 Mountain View Drive, Swanton, VT, 05488 | $539,000

Meticulously maintained and set in a highly desirable neighborhood, this inviting 3-bedroom, 3-bath home offers the perfect setting for comfortable everyday living and memorable family moments. Filled with natural light, the home features welcoming living spaces and a formal dining room ideal for family dinners, holidays, and celebrations. The spacious primary bedroom provides a relaxing retreat with a private en suite bath and walk-in closet, while a large basement offers plenty of room for a play area, home gym, hobby space, or additional storage. A new roof adds peace of mind for years to come. Outside, enjoy summer evenings on the expansive back deck — perfect for barbecues, gatherings, and savoring summer evenings overlooking the beautiful one-acre yard. Conveniently located just minutes from Champlain Country Club, local restaurants, shopping, and I-89, this home offers the ideal balance of neighborhood charm, space to grow, and everyday convenience — a wonderful place to call home.

Features

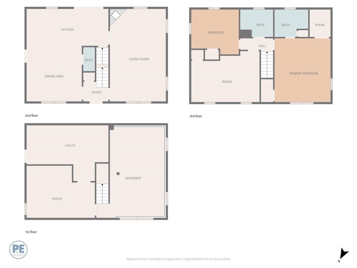
  • Rooms: 5
  • Bedrooms: 3
  • Baths: 2 full / 1 half
  • Style: Colonial
  • Year Built: 1999
  • Garage: 2-car Garage
  • Heating: Natural Gas,Baseboard
  • Cooling: None
  • Basement: Partially Finished
  • Approx Sq. Feet: 2,160
  • Acreage: 1
  • Est. Taxes: $5,608
  • Lot Desc: Landscaped,Near Golf Course,Near Shopping,Neighborhood
  • MLS#: 5076455
  • Website: https://www.raveis.com
    /prop/5076455/130mountainviewdrive_swanton_vt?source=qrflyer
©2026 New England Real Estate Network, Inc. All rights reserved.This information is deemed reliable, but not guaranteed. The data relating to real estate displayed on this Site comes in part from the IDX Program of PrimMLS. The information being provided is for consumers' personal, non-commercial use and may not be used for any purpose other than to identify prospective properties consumers may be interested in purchasing. Data last updated 5/13/2026

William Raveis Family of Services

Our family of companies partner in delivering quality services in a one-stop-shopping environment. Together, we integrate the most comprehensive real estate, mortgage and insurance services available to fulfill your specific real estate needs.

Annie Dillon - The Annie Dillon TeamSales Vice President

860.729.2998

Annie.Dillon@raveis.com

Our family of companies offer our clients a new level of full-service real estate. We shall:

  • Market your home to realize a quick sale at the best possible price
  • Place up to 20+ photos of your home on our website, raveis.com
  • Provide frequent communication and tracking reports showing the Internet views your home received on raveis.com
  • Showcase your home on raveis.com with a larger and more prominent format
  • Give you the full resources and strength of William Raveis Real Estate, Mortgage & Insurance and our cutting-edge technology

To learn more about our credentials, visit raveis.com today.

Russell BaboffVP, Mortgage Banker, William Raveis Mortgage, LLC

NMLS Mortgage Loan Originator ID 1014636

860.463.1745

Russell.Baboff@raveis.com

Our Executive Mortgage Banker:

  • Is available to meet with you in our office, your home or office, evenings or weekends
  • Offers you pre-approval in minutes!
  • Provides a guaranteed closing date that meets your needs
  • Has access to hundreds of loan programs, all at competitive rates
  • Is in constant contact with a full processing, underwriting, and closing staff to ensure an efficient transaction

John KirkutisVP, Mortgage Banker, William Raveis Mortgage, LLC

NMLS Mortgage Loan Originator ID 1424716

970.390.2521

John.Kirkutis@raveis.com

Our Executive Mortgage Banker:

  • Is available to meet with you in our office, your home or office, evenings or weekends
  • Offers you pre-approval in minutes!
  • Provides a guaranteed closing date that meets your needs
  • Has access to hundreds of loan programs, all at competitive rates
  • Is in constant contact with a full processing, underwriting, and closing staff to ensure an efficient transaction

Brian KellyInsurance Sales Director, William Raveis Insurance

860.655.6934

Brian.Kelly@raveis.com

Our Insurance Division:

  • Will Provide a home insurance quote within 24 hours
  • Offers full-service coverage such as Homeowner's, Auto, Life, Renter's, Flood and Valuable Items
  • Partners with major insurance companies including Chubb, Kemper Unitrin, The Hartford, Progressive,
    Encompass, Travelers, Fireman's Fund, Middleoak Mutual, One Beacon and American Reliable

130 Mountain View Drive, Swanton, VT, 05488

$539,000

Annie Dillon - The Annie Dillon Team

Sales Vice President

William Raveis Real Estate

Phone: 860.729.2998

Annie.Dillon@raveis.com

Russell Baboff

VP, Mortgage Banker

William Raveis Mortgage, LLC

Phone: 860.463.1745

Russell.Baboff@raveis.com

NMLS Mortgage Loan Originator ID 1014636

John Kirkutis

VP, Mortgage Banker

William Raveis Mortgage, LLC

Phone: 970.390.2521

John.Kirkutis@raveis.com

NMLS Mortgage Loan Originator ID 1424716

5/6 (30 Yr)
Adjustable Rate Conforming*
30 Year
Fixed-Rate Conforming
15 Year
Fixed-Rate Conforming
Loan Amount $431,200 $431,200 $431,200
Term 360 months 360 months 180 months
Initial Interest Rate** 5.990% 6.375% 5.490%
Interest Rate based on Index + Margin 8.125%
Annual Percentage Rate 6.370% 6.512% 5.730%
Monthly Tax Payment $467 $467 $467
H/O Insurance Payment $92 $92 $92
Initial Principal & Interest Pmt $2,582 $2,690 $3,521
Total Monthly Payment $3,141 $3,249 $4,080

* The Initial Interest Rate and Initial Principal & Interest Payment are fixed for the first and adjust every six months thereafter for the remainder of the loan term. The Interest Rate and annual percentage rate may increase after consummation. The Index for this product is the SOFR. The margin for this adjustable rate mortgage may vary with your unique credit history, and terms of your loan.

** Mortgage Rates are subject to change, loan amount and product restrictions and may not be available for your specific transaction at commitment or closing. Rates, and the margin for adjustable rate mortgages [if applicable], are subject to change without prior notice.

The rates and Annual Percentage Rate (APR) cited above may be only samples for the purpose of calculating payments and are based upon the following assumptions: minimum credit score of 740, 20% down payment (e.g. $20,000 down on a $100,000 purchase price), $1,950 in finance charges, and 30 days prepaid interest, 1 point, 30 day rate lock. The rates and APR will vary depending upon your unique credit history and the terms of your loan, e.g. the actual down payment percentages, points and fees for your transaction. Property taxes and homeowner's insurance are estimates and subject to change.