15 Greenridge Avenue, #25F, White Plains, NY, 10605 | $549,000

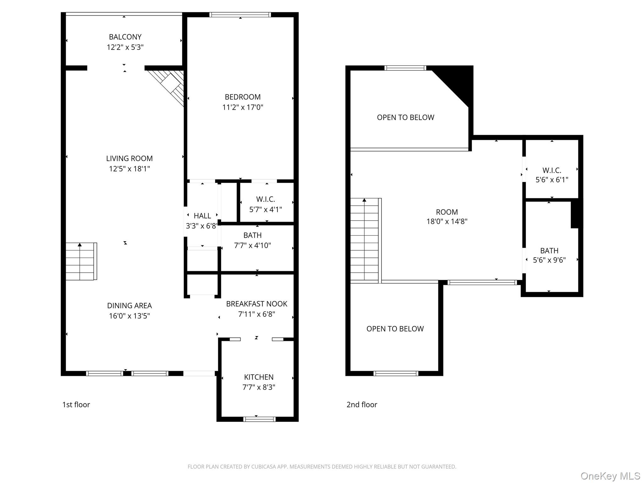
Welcome to The Highlands of Greenridge! This 2 bedroom, 2 bath top floor duplex truly feels like a house with its dramatic loft design and open, airy layout. Perfect for buyers looking to downsize while still enjoying space, or a first time home-buyer looking for just the right amount of space, light, and separate living areas. The main level offers a spacious living and dining area with hardwood floors and a charming wood-burning fireplace. Sliding glass doors open to a private deck, ideal for morning coffee, relaxing evenings, or entertaining. The galley style eat in kitchen is practical for everyday cooking and dining. The first floor primary bedroom features a generous closet and full bathroom, making one level living easy. Upstairs, the finished loft serves as a second bedroom, guest suite, or home office, complete with its own full bath and walk-in closet. Additional highlights include in unit washer/dryer, heat and hot water included in common charges, and one pet allowed. Comes with deeded indoor garage space and 1 outdoor assigned space. Conveniently located near shopping, restaurants, public transportation, and downtown White Plains, this home blends the ease of condo living with the privacy and charm of a house-like setting. Taxes do not include basic star exemption.

Features

  • Parking: 2-car, Assigned, Garage, Parking Lot, Private
  • Heating: Baseboard, Natural Gas
  • Cooling: Wall/Window Unit(s)
  • Levels: 2
  • Amenities: Landscaping, Maintenance Grounds, Parking, Trash
  • Rooms: 5
  • Bedrooms: 2
  • Baths: 2 full
  • Laundry: In Hall, In Unit
  • Complex: The Highlands At Greenridge
  • Year Built: 1985
  • Common Charge: $791 Monthly
  • Approx Sq. Feet: 1,356
  • Est. Taxes: $8,237
  • View: Neighborhood
  • Elem. School: White Plains (Controlled Parents’ Choice)
  • Middle School: White Plains Middle School
  • High School: White Plains Senior High School
  • School District: White Plains
  • Pet Policy: Cats OK, Dogs OK
  • Appliances: Dishwasher, Dryer, Electric Cooktop, Electric Oven, Electric Range, Microwave, Oven, Range, Refrigerator, Washer
  • MLS#: 951431
  • Days on Market: 64 days
  • Website: https://www.raveis.com
    /prop/951431/15greenridgeavenue_whiteplains_ny?source=qrflyer
Listing information has been assembled from various sources of varying degrees of reliability. Any information critical to the buying decision should be independently verified.Listing courtesy of Houlihan Lawrence Inc.   Phone: 914-328-8400

William Raveis Family of Services

Our family of companies partner in delivering quality services in a one-stop-shopping environment. Together, we integrate the most comprehensive real estate, mortgage and insurance services available to fulfill your specific real estate needs.

Customer Service

888.699.8876

Contact@raveis.com

Our family of companies offer our clients a new level of full-service real estate. We shall:

  • Market your home to realize a quick sale at the best possible price
  • Place up to 20+ photos of your home on our website, raveis.com
  • Provide frequent communication and tracking reports showing the Internet views your home received on raveis.com
  • Showcase your home on raveis.com with a larger and more prominent format
  • Give you the full resources and strength of William Raveis Real Estate, Mortgage & Insurance and our cutting-edge technology

To learn more about our credentials, visit raveis.com today.

Frank KolbSenior Vice President - Coaching & Strategic, William Raveis Mortgage, LLC

NMLS Mortgage Loan Originator ID 81725

203.980.8025

Frank.Kolb@raveis.com

Our Executive Mortgage Banker:

  • Is available to meet with you in our office, your home or office, evenings or weekends
  • Offers you pre-approval in minutes!
  • Provides a guaranteed closing date that meets your needs
  • Has access to hundreds of loan programs, all at competitive rates
  • Is in constant contact with a full processing, underwriting, and closing staff to ensure an efficient transaction

Ryan FortierInsurance Sales Director, William Raveis Insurance

516.739.7731

Ryan.Fortier@raveis.com

Our Insurance Division:

  • Will Provide a home insurance quote within 24 hours
  • Offers full-service coverage such as Homeowner's, Auto, Life, Renter's, Flood and Valuable Items
  • Partners with major insurance companies including Chubb, Kemper Unitrin, The Hartford, Progressive,
    Encompass, Travelers, Fireman's Fund, Middleoak Mutual, One Beacon and American Reliable

15 Greenridge Avenue, #25F, White Plains, NY, 10605

$549,000

Customer Service

William Raveis Real Estate

Phone: 888.699.8876

Contact@raveis.com

Frank Kolb

Senior Vice President - Coaching & Strategic

William Raveis Mortgage, LLC

Phone: 203.980.8025

Frank.Kolb@raveis.com

NMLS Mortgage Loan Originator ID 81725

5/6 (30 Yr)
Adjustable Rate Conforming*
30 Year
Fixed-Rate Conforming
15 Year
Fixed-Rate Conforming
Loan Amount $439,200 $439,200 $439,200
Term 360 months 360 months 180 months
Initial Interest Rate** 5.875% 6.125% 5.375%
Interest Rate based on Index + Margin 8.125%
Annual Percentage Rate 6.357% 6.304% 5.648%
Monthly Tax Payment $686 $686 $686
H/O Insurance Payment $92 $92 $92
Initial Principal & Interest Pmt $2,598 $2,669 $3,560
Total Monthly Payment $3,376 $3,447 $4,338

* The Initial Interest Rate and Initial Principal & Interest Payment are fixed for the first and adjust every six months thereafter for the remainder of the loan term. The Interest Rate and annual percentage rate may increase after consummation. The Index for this product is the SOFR. The margin for this adjustable rate mortgage may vary with your unique credit history, and terms of your loan.

** Mortgage Rates are subject to change, loan amount and product restrictions and may not be available for your specific transaction at commitment or closing. Rates, and the margin for adjustable rate mortgages [if applicable], are subject to change without prior notice.

The rates and Annual Percentage Rate (APR) cited above may be only samples for the purpose of calculating payments and are based upon the following assumptions: minimum credit score of 740, 20% down payment (e.g. $20,000 down on a $100,000 purchase price), $1,950 in finance charges, and 30 days prepaid interest, 1 point, 30 day rate lock. The rates and APR will vary depending upon your unique credit history and the terms of your loan, e.g. the actual down payment percentages, points and fees for your transaction. Property taxes and homeowner's insurance are estimates and subject to change.  The Total Monthly Payment does not include the estimated HOA/Common Charge payment.