19512 McLaughlin Avenue, Hollis, NY, 11423 | $1,178,000

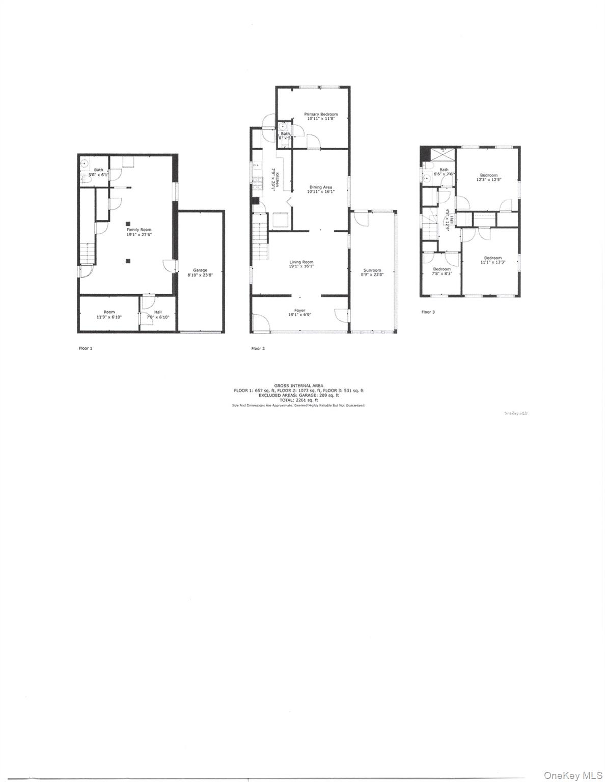
Step into a beautiful detached 4BR, 2. 5 Bath Colonial in the heart of ultra-desirable Holliswood, perfectly positioned within the prestigious School District 26. A Rare Holliswood Opportunity — The One Everyone Will Want, But Only One Can Have. Homes in this neighborhood are scarce to begin with — but a property offering this level of location, size, and future potential is almost never available. IMPORTANT UPDATE: EARLIER INFORMATION ABOUT THE LOT AND BUILDING SIZE WAS INCORRECT. THIS HOME SITS ON A 55 X120 (5, 390 SQ FT) lot with an existing 2, 261 sq ft interior floor area. Also with a . 6 FAR, you can expand up to a 3, 234 sq ft interior home — a tremendous advantage in one of Queens’ most sought-after enclaves. Opportunities like this simply do not come around often. Inside, the first floor opens with a grand foyer, leading to a lovely living room, formal dining room, eat-in kitchen, sunroom, bedroom, and full bath — a layout that delivers both comfort and flexibility. Upstairs, a long landing introduces three generous bedrooms and full bath. The huge finished walk-out lower level with its full bath offers endless possibilities — recreation, guest space, home office, gym, or multi-generational living. The property also features a one-car garage, a long driveway accommodating several vehicles, a free-standing storage shed, and an attic with the potential to be transformed into an impressive additional living area. The ability to create even more usable space makes this home an exceptional long-term investment. There is beautiful wood flooring throughout this beautiful home. Set on a picturesque tree-lined street, you’re just moments from houses of worship, transportation, and shopping — the perfect blend of peace, convenience, and community. Homes like this — with expansion potential, a prime Holliswood address, and top-tier District 26 schools — are the ones buyers wait years for. They rarely hit the market, and when they do, they never last. If you’ve been searching for the right Holliswood home, this is the one you cannot afford to miss.

Features

  • Rooms: 12
  • Bedrooms: 4
  • Baths: 2 full / 1 half
  • Style: Colonial
  • Year Built: 1925
  • Garage: 1-car
  • Heating: Baseboard, Hot Water, Natural Gas, Steam
  • Cooling: Wall/Window Unit(s)
  • Basement: Finished, Full, Storage Space, Walk-Out Access
  • Approx Sq. Feet: 2,261
  • Acreage: 0.1
  • Est. Taxes: $8,480
  • Lot Desc: Back Yard, Front Yard
  • Elem. School: Ps/Is 178 Holliswood
  • Middle School: Jhs 216 George J Ryan
  • High School: Benjamin N Cardozo High School
  • School District: Community District 26
  • Appliances: Microwave, Range, Refrigerator
  • MLS#: 956121
  • Days on Market: 1 day
  • Website: https://www.raveis.com
    /eprop/956121/19512mclaughlinavenue_hollis_ny?source=qrflyer
Listing information has been assembled from various sources of varying degrees of reliability. Any information critical to the buying decision should be independently verified.Listing courtesy of EXIT REALTY FIRST CHOICE   Phone: 718-380-2500

William Raveis Family of Services

Our family of companies partner in delivering quality services in a one-stop-shopping environment. Together, we integrate the most comprehensive real estate, mortgage and insurance services available to fulfill your specific real estate needs.

Customer Service

888.699.8876

Contact@raveis.com

Our family of companies offer our clients a new level of full-service real estate. We shall:

  • Market your home to realize a quick sale at the best possible price
  • Place up to 20+ photos of your home on our website, raveis.com
  • Provide frequent communication and tracking reports showing the Internet views your home received on raveis.com
  • Showcase your home on raveis.com with a larger and more prominent format
  • Give you the full resources and strength of William Raveis Real Estate, Mortgage & Insurance and our cutting-edge technology

To learn more about our credentials, visit raveis.com today.

Frank KolbSenior Vice President - Coaching & Strategic, William Raveis Mortgage, LLC

NMLS Mortgage Loan Originator ID 81725

203.980.8025

Frank.Kolb@raveis.com

Our Executive Mortgage Banker:

  • Is available to meet with you in our office, your home or office, evenings or weekends
  • Offers you pre-approval in minutes!
  • Provides a guaranteed closing date that meets your needs
  • Has access to hundreds of loan programs, all at competitive rates
  • Is in constant contact with a full processing, underwriting, and closing staff to ensure an efficient transaction

Ryan FortierInsurance Sales Director, William Raveis Insurance

516.739.7731

Ryan.Fortier@raveis.com

Our Insurance Division:

  • Will Provide a home insurance quote within 24 hours
  • Offers full-service coverage such as Homeowner's, Auto, Life, Renter's, Flood and Valuable Items
  • Partners with major insurance companies including Chubb, Kemper Unitrin, The Hartford, Progressive,
    Encompass, Travelers, Fireman's Fund, Middleoak Mutual, One Beacon and American Reliable

19512 McLaughlin Avenue, Hollis, NY, 11423

$1,178,000

Customer Service

William Raveis Real Estate

Phone: 888.699.8876

Contact@raveis.com

Frank Kolb

Senior Vice President - Coaching & Strategic

William Raveis Mortgage, LLC

Phone: 203.980.8025

Frank.Kolb@raveis.com

NMLS Mortgage Loan Originator ID 81725

5/6 (30 Yr)
Adjustable Rate Jumbo*
30 Year
Fixed-Rate Jumbo
15 Year
Fixed-Rate Jumbo
Loan Amount $942,400 $942,400 $942,400
Term 360 months 360 months 180 months
Initial Interest Rate** 5.125% 5.875% 5.625%
Interest Rate based on Index + Margin 8.125%
Annual Percentage Rate 6.021% 5.984% 5.806%
Monthly Tax Payment $707 $707 $707
H/O Insurance Payment $125 $125 $125
Initial Principal & Interest Pmt $5,131 $5,575 $7,763
Total Monthly Payment $5,963 $6,407 $8,595

* The Initial Interest Rate and Initial Principal & Interest Payment are fixed for the first and adjust every six months thereafter for the remainder of the loan term. The Interest Rate and annual percentage rate may increase after consummation. The Index for this product is the SOFR. The margin for this adjustable rate mortgage may vary with your unique credit history, and terms of your loan.

** Mortgage Rates are subject to change, loan amount and product restrictions and may not be available for your specific transaction at commitment or closing. Rates, and the margin for adjustable rate mortgages [if applicable], are subject to change without prior notice.

The rates and Annual Percentage Rate (APR) cited above may be only samples for the purpose of calculating payments and are based upon the following assumptions: minimum credit score of 740, 20% down payment (e.g. $20,000 down on a $100,000 purchase price), $1,950 in finance charges, and 30 days prepaid interest, 1 point, 30 day rate lock. The rates and APR will vary depending upon your unique credit history and the terms of your loan, e.g. the actual down payment percentages, points and fees for your transaction. Property taxes and homeowner's insurance are estimates and subject to change.