10 Old Route 9, Staatsburg, NY, 12580 | $9,500,000

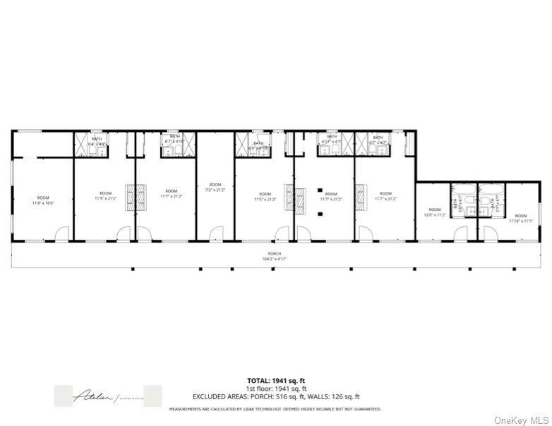
Belvedere Mansion at Pawling Manor An Enduring Hudson Valley Landmark of Rare Pedigree Set on 9. 52 secluded acres just minutes from Rhinebeck, Belvedere Mansion at Pawling Manor stands as one of the Hudson Valley’s most storied and versatile estates. Anchored by a grand, turn-of-the-century Georgian mansion, the property embodies over three centuries of American history while offering a refined canvas for contemporary luxury hospitality or private estate living. The six-bedroom main residence has been recently restored and thoughtfully redesigned, achieving a seamless balance between original architectural detail and sophisticated modern comfort. Period millwork, well-proportioned formal rooms, and historic finishes coexist effortlessly with updated systems and amenities, resulting in interiors that feel both elevated and timeless. Designed for hospitality use, the estate currently encompasses 22 guest rooms (plus three staff rooms) across three buildings, offering immediate operational flexibility. A separate bungalow structure—formerly housing six guest rooms—awaits renovation and presents a compelling opportunity to expand capacity by 4–6 (or more) additional keys, allowing a future owner to further enhance the property’s income potential and/or guest experience. Though located just four miles south of the Village of Rhinebeck, the estate sits within the Town of Hyde Park, in the hamlet of Staatsburg—an area recognized for its developer-friendly environment and strong support of hospitality projects. This unique positioning combines cultural proximity with favorable zoning rarely found in the region. Belvedere Mansion is not merely a residence or venue—it is a legacy estate, shaped by generations of visionaries and tastemakers. Its next steward is invited to guide the property into its next incarnation, whether as a world-class boutique hotel, wellness retreat, cultural destination, or extraordinary private compound. Zoning: Greenbelt, Hotel (nonconforming) History: The history of Pawling Manor begins in 1696, when the land formed part of a 6, 000-acre royal patent granted to Colonel Henry Pawling. According to records, by 1760, Pawling’s grandson, Major John Pawling, had established a stone and log residence on the site, anchoring what would become one of the Hudson Valley’s enduring estates. After the original structure was lost to fire in 1899, the current Georgian-style mansion was constructed in 1900 by H. R. Hastings, a prominent figure in New York’s Gilded Age society, reportedly as a wedding gift for his wife, Mary Hastings. The home was designed for entertaining and welcomed a distinguished social circle. The Beaux Art architecture firm Hoppin and Koen is recorded as having designed the current structure. Its principals, Frances Hoppin and Terence Koen were each mentored by McKim, Mead, and White. Hoppin and Koen are responsible for luminary Hudson Valley structures that include Blithewood and Springwood (FDR's Hyde Park home). William Schupp, who expanded it into Pawling Manor Farm, and later the Clyde Miller family. In 1959, the property entered a new era as Pawling Health Manor, a pioneering wellness retreat founded by Dr. Robert and Joy Gross. For more than thirty years, it attracted cultural icons including Elizabeth Taylor, James Earl Jones, Cicely Tyson, Miles Davis, Jerry Stiller, and others. The estate holds a unique boxing legacy, having hosted a regulation ring built by Dr. Gross, a former feather-weight boxing champion, where legendary trainer Cus D’Amato worked with his fighters. In the early 2000s, the property was reborn as Belvedere Mansion, a premier wedding and events destination—most notably serving as the site of Lin-Manuel Miranda’s wedding. Virtual Data Room Registration: https: //docsend. com/view/s/aa6. . . AMENITIES: Three Staff Rooms Commercial Kitchen Bar 2 Fireplaces Tennis Court Private Natural Pond

Features

  • Rooms: 58
  • Bedrooms: 25
  • Baths: 23 full / 2 half
  • Style: Estate
  • Year Built: 1900
  • Heating: Forced Air
  • Cooling: Central Air
  • Basement: Full, See Remarks, Storage Space
  • Approx Sq. Feet: 12,437
  • Acreage: 9.52
  • Est. Taxes: $42,187
  • Elem. School: Chancellor Livingston Elementary Sch
  • Middle School: Bulkeley Middle School
  • High School: Rhinebeck Senior High School
  • School District: Rhinebeck
  • Appliances: Convection Oven, Dishwasher, Exhaust Fan, Freezer, Gas Oven, Gas Range, Range, Refrigerator, Stainless Steel Appliance(s)
  • MLS#: 957965
  • Days on Market: 44 days
  • Website: https://www.raveis.com
    /eprop/957965/10oldroute9_staatsburg_ny?source=qrflyer
Listing information has been assembled from various sources of varying degrees of reliability. Any information critical to the buying decision should be independently verified.Listing courtesy of Atelier WM LLC   Phone: 917-817-5576

William Raveis Family of Services

Our family of companies partner in delivering quality services in a one-stop-shopping environment. Together, we integrate the most comprehensive real estate, mortgage and insurance services available to fulfill your specific real estate needs.

Customer Service

888.699.8876

Contact@raveis.com

Our family of companies offer our clients a new level of full-service real estate. We shall:

  • Market your home to realize a quick sale at the best possible price
  • Place up to 20+ photos of your home on our website, raveis.com
  • Provide frequent communication and tracking reports showing the Internet views your home received on raveis.com
  • Showcase your home on raveis.com with a larger and more prominent format
  • Give you the full resources and strength of William Raveis Real Estate, Mortgage & Insurance and our cutting-edge technology

To learn more about our credentials, visit raveis.com today.

Frank KolbSenior Vice President - Coaching & Strategic, William Raveis Mortgage, LLC

NMLS Mortgage Loan Originator ID 81725

203.980.8025

Frank.Kolb@raveis.com

Our Executive Mortgage Banker:

  • Is available to meet with you in our office, your home or office, evenings or weekends
  • Offers you pre-approval in minutes!
  • Provides a guaranteed closing date that meets your needs
  • Has access to hundreds of loan programs, all at competitive rates
  • Is in constant contact with a full processing, underwriting, and closing staff to ensure an efficient transaction

Ryan FortierInsurance Sales Director, William Raveis Insurance

516.739.7731

Ryan.Fortier@raveis.com

Our Insurance Division:

  • Will Provide a home insurance quote within 24 hours
  • Offers full-service coverage such as Homeowner's, Auto, Life, Renter's, Flood and Valuable Items
  • Partners with major insurance companies including Chubb, Kemper Unitrin, The Hartford, Progressive,
    Encompass, Travelers, Fireman's Fund, Middleoak Mutual, One Beacon and American Reliable

10 Old Route 9, Staatsburg, NY, 12580

$9,500,000

Customer Service

William Raveis Real Estate

Phone: 888.699.8876

Contact@raveis.com

Frank Kolb

Senior Vice President - Coaching & Strategic

William Raveis Mortgage, LLC

Phone: 203.980.8025

Frank.Kolb@raveis.com

NMLS Mortgage Loan Originator ID 81725

5/6 (30 Yr)
Adjustable Rate Jumbo*
30 Year
Fixed-Rate Jumbo
15 Year
Fixed-Rate Jumbo
Loan Amount $7,600,000 $7,600,000 $7,600,000
Term 360 months 360 months 180 months
Initial Interest Rate** 5.375% 6.000% 5.750%
Interest Rate based on Index + Margin 8.125%
Annual Percentage Rate 6.117% 6.110% 5.932%
Monthly Tax Payment $3,516 $3,516 $3,516
H/O Insurance Payment $125 $125 $125
Initial Principal & Interest Pmt $42,558 $45,566 $63,111
Total Monthly Payment $46,199 $49,207 $66,752

* The Initial Interest Rate and Initial Principal & Interest Payment are fixed for the first and adjust every six months thereafter for the remainder of the loan term. The Interest Rate and annual percentage rate may increase after consummation. The Index for this product is the SOFR. The margin for this adjustable rate mortgage may vary with your unique credit history, and terms of your loan.

** Mortgage Rates are subject to change, loan amount and product restrictions and may not be available for your specific transaction at commitment or closing. Rates, and the margin for adjustable rate mortgages [if applicable], are subject to change without prior notice.

The rates and Annual Percentage Rate (APR) cited above may be only samples for the purpose of calculating payments and are based upon the following assumptions: minimum credit score of 740, 20% down payment (e.g. $20,000 down on a $100,000 purchase price), $1,950 in finance charges, and 30 days prepaid interest, 1 point, 30 day rate lock. The rates and APR will vary depending upon your unique credit history and the terms of your loan, e.g. the actual down payment percentages, points and fees for your transaction. Property taxes and homeowner's insurance are estimates and subject to change.