205 Bostic Court, Pendleton, SC, 29670 | $612,500

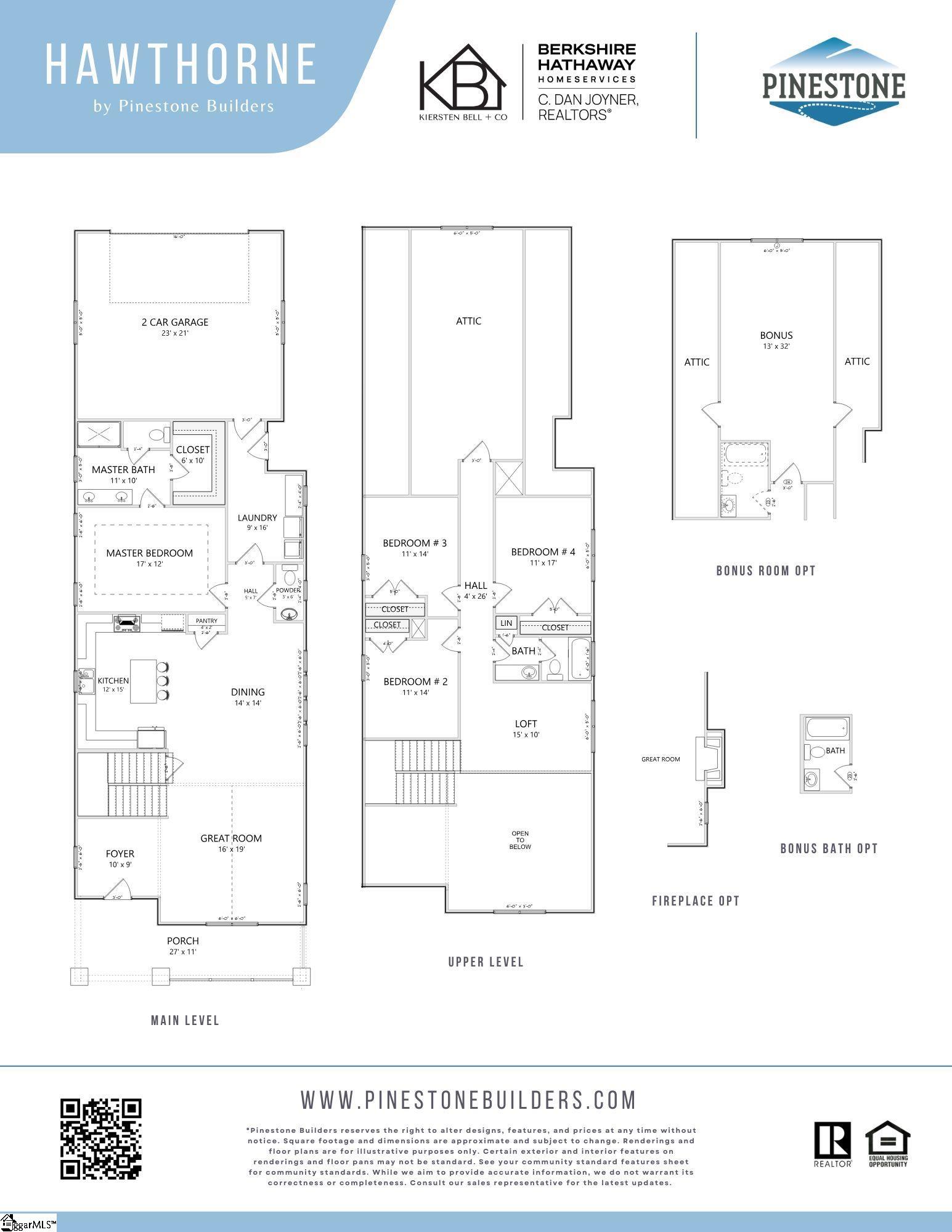
Welcome to Morton Farms by Pinestone Builders, where walkable living, front-porch charm, and modern convenience collide in the best possible way. Located in the heart of Downtown Pendleton, this golf-cart-friendly neighborhood is just 10 minutes from Clemson, sits on the CAT bus route, and offers a Clubhouse with Pickleball Courts, scenic walking trails, nature views, and a true sense of community. This thoughtfully designed floor plan checks all the boxes. The Primary bedroom on the main level is perfect for privacy and convenience. Situated towards the back of the home, it has a laundry room that dreams are made of (because laundry shouldn’t feel like punishment). Upstairs, 3 additional bedrooms, and a loft. The covered front porch extends your living space outdoors, ideal for morning coffee, evening chats, or waving to neighbors as they stroll by. Life at Morton Farms feels a little like a staycation. Residents enjoy the amenities all wrapped in a neighborhood that actually encourages connection. And when you’re ready to explore, downtown Pendleton’s boutiques, cafés, and locally loved restaurants are just a walk or short ride away, small-town, Hallmark-movie vibes included. Perfectly positioned: 10 minutes to Clemson. 20 minutes to Anderson. 35 minutes toGreenville. Looking to build your home with Pinestone? Come see what else we have to offer as a semi-custom, local builder. Pick a plan, pick a lot, pick your upgrades and finishes! See you soon!

Features

  • Amenities: Common Areas, Street Lights, Recreational Path, Sidewalks, Other, Lawn Maintenance, Landscape Maintenance, Walking Trails, Community Center
  • Bedrooms: 4
  • Baths: 2 full / 1 half
  • Laundry: 1st Floor, Walk-in, Electric Dryer Hookup, Washer Hookup, Laundry Room
  • Style: Craftsman
  • Year Built: 2026
  • Garage: 2-car Attached
  • Heating: Natural Gas
  • Cooling: Central Air, Electric
  • Basement: None
  • Acreage: 0.19
  • Est. Taxes: $0
  • HOA Fee: $200 Monthly
  • Lot Desc: 1/2 Acre or Less, Sidewalk
  • Elem. School: Pendleton
  • Middle School: Riverside
  • High School: Pendleton
  • Pets Allowed: Yes
  • Appliances: Cooktop, Dishwasher, Disposal, Electric Cooktop, Electric Oven, Free-Standing Electric Range, Microwave, Gas Water Heater, Tankless Water Heater
  • MLS#: 1580576
  • Days on Market: 87 days
  • Website: https://www.raveis.com
    /prop/1580576/205bosticcourt_pendleton_sc?source=qrflyer
Copyright © 2026  Greater Greenville Association of REALTORS®. All rights reserved
This information is deemed reliable, but not guaranteed. The data relating to real estate displayed on this Site comes in part from the IDX Program of Greater Greenville Association of REALTORs. The information being provided is for consumers' personal, non-commercial use and may not be used for any purpose other than to identify prospective properties consumers may be interested in purchasing.
Listing courtesy of BHHS C Dan Joyner - Midtown   Phone: 864-242-6650

William Raveis Family of Services

Our family of companies partner in delivering quality services in a one-stop-shopping environment. Together, we integrate the most comprehensive real estate, mortgage and insurance services available to fulfill your specific real estate needs.

Customer Service

888.699.8876

Contact@raveis.com

Our family of companies offer our clients a new level of full-service real estate. We shall:

  • Market your home to realize a quick sale at the best possible price
  • Place up to 20+ photos of your home on our website, raveis.com
  • Provide frequent communication and tracking reports showing the Internet views your home received on raveis.com
  • Showcase your home on raveis.com with a larger and more prominent format
  • Give you the full resources and strength of William Raveis Real Estate, Mortgage & Insurance and our cutting-edge technology

To learn more about our credentials, visit raveis.com today.

Melissa CohnRVP, Mortgage Banker, William Raveis Mortgage, LLC

NMLS Mortgage Loan Originator ID 16953

917.838.7300

Melissa.Cohn@raveis.com

Our Executive Mortgage Banker:

  • Is available to meet with you in our office, your home or office, evenings or weekends
  • Offers you pre-approval in minutes!
  • Provides a guaranteed closing date that meets your needs
  • Has access to hundreds of loan programs, all at competitive rates
  • Is in constant contact with a full processing, underwriting, and closing staff to ensure an efficient transaction

205 Bostic Court, Pendleton, SC, 29670

$612,500

Customer Service

William Raveis Real Estate

Phone: 888.699.8876

Contact@raveis.com

Melissa Cohn

RVP, Mortgage Banker

William Raveis Mortgage, LLC

Phone: 917.838.7300

Melissa.Cohn@raveis.com

NMLS Mortgage Loan Originator ID 16953

5/6 (30 Yr)
Adjustable Rate Conforming*
30 Year
Fixed-Rate Conforming
15 Year
Fixed-Rate Conforming
Loan Amount $490,000 $490,000 $490,000
Term 360 months 360 months 180 months
Initial Interest Rate** 5.875% 6.375% 5.490%
Interest Rate based on Index + Margin 8.125%
Annual Percentage Rate 6.301% 6.500% 5.691%
Monthly Tax Payment $0 $0 $0
H/O Insurance Payment $92 $92 $92
Initial Principal & Interest Pmt $2,899 $3,057 $4,001
Total Monthly Payment $2,991 $3,149 $4,093

* The Initial Interest Rate and Initial Principal & Interest Payment are fixed for the first and adjust every six months thereafter for the remainder of the loan term. The Interest Rate and annual percentage rate may increase after consummation. The Index for this product is the SOFR. The margin for this adjustable rate mortgage may vary with your unique credit history, and terms of your loan.

** Mortgage Rates are subject to change, loan amount and product restrictions and may not be available for your specific transaction at commitment or closing. Rates, and the margin for adjustable rate mortgages [if applicable], are subject to change without prior notice.

The rates and Annual Percentage Rate (APR) cited above may be only samples for the purpose of calculating payments and are based upon the following assumptions: minimum credit score of 740, 20% down payment (e.g. $20,000 down on a $100,000 purchase price), $1,950 in finance charges, and 30 days prepaid interest, 1 point, 30 day rate lock. The rates and APR will vary depending upon your unique credit history and the terms of your loan, e.g. the actual down payment percentages, points and fees for your transaction. Property taxes and homeowner's insurance are estimates and subject to change.  The Total Monthly Payment does not include the estimated HOA/Common Charge payment.