219 Artisan Drive, #Lot 2, Lyman, SC, 29365 | $489,900

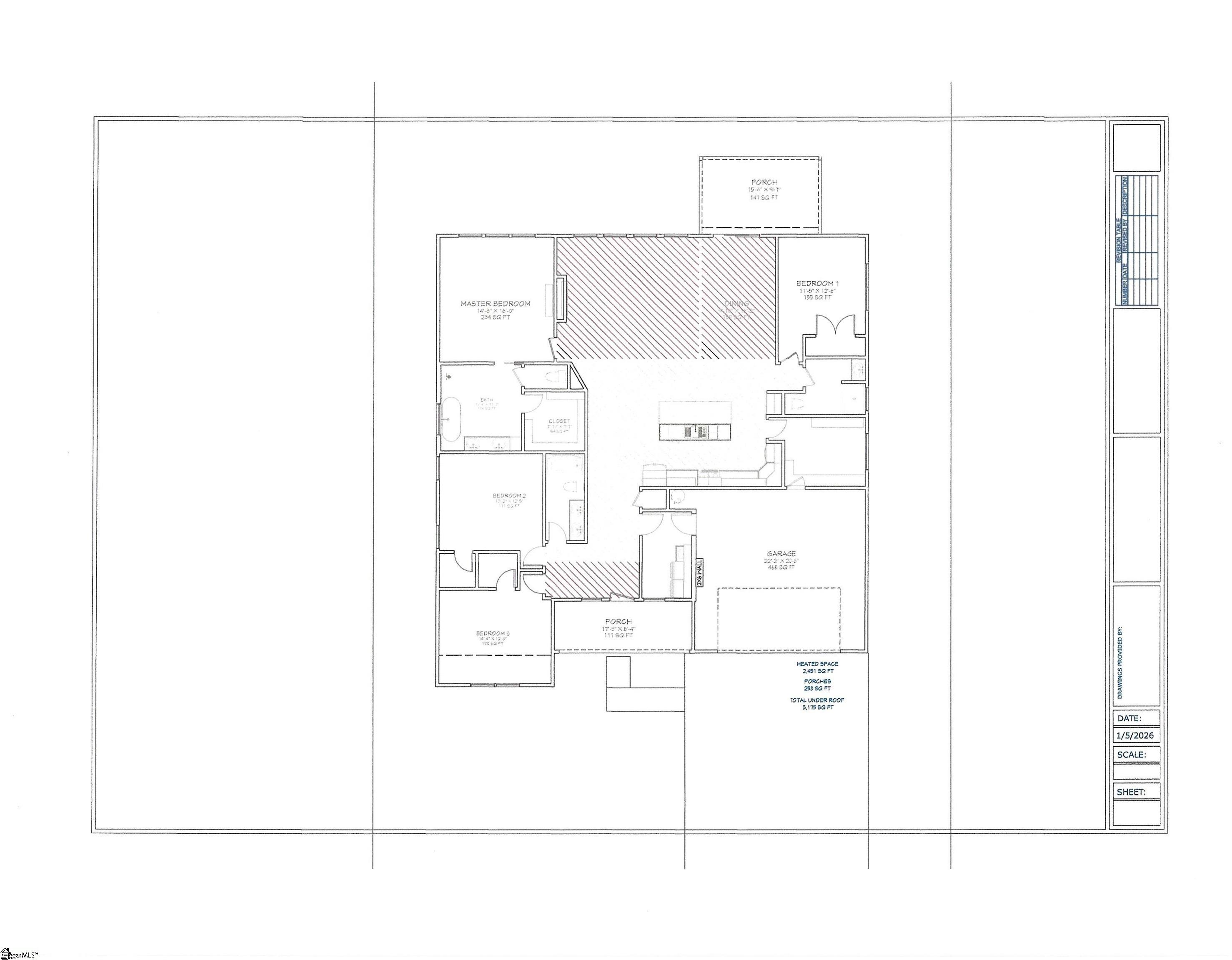
"Buyer Perks available to use for upgrades, closing costs, or rate buy-down with use of preferred lender and attorney". Woozier!!!! This home is going to be a show stopper!! Over 2450 heated sq ft on one level! Four super nice size bedrooms, three full baths, beautiful laundry room w/ a wet sink, and plenty of room to move about. This home is gorgeous! As you enter the front door. . . the 10 ft ceiling will blow you away! Open concept of living. Secondary bedroom upfront with a tub/shower bath, double vanity! Great-room is BIG!! Open to the dining area and stunning kitchen with an oversized island! The pantry itself is super cool. Once you open the door you will be like WOW what a pantry! Also has a door that opens to the garage for the convenience of carrying your groceries in. Owner suite is BIG!! Private bath features a soaking tub, super nice tile shower and floor, water closet, and plenty of room to move around. The 4th bedroom could be an in-law suite, guest room. . . it's private! Covered back porch. Lots of upgrades!! If you call soon. . . you may have time to pick colors!! Add your personal touch!

Features

  • Amenities: None
  • Bedrooms: 4
  • Baths: 3 full
  • Laundry: Sink, 1st Floor, Walk-in, Electric Dryer Hookup, Washer Hookup, Laundry Room
  • Style: Craftsman
  • Year Built: 2026
  • Garage: 2-car Attached
  • Heating: Electric, Heat Pump
  • Cooling: Electric, Heat Pump
  • Basement: None
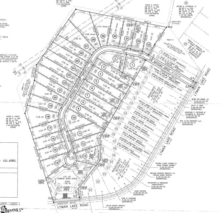
  • Acreage: 0.57
  • Est. Taxes: $50
  • HOA Fee: $45 Monthly
  • Lot Desc: 1/2 - Acre, Few Trees
  • View: Water
  • Elem. School: Lyman
  • Middle School: DR Hill
  • High School: James F. Byrnes
  • Appliances: Dishwasher, Disposal, Free-Standing Electric Range, Range, Microwave, Electric Water Heater
  • MLS#: 1580020
  • Days on Market: 112 days
  • Website: https://www.raveis.com
    /prop/1580020/219artisandrive_lyman_sc?source=qrflyer
This information is deemed reliable, but not guaranteed. The data relating to real estate displayed on this Site comes in part from the IDX Program of Greater Greenville Association of REALTORs. The information being provided is for consumers' personal, non-commercial use and may not be used for any purpose other than to identify prospective properties consumers may be interested in purchasing.

William Raveis Family of Services

Our family of companies partner in delivering quality services in a one-stop-shopping environment. Together, we integrate the most comprehensive real estate, mortgage and insurance services available to fulfill your specific real estate needs.

Elizabeth Vaca-RanieriBroker/Owner

917.685.8558

elizabeth.vaca@raveis.com

Our family of companies offer our clients a new level of full-service real estate. We shall:

  • Market your home to realize a quick sale at the best possible price
  • Place up to 20+ photos of your home on our website, raveis.com
  • Provide frequent communication and tracking reports showing the Internet views your home received on raveis.com
  • Showcase your home on raveis.com with a larger and more prominent format
  • Give you the full resources and strength of William Raveis Real Estate, Mortgage & Insurance and our cutting-edge technology

To learn more about our credentials, visit raveis.com today.

Melissa CohnRVP, Mortgage Banker, William Raveis Mortgage, LLC

NMLS Mortgage Loan Originator ID 16953

917.838.7300

Melissa.Cohn@raveis.com

Our Executive Mortgage Banker:

  • Is available to meet with you in our office, your home or office, evenings or weekends
  • Offers you pre-approval in minutes!
  • Provides a guaranteed closing date that meets your needs
  • Has access to hundreds of loan programs, all at competitive rates
  • Is in constant contact with a full processing, underwriting, and closing staff to ensure an efficient transaction

Heidi SummaInsurance Sales Director, William Raveis Insurance

860.919.8074

Heidi.Summa@raveis.com

Our Insurance Division:

  • Will Provide a home insurance quote within 24 hours
  • Offers full-service coverage such as Homeowner's, Auto, Life, Renter's, Flood and Valuable Items
  • Partners with major insurance companies including Chubb, Kemper Unitrin, The Hartford, Progressive,
    Encompass, Travelers, Fireman's Fund, Middleoak Mutual, One Beacon and American Reliable

219 Artisan Drive, #Lot 2, Lyman, SC, 29365

$489,900

Elizabeth Vaca-Ranieri

Broker/Owner

William Raveis Real Estate

Phone: 917.685.8558

elizabeth.vaca@raveis.com

Melissa Cohn

RVP, Mortgage Banker

William Raveis Mortgage, LLC

Phone: 917.838.7300

Melissa.Cohn@raveis.com

NMLS Mortgage Loan Originator ID 16953

5/6 (30 Yr)
Adjustable Rate Conforming*
30 Year
Fixed-Rate Conforming
15 Year
Fixed-Rate Conforming
Loan Amount $391,920 $391,920 $391,920
Term 360 months 360 months 180 months
Initial Interest Rate** 5.990% 6.375% 5.490%
Interest Rate based on Index + Margin 8.125%
Annual Percentage Rate 6.370% 6.524% 5.730%
Monthly Tax Payment $4 $4 $4
H/O Insurance Payment $75 $75 $75
Initial Principal & Interest Pmt $2,347 $2,445 $3,200
Total Monthly Payment $2,426 $2,524 $3,279

* The Initial Interest Rate and Initial Principal & Interest Payment are fixed for the first and adjust every six months thereafter for the remainder of the loan term. The Interest Rate and annual percentage rate may increase after consummation. The Index for this product is the SOFR. The margin for this adjustable rate mortgage may vary with your unique credit history, and terms of your loan.

** Mortgage Rates are subject to change, loan amount and product restrictions and may not be available for your specific transaction at commitment or closing. Rates, and the margin for adjustable rate mortgages [if applicable], are subject to change without prior notice.

The rates and Annual Percentage Rate (APR) cited above may be only samples for the purpose of calculating payments and are based upon the following assumptions: minimum credit score of 740, 20% down payment (e.g. $20,000 down on a $100,000 purchase price), $1,950 in finance charges, and 30 days prepaid interest, 1 point, 30 day rate lock. The rates and APR will vary depending upon your unique credit history and the terms of your loan, e.g. the actual down payment percentages, points and fees for your transaction. Property taxes and homeowner's insurance are estimates and subject to change.  The Total Monthly Payment does not include the estimated HOA/Common Charge payment.