1050 Tasker Lane, Greenport, NY, 11944 | $2,995,000

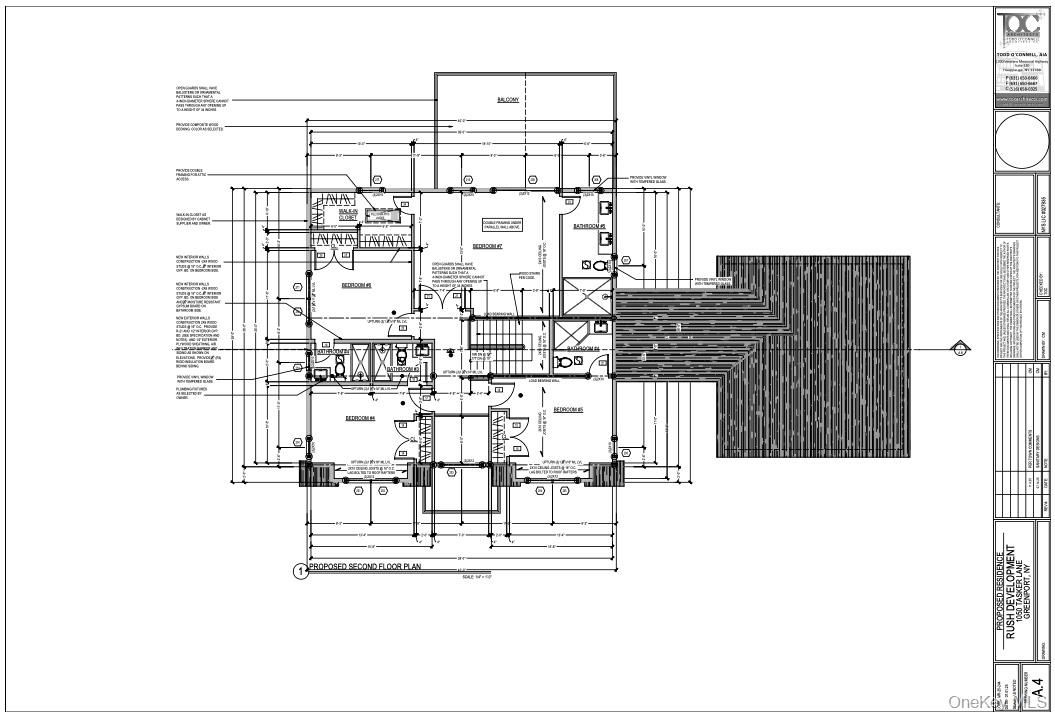
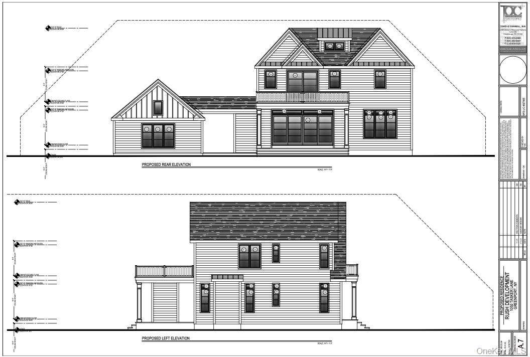
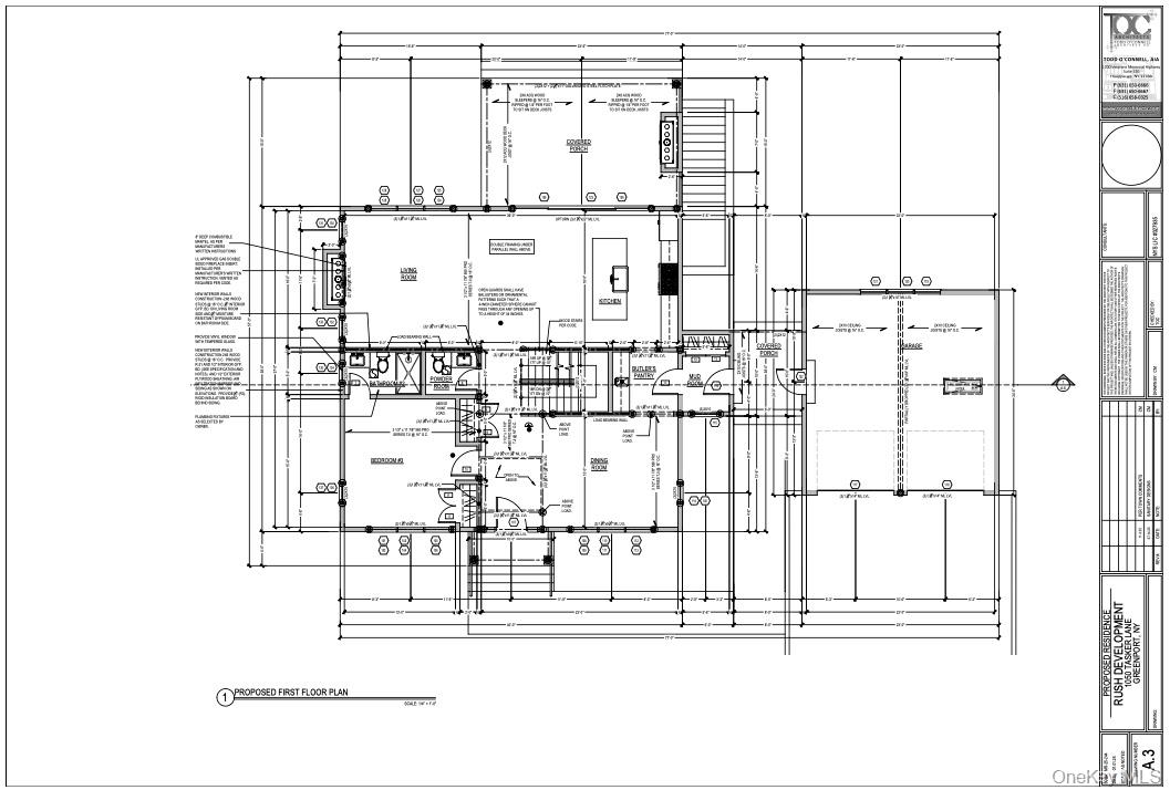
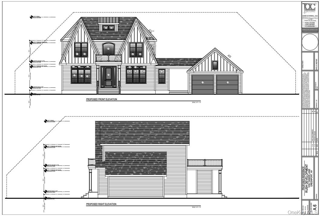
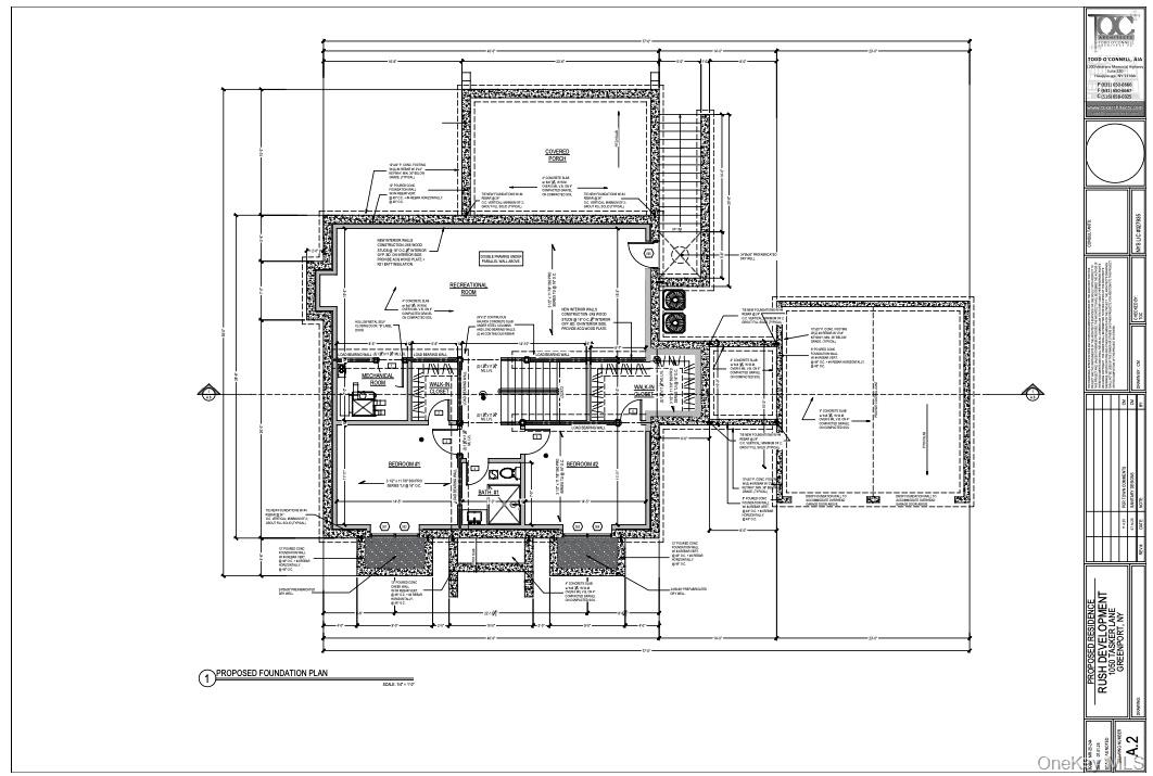
UNDER CONSTRUCTION -IN PHASE 1 - PROPERTY IS CLEARED, FOUNDATION POURED, CURING & FRAMING IS SCHEDULED - Introducing an exceptional opportunity to own a brand new construction home in Greenport’s coveted Eastern Shores where North Fork charm meets modern luxury living. Don't miss this opportunity to claim for yourself this thoughtfully designed, currently under construction and anticipated to be completed summer 2026 in time for your East End getaway. This stunning seven bedroom six and half bath residence offers 4, 544 sqft of refined living space designed with no desire left unrecognized. From the moment you arrive, you’ll appreciate the timeless architectural detail, modern farmhouse feel with a blend of contemporary finishes throughout. The open concept is ideal for entertaining featuring a chefs kitchen with oversized island, premium appliances, abundant cabinet space and butler pantry all flowing effortlessly into the spacious living room, formal dining room or out to the rear covered porch. Seven generously sized bedrooms include a expansive primary suite with oversized bathroom, walk in closet and private second story deck overlooking the backyard. Four of the bedrooms including the primary are on the second level, one bedroom on the main level and two bedrooms are located in the lower level all situated with their own respective bathrooms with the mindfulness around a main level bedroom with en suite full bath. Additional features in the build include a finished walk out lower level with recreational room, in ground vinyl pool and a detached two car garage. This beautifully crafter modern farmhouse is situated between the tranquil Inlet Pond and the beloved Kontokosta Winery also just minutes from the vibrant downtown of Greenport Village. This property is located on the north end of Tasker lane alongside a cleared public pathway with just a 2 minute walk to the famed 67 Step Beach of Greenport. Whether you’re seeking a year round residence, a second home or a vacation rental investment, 1050 Tasker Lane delivers a rare combination of location, luxury, and lifestyle on the North Fork.

Features

  • Rooms: 21
  • Bedrooms: 7
  • Baths: 6 full / 1 half
  • Style: Farmhouse
  • Year Built: 2026
  • Garage: 2-car
  • Heating: Forced Air
  • Cooling: Central Air, Ductwork
  • Basement: Finished, Full, Walk-Out Access
  • Approx Sq. Feet: 4,544
  • Acreage: 0.42
  • Est. Taxes: $0
  • Lot Desc: Cleared, Level, Private, Secluded
  • Water Front: Yes
  • Elem. School: Greenport Elementary School
  • Middle School: Greenport High School
  • High School: Greenport High School
  • School District: Greenport
  • Pool: In Ground, Vinyl
  • Appliances: Dishwasher, Dryer, Gas Range, Microwave, Refrigerator, Stainless Steel Appliance(s), Washer
  • MLS#: 954080
  • Days on Market: 54 days
  • Website: https://www.raveis.com
    /eprop/954080/1050taskerlane_greenport_ny?source=qrflyer
Listing information has been assembled from various sources of varying degrees of reliability. Any information critical to the buying decision should be independently verified.Listing courtesy of Realty Connect USA L I Inc   Phone: 631-881-5160

William Raveis Family of Services

Our family of companies partner in delivering quality services in a one-stop-shopping environment. Together, we integrate the most comprehensive real estate, mortgage and insurance services available to fulfill your specific real estate needs.

Customer Service

888.699.8876

Contact@raveis.com

Our family of companies offer our clients a new level of full-service real estate. We shall:

  • Market your home to realize a quick sale at the best possible price
  • Place up to 20+ photos of your home on our website, raveis.com
  • Provide frequent communication and tracking reports showing the Internet views your home received on raveis.com
  • Showcase your home on raveis.com with a larger and more prominent format
  • Give you the full resources and strength of William Raveis Real Estate, Mortgage & Insurance and our cutting-edge technology

To learn more about our credentials, visit raveis.com today.

Sarah DeFlorioVP, Mortgage Banker, William Raveis Mortgage, LLC

NMLS Mortgage Loan Originator ID 1880936

347.223.0992

Sarah.DeFlorio@Raveis.com

Our Executive Mortgage Banker:

  • Is available to meet with you in our office, your home or office, evenings or weekends
  • Offers you pre-approval in minutes!
  • Provides a guaranteed closing date that meets your needs
  • Has access to hundreds of loan programs, all at competitive rates
  • Is in constant contact with a full processing, underwriting, and closing staff to ensure an efficient transaction

Jennifer HartRegional Sales Manager, William Raveis Insurance

978.457.6220

Jennifer.Hart@raveis.com

Our Insurance Division:

  • Will Provide a home insurance quote within 24 hours
  • Offers full-service coverage such as Homeowner's, Auto, Life, Renter's, Flood and Valuable Items
  • Partners with major insurance companies including Chubb, Kemper Unitrin, The Hartford, Progressive,
    Encompass, Travelers, Fireman's Fund, Middleoak Mutual, One Beacon and American Reliable

1050 Tasker Lane, Greenport, NY, 11944

$2,995,000

Customer Service

William Raveis Real Estate

Phone: 888.699.8876

Contact@raveis.com

Sarah DeFlorio

VP, Mortgage Banker

William Raveis Mortgage, LLC

Phone: 347.223.0992

Sarah.DeFlorio@Raveis.com

NMLS Mortgage Loan Originator ID 1880936

5/6 (30 Yr)
Adjustable Rate Jumbo*
30 Year
Fixed-Rate Jumbo
15 Year
Fixed-Rate Jumbo
Loan Amount $2,396,000 $2,396,000 $2,396,000
Term 360 months 360 months 180 months
Initial Interest Rate** 5.500% 6.125% 5.875%
Interest Rate based on Index + Margin 8.125%
Annual Percentage Rate 6.165% 6.235% 6.058%
Monthly Tax Payment $0 $0 $0
H/O Insurance Payment $125 $125 $125
Initial Principal & Interest Pmt $13,604 $14,558 $20,057
Total Monthly Payment $13,729 $14,683 $20,182

* The Initial Interest Rate and Initial Principal & Interest Payment are fixed for the first and adjust every six months thereafter for the remainder of the loan term. The Interest Rate and annual percentage rate may increase after consummation. The Index for this product is the SOFR. The margin for this adjustable rate mortgage may vary with your unique credit history, and terms of your loan.

** Mortgage Rates are subject to change, loan amount and product restrictions and may not be available for your specific transaction at commitment or closing. Rates, and the margin for adjustable rate mortgages [if applicable], are subject to change without prior notice.

The rates and Annual Percentage Rate (APR) cited above may be only samples for the purpose of calculating payments and are based upon the following assumptions: minimum credit score of 740, 20% down payment (e.g. $20,000 down on a $100,000 purchase price), $1,950 in finance charges, and 30 days prepaid interest, 1 point, 30 day rate lock. The rates and APR will vary depending upon your unique credit history and the terms of your loan, e.g. the actual down payment percentages, points and fees for your transaction. Property taxes and homeowner's insurance are estimates and subject to change.