110-21 73 Road, #6H, Forest Hills, NY, 11375 | $475,000

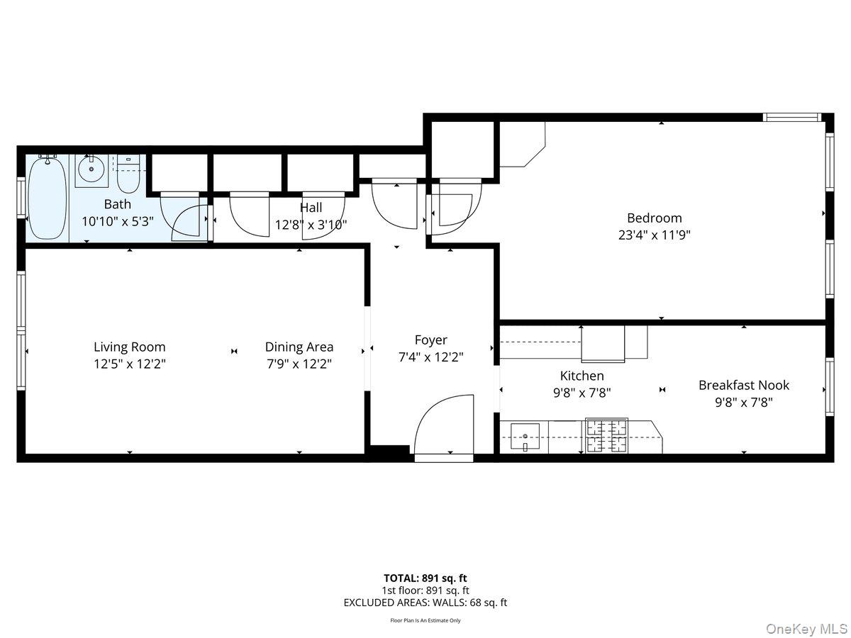
The distinctive building, constructed in 1937, sits just around the corner from the 75 Avenue Subway Station. A grand and spacious prewar resident, the Mayfair stands out as a classic example of early 20th century architectural elegance. This spacious apartment features generous rooms with a high calling, original parquet oak flooring, elegant arched doorways, and timeless architectural details. . The entryway opens into a foyer that flows into an eat-in-kitchen with a dedicated area for small dining table. A magnificent, oversized living room provides an inviting space that seamlessly connects the main living area. The living room faces southeast, filling the space with beautiful natural light throughout the day. The bedroom is thoughtfully separated from main living area by private hallway that includes a full bathroom and multiple closets. The bedroom itself is exceptionally large, featuring grand windows overlooking the quiet rear of the property along with additional closets that offer abundant storage, For those staying local, the shops and restaurants of Austen Street are just around the corner, and lush, historic Forest Hills Gardens is only 3 minutes stroll. The LIRR is also conveniently nearby that takes you to Grand Central and Penn Station in 15 minutes.

Features

  • Heating: Steam
  • Cooling: Wall/Window Unit(s)
  • Rooms: 4
  • Bedrooms: 1
  • Baths: 1 full
  • Year Built: 1937
  • Approx Sq. Feet: 975
  • Elem. School: Ps 101 School In The Gardens
  • Middle School: Jhs 190 Russell Sage
  • High School: Forest Hills High School
  • School District: Community District 28
  • Pets Allowed: No
  • Appliances: Convection Oven, Dishwasher
  • MLS#: 953386
  • Days on Market: 1 day
  • Website: https://www.raveis.com
    /prop/953386/1102173road_foresthills_ny?source=qrflyer
Listing information has been assembled from various sources of varying degrees of reliability. Any information critical to the buying decision should be independently verified.Listing courtesy of Daniel Gale Sothebys Intl Rlty   Phone: 718-762-2268

William Raveis Family of Services

Our family of companies partner in delivering quality services in a one-stop-shopping environment. Together, we integrate the most comprehensive real estate, mortgage and insurance services available to fulfill your specific real estate needs.

Customer Service

888.699.8876

Contact@raveis.com

Our family of companies offer our clients a new level of full-service real estate. We shall:

  • Market your home to realize a quick sale at the best possible price
  • Place up to 20+ photos of your home on our website, raveis.com
  • Provide frequent communication and tracking reports showing the Internet views your home received on raveis.com
  • Showcase your home on raveis.com with a larger and more prominent format
  • Give you the full resources and strength of William Raveis Real Estate, Mortgage & Insurance and our cutting-edge technology

To learn more about our credentials, visit raveis.com today.

Frank KolbSenior Vice President - Coaching & Strategic, William Raveis Mortgage, LLC

NMLS Mortgage Loan Originator ID 81725

203.980.8025

Frank.Kolb@raveis.com

Our Executive Mortgage Banker:

  • Is available to meet with you in our office, your home or office, evenings or weekends
  • Offers you pre-approval in minutes!
  • Provides a guaranteed closing date that meets your needs
  • Has access to hundreds of loan programs, all at competitive rates
  • Is in constant contact with a full processing, underwriting, and closing staff to ensure an efficient transaction

Ryan FortierInsurance Sales Director, William Raveis Insurance

516.739.7731

Ryan.Fortier@raveis.com

Our Insurance Division:

  • Will Provide a home insurance quote within 24 hours
  • Offers full-service coverage such as Homeowner's, Auto, Life, Renter's, Flood and Valuable Items
  • Partners with major insurance companies including Chubb, Kemper Unitrin, The Hartford, Progressive,
    Encompass, Travelers, Fireman's Fund, Middleoak Mutual, One Beacon and American Reliable

110-21 73 Road, #6H, Forest Hills, NY, 11375

$475,000

Customer Service

William Raveis Real Estate

Phone: 888.699.8876

Contact@raveis.com

Frank Kolb

Senior Vice President - Coaching & Strategic

William Raveis Mortgage, LLC

Phone: 203.980.8025

Frank.Kolb@raveis.com

NMLS Mortgage Loan Originator ID 81725

5/6 (30 Yr)
Adjustable Rate Conforming*
30 Year
Fixed-Rate Conforming
15 Year
Fixed-Rate Conforming
Loan Amount $380,000 $380,000 $380,000
Term 360 months 360 months 180 months
Initial Interest Rate** 5.375% 5.990% 5.250%
Interest Rate based on Index + Margin 8.125%
Annual Percentage Rate 6.161% 6.168% 5.541%
Monthly Tax Payment N/A N/A N/A
H/O Insurance Payment $75 $75 $75
Initial Principal & Interest Pmt $2,128 $2,276 $3,055
Total Monthly Payment $2,203 $2,351 $3,130

* The Initial Interest Rate and Initial Principal & Interest Payment are fixed for the first and adjust every six months thereafter for the remainder of the loan term. The Interest Rate and annual percentage rate may increase after consummation. The Index for this product is the SOFR. The margin for this adjustable rate mortgage may vary with your unique credit history, and terms of your loan.

** Mortgage Rates are subject to change, loan amount and product restrictions and may not be available for your specific transaction at commitment or closing. Rates, and the margin for adjustable rate mortgages [if applicable], are subject to change without prior notice.

The rates and Annual Percentage Rate (APR) cited above may be only samples for the purpose of calculating payments and are based upon the following assumptions: minimum credit score of 740, 20% down payment (e.g. $20,000 down on a $100,000 purchase price), $1,950 in finance charges, and 30 days prepaid interest, 1 point, 30 day rate lock. The rates and APR will vary depending upon your unique credit history and the terms of your loan, e.g. the actual down payment percentages, points and fees for your transaction. Property taxes and homeowner's insurance are estimates and subject to change.