5047 W Hummingbird DR, Labelle, FL, 33935 | $33,500

Unique opportunity to begin construction right away with no entitlement delays or unnecessary holding costs. Three adjacent lots located in the fast-growing Port LaBelle area offer strong resale potential and an efficient build setup ideal for builders and investors.

Each lot is fully entitled and ready to go, including an approved building permit, impact fees already waived (approximately $7, 000 in savings), approved septic permit, paid waste agreements, and completed survey, site plan, and architectural plans.

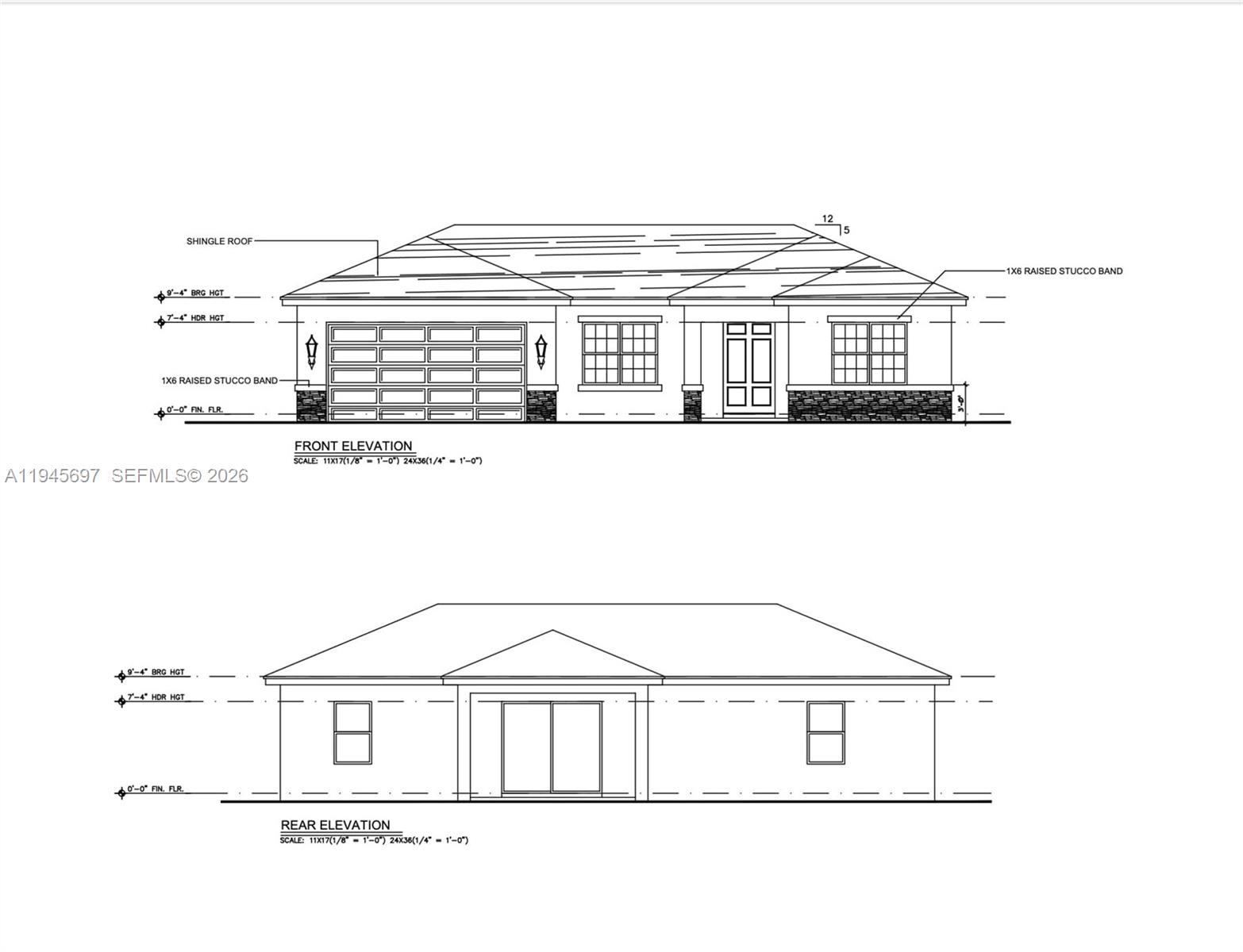
The approved home plan features 1, 305 square feet of living space with 3 bedrooms, 2 bathrooms, a 2-car garage, and a covered lanai. Vaulted ceilings in the main living area create an open, light-filled layout. A rear easement adds separation and privacy from neighboring properties.

The seller can also construct the home using the approved plans, providing a streamlined turnkey construction option. Based on recent comparable new construction, the completed home would be competitively priced under $295, 000 while still supporting a profitable project.

Subcontractor contacts, construction budgets, and lender referrals are available for qualified buyers. All permits and approvals can be transferred into the buyer’s name at closing.

Features

  • Amenities: Non-Gated
  • Frontage: 0
  • Lot Desc: 3 Lots
  • View: Landscaped Area
  • MLS#: 226002094
  • Days on Market: 19 days
  • Website: https://www.raveis.com
    /prop/226002094/5047whummingbirddr_labelle_fl?source=qrflyer
Copyright © 2026  The source of this real property information is the copyrighted and proprietary database compilation of the Southwest Florida MLS organizations Copyright Southwest Florida MLS organizations. All rights reserved.
The data relating to real estate for sale displayed on this Website comes in part from the Multiple Listing Service of the Bonita Springs-Estero Association of REALTORS®, Inc., under License No. BK3330055FL. Properties displayed on this Website include properties listed with brokerage firms other than William Raveis Real Estate. Detailed information about such properties includes the name of the brokerage firm with which the seller has listed the property. The properties displayed may not be all the properties listed with brokerage firms participating in the Bonita Springs-Estero Association of REALTORS® Multiple Listing Service, or contained in the database compilation of the Bonita Springs-Estero Association of REALTORS™ Multiple Listing Service.
Listing courtesy of Knowledge Base Real Estate   Phone: 239-282-4705

William Raveis Family of Services

Our family of companies partner in delivering quality services in a one-stop-shopping environment. Together, we integrate the most comprehensive real estate, mortgage and insurance services available to fulfill your specific real estate needs.

Customer Service

888.699.8876

Contact@raveis.com

Our family of companies offer our clients a new level of full-service real estate. We shall:

  • Market your home to realize a quick sale at the best possible price
  • Place up to 20+ photos of your home on our website, raveis.com
  • Provide frequent communication and tracking reports showing the Internet views your home received on raveis.com
  • Showcase your home on raveis.com with a larger and more prominent format
  • Give you the full resources and strength of William Raveis Real Estate, Mortgage & Insurance and our cutting-edge technology

To learn more about our credentials, visit raveis.com today.

Melissa CohnRVP, Mortgage Banker, William Raveis Mortgage, LLC

NMLS Mortgage Loan Originator ID 16953

917.838.7300

Melissa.Cohn@raveis.com

Our Executive Mortgage Banker:

  • Is available to meet with you in our office, your home or office, evenings or weekends
  • Offers you pre-approval in minutes!
  • Provides a guaranteed closing date that meets your needs
  • Has access to hundreds of loan programs, all at competitive rates
  • Is in constant contact with a full processing, underwriting, and closing staff to ensure an efficient transaction

Pedro DelgadilloInsurance Sales Director, William Raveis Insurance

305.922.5393

Pedro.Delgadillo@raveis.com

Our Insurance Division:

  • Will Provide a home insurance quote within 24 hours
  • Offers full-service coverage such as Homeowner's, Auto, Life, Renter's, Flood and Valuable Items
  • Partners with major insurance companies including Chubb, Kemper Unitrin, The Hartford, Progressive,
    Encompass, Travelers, Fireman's Fund, Middleoak Mutual, One Beacon and American Reliable

5047 W Hummingbird DR, Labelle, FL, 33935

$33,500

Customer Service

William Raveis Real Estate

Phone: 888.699.8876

Contact@raveis.com

Melissa Cohn

RVP, Mortgage Banker

William Raveis Mortgage, LLC

Phone: 917.838.7300

Melissa.Cohn@raveis.com

NMLS Mortgage Loan Originator ID 16953

5/6 (30 Yr)
Adjustable Rate Conforming*
30 Year
Fixed-Rate Conforming
15 Year
Fixed-Rate Conforming
Loan Amount $26,800 $26,800 $26,800
Term 360 months 360 months 180 months
Initial Interest Rate** 5.500% 6.000% 5.250%
Interest Rate based on Index + Margin 8.125%
Annual Percentage Rate 6.209% 6.178% 5.541%
Monthly Tax Payment N/A N/A N/A
H/O Insurance Payment $75 $75 $75
Initial Principal & Interest Pmt $152 $161 $215
Total Monthly Payment $227 $236 $290

* The Initial Interest Rate and Initial Principal & Interest Payment are fixed for the first and adjust every six months thereafter for the remainder of the loan term. The Interest Rate and annual percentage rate may increase after consummation. The Index for this product is the SOFR. The margin for this adjustable rate mortgage may vary with your unique credit history, and terms of your loan.

** Mortgage Rates are subject to change, loan amount and product restrictions and may not be available for your specific transaction at commitment or closing. Rates, and the margin for adjustable rate mortgages [if applicable], are subject to change without prior notice.

The rates and Annual Percentage Rate (APR) cited above may be only samples for the purpose of calculating payments and are based upon the following assumptions: minimum credit score of 740, 20% down payment (e.g. $20,000 down on a $100,000 purchase price), $1,950 in finance charges, and 30 days prepaid interest, 1 point, 30 day rate lock. The rates and APR will vary depending upon your unique credit history and the terms of your loan, e.g. the actual down payment percentages, points and fees for your transaction. Property taxes and homeowner's insurance are estimates and subject to change.