5730 Mosholu Avenue, #5F, Bronx, NY, 10471 | $175,000

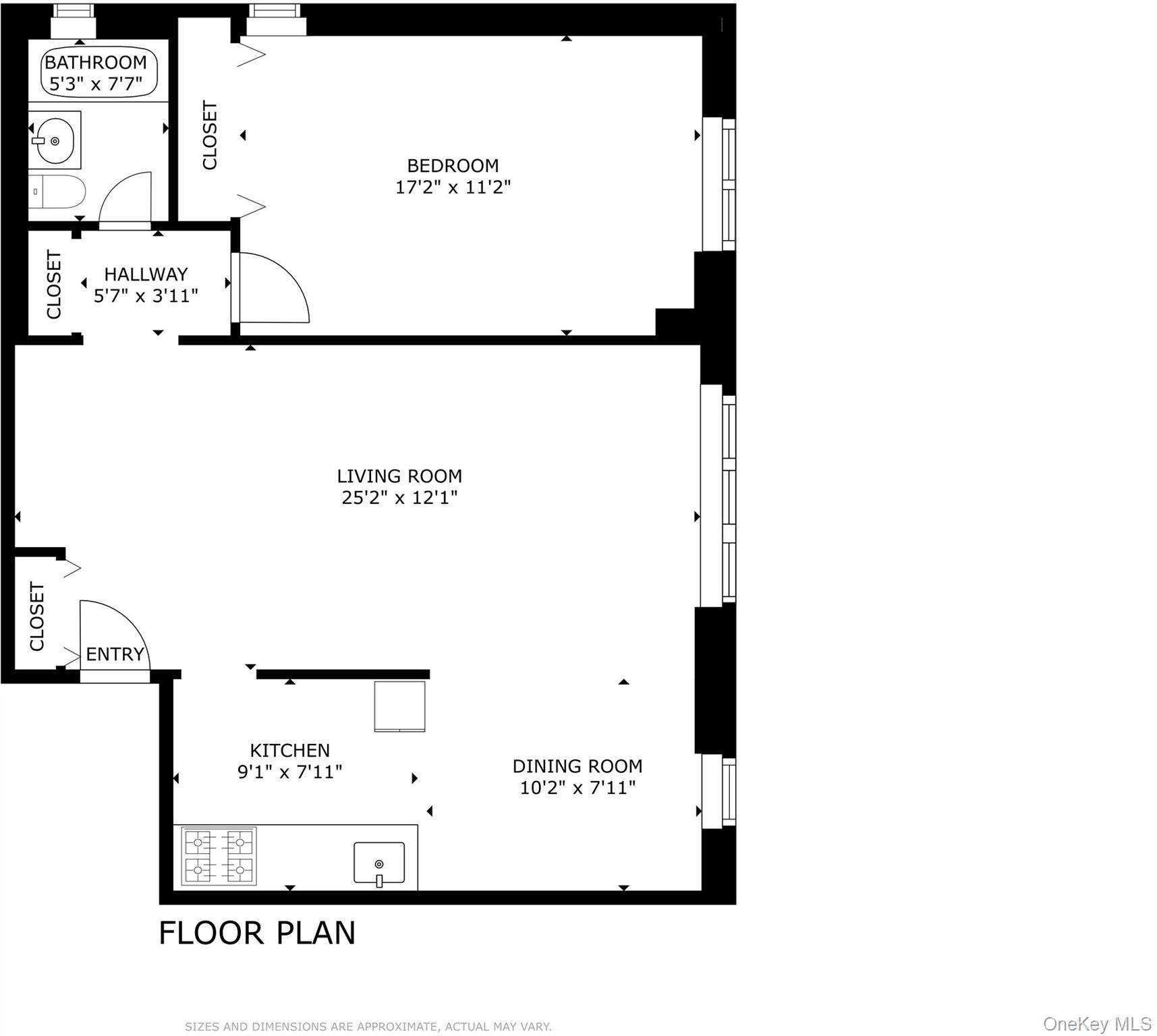
Welcome to 5730 Mosholu Avenue, Unit 5F! This delightful one-bedroom co-op in the charming North Riverdale neighborhood offers a cozy urban retreat on the 5th floor of a well-maintained post-war low-rise building. Step into a sunlit space with a south-facing exposure, flooding the rooms with natural light and complementing the rich hardwood floors that run throughout the unit. The inviting L-shaped living area provides a perfect nook for dining, creating a harmonious blend of space and comfort adjacent to the separate kitchen. The bedroom is generously sized, accommodating a queen or king-sized bed and additional furnishings with ease. Enjoy a fully functional windowed bathroom with a pedestal sink and tub. Three large closets complete this spacious unit. This pet friendly building boasts a convenient elevator, resident super and garage parking (wait listed). North Riverdale's tranquil yet vibrant community offers ample conveniences and recreation. You're minutes away from the lush expanses of Van Cortlandt Park, renowned for its outdoor activities and scenic landscapes. For daily commuters, the #1 train and local and local/express buses provide effortless transit options into the heart of New York City. Delight in nearby dining experiences such as Beccofino, Frida's Tacos, and Emiliano's, along with numerous shops that cater to your every need. In addition, Horace Mann and other private colleges are also nearby. Don't miss the opportunity to make this lovely space your own. Schedule your viewing and discover the exceptional lifestyle that awaits you at 5730 Mosholu Avenue!

Features

  • Parking: Waitlist
  • Heating: Radiant, Other
  • Cooling: Wall/Window Unit(s)
  • Rooms: 3
  • Bedrooms: 1
  • Baths: 1 full
  • Year Built: 1963
  • Approx Sq. Feet: 705
  • Elem. School: Contact Agent
  • High School: Contact Agent
  • School District: Contact Agent
  • Pets Allowed: Yes
  • Appliances: Gas Range, Refrigerator
  • MLS#: 950185
  • Days on Market: 86 days
  • Website: https://www.raveis.com
    /prop/950185/5730mosholuavenue_bronx_ny?source=qrflyer
Listing information has been assembled from various sources of varying degrees of reliability. Any information critical to the buying decision should be independently verified.

William Raveis Family of Services

Our family of companies partner in delivering quality services in a one-stop-shopping environment. Together, we integrate the most comprehensive real estate, mortgage and insurance services available to fulfill your specific real estate needs.

Dee RoiderLicensed Associate Real Estate Broker

914.393.3458

Dee.Roider@raveis.com

Our family of companies offer our clients a new level of full-service real estate. We shall:

  • Market your home to realize a quick sale at the best possible price
  • Place up to 20+ photos of your home on our website, raveis.com
  • Provide frequent communication and tracking reports showing the Internet views your home received on raveis.com
  • Showcase your home on raveis.com with a larger and more prominent format
  • Give you the full resources and strength of William Raveis Real Estate, Mortgage & Insurance and our cutting-edge technology

To learn more about our credentials, visit raveis.com today.

Vincent DiMellaVP, Mortgage Banker, William Raveis Mortgage, LLC

NMLS Mortgage Loan Originator ID 24240

914.494.1459

Vincent.DiMella@raveis.com

Our Executive Mortgage Banker:

  • Is available to meet with you in our office, your home or office, evenings or weekends
  • Offers you pre-approval in minutes!
  • Provides a guaranteed closing date that meets your needs
  • Has access to hundreds of loan programs, all at competitive rates
  • Is in constant contact with a full processing, underwriting, and closing staff to ensure an efficient transaction

Jennifer HartRegional Sales Manager, William Raveis Insurance

978.457.6220

Jennifer.Hart@raveis.com

Our Insurance Division:

  • Will Provide a home insurance quote within 24 hours
  • Offers full-service coverage such as Homeowner's, Auto, Life, Renter's, Flood and Valuable Items
  • Partners with major insurance companies including Chubb, Kemper Unitrin, The Hartford, Progressive,
    Encompass, Travelers, Fireman's Fund, Middleoak Mutual, One Beacon and American Reliable

5730 Mosholu Avenue, #5F, Bronx, NY, 10471

$175,000

Dee Roider

Licensed Associate Real Estate Broker

William Raveis Real Estate

Phone: 914.393.3458

Dee.Roider@raveis.com

Vincent DiMella

VP, Mortgage Banker

William Raveis Mortgage, LLC

Phone: 914.494.1459

Vincent.DiMella@raveis.com

NMLS Mortgage Loan Originator ID 24240

5/6 (30 Yr)
Adjustable Rate Conforming*
30 Year
Fixed-Rate Conforming
15 Year
Fixed-Rate Conforming
Loan Amount $140,000 $140,000 $140,000
Term 360 months 360 months 180 months
Initial Interest Rate** 5.625% 6.625% 5.750%
Interest Rate based on Index + Margin 8.125%
Annual Percentage Rate 6.133% 6.739% 5.952%
Monthly Tax Payment N/A N/A N/A
H/O Insurance Payment $75 $75 $75
Initial Principal & Interest Pmt $806 $896 $1,163
Total Monthly Payment $881 $971 $1,238

* The Initial Interest Rate and Initial Principal & Interest Payment are fixed for the first and adjust every six months thereafter for the remainder of the loan term. The Interest Rate and annual percentage rate may increase after consummation. The Index for this product is the SOFR. The margin for this adjustable rate mortgage may vary with your unique credit history, and terms of your loan.

** Mortgage Rates are subject to change, loan amount and product restrictions and may not be available for your specific transaction at commitment or closing. Rates, and the margin for adjustable rate mortgages [if applicable], are subject to change without prior notice.

The rates and Annual Percentage Rate (APR) cited above may be only samples for the purpose of calculating payments and are based upon the following assumptions: minimum credit score of 740, 20% down payment (e.g. $20,000 down on a $100,000 purchase price), $1,950 in finance charges, and 30 days prepaid interest, 1 point, 30 day rate lock. The rates and APR will vary depending upon your unique credit history and the terms of your loan, e.g. the actual down payment percentages, points and fees for your transaction. Property taxes and homeowner's insurance are estimates and subject to change.