446 Madeira Ave, Coral Gables, FL, 33134 | $2,195,000

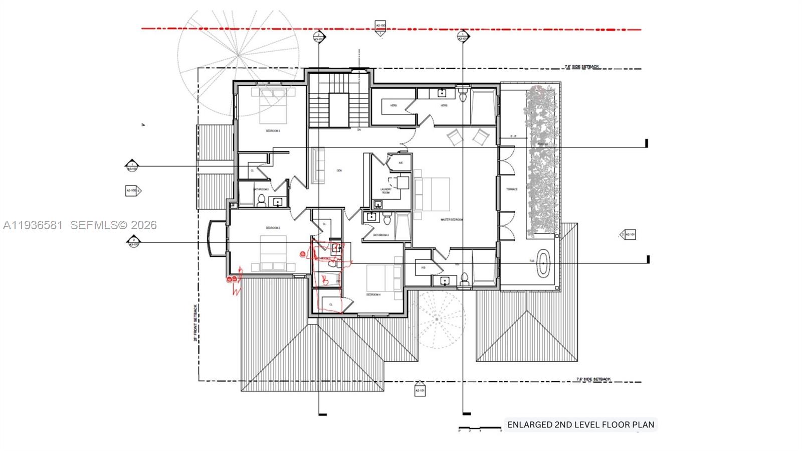
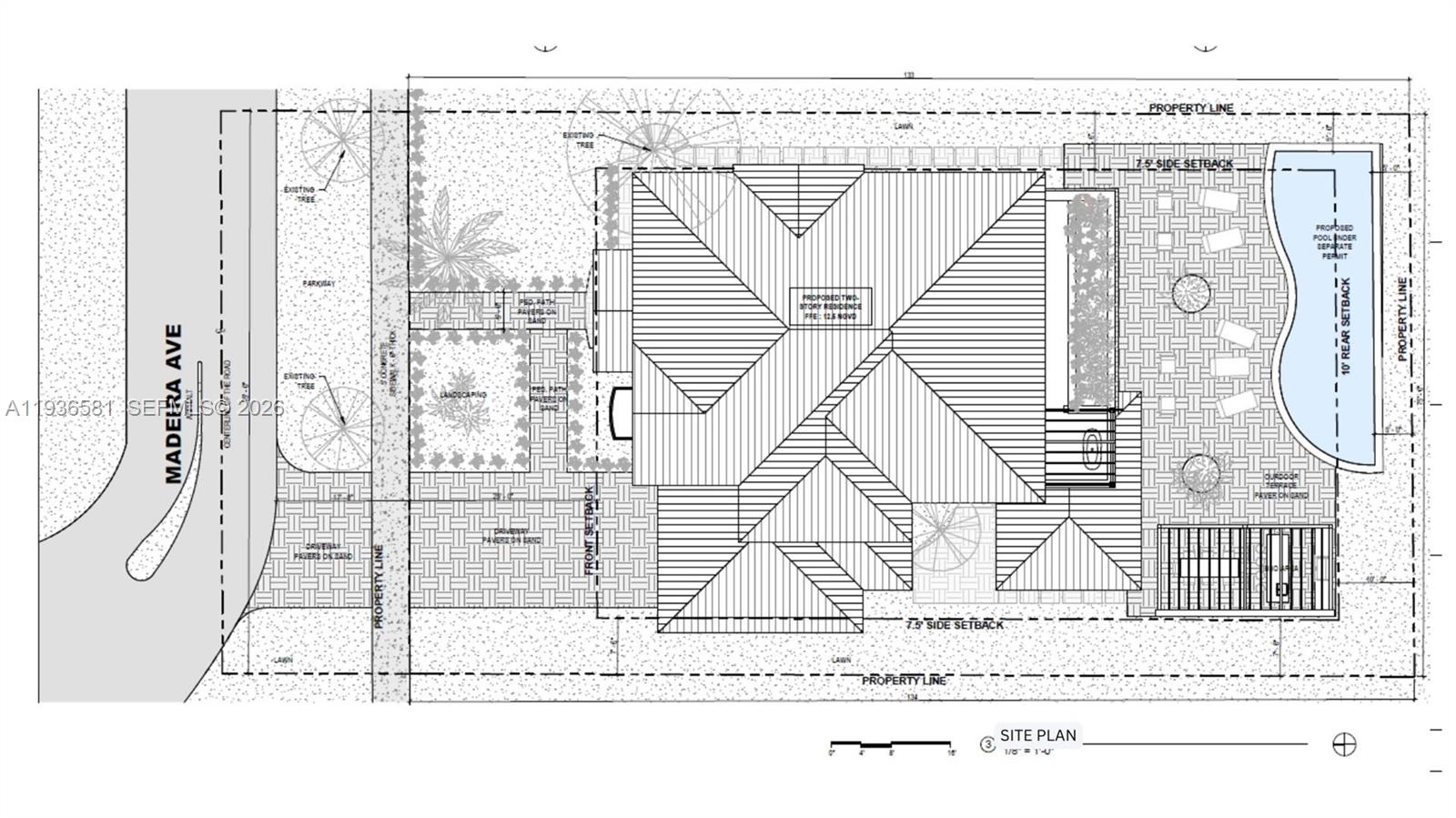
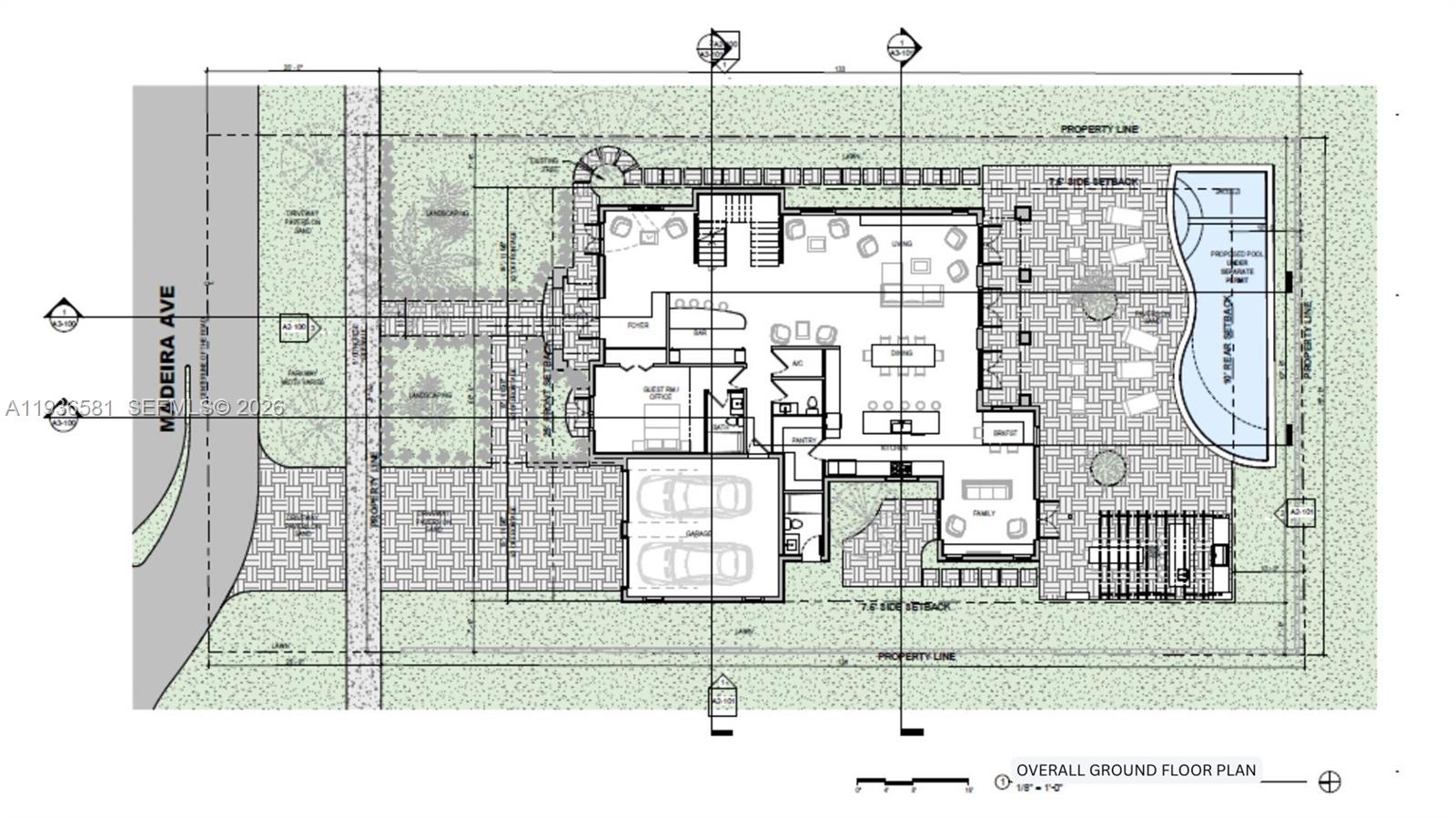
Exceptional opportunity to build a one-of-a-kind luxury residence in the heart of Coral Gables. Delivered with fully approved architectural plans and permits, this shovel-ready 10, 050 SF lot comes with a thoughtfully designed 4, 605 SF two-story Mediterranean-inspired home. Marrying timeless design with refined modern living, the residence will showcase a Spanish clay tile roof and beautifully integrated indoor-outdoor spaces. The layout features a chef’s kitchen, expansive open-concept living and dining areas with built-in bar, a luxurious primary suite with spa-style bath and dual walk-in closets, multiple guest suites, laundry room, powder room, and ample storage. Outdoor living is elevated with a covered terrace, custom BBQ area, and a stunning pool designed as the focal point of a private, resort-style backyard. Ideally situated on a picturesque tree-lined street just steps from Miracle Mile and minutes to Merrick Park, fine dining, golf, and top schools. A rare turnkey offering in the prestigious and historically rich enclave of Coral Gables—an architectural gem of South Florida—where legacy, location, and lifestyle converge. Tailored financing options available as part of the packaged sale for qualified buyers.

Features

  • Bedrooms: 2
  • Baths: 2 full
  • Style: Detached,Mediterranean
  • Year Built: 2026
  • Garage: 2-car Attached,Garage,None
  • Heating: Other
  • Cooling: Other
  • Approx Sq. Feet: 1,195
  • Est. Taxes: $23,074
  • Lot Desc: Oversized Lot,< 1/4 Acre
  • View: Other
  • Elem. School: Sunset
  • Middle School: Ponce De Leon
  • High School: Coral Gables
  • Pets Allowed: Yes
  • Pet Policy: Dogs OK,Yes
  • Appliances: Other
  • MLS#: A11936581
  • Days on Market: 98 days
  • Website: https://www.raveis.com
    /eprop/A11936581/446madeiraave_coralgables_fl?source=qrflyer
This information is deemed reliable, but not guaranteed. The data relating to real estate displayed on this Site comes in part from the IDX Program of MIAMI Association of REALTORS. The information being provided is for consumers' personal, non-commercial use and may not be used for any purpose other than to identify prospective properties consumers may be interested in purchasing.
Listing courtesy of JFA Realty Co   Phone: 305-644-8880

William Raveis Family of Services

Our family of companies partner in delivering quality services in a one-stop-shopping environment. Together, we integrate the most comprehensive real estate, mortgage and insurance services available to fulfill your specific real estate needs.

Customer Service

888.699.8876

Contact@raveis.com

Our family of companies offer our clients a new level of full-service real estate. We shall:

  • Market your home to realize a quick sale at the best possible price
  • Place up to 20+ photos of your home on our website, raveis.com
  • Provide frequent communication and tracking reports showing the Internet views your home received on raveis.com
  • Showcase your home on raveis.com with a larger and more prominent format
  • Give you the full resources and strength of William Raveis Real Estate, Mortgage & Insurance and our cutting-edge technology

To learn more about our credentials, visit raveis.com today.

Melissa CohnRVP, Mortgage Banker, William Raveis Mortgage, LLC

NMLS Mortgage Loan Originator ID 16953

917.838.7300

Melissa.Cohn@raveis.com

Our Executive Mortgage Banker:

  • Is available to meet with you in our office, your home or office, evenings or weekends
  • Offers you pre-approval in minutes!
  • Provides a guaranteed closing date that meets your needs
  • Has access to hundreds of loan programs, all at competitive rates
  • Is in constant contact with a full processing, underwriting, and closing staff to ensure an efficient transaction

Pedro DelgadilloInsurance Sales Director, William Raveis Insurance

305.922.5393

Pedro.Delgadillo@raveis.com

Our Insurance Division:

  • Will Provide a home insurance quote within 24 hours
  • Offers full-service coverage such as Homeowner's, Auto, Life, Renter's, Flood and Valuable Items
  • Partners with major insurance companies including Chubb, Kemper Unitrin, The Hartford, Progressive,
    Encompass, Travelers, Fireman's Fund, Middleoak Mutual, One Beacon and American Reliable

446 Madeira Ave, Coral Gables, FL, 33134

$2,195,000

Customer Service

William Raveis Real Estate

Phone: 888.699.8876

Contact@raveis.com

Melissa Cohn

RVP, Mortgage Banker

William Raveis Mortgage, LLC

Phone: 917.838.7300

Melissa.Cohn@raveis.com

NMLS Mortgage Loan Originator ID 16953

5/6 (30 Yr)
Adjustable Rate Jumbo*
30 Year
Fixed-Rate Jumbo
15 Year
Fixed-Rate Jumbo
Loan Amount $1,756,000 $1,756,000 $1,756,000
Term 360 months 360 months 180 months
Initial Interest Rate** 5.750% 6.000% 5.875%
Interest Rate based on Index + Margin 8.125%
Annual Percentage Rate 6.263% 6.145% 6.117%
Monthly Tax Payment $1,923 $1,923 $1,923
H/O Insurance Payment $125 $125 $125
Initial Principal & Interest Pmt $10,248 $10,528 $14,700
Total Monthly Payment $12,296 $12,576 $16,748

* The Initial Interest Rate and Initial Principal & Interest Payment are fixed for the first and adjust every six months thereafter for the remainder of the loan term. The Interest Rate and annual percentage rate may increase after consummation. The Index for this product is the SOFR. The margin for this adjustable rate mortgage may vary with your unique credit history, and terms of your loan.

** Mortgage Rates are subject to change, loan amount and product restrictions and may not be available for your specific transaction at commitment or closing. Rates, and the margin for adjustable rate mortgages [if applicable], are subject to change without prior notice.

The rates and Annual Percentage Rate (APR) cited above may be only samples for the purpose of calculating payments and are based upon the following assumptions: minimum credit score of 740, 20% down payment (e.g. $20,000 down on a $100,000 purchase price), $1,950 in finance charges, and 30 days prepaid interest, 1 point, 30 day rate lock. The rates and APR will vary depending upon your unique credit history and the terms of your loan, e.g. the actual down payment percentages, points and fees for your transaction. Property taxes and homeowner's insurance are estimates and subject to change.