325 N Roscoe Blvd, Ponte Vedra Beach, FL, 32082 | $6,950,000

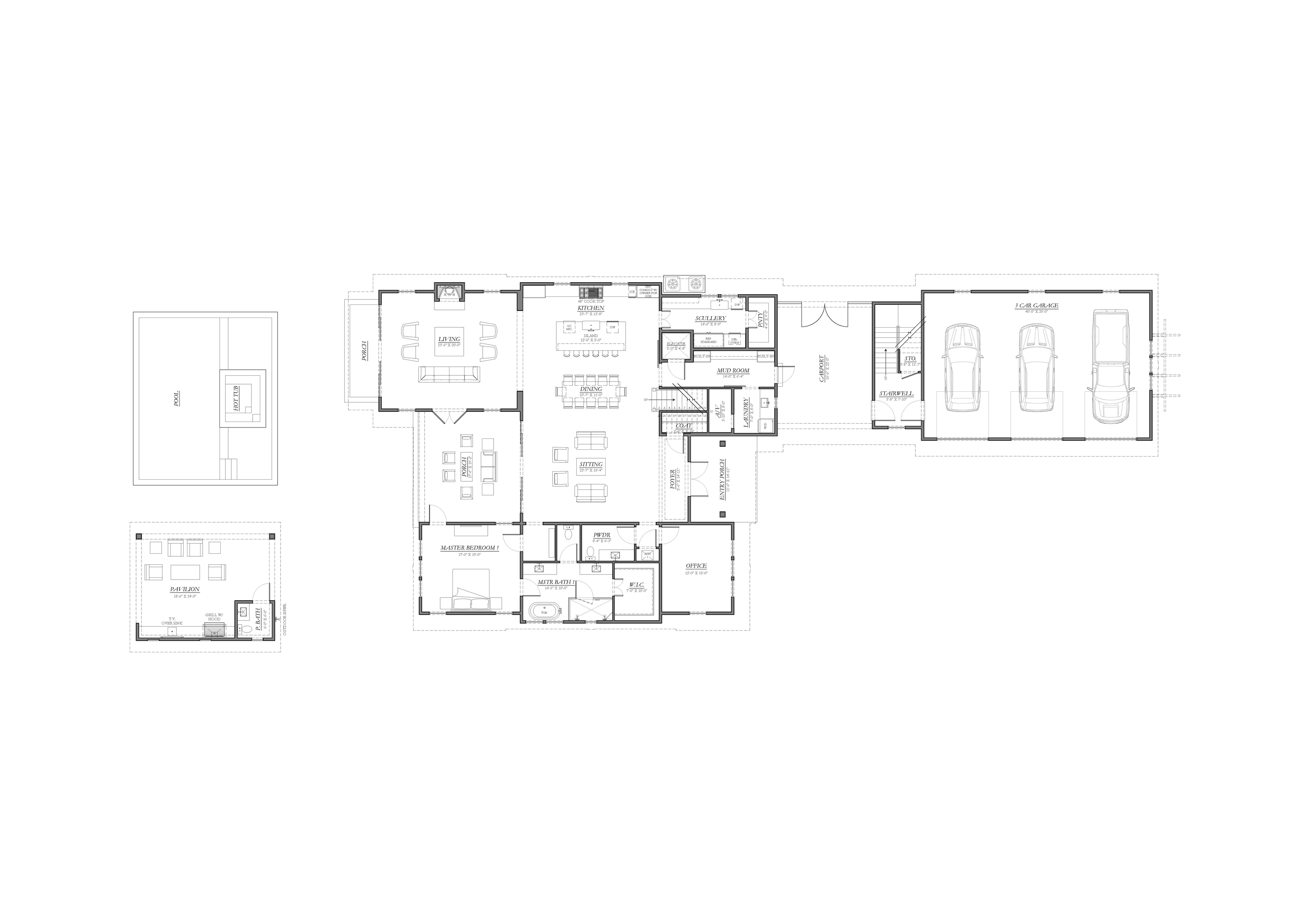
Extraordinary Waterfront Estate | Ponte Vedra Beach Timeless design, made modern. Like no other property in Ponte Vedra Beach, this spectacular new construction estate and elevated Intracoastal lot offers the perfect blend of privacy, luxury, and waterfront living. Tucked away on a dead-end portion of Roscoe Boulevard, this custom home—designed by F. W. Simmons Architecture of 30A—combines timeless beach house style with modern luxury. Scheduled for completion in May 2026, the residence spans 6, 992 square feet of conditioned living space, featuring 6 bedrooms, 6 baths and 2 half baths, and premium construction standards, including advanced waterproofing systems ("rainscreen") and high-end finishes throughout. Interior highlights include white oak floors, a metal roof, elevator (curbless showers and 3' door opening), and primary suites on both the first and second floors. The open floor plan flows seamlessly to expansive outdoor living spaces with porches, a heated pool, floating infinity-edge hot tub, and a full outdoor kitchen—perfect for entertaining. The chef’s kitchen boasts two ovens, two dishwashers, and Thermador appliances for culinary excellence. Additional amenities include a 3-car garage with bonus room and a separate pool house. The property also offers flexibility for future expansion with the ability to build additional ancillary structures. Located on the Intracoastal Waterway, this home delivers boating convenience and tranquil water views in one of Ponte Vedra Beach’s most coveted locations. An unparalleled opportunity to own a private, luxury waterfront retreat. All interior designer selections (i. e. cabinets, tile, lighting & plumbing) are available in additional documents. Listing agent is a licensed real estate broker and has an ownership interest in the property.

Features

  • Bedrooms: 6
  • Baths: 6 full / 2 half
  • Lot Size: 0.63 Acres
  • Year Built: 2026
  • Approx Sq. Feet: 6,992
  • Lot Size: 0.63 Acres
  • Est. Taxes: $15,616
  • Water Front: Yes
  • Boat Access: Yes
  • Elem. School: Ocean Palms
  • Middle School: Landrum
  • High School: Ponte Vedra
  • MLS#: 260113
  • Days on Market: 132 days
  • Website: https://www.raveis.com
    /eprop/260113/325nroscoeblvd_pontevedrabeach_fl?source=qrflyer
Copyright © 2026  St Augustine & St. Johns County Board of REALTORS Realtor® MLS. All rights reserved
This information is deemed reliable, but not guaranteed. The data relating to real estate displayed on this Site comes in part from the IDX Program of St Augustine & St. Johns County Board of REALTORS. The information being provided is for consumers' personal, non-commercial use and may not be used for any purpose other than to identify prospective properties consumers may be interested in purchasing.
Listing courtesy of Level Contracting, Inc.

William Raveis Family of Services

Our family of companies partner in delivering quality services in a one-stop-shopping environment. Together, we integrate the most comprehensive real estate, mortgage and insurance services available to fulfill your specific real estate needs.

Customer Service

888.699.8876

Contact@raveis.com

Our family of companies offer our clients a new level of full-service real estate. We shall:

  • Market your home to realize a quick sale at the best possible price
  • Place up to 20+ photos of your home on our website, raveis.com
  • Provide frequent communication and tracking reports showing the Internet views your home received on raveis.com
  • Showcase your home on raveis.com with a larger and more prominent format
  • Give you the full resources and strength of William Raveis Real Estate, Mortgage & Insurance and our cutting-edge technology

To learn more about our credentials, visit raveis.com today.

Melissa CohnRVP, Mortgage Banker, William Raveis Mortgage, LLC

NMLS Mortgage Loan Originator ID 16953

917.838.7300

Melissa.Cohn@raveis.com

Our Executive Mortgage Banker:

  • Is available to meet with you in our office, your home or office, evenings or weekends
  • Offers you pre-approval in minutes!
  • Provides a guaranteed closing date that meets your needs
  • Has access to hundreds of loan programs, all at competitive rates
  • Is in constant contact with a full processing, underwriting, and closing staff to ensure an efficient transaction

Pedro DelgadilloInsurance Sales Director, William Raveis Insurance

305.922.5393

Pedro.Delgadillo@raveis.com

Our Insurance Division:

  • Will Provide a home insurance quote within 24 hours
  • Offers full-service coverage such as Homeowner's, Auto, Life, Renter's, Flood and Valuable Items
  • Partners with major insurance companies including Chubb, Kemper Unitrin, The Hartford, Progressive,
    Encompass, Travelers, Fireman's Fund, Middleoak Mutual, One Beacon and American Reliable

325 N Roscoe Blvd, Ponte Vedra Beach, FL, 32082

$6,950,000

Customer Service

William Raveis Real Estate

Phone: 888.699.8876

Contact@raveis.com

Melissa Cohn

RVP, Mortgage Banker

William Raveis Mortgage, LLC

Phone: 917.838.7300

Melissa.Cohn@raveis.com

NMLS Mortgage Loan Originator ID 16953

5/6 (30 Yr)
Adjustable Rate Jumbo*
30 Year
Fixed-Rate Jumbo
15 Year
Fixed-Rate Jumbo
Loan Amount $5,560,000 $5,560,000 $5,560,000
Term 360 months 360 months 180 months
Initial Interest Rate** 6.125% 6.375% 6.125%
Interest Rate based on Index + Margin 8.125%
Annual Percentage Rate 6.411% 6.487% 6.309%
Monthly Tax Payment $1,301 $1,301 $1,301
H/O Insurance Payment $125 $125 $125
Initial Principal & Interest Pmt $33,783 $34,687 $47,295
Total Monthly Payment $35,209 $36,113 $48,721

* The Initial Interest Rate and Initial Principal & Interest Payment are fixed for the first and adjust every six months thereafter for the remainder of the loan term. The Interest Rate and annual percentage rate may increase after consummation. The Index for this product is the SOFR. The margin for this adjustable rate mortgage may vary with your unique credit history, and terms of your loan.

** Mortgage Rates are subject to change, loan amount and product restrictions and may not be available for your specific transaction at commitment or closing. Rates, and the margin for adjustable rate mortgages [if applicable], are subject to change without prior notice.

The rates and Annual Percentage Rate (APR) cited above may be only samples for the purpose of calculating payments and are based upon the following assumptions: minimum credit score of 740, 20% down payment (e.g. $20,000 down on a $100,000 purchase price), $1,950 in finance charges, and 30 days prepaid interest, 1 point, 30 day rate lock. The rates and APR will vary depending upon your unique credit history and the terms of your loan, e.g. the actual down payment percentages, points and fees for your transaction. Property taxes and homeowner's insurance are estimates and subject to change.