103 Avocado Court, Simpsonville, SC, 29681 | $362,990

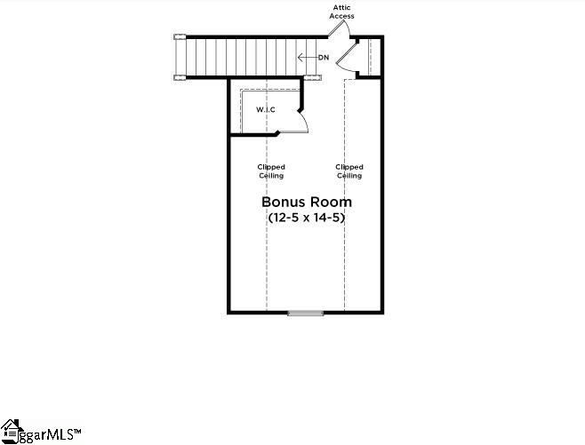
Proposed Construction Opportunity! Personalize this home by visiting our design center to pick colors and options. Price is base price before options are added. Welcome to Mulberry Estates. The only single family community in Simpsonville with future access to the Swamp Rabbit Trail. The Parker offers comfortable main-floor living with an open-concept design. The spacious foyer leads to two bedrooms and a full bath before opening into a bright living area with high ceilings and tall windows for lots of natural light along with the option of a cozy gas fireplace. Customize your chef’s kitchen with your choice of cabinetry, Quartz or granite countertops, tiled backsplash, under-cabinet lighting along with an oversized island and stainless steel gas appliances. The breakfast room leads out to the back patio wihich can be transformed into a covered or screened porch. The Primary Suite is situated off the living room and includes double sinks, a generous walk in closet and tiled shower or a Roman shower with two showerheads and glass door. Upstairs there is a large multi use room with options of a walk in closet, full bath and even an additional bedroom. Smart home technology, energy-efficient design, and a dedicated local warranty team ensure long-term comfort and convenience. Centrally located between two of Greenville County's fastest growing cities. Mulberry Estates has premier craftsman style floorplans including first or second level primary suites, James Hardie ColorPlus siding, open concept living and designs for all lifestyles. Desirable future in-community access to the Swamp Rabbit Trail. Under 5 minutes from I-385 and Harrison Bridge Rd. Surrounded by top-rated schools including the new Fountain Inn High School. Immerse yourself in entertainment options with the Heritage Park Amphitheater being just around the corner. Explore charming downtown Fountain Inn with the Farmer’s Market, Shopping, and Dining only five minutes from your doorstep. Plus, convenient retail nearby with Target, Publix, and more off of Fairview Road. Come by today for more information and make Mulberry Estates your new home! See Sales Agent for additional pricing information.

Features

  • Amenities: None
  • Bedrooms: 3
  • Baths: 2 full / 1 half
  • Laundry: 1st Floor, Electric Dryer Hookup
  • Style: Craftsman
  • Garage: 2-car Attached
  • Heating: Natural Gas
  • Cooling: Electric
  • Basement: None
  • Acreage: 0.15
  • Est. Taxes: $0
  • HOA Fee: $500 Annually
  • Lot Desc: 1/2 Acre or Less
  • Elem. School: Bryson
  • Middle School: Bryson
  • High School: Fountain Inn High
  • Appliances: Dishwasher, Disposal, Free-Standing Gas Range, Self Cleaning Oven, Gas Oven, Microwave, Gas Water Heater
  • MLS#: 1578480
  • Days on Market: 131 days
  • Website: https://www.raveis.com
    /prop/1578480/103avocadocourt_simpsonville_sc?source=qrflyer
Copyright © 2026  Greater Greenville Association of REALTORS®. All rights reserved
This information is deemed reliable, but not guaranteed. The data relating to real estate displayed on this Site comes in part from the IDX Program of Greater Greenville Association of REALTORs. The information being provided is for consumers' personal, non-commercial use and may not be used for any purpose other than to identify prospective properties consumers may be interested in purchasing.
Listing courtesy of DRB Group South Carolina, LLC   Phone: 864-729-4168

William Raveis Family of Services

Our family of companies partner in delivering quality services in a one-stop-shopping environment. Together, we integrate the most comprehensive real estate, mortgage and insurance services available to fulfill your specific real estate needs.

Customer Service

888.699.8876

Contact@raveis.com

Our family of companies offer our clients a new level of full-service real estate. We shall:

  • Market your home to realize a quick sale at the best possible price
  • Place up to 20+ photos of your home on our website, raveis.com
  • Provide frequent communication and tracking reports showing the Internet views your home received on raveis.com
  • Showcase your home on raveis.com with a larger and more prominent format
  • Give you the full resources and strength of William Raveis Real Estate, Mortgage & Insurance and our cutting-edge technology

To learn more about our credentials, visit raveis.com today.

Melissa CohnRVP, Mortgage Banker, William Raveis Mortgage, LLC

NMLS Mortgage Loan Originator ID 16953

917.838.7300

Melissa.Cohn@raveis.com

Our Executive Mortgage Banker:

  • Is available to meet with you in our office, your home or office, evenings or weekends
  • Offers you pre-approval in minutes!
  • Provides a guaranteed closing date that meets your needs
  • Has access to hundreds of loan programs, all at competitive rates
  • Is in constant contact with a full processing, underwriting, and closing staff to ensure an efficient transaction

103 Avocado Court, Simpsonville, SC, 29681

$362,990

Customer Service

William Raveis Real Estate

Phone: 888.699.8876

Contact@raveis.com

Melissa Cohn

RVP, Mortgage Banker

William Raveis Mortgage, LLC

Phone: 917.838.7300

Melissa.Cohn@raveis.com

NMLS Mortgage Loan Originator ID 16953

5/6 (30 Yr)
Adjustable Rate Conforming*
30 Year
Fixed-Rate Conforming
15 Year
Fixed-Rate Conforming
Loan Amount $290,392 $290,392 $290,392
Term 360 months 360 months 180 months
Initial Interest Rate** 5.625% 6.625% 5.750%
Interest Rate based on Index + Margin 8.125%
Annual Percentage Rate 6.133% 6.739% 5.952%
Monthly Tax Payment $0 $0 $0
H/O Insurance Payment $75 $75 $75
Initial Principal & Interest Pmt $1,672 $1,859 $2,411
Total Monthly Payment $1,747 $1,934 $2,486

* The Initial Interest Rate and Initial Principal & Interest Payment are fixed for the first and adjust every six months thereafter for the remainder of the loan term. The Interest Rate and annual percentage rate may increase after consummation. The Index for this product is the SOFR. The margin for this adjustable rate mortgage may vary with your unique credit history, and terms of your loan.

** Mortgage Rates are subject to change, loan amount and product restrictions and may not be available for your specific transaction at commitment or closing. Rates, and the margin for adjustable rate mortgages [if applicable], are subject to change without prior notice.

The rates and Annual Percentage Rate (APR) cited above may be only samples for the purpose of calculating payments and are based upon the following assumptions: minimum credit score of 740, 20% down payment (e.g. $20,000 down on a $100,000 purchase price), $1,950 in finance charges, and 30 days prepaid interest, 1 point, 30 day rate lock. The rates and APR will vary depending upon your unique credit history and the terms of your loan, e.g. the actual down payment percentages, points and fees for your transaction. Property taxes and homeowner's insurance are estimates and subject to change.  The Total Monthly Payment does not include the estimated HOA/Common Charge payment.