69 E 8th Street, Huntington Sta (Huntington Station), NY, 11746 | $799,000

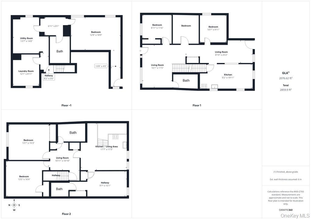
Welcome to this beautiful and expanded 2005 Colonial residence perfectly situated in the heart of Huntington Station. Boasting timeless curb appeal and thoughtfully designed living spaces, this home offers exceptional versatility and modern comfort for today’s lifestyle. Step inside to discover two generously sized kitchens, ideal for multi-family living or entertaining, both featuring stainless steel appliances and elegant quartz countertops. The open and flowing layout is accentuated by wood floors throughout and soaring cathedral ceilings that enhance the sense of space and light. This expansive home offers six bedrooms, including three located on the second level and three upstairs, providing abundant space for guests, or work-from-home needs. Four full bathrooms ensure comfort and convenience on every floor. A fully finished basement adds valuable additional living space perfect for recreation, a home gym, or media room. Bonus water filters! Fresh clean water throughout the entire home! A distinctive highlight of this property is the legal accessory apartment, offering rental income potential or flexible living arrangements. Additional upgrades include central AC, natural gas heating, and solar panels — combining efficiency, value, and updated systems. Outdoor living features include a stone patio and a private rear deck, perfect for alfresco dining and relaxing in sunshine and shade alike. Located in a well-established community with excellent access to transportation, shopping, schools, and parks, Huntington Station blends suburban convenience with vibrant Long Island living. The Long Island Rail Road Huntington Station provides direct commuter access to New York City and beyond. Major roadways including the Northern State Parkway and Long Island Expressway are easily accessible for regional travel. Nearby, you’ll find plenty of dining, retail, and recreation options, including proximity to the Walt Whitman Shops and Manor Field Park. Quality schools serve the area as part of recognized local districts, adding to the appeal . This home is in great condition and ready for its next chapter — don’t miss the opportunity to make this beautiful home yours!

Features

  • Town: Huntington Sta
  • Rooms: 14
  • Bedrooms: 6
  • Baths: 4 full
  • Laundry: Gas Dryer Hookup, In Basement, Laundry Room, Washer Hookup
  • Style: Colonial
  • Year Built: 2005
  • Heating: Ducts, Forced Air, Natural Gas, Solar
  • Cooling: Central Air
  • Basement: Finished, Full, Storage Space
  • Approx Sq. Feet: 2,860
  • Acreage: 0.12
  • Est. Taxes: $14,388
  • Elem. School: Washington School
  • Middle School: J Taylor Finley Middle School
  • High School: Huntington High School
  • School District: Huntington
  • Appliances: Dishwasher, Dryer, Gas Range, Microwave, Refrigerator, Stainless Steel Appliance(s), Washer, Gas Water Heater, Water Purifier Owned
  • MLS#: 948994
  • Days on Market: 62 days
  • Website: https://www.raveis.com
    /prop/948994/69e8thstreet_huntingtonsta_ny?source=qrflyer
Listing information has been assembled from various sources of varying degrees of reliability. Any information critical to the buying decision should be independently verified.Listing courtesy of Real Broker NY LLC   Phone: 518-730-4228

William Raveis Family of Services

Our family of companies partner in delivering quality services in a one-stop-shopping environment. Together, we integrate the most comprehensive real estate, mortgage and insurance services available to fulfill your specific real estate needs.

Customer Service

888.699.8876

Contact@raveis.com

Our family of companies offer our clients a new level of full-service real estate. We shall:

  • Market your home to realize a quick sale at the best possible price
  • Place up to 20+ photos of your home on our website, raveis.com
  • Provide frequent communication and tracking reports showing the Internet views your home received on raveis.com
  • Showcase your home on raveis.com with a larger and more prominent format
  • Give you the full resources and strength of William Raveis Real Estate, Mortgage & Insurance and our cutting-edge technology

To learn more about our credentials, visit raveis.com today.

Frank KolbSenior Vice President - Coaching & Strategic, William Raveis Mortgage, LLC

NMLS Mortgage Loan Originator ID 81725

203.980.8025

Frank.Kolb@raveis.com

Our Executive Mortgage Banker:

  • Is available to meet with you in our office, your home or office, evenings or weekends
  • Offers you pre-approval in minutes!
  • Provides a guaranteed closing date that meets your needs
  • Has access to hundreds of loan programs, all at competitive rates
  • Is in constant contact with a full processing, underwriting, and closing staff to ensure an efficient transaction

Ryan FortierInsurance Sales Director, William Raveis Insurance

516.739.7731

Ryan.Fortier@raveis.com

Our Insurance Division:

  • Will Provide a home insurance quote within 24 hours
  • Offers full-service coverage such as Homeowner's, Auto, Life, Renter's, Flood and Valuable Items
  • Partners with major insurance companies including Chubb, Kemper Unitrin, The Hartford, Progressive,
    Encompass, Travelers, Fireman's Fund, Middleoak Mutual, One Beacon and American Reliable

69 E 8th Street, Huntington Sta (Huntington Station), NY, 11746

$799,000

Customer Service

William Raveis Real Estate

Phone: 888.699.8876

Contact@raveis.com

Frank Kolb

Senior Vice President - Coaching & Strategic

William Raveis Mortgage, LLC

Phone: 203.980.8025

Frank.Kolb@raveis.com

NMLS Mortgage Loan Originator ID 81725

5/6 (30 Yr)
Adjustable Rate Conforming*
30 Year
Fixed-Rate Conforming
15 Year
Fixed-Rate Conforming
Loan Amount $639,200 $639,200 $639,200
Term 360 months 360 months 180 months
Initial Interest Rate** 5.875% 6.375% 5.490%
Interest Rate based on Index + Margin 8.125%
Annual Percentage Rate 6.333% 6.520% 5.783%
Monthly Tax Payment $1,199 $1,199 $1,199
H/O Insurance Payment $92 $92 $92
Initial Principal & Interest Pmt $3,781 $3,988 $5,219
Total Monthly Payment $5,072 $5,279 $6,510

* The Initial Interest Rate and Initial Principal & Interest Payment are fixed for the first and adjust every six months thereafter for the remainder of the loan term. The Interest Rate and annual percentage rate may increase after consummation. The Index for this product is the SOFR. The margin for this adjustable rate mortgage may vary with your unique credit history, and terms of your loan.

** Mortgage Rates are subject to change, loan amount and product restrictions and may not be available for your specific transaction at commitment or closing. Rates, and the margin for adjustable rate mortgages [if applicable], are subject to change without prior notice.

The rates and Annual Percentage Rate (APR) cited above may be only samples for the purpose of calculating payments and are based upon the following assumptions: minimum credit score of 740, 20% down payment (e.g. $20,000 down on a $100,000 purchase price), $1,950 in finance charges, and 30 days prepaid interest, 1 point, 30 day rate lock. The rates and APR will vary depending upon your unique credit history and the terms of your loan, e.g. the actual down payment percentages, points and fees for your transaction. Property taxes and homeowner's insurance are estimates and subject to change.