750 Mullock Road, Port Jervis, NY, 12771 | $520,000

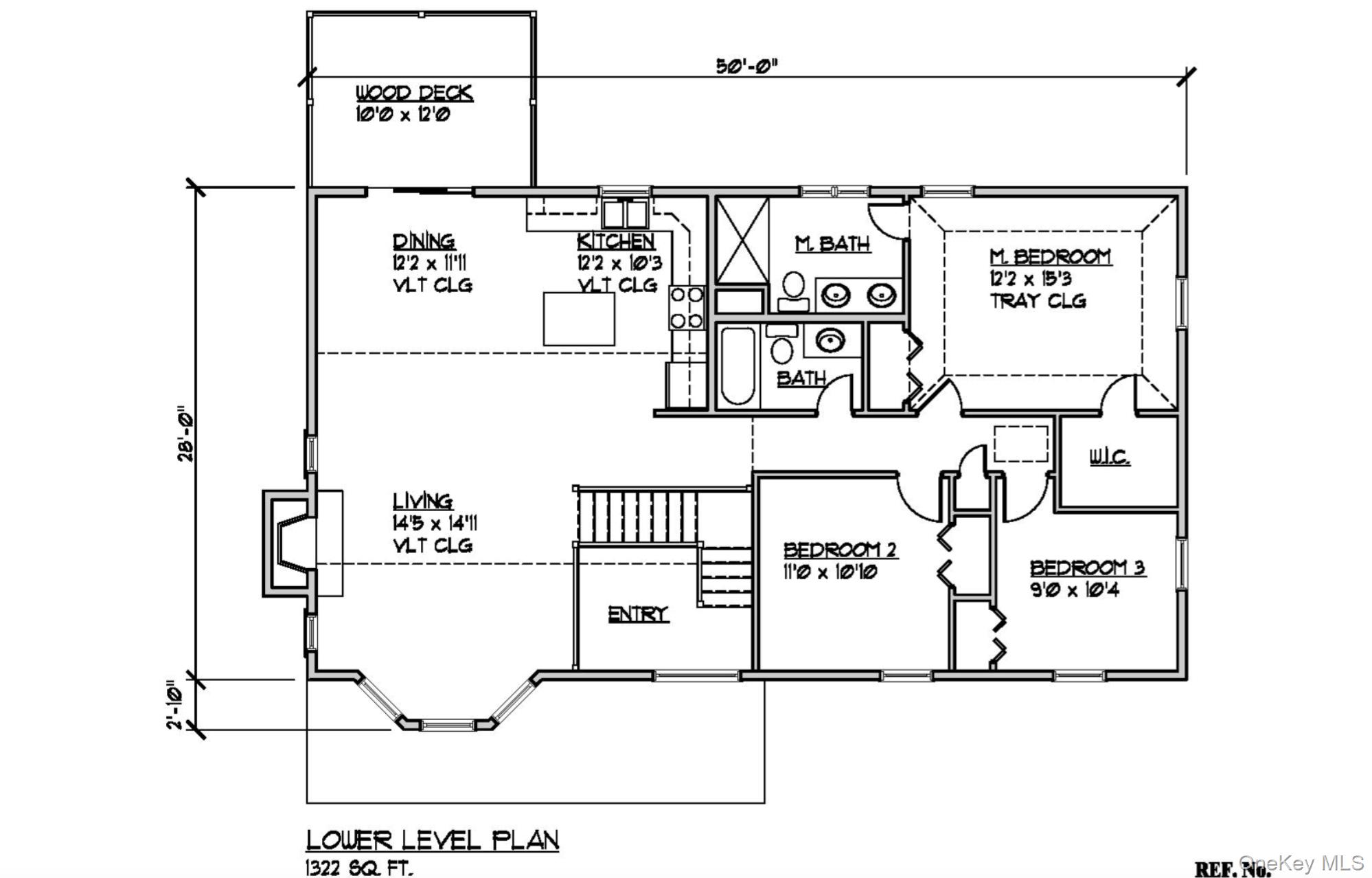
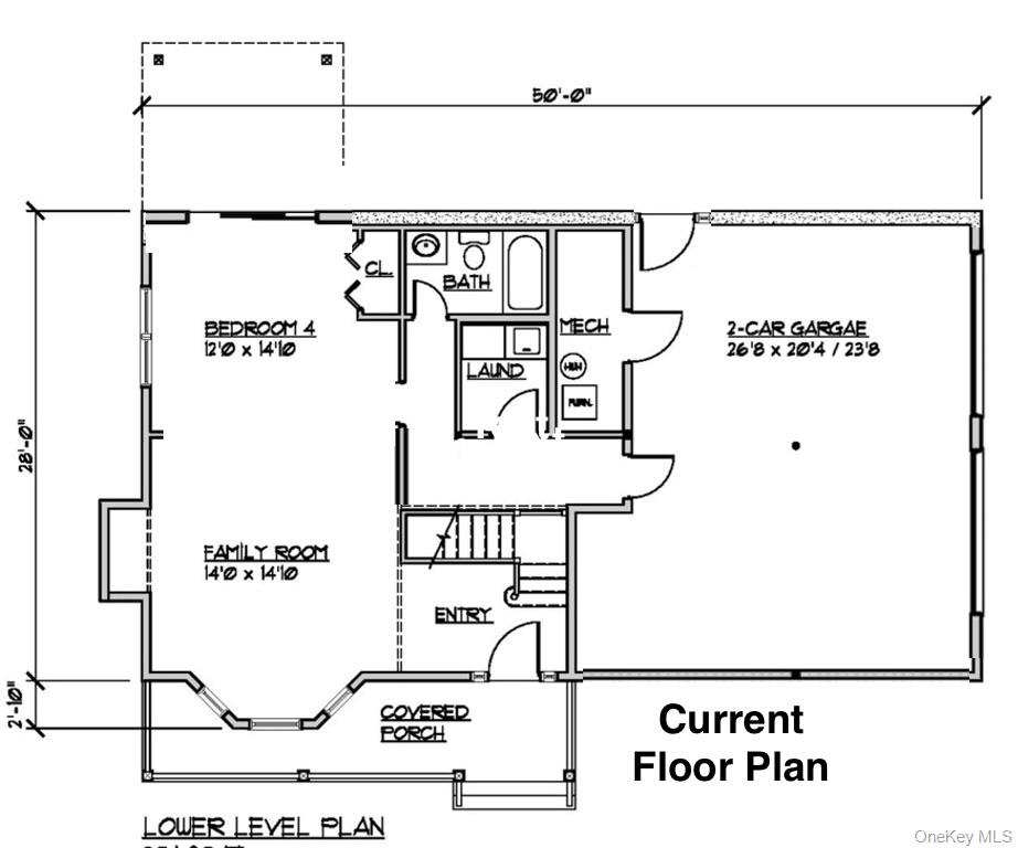
Tucked away on 6 private acres, 750 Mullock Road is the kind of place you’ll genuinely look forward to coming home to. Set back from the road and surrounded by nature, this home offers the peace, privacy, and breathing room that’s getting harder to find—while still being close enough to town for everyday convenience. On the main level, the heart of the home shines. The kitchen is open to both the living and dining areas, creating a welcoming space that’s perfect for everyday living and easy entertaining. A large island with seating anchors the room, making it a natural gathering spot for morning coffee, casual meals, or entertaining friends and family. Also on this level are two bedrooms, a full main bath, and the primary suite, a true retreat. The primary bedroom features a spacious en-suite bath with double vanity, large tiled shower, a walk-in closet, and an additional closet for separate or off-season storage. Downstairs, the flexible lower level adds even more living space. The family room with a wood-burning fireplace and open office space can easily serve as a possible 4th bedroom, guest area, or home office . . . whatever fits your lifestyle best. See attached floor plans. If you’ve been dreaming of privacy, land, and a home that feels more like a retreat than just an address, this one deserves a closer look.

Features

  • Rooms: 8
  • Bedrooms: 3
  • Baths: 3 full
  • Laundry: Laundry Room
  • Style: Raised Ranch
  • Year Built: 2016
  • Garage: 2-car
  • Heating: Forced Air
  • Cooling: Central Air
  • Approx Sq. Feet: 2,210
  • Acreage: 6
  • Est. Taxes: $10,407
  • Lot Desc: Part Wooded, Private
  • Elem. School: Otisville Elementary School
  • Middle School: Minisink Valley Middle School
  • High School: Minisink Valley High School
  • School District: Minisink Valley
  • Appliances: Dishwasher, Dryer, Gas Range, Microwave, Refrigerator, Washer, Water Softener Owned
  • MLS#: 947857
  • Days on Market: 20 days
  • Website: https://www.raveis.com
    /prop/947857/750mullockroad_portjervis_ny?source=qrflyer
Listing information has been assembled from various sources of varying degrees of reliability. Any information critical to the buying decision should be independently verified.Listing courtesy of Howard Hanna Rand Realty   Phone: 845-294-3100

William Raveis Family of Services

Our family of companies partner in delivering quality services in a one-stop-shopping environment. Together, we integrate the most comprehensive real estate, mortgage and insurance services available to fulfill your specific real estate needs.

Customer Service

888.699.8876

Contact@raveis.com

Our family of companies offer our clients a new level of full-service real estate. We shall:

  • Market your home to realize a quick sale at the best possible price
  • Place up to 20+ photos of your home on our website, raveis.com
  • Provide frequent communication and tracking reports showing the Internet views your home received on raveis.com
  • Showcase your home on raveis.com with a larger and more prominent format
  • Give you the full resources and strength of William Raveis Real Estate, Mortgage & Insurance and our cutting-edge technology

To learn more about our credentials, visit raveis.com today.

Frank KolbSenior Vice President - Coaching & Strategic, William Raveis Mortgage, LLC

NMLS Mortgage Loan Originator ID 81725

203.980.8025

Frank.Kolb@raveis.com

Our Executive Mortgage Banker:

  • Is available to meet with you in our office, your home or office, evenings or weekends
  • Offers you pre-approval in minutes!
  • Provides a guaranteed closing date that meets your needs
  • Has access to hundreds of loan programs, all at competitive rates
  • Is in constant contact with a full processing, underwriting, and closing staff to ensure an efficient transaction

Ryan FortierInsurance Sales Director, William Raveis Insurance

516.739.7731

Ryan.Fortier@raveis.com

Our Insurance Division:

  • Will Provide a home insurance quote within 24 hours
  • Offers full-service coverage such as Homeowner's, Auto, Life, Renter's, Flood and Valuable Items
  • Partners with major insurance companies including Chubb, Kemper Unitrin, The Hartford, Progressive,
    Encompass, Travelers, Fireman's Fund, Middleoak Mutual, One Beacon and American Reliable

750 Mullock Road, Port Jervis, NY, 12771

$520,000

Customer Service

William Raveis Real Estate

Phone: 888.699.8876

Contact@raveis.com

Frank Kolb

Senior Vice President - Coaching & Strategic

William Raveis Mortgage, LLC

Phone: 203.980.8025

Frank.Kolb@raveis.com

NMLS Mortgage Loan Originator ID 81725

5/6 (30 Yr)
Adjustable Rate Conforming*
30 Year
Fixed-Rate Conforming
15 Year
Fixed-Rate Conforming
Loan Amount $416,000 $416,000 $416,000
Term 360 months 360 months 180 months
Initial Interest Rate** 5.875% 6.250% 5.375%
Interest Rate based on Index + Margin 8.125%
Annual Percentage Rate 6.357% 6.419% 5.668%
Monthly Tax Payment $867 $867 $867
H/O Insurance Payment $92 $92 $92
Initial Principal & Interest Pmt $2,461 $2,561 $3,372
Total Monthly Payment $3,420 $3,520 $4,331

* The Initial Interest Rate and Initial Principal & Interest Payment are fixed for the first and adjust every six months thereafter for the remainder of the loan term. The Interest Rate and annual percentage rate may increase after consummation. The Index for this product is the SOFR. The margin for this adjustable rate mortgage may vary with your unique credit history, and terms of your loan.

** Mortgage Rates are subject to change, loan amount and product restrictions and may not be available for your specific transaction at commitment or closing. Rates, and the margin for adjustable rate mortgages [if applicable], are subject to change without prior notice.

The rates and Annual Percentage Rate (APR) cited above may be only samples for the purpose of calculating payments and are based upon the following assumptions: minimum credit score of 740, 20% down payment (e.g. $20,000 down on a $100,000 purchase price), $1,950 in finance charges, and 30 days prepaid interest, 1 point, 30 day rate lock. The rates and APR will vary depending upon your unique credit history and the terms of your loan, e.g. the actual down payment percentages, points and fees for your transaction. Property taxes and homeowner's insurance are estimates and subject to change.