6 Orchard Hill Drive, Monsey, NY, 10952 | $1,750,000

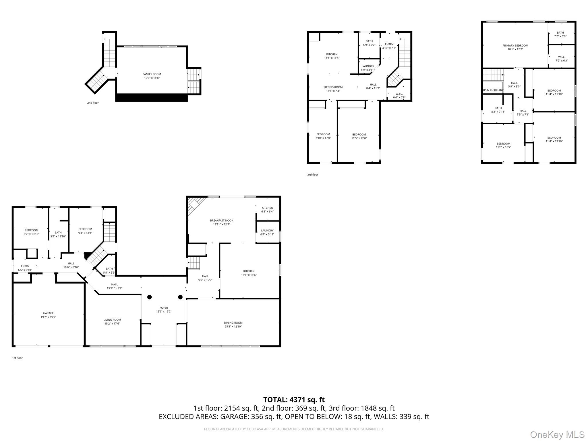
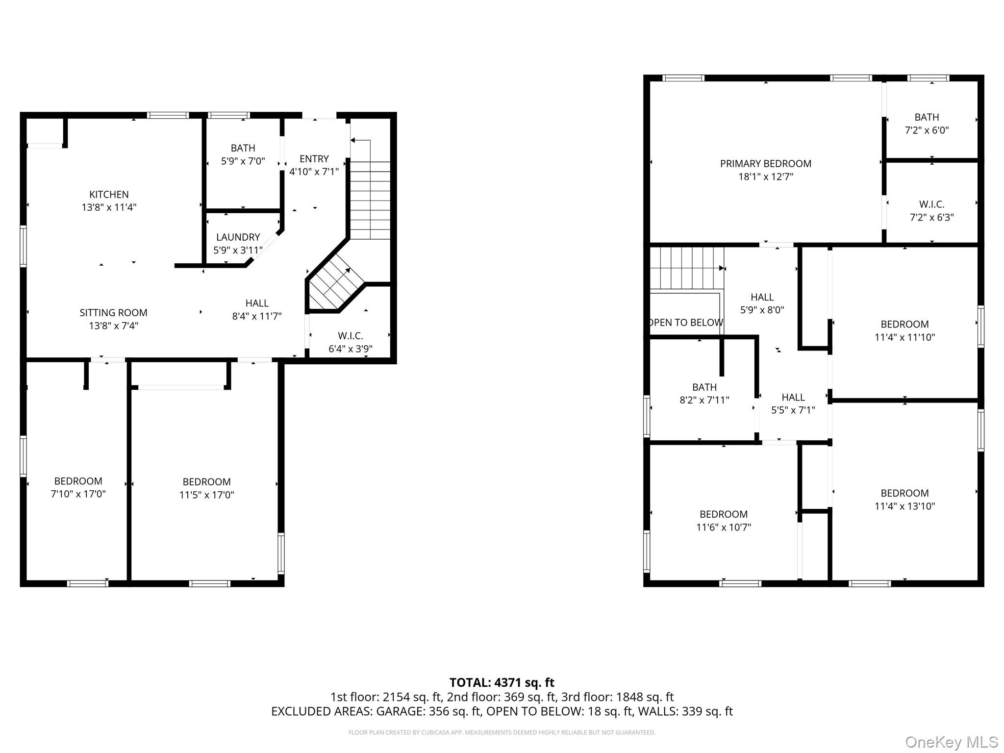
Large extended splanch/colonial home with 8 bedrooms and 4. 5 baths, set against the Ramapo Mountains. Main residence features dramatic entry with cathedral ceilings, hardwood oak flooring, skylight, closets, tall pillars and French doors. There is a music room and large dining room with washing sink. The oak country kitchen comes with two sinks, two dishwashers, two ovens, and two refrigerators. Spacious breakfast room with gas burning fireplace overlooks patio and beautifully landscaped, private backyard with zip line. Holiday kitchen. Side entrance with closets and cubbies leads to a two-bedroom guest suite. Oversized two-car garage with automatic openers. An upstairs extended family apartment offers two bedrooms, bathroom, kitchen, living area, abundant storage, private access, and interior electric chairlift. Additional amenities include 3 split A/C units, 3 A/C compressors, Crown boilers, alarm system, outdoor sprinkler system, garden arbor, specimen plantings, and tranquil outdoor seating areas. This house has everything you need to relax or entertain in comfort.

Features

  • Rooms: 15
  • Bedrooms: 8
  • Baths: 4 full / 1 half
  • Laundry: Multiple Locations
  • Style: Colonial
  • Year Built: 1966
  • Garage: 2-car
  • Heating: Baseboard, Ducts, Electric
  • Cooling: Central Air
  • Approx Sq. Feet: 4,770
  • Acreage: 0.46
  • Est. Taxes: $27,696
  • Elem. School: Grandview Elementary School
  • Middle School: Pomona Middle School
  • High School: Ramapo High School
  • School District: East Ramapo (Spring Valley)
  • Appliances: Dishwasher, Dryer, Freezer, Gas Range, Microwave, Other
  • MLS#: 946262
  • Days on Market: 3 days
  • Website: https://www.raveis.com
    /eprop/946262/6orchardhilldrive_monsey_ny?source=qrflyer
Listing information has been assembled from various sources of varying degrees of reliability. Any information critical to the buying decision should be independently verified.

William Raveis Family of Services

Our family of companies partner in delivering quality services in a one-stop-shopping environment. Together, we integrate the most comprehensive real estate, mortgage and insurance services available to fulfill your specific real estate needs.

The Sabbagh TeamSales Associates

TheSabbaghTeam@raveis.com

Our family of companies offer our clients a new level of full-service real estate. We shall:

  • Market your home to realize a quick sale at the best possible price
  • Place up to 20+ photos of your home on our website, raveis.com
  • Provide frequent communication and tracking reports showing the Internet views your home received on raveis.com
  • Showcase your home on raveis.com with a larger and more prominent format
  • Give you the full resources and strength of William Raveis Real Estate, Mortgage & Insurance and our cutting-edge technology

To learn more about our credentials, visit raveis.com today.

Matthew DeMariaVP, Mortgage Banker, William Raveis Mortgage, LLC

NMLS Mortgage Loan Originator ID 147983

845.290.3871

Matthew.DeMaria@raveis.com

Our Executive Mortgage Banker:

  • Is available to meet with you in our office, your home or office, evenings or weekends
  • Offers you pre-approval in minutes!
  • Provides a guaranteed closing date that meets your needs
  • Has access to hundreds of loan programs, all at competitive rates
  • Is in constant contact with a full processing, underwriting, and closing staff to ensure an efficient transaction

Gene RahillyInsurance Sales Director, William Raveis Insurance

917.494.9386

Gene.Rahilly@raveis.com

Our Insurance Division:

  • Will Provide a home insurance quote within 24 hours
  • Offers full-service coverage such as Homeowner's, Auto, Life, Renter's, Flood and Valuable Items
  • Partners with major insurance companies including Chubb, Kemper Unitrin, The Hartford, Progressive,
    Encompass, Travelers, Fireman's Fund, Middleoak Mutual, One Beacon and American Reliable

6 Orchard Hill Drive, Monsey, NY, 10952

$1,750,000

The Sabbagh Team

Sales Associates

William Raveis Real Estate

Phone: 203.794.9494

TheSabbaghTeam@raveis.com

Matthew DeMaria

VP, Mortgage Banker

William Raveis Mortgage, LLC

Phone: 845.290.3871

Matthew.DeMaria@raveis.com

NMLS Mortgage Loan Originator ID 147983

5/6 (30 Yr)
Adjustable Rate Jumbo*
30 Year
Fixed-Rate Jumbo
15 Year
Fixed-Rate Jumbo
Loan Amount $1,400,000 $1,400,000 $1,400,000
Term 360 months 360 months 180 months
Initial Interest Rate** 4.875% 5.750% 5.500%
Interest Rate based on Index + Margin 8.125%
Annual Percentage Rate 6.001% 5.858% 5.681%
Monthly Tax Payment $2,308 $2,308 $2,308
H/O Insurance Payment $125 $125 $125
Initial Principal & Interest Pmt $7,409 $8,170 $11,439
Total Monthly Payment $9,842 $10,603 $13,872

* The Initial Interest Rate and Initial Principal & Interest Payment are fixed for the first and adjust every six months thereafter for the remainder of the loan term. The Interest Rate and annual percentage rate may increase after consummation. The Index for this product is the SOFR. The margin for this adjustable rate mortgage may vary with your unique credit history, and terms of your loan.

** Mortgage Rates are subject to change, loan amount and product restrictions and may not be available for your specific transaction at commitment or closing. Rates, and the margin for adjustable rate mortgages [if applicable], are subject to change without prior notice.

The rates and Annual Percentage Rate (APR) cited above may be only samples for the purpose of calculating payments and are based upon the following assumptions: minimum credit score of 740, 20% down payment (e.g. $20,000 down on a $100,000 purchase price), $1,950 in finance charges, and 30 days prepaid interest, 1 point, 30 day rate lock. The rates and APR will vary depending upon your unique credit history and the terms of your loan, e.g. the actual down payment percentages, points and fees for your transaction. Property taxes and homeowner's insurance are estimates and subject to change.