8 Kilkenny Street, Lancaster, NH, 03584 | $134,900

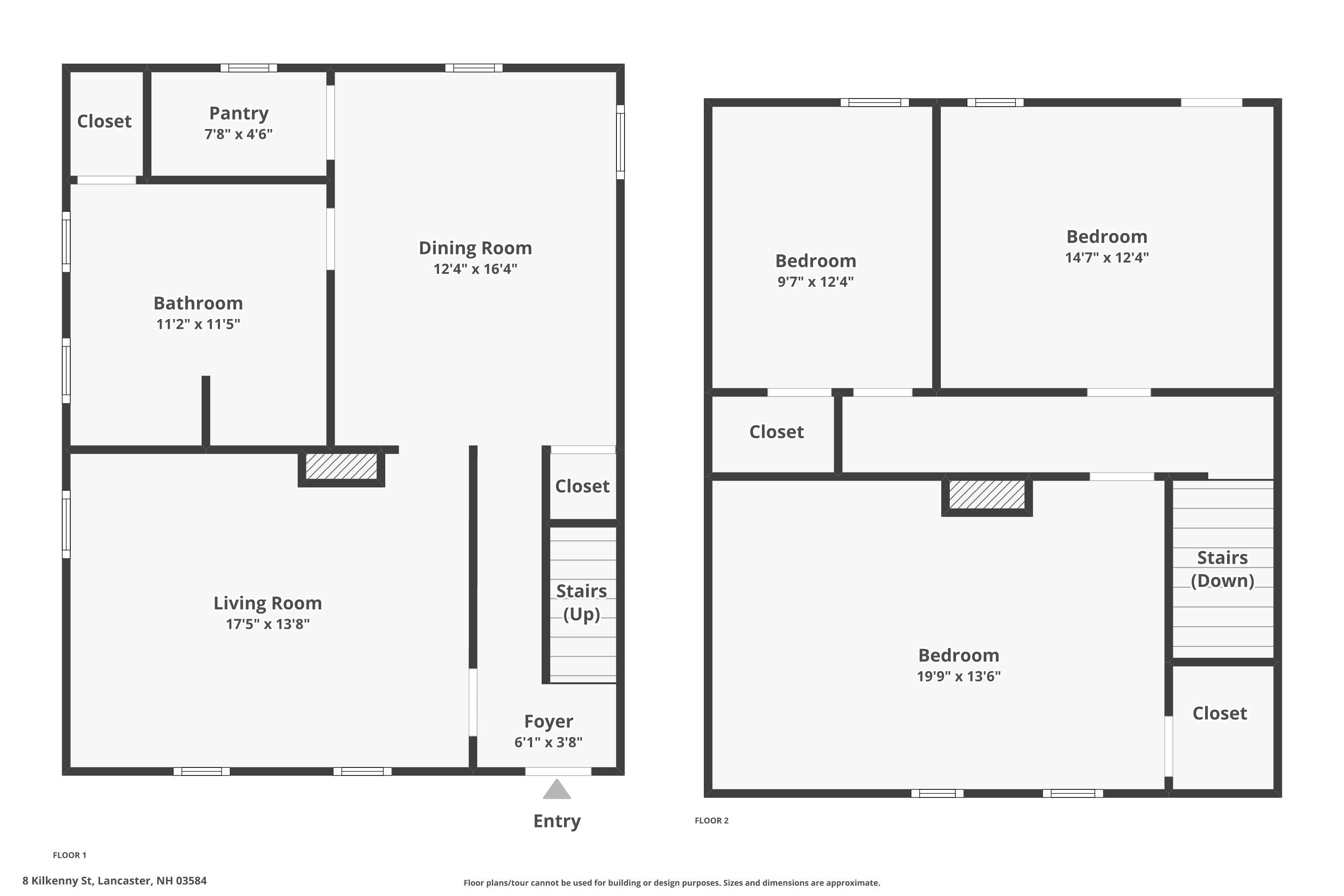
Value-priced opportunity in a well-kept in-town Lancaster neighborhood. Located at 8 Kilkenny Street, this three-bedroom home offers strong fundamentals and clear upside for buyers looking to complete a partially finished renovation in a desirable residential setting with public water and sewer and convenient access to local amenities. Surrounding homes are well maintained and support solid in-town values. The home offers approximately 1, 585 square feet with good-sized rooms and a functional layout. Interior walls have already been updated, and most flooring is in good condition, allowing the next owner to focus on completion rather than major reconfiguration. The kitchen has been removed and is ready for a full custom finish, providing the opportunity to design cabinetry, counters, and fixtures to suit the next owner's plans. There is also space available to add a second bathroom upstairs, creating additional future value. The structure offers solid bones, with remaining improvements primarily related to systems and exterior updates. The oil-fired boiler is older, and some asphalt shingle roofing remains on porches and the attached barn and will require updating. The basement features a traditional stone foundation with partial concrete flooring. An older single-car garage sits at the rear of the property and may be repaired or removed depending on buyer preference. Best suited for cash buyers or conventional renovation financing. Not positioned for FHA or VA loan programs. Priced to reflect remaining improvements and the opportunity to add value in a strong in-town location.

Features

  • Rooms: 7
  • Bedrooms: 3
  • Baths: 1 full
  • Style: New Englander
  • Year Built: 1896
  • Garage: 1-car Garage
  • Heating: Oil
  • Cooling: None
  • Basement: Concrete Floor,Crawl Space,Dirt Floor,Full,Interior Stairs,Unfinished,Interior Access
  • Approx Sq. Feet: 1,585
  • Acreage: 0.25
  • Est. Taxes: $2,442
  • Lot Desc: City Lot,Level,Street Lights,In Town,Near Shopping,Near Snowmobile Trails,Near Hospital,Near School(s)
  • Elem. School: Lancaster Elementary School
  • Middle School: Lancaster Elementary
  • High School: White Mountain Regional HS
  • School District: Coos/Lancaster SAU 36
  • MLS#: 5072620
  • Website: https://www.raveis.com
    /prop/5072620/8kilkennystreet_lancaster_nh?source=qrflyer
©2026 New England Real Estate Network, Inc. All rights reserved.This information is deemed reliable, but not guaranteed. The data relating to real estate displayed on this Site comes in part from the IDX Program of PrimMLS. The information being provided is for consumers' personal, non-commercial use and may not be used for any purpose other than to identify prospective properties consumers may be interested in purchasing. Data last updated 2/19/2026

William Raveis Family of Services

Our family of companies partner in delivering quality services in a one-stop-shopping environment. Together, we integrate the most comprehensive real estate, mortgage and insurance services available to fulfill your specific real estate needs.

Victoria StaubitserSales Associate

934.261.8095

Victoria.Staubitser@raveis.com

Our family of companies offer our clients a new level of full-service real estate. We shall:

  • Market your home to realize a quick sale at the best possible price
  • Place up to 20+ photos of your home on our website, raveis.com
  • Provide frequent communication and tracking reports showing the Internet views your home received on raveis.com
  • Showcase your home on raveis.com with a larger and more prominent format
  • Give you the full resources and strength of William Raveis Real Estate, Mortgage & Insurance and our cutting-edge technology

To learn more about our credentials, visit raveis.com today.

Sarah DeFlorioVP, Mortgage Banker, William Raveis Mortgage, LLC

NMLS Mortgage Loan Originator ID 1880936

347.223.0992

Sarah.DeFlorio@Raveis.com

Our Executive Mortgage Banker:

  • Is available to meet with you in our office, your home or office, evenings or weekends
  • Offers you pre-approval in minutes!
  • Provides a guaranteed closing date that meets your needs
  • Has access to hundreds of loan programs, all at competitive rates
  • Is in constant contact with a full processing, underwriting, and closing staff to ensure an efficient transaction

Jennifer HartRegional Sales Manager, William Raveis Insurance

978.457.6220

Jennifer.Hart@raveis.com

Our Insurance Division:

  • Will Provide a home insurance quote within 24 hours
  • Offers full-service coverage such as Homeowner's, Auto, Life, Renter's, Flood and Valuable Items
  • Partners with major insurance companies including Chubb, Kemper Unitrin, The Hartford, Progressive,
    Encompass, Travelers, Fireman's Fund, Middleoak Mutual, One Beacon and American Reliable

8 Kilkenny Street, Lancaster, NH, 03584

$134,900

Victoria Staubitser

Sales Associate

William Raveis Real Estate

Phone: 934.261.8095

Victoria.Staubitser@raveis.com

Sarah DeFlorio

VP, Mortgage Banker

William Raveis Mortgage, LLC

Phone: 347.223.0992

Sarah.DeFlorio@Raveis.com

NMLS Mortgage Loan Originator ID 1880936

5/6 (30 Yr)
Adjustable Rate Conforming*
30 Year
Fixed-Rate Conforming
15 Year
Fixed-Rate Conforming
Loan Amount $107,920 $107,920 $107,920
Term 360 months 360 months 180 months
Initial Interest Rate** 5.375% 5.990% 5.250%
Interest Rate based on Index + Margin 8.125%
Annual Percentage Rate 6.161% 6.132% 5.522%
Monthly Tax Payment $204 $204 $204
H/O Insurance Payment $75 $75 $75
Initial Principal & Interest Pmt $604 $646 $868
Total Monthly Payment $883 $925 $1,147

* The Initial Interest Rate and Initial Principal & Interest Payment are fixed for the first and adjust every six months thereafter for the remainder of the loan term. The Interest Rate and annual percentage rate may increase after consummation. The Index for this product is the SOFR. The margin for this adjustable rate mortgage may vary with your unique credit history, and terms of your loan.

** Mortgage Rates are subject to change, loan amount and product restrictions and may not be available for your specific transaction at commitment or closing. Rates, and the margin for adjustable rate mortgages [if applicable], are subject to change without prior notice.

The rates and Annual Percentage Rate (APR) cited above may be only samples for the purpose of calculating payments and are based upon the following assumptions: minimum credit score of 740, 20% down payment (e.g. $20,000 down on a $100,000 purchase price), $1,950 in finance charges, and 30 days prepaid interest, 1 point, 30 day rate lock. The rates and APR will vary depending upon your unique credit history and the terms of your loan, e.g. the actual down payment percentages, points and fees for your transaction. Property taxes and homeowner's insurance are estimates and subject to change.