564 Route 304, Bardonia, NY, 10954 | $950,000

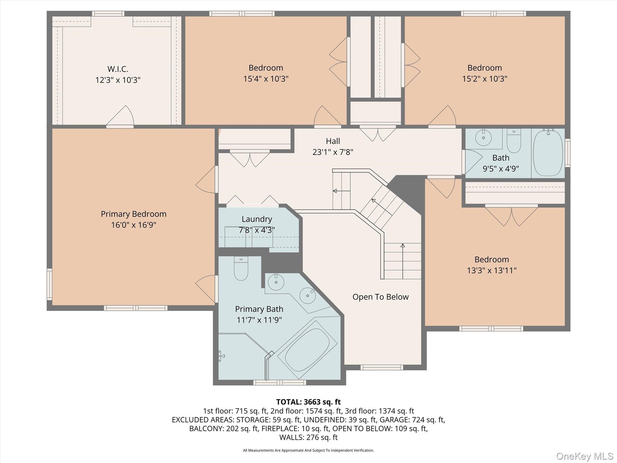
Prepare to be captivated by this young, custom-built Colonial, tucked away in a private setting within the sought-after hamlet of Bardonia. Offering over 3, 300 square feet of beautifully designed living space—plus additional finished space in the walk-out lower level—this home blends comfort, functionality, and style. A dramatic two-story entry welcomes you with an abundance of natural light pouring through oversized windows, while the elegant oak staircase serves as a striking focal point in the foyer. Rich hardwood flooring flows seamlessly throughout, enhancing the home’s warmth and continuity. The main level offers an exceptional layout ideal for both everyday living and entertaining. The formal living room provides a peaceful retreat, while the spacious formal dining room sets the stage for memorable gatherings. The heart of the home, the kitchen provides a comfortable and practical space for busy everyday life. With generous work space, a pantry for storage, and a bright dining area, it’s well-suited for everything from weeknight meals to weekend baking. Sliders extend the living space outdoors to the deck and the fenced-in backyard. Adjacent to the kitchen, the generously sized family room features a welcoming fireplace, creating a cozy atmosphere for relaxing evenings. Here is where memories of fun-filled gatherings will be made. A private bonus room on the main level adds wonderful flexibility and can easily serve as a 5th bedroom, playroom, home office, guest space, or exercise room. A full bathroom with a walk-in shower completes this level. Upstairs, the impressive primary suite offers a true retreat, highlighted by an expansive walk-in closet. The luxurious primary bath features dual vanities, a soaking whirlpool tub, and a custom oversized walk-in shower. Three additional bedrooms are excellently sized, each with double closets featuring custom built-in organizers and large windows that fill the rooms with natural light. A conveniently located upper-level laundry adds to the home’s thoughtful design. The walk-out lower level provides additional finished living space with the durability of luxury plank vinyl flooring and sliders leading directly to the backyard. This level also offers access to a large storage area, young utilities, and the three-car garage. Don’t miss the opportunity to make this exceptional home your own. Located in the Clarkstown Central School District, serving Bardonia Elementary and Clarkstown South High School.

Features

  • Rooms: 12
  • Bedrooms: 4
  • Baths: 3 full
  • Laundry: Laundry Room
  • Style: Colonial
  • Year Built: 2005
  • Garage: 3-car
  • Heating: Baseboard
  • Cooling: Central Air
  • Basement: Finished, Storage Space, Walk-Out Access
  • Approx Sq. Feet: 3,346
  • Acreage: 0.52
  • Est. Taxes: $22,783
  • Elem. School: Bardonia Elementary School
  • Middle School: Felix Festa Achievement Middle Sch
  • High School: Clarkstown South Senior High School
  • School District: Clarkstown
  • Appliances: Dishwasher, Disposal, Dryer, Gas Oven, Microwave, Refrigerator, Stainless Steel Appliance(s), Washer, Gas Water Heater
  • MLS#: 943882
  • Days on Market: 10 days
  • Website: https://www.raveis.com
    /prop/943882/564route304_bardonia_ny?source=qrflyer
Listing information has been assembled from various sources of varying degrees of reliability. Any information critical to the buying decision should be independently verified.

William Raveis Family of Services

Our family of companies partner in delivering quality services in a one-stop-shopping environment. Together, we integrate the most comprehensive real estate, mortgage and insurance services available to fulfill your specific real estate needs.

The One TeamSales Associates

OneandCompany@raveis.com

Our family of companies offer our clients a new level of full-service real estate. We shall:

  • Market your home to realize a quick sale at the best possible price
  • Place up to 20+ photos of your home on our website, raveis.com
  • Provide frequent communication and tracking reports showing the Internet views your home received on raveis.com
  • Showcase your home on raveis.com with a larger and more prominent format
  • Give you the full resources and strength of William Raveis Real Estate, Mortgage & Insurance and our cutting-edge technology

To learn more about our credentials, visit raveis.com today.

Kevin DeTullioVP, Mortgage Banker / Production Manager, William Raveis Mortgage, LLC

NMLS Mortgage Loan Originator ID 1724767

203.305.5736

Kevin.DeTullio@Raveis.com

Our Executive Mortgage Banker:

  • Is available to meet with you in our office, your home or office, evenings or weekends
  • Offers you pre-approval in minutes!
  • Provides a guaranteed closing date that meets your needs
  • Has access to hundreds of loan programs, all at competitive rates
  • Is in constant contact with a full processing, underwriting, and closing staff to ensure an efficient transaction

Brian SkellyVP, Mortgage Banker, William Raveis Mortgage, LLC

NMLS Mortgage Loan Originator ID 793093

203.415.2989

Brian.Skelly@raveis.com

Our Executive Mortgage Banker:

  • Is available to meet with you in our office, your home or office, evenings or weekends
  • Offers you pre-approval in minutes!
  • Provides a guaranteed closing date that meets your needs
  • Has access to hundreds of loan programs, all at competitive rates
  • Is in constant contact with a full processing, underwriting, and closing staff to ensure an efficient transaction

Diane PadelliInsurance Sales Director, William Raveis Insurance

203.444.0494

Diane.Padelli@raveis.com

Our Insurance Division:

  • Will Provide a home insurance quote within 24 hours
  • Offers full-service coverage such as Homeowner's, Auto, Life, Renter's, Flood and Valuable Items
  • Partners with major insurance companies including Chubb, Kemper Unitrin, The Hartford, Progressive,
    Encompass, Travelers, Fireman's Fund, Middleoak Mutual, One Beacon and American Reliable

564 Route 304, Bardonia, NY, 10954

$950,000

The One Team

Sales Associates

William Raveis Real Estate

Phone: 860.850.0500

OneandCompany@raveis.com

Kevin DeTullio

VP, Mortgage Banker / Production Manager

William Raveis Mortgage, LLC

Phone: 203.305.5736

Kevin.DeTullio@Raveis.com

NMLS Mortgage Loan Originator ID 1724767

Brian Skelly

VP, Mortgage Banker

William Raveis Mortgage, LLC

Phone: 203.415.2989

Brian.Skelly@raveis.com

NMLS Mortgage Loan Originator ID 793093

5/6 (30 Yr)
Adjustable Rate Jumbo*
30 Year
Fixed-Rate Jumbo
15 Year
Fixed-Rate Jumbo
Loan Amount $760,000 $760,000 $760,000
Term 360 months 360 months 180 months
Initial Interest Rate** 5.000% 5.750% 5.500%
Interest Rate based on Index + Margin 8.125%
Annual Percentage Rate 6.048% 5.858% 5.681%
Monthly Tax Payment $1,899 $1,899 $1,899
H/O Insurance Payment $92 $92 $92
Initial Principal & Interest Pmt $4,080 $4,435 $6,210
Total Monthly Payment $6,071 $6,426 $8,201

* The Initial Interest Rate and Initial Principal & Interest Payment are fixed for the first and adjust every six months thereafter for the remainder of the loan term. The Interest Rate and annual percentage rate may increase after consummation. The Index for this product is the SOFR. The margin for this adjustable rate mortgage may vary with your unique credit history, and terms of your loan.

** Mortgage Rates are subject to change, loan amount and product restrictions and may not be available for your specific transaction at commitment or closing. Rates, and the margin for adjustable rate mortgages [if applicable], are subject to change without prior notice.

The rates and Annual Percentage Rate (APR) cited above may be only samples for the purpose of calculating payments and are based upon the following assumptions: minimum credit score of 740, 20% down payment (e.g. $20,000 down on a $100,000 purchase price), $1,950 in finance charges, and 30 days prepaid interest, 1 point, 30 day rate lock. The rates and APR will vary depending upon your unique credit history and the terms of your loan, e.g. the actual down payment percentages, points and fees for your transaction. Property taxes and homeowner's insurance are estimates and subject to change.