242 Telluride Way, Lyman, SC, 29365 | $289,990

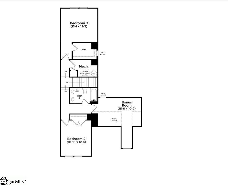
Welcome to Aspen Ridge! We are the only luxury townhomes minutes from Downtown Greer. SIMPLIFY YOUR MOVE! All homes feature the move-in package boasting a refrigerator, washer, dryer, dishwasher, microwave, in-sink disposal and white faux wood blinds. Located beside the community bark park, this home is a pet lovers dream! Offering 2, 182 square feet of functional living space, the Summit is a thoughtfully crafted home that is sure to meet all your needs. Enter the spacious foyer from your front porch or garage and come into your open concept living area where you can entertain seamlessly between the living room, kitchen and breakfast area. The chef's kitchen is a must see with stunning dark brown cabinetry, Quartz countertops, tiled backsplash, center island with sink, under cabinet lighting and stainless steel gas appliances including a refrigerator. The 12’ Cathedral Ceilings makes the living room open and airy and lead out to the covered porch and more private backyard which is perfect for those summer evenings. Retreat to the luxurious main floor Primary Suite, complete with a generous walk in closet and spa like bathroom featuring double vanities and a beautiful tiled shower with seat and glass door. Adjacent to the foyer is a dining room which would also make a great home office. A full bath as well as your laundry room with washer/dryer included complete the main level. Upstairs are two large bedrooms, a full bath, and a versatile room that would be a great entertaining space or even another bedroom. Blinds are also included throughout the home! The 1 car garage and double parking pad give a convenient and versatile combination for car storage and parking. Smart home technology, energy-efficient design, and a dedicated local warranty team ensure long-term comfort and convenience. HOA includes lawn care and trash collection. Live effortlessly in your new home with easy access to Greenville, SC, I-85, nearby schools, shops, parks and restaurants. Desirable open-concept floorplans with craftsman style exteriors. Main level or second level primary suites available with many premier features floorplans including, 2-story ceiling, 9-foot kitchen island, spacious primary suites, LVP flooring, and plentiful large windows allowing an abundance of natural light. Come by today for your personal tour and be one of the first ones to call Aspen Ridge your new home! See Sales Agent for addtional pricing information.

Features

  • Amenities: Street Lights, Lawn Maintenance, Dog Park
  • Bedrooms: 3
  • Baths: 3 full
  • Laundry: 1st Floor, Electric Dryer Hookup
  • Style: Craftsman
  • Year Built: 2025
  • Garage: 1-car Attached
  • Heating: Natural Gas
  • Cooling: Electric
  • Basement: None
  • Acreage: 0.04
  • Est. Taxes: $0
  • HOA Fee: $145 Monthly
  • Elem. School: Lyman
  • Middle School: DR Hill
  • High School: James F. Byrnes
  • Appliances: Dishwasher, Disposal, Dryer, Free-Standing Gas Range, Self Cleaning Oven, Refrigerator, Washer, Gas Oven, Microwave, Microwave-Convection, Electric Water Heater
  • MLS#: 1577170
  • Days on Market: 27 days
  • Website: https://www.raveis.com
    /prop/1577170/242tellurideway_lyman_sc?source=qrflyer
Copyright © 2026  Greater Greenville Association of REALTORS®. All rights reserved
This information is deemed reliable, but not guaranteed. The data relating to real estate displayed on this Site comes in part from the IDX Program of Greater Greenville Association of REALTORs. The information being provided is for consumers' personal, non-commercial use and may not be used for any purpose other than to identify prospective properties consumers may be interested in purchasing.
Listing courtesy of DRB Group South Carolina, LLC   Phone: 864-729-4168

William Raveis Family of Services

Our family of companies partner in delivering quality services in a one-stop-shopping environment. Together, we integrate the most comprehensive real estate, mortgage and insurance services available to fulfill your specific real estate needs.

Customer Service

888.699.8876

Contact@raveis.com

Our family of companies offer our clients a new level of full-service real estate. We shall:

  • Market your home to realize a quick sale at the best possible price
  • Place up to 20+ photos of your home on our website, raveis.com
  • Provide frequent communication and tracking reports showing the Internet views your home received on raveis.com
  • Showcase your home on raveis.com with a larger and more prominent format
  • Give you the full resources and strength of William Raveis Real Estate, Mortgage & Insurance and our cutting-edge technology

To learn more about our credentials, visit raveis.com today.

Melissa CohnRVP, Mortgage Banker, William Raveis Mortgage, LLC

NMLS Mortgage Loan Originator ID 16953

917.838.7300

Melissa.Cohn@raveis.com

Our Executive Mortgage Banker:

  • Is available to meet with you in our office, your home or office, evenings or weekends
  • Offers you pre-approval in minutes!
  • Provides a guaranteed closing date that meets your needs
  • Has access to hundreds of loan programs, all at competitive rates
  • Is in constant contact with a full processing, underwriting, and closing staff to ensure an efficient transaction

242 Telluride Way, Lyman, SC, 29365

$289,990

Customer Service

William Raveis Real Estate

Phone: 888.699.8876

Contact@raveis.com

Melissa Cohn

RVP, Mortgage Banker

William Raveis Mortgage, LLC

Phone: 917.838.7300

Melissa.Cohn@raveis.com

NMLS Mortgage Loan Originator ID 16953

5/6 (30 Yr)
Adjustable Rate Conforming*
30 Year
Fixed-Rate Conforming
15 Year
Fixed-Rate Conforming
Loan Amount $231,992 $231,992 $231,992
Term 360 months 360 months 180 months
Initial Interest Rate** 5.500% 5.990% 5.125%
Interest Rate based on Index + Margin 8.125%
Annual Percentage Rate 6.285% 6.132% 5.415%
Monthly Tax Payment $0 $0 $0
H/O Insurance Payment $75 $75 $75
Initial Principal & Interest Pmt $1,317 $1,389 $1,850
Total Monthly Payment $1,392 $1,464 $1,925

* The Initial Interest Rate and Initial Principal & Interest Payment are fixed for the first and adjust every six months thereafter for the remainder of the loan term. The Interest Rate and annual percentage rate may increase after consummation. The Index for this product is the SOFR. The margin for this adjustable rate mortgage may vary with your unique credit history, and terms of your loan.

** Mortgage Rates are subject to change, loan amount and product restrictions and may not be available for your specific transaction at commitment or closing. Rates, and the margin for adjustable rate mortgages [if applicable], are subject to change without prior notice.

The rates and Annual Percentage Rate (APR) cited above may be only samples for the purpose of calculating payments and are based upon the following assumptions: minimum credit score of 740, 20% down payment (e.g. $20,000 down on a $100,000 purchase price), $1,950 in finance charges, and 30 days prepaid interest, 1 point, 30 day rate lock. The rates and APR will vary depending upon your unique credit history and the terms of your loan, e.g. the actual down payment percentages, points and fees for your transaction. Property taxes and homeowner's insurance are estimates and subject to change.  The Total Monthly Payment does not include the estimated HOA/Common Charge payment.