6 Alpine Road, Cold Spring, NY, 10516 | $5,350

Hidden within an intimate, storybook lake community, this beautifully and historically restored home offers a rare opportunity to live somewhere truly special. Thoughtfully designed and restored with meticulous attention to every detail, the home blends timeless character with charm while creating a space that feels both inviting and effortlessly functional. Inside, the home unfolds in a way that feels both playful and purposeful. With two bedrooms, two bonus rooms, a full basement, and three quaintly finished bathrooms, the layout offers flexibility without sacrificing intimacy. Each space flows naturally into the next, revealing cozy corners, light-filled rooms, and carefully restored touches, creating a warm and inviting atmosphere that instantly feels like home. Whether you’re creating a peaceful work from home setup, hosting weekend guests, or carving out a quiet retreat for yourself, the home adapts effortlessly to the needs of your life. Outside, enjoy a generous private backyard that borders the woods, offering a serene and secluded setting. Here nature becomes part of your everyday life. Morning coffee among the trees, evenings spent outdoors as the light softens, and weekends that invite you to slow down and simply be present. It’s a space that feels peaceful and grounding, offering privacy, beauty, and a deep connection to the landscape that surrounds you. The Lake Valhalla community itself is a well kept secret. With only a handful of log cabin homes, it offers a sense of closeness and charm that’s increasingly hard to find. Days can be spent swimming, kayaking, canoeing, fishing, or paddleboarding on the private lake, while the shuffleboard and tennis court, ping-pong lodge, open fields, lookout point, and winding trails invite both recreation and reflection. It’s a place where neighbors wave, memories form naturally, and every season brings its own kind of magic. Despite its tranquil, storybook setting, the location is incredibly convenient. Less than 15 minutes to downtown vibrant Cold Spring or 20 minutes to Beacon, both of which offer restaurants, coffee shops, shopping, antiquing, and the Metro-North train line for easy commuting. This is a place that doesn’t just give you a home, it gives you a feeling. Mornings begin with sunlight filtering through the trees, the quiet broken only by birdsong and the gentle stillness of the woods beyond your backyard. Days invite you outside to paddle across the lake, wander the trails, or linger in the field with laughter and conversation. Evenings slow naturally, whether spent by the water, under the stars, or curled up inside a space that has been thoughtfully restored and cared for. Here, time seems to stretch, allowing room to breathe, reflect, and truly live. You feel transported, far removed from the rush and noise, yet comforted by the knowledge that vibrant towns, warm cafés, and the ease of the train are just minutes away. This is where memories are made without trying, where life feels simpler and richer all at once. A rare retreat that gently pulls you away from the everyday and reminds you what it means to feel at home.

Features

  • Type: Single Family
  • Amenities: Clubhouse, Other, Park, Tennis Court(s)
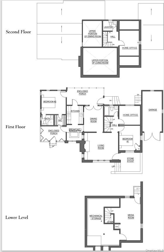
  • Rooms: 10
  • Bedrooms: 2
  • Baths: 3 full
  • Laundry: Inside
  • Style: Cottage, Log
  • Year Built: 1938
  • Garage: 1-car
  • Heating: Forced Air, Oil, Other
  • Cooling: Central Air
  • Basement: Finished
  • Approx Sq. Feet: 1,703
  • Acreage: 0.43
  • Lot Desc: Back Yard, Corner Lot, Cul-De-Sac, Historic District, Landscaped, Near Public Transit, Near Shops, Part Wooded, Private, Views, Wooded
  • View: Neighborhood, Trees/Woods
  • Water Front: Yes
  • Elem. School: Haldane Elementary/Middle School
  • Middle School: Haldane Middle School
  • High School: Haldane High School
  • School District: Haldane
  • Pet Policy: Call
  • Appliances: Dishwasher, Dryer, Refrigerator, Washer, Oil Water Heater
  • Lease Term Type: 12 Months
  • MLS#: 943475
  • Days on Market: 2 days
  • Website: https://www.raveis.com
    /prop/943475/6alpineroad_coldspring_ny?source=qrflyer
Listing information has been assembled from various sources of varying degrees of reliability. Any information critical to the buying decision should be independently verified.Listing courtesy of Keller Williams Realty Group   Phone: 914-713-3270

William Raveis Family of Services

Our family of companies partner in delivering quality services in a one-stop-shopping environment. Together, we integrate the most comprehensive real estate, mortgage and insurance services available to fulfill your specific real estate needs.

Customer Service

888.699.8876

Contact@raveis.com

Our family of companies offer our clients a new level of full-service real estate. We shall:

  • Market your home to realize a quick sale at the best possible price
  • Place up to 20+ photos of your home on our website, raveis.com
  • Provide frequent communication and tracking reports showing the Internet views your home received on raveis.com
  • Showcase your home on raveis.com with a larger and more prominent format
  • Give you the full resources and strength of William Raveis Real Estate, Mortgage & Insurance and our cutting-edge technology

To learn more about our credentials, visit raveis.com today.

Frank KolbSenior Vice President - Coaching & Strategic, William Raveis Mortgage, LLC

NMLS Mortgage Loan Originator ID 81725

203.980.8025

Frank.Kolb@raveis.com

Our Executive Mortgage Banker:

  • Is available to meet with you in our office, your home or office, evenings or weekends
  • Offers you pre-approval in minutes!
  • Provides a guaranteed closing date that meets your needs
  • Has access to hundreds of loan programs, all at competitive rates
  • Is in constant contact with a full processing, underwriting, and closing staff to ensure an efficient transaction

Ryan FortierInsurance Sales Director, William Raveis Insurance

516.739.7731

Ryan.Fortier@raveis.com

Our Insurance Division:

  • Will Provide a home insurance quote within 24 hours
  • Offers full-service coverage such as Homeowner's, Auto, Life, Renter's, Flood and Valuable Items
  • Partners with major insurance companies including Chubb, Kemper Unitrin, The Hartford, Progressive,
    Encompass, Travelers, Fireman's Fund, Middleoak Mutual, One Beacon and American Reliable

6 Alpine Road, Cold Spring, NY, 10516

$5,350

Customer Service

William Raveis Real Estate

Phone: 888.699.8876

Contact@raveis.com

Frank Kolb

Senior Vice President - Coaching & Strategic

William Raveis Mortgage, LLC

Phone: 203.980.8025

Frank.Kolb@raveis.com

NMLS Mortgage Loan Originator ID 81725

5/6 (30 Yr)
Adjustable Rate Conforming*
30 Year
Fixed-Rate Conforming
15 Year
Fixed-Rate Conforming
Loan Amount $4,280 $4,280 $4,280
Term 360 months 360 months 180 months
Initial Interest Rate** 5.500% 5.990% 5.250%
Interest Rate based on Index + Margin 8.125%
Annual Percentage Rate 6.285% 6.156% 5.522%
Monthly Tax Payment N/A N/A N/A
H/O Insurance Payment $75 $75 $75
Initial Principal & Interest Pmt $24 $26 $34
Total Monthly Payment $99 $101 $109

* The Initial Interest Rate and Initial Principal & Interest Payment are fixed for the first and adjust every six months thereafter for the remainder of the loan term. The Interest Rate and annual percentage rate may increase after consummation. The Index for this product is the SOFR. The margin for this adjustable rate mortgage may vary with your unique credit history, and terms of your loan.

** Mortgage Rates are subject to change, loan amount and product restrictions and may not be available for your specific transaction at commitment or closing. Rates, and the margin for adjustable rate mortgages [if applicable], are subject to change without prior notice.

The rates and Annual Percentage Rate (APR) cited above may be only samples for the purpose of calculating payments and are based upon the following assumptions: minimum credit score of 740, 20% down payment (e.g. $20,000 down on a $100,000 purchase price), $1,950 in finance charges, and 30 days prepaid interest, 1 point, 30 day rate lock. The rates and APR will vary depending upon your unique credit history and the terms of your loan, e.g. the actual down payment percentages, points and fees for your transaction. Property taxes and homeowner's insurance are estimates and subject to change.