15 A Roosevelt Avenue, Hudson, NH, 03051 | $299,900

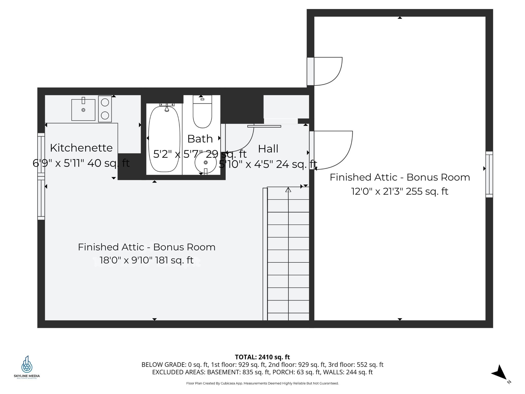
Welcome to 15A Roosevelt, a unique detached condominium located in a quiet 62+ community in Hudson. Originally designed as a two-family home, this property has been converted into a spacious single-family residence offering a highly flexible layout and true one-level living. The first floor features 2 bedrooms and 1. 5 bathrooms, along with a large living room, kitchen, and laundry area, making it ideal for those seeking the convenience of main-level living. The second floor provides 3 additional bedrooms, a full bathroom, and a former living room/kitchen space. While the kitchen is no longer in use, the layout remains and offers potential for buyers who may wish to reinstall it in the future. Adding even more versatility, the home includes a third-floor space with its own private exterior entrance. This area appears to have been a separate unit at one time, offering additional options depending on a buyer’s needs. As a detached condominium, this home provides the privacy and feel of a single-family residence along with the low-maintenance benefits of condo living. Conveniently located near shopping, restaurants, and major commuter routes, this property offers a rare combination of space, flexibility, and accessibility, all priced under $300, 000. Come explore the possibilities at 15A Roosevelt.

Features

  • Parking: Driveway
  • Heating: Natural Gas,Forced Air
  • Cooling: Central AC
  • Amenities: Master Insurance,Landscaping,Snow Removal
  • Rooms: 12
  • Bedrooms: 5
  • Baths: 3 full / 1 half
  • Complex: Roosevelt Avenue
  • Year Built: 2005
  • Approx Sq. Feet: 1,848
  • Est. Taxes: $5,358
  • Lot Desc: Condo Development,Level,Near Country Club,Near Golf Course,Near Paths,Near Shopping,Near Hospital
  • MLS#: 5071352
  • Website: https://www.raveis.com
    /prop/5071352/15arooseveltavenue_hudson_nh?source=qrflyer
©2025 New England Real Estate Network, Inc. All rights reserved.This information is deemed reliable, but not guaranteed. The data relating to real estate displayed on this Site comes in part from the IDX Program of PrimMLS. The information being provided is for consumers' personal, non-commercial use and may not be used for any purpose other than to identify prospective properties consumers may be interested in purchasing. Data last updated 12/6/2025
Listing courtesy of Keller Williams Gateway Realty   Phone: 603-883-8400
Listing Agent: Haynes Realty Group

William Raveis Family of Services

Our family of companies partner in delivering quality services in a one-stop-shopping environment. Together, we integrate the most comprehensive real estate, mortgage and insurance services available to fulfill your specific real estate needs.

Customer Service

888.699.8876

Contact@raveis.com

Our family of companies offer our clients a new level of full-service real estate. We shall:

  • Market your home to realize a quick sale at the best possible price
  • Place up to 20+ photos of your home on our website, raveis.com
  • Provide frequent communication and tracking reports showing the Internet views your home received on raveis.com
  • Showcase your home on raveis.com with a larger and more prominent format
  • Give you the full resources and strength of William Raveis Real Estate, Mortgage & Insurance and our cutting-edge technology

To learn more about our credentials, visit raveis.com today.

Joel FanjoyRegional SVP Insurance Sales, William Raveis Insurance

617.320.5687

Joel.Fanjoy@raveis.com

Our Insurance Division:

  • Will Provide a home insurance quote within 24 hours
  • Offers full-service coverage such as Homeowner's, Auto, Life, Renter's, Flood and Valuable Items
  • Partners with major insurance companies including Chubb, Kemper Unitrin, The Hartford, Progressive,
    Encompass, Travelers, Fireman's Fund, Middleoak Mutual, One Beacon and American Reliable

15 A Roosevelt Avenue, Hudson, NH, 03051

$299,900

Customer Service

William Raveis Real Estate

Phone: 888.699.8876

Contact@raveis.com

5/6 (30 Yr)
Adjustable Rate Conforming*
30 Year
Fixed-Rate Conforming
15 Year
Fixed-Rate Conforming
Loan Amount $239,920 $239,920 $239,920
Term 360 months 360 months 180 months
Initial Interest Rate** 5.750% 6.125% 5.375%
Interest Rate based on Index + Margin 8.125%
Annual Percentage Rate 6.521% 6.304% 5.648%
Monthly Tax Payment $447 $447 $447
H/O Insurance Payment $75 $75 $75
Initial Principal & Interest Pmt $1,400 $1,458 $1,944
Total Monthly Payment $1,921 $1,979 $2,465

* The Initial Interest Rate and Initial Principal & Interest Payment are fixed for the first and adjust every six months thereafter for the remainder of the loan term. The Interest Rate and annual percentage rate may increase after consummation. The Index for this product is the SOFR. The margin for this adjustable rate mortgage may vary with your unique credit history, and terms of your loan.

** Mortgage Rates are subject to change, loan amount and product restrictions and may not be available for your specific transaction at commitment or closing. Rates, and the margin for adjustable rate mortgages [if applicable], are subject to change without prior notice.

The rates and Annual Percentage Rate (APR) cited above may be only samples for the purpose of calculating payments and are based upon the following assumptions: minimum credit score of 740, 20% down payment (e.g. $20,000 down on a $100,000 purchase price), $1,950 in finance charges, and 30 days prepaid interest, 1 point, 30 day rate lock. The rates and APR will vary depending upon your unique credit history and the terms of your loan, e.g. the actual down payment percentages, points and fees for your transaction. Property taxes and homeowner's insurance are estimates and subject to change.