44 3rd Street, Wallingford, CT, 06492 | $349,900

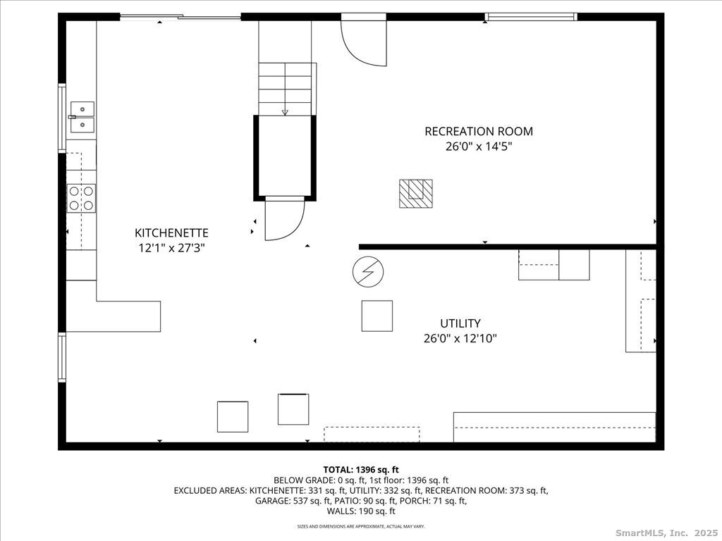
Welcome to this spacious one-level ranch home, offering ease of living, generous room sizes, and a floor plan full of possibilities. This home features 3 bedrooms and 2 full baths, including a double-vanity main bathroom layout and a second full bath with a walk-in shower. Step inside to discover a home with good bones and fantastic potential, made even easier to envision with beautifully reimagined spaces. The kitchen offers abundant cabinetry, great workspace, and room to create. Imagine cream-colored cabinets, updated floors, modern appliances, and a fresh neutral palette - this space is ready for your personal transformation. Multiple living areas provide flexibility for today's lifestyle. The oversized living room offers room for comfortable gatherings, while the separate family room (with the possibility of an electric fireplace and updated flooring) makes an ideal cozy retreat or entertainment space. All three bedrooms are well-sized with hardwood flooring and ample closet storage. The full walk out basement will offer additional living space. Outside, the level yard is perfect for gardening, pets, or outdoor entertaining. An extra storage area is perfect for your yard tools, keeping your two car garage clear. Whether you're a first-time buyer, downsizing to one-level living, or searching for a home you can truly make your own, this property delivers incredible value, a smart layout, and endless potential. Don't miss your opportunity to bring your vision to life.

Features

  • Rooms: 6
  • Bedrooms: 3
  • Baths: 2 full
  • Laundry: Lower Level
  • Style: Ranch
  • Year Built: 1957
  • Garage: 2-car Attached Garage
  • Heating: Hot Air
  • Cooling: None
  • Basement: Full,Storage,Interior Access,Concrete Floor,Full With Walk-Out
  • Above Grade Approx. Sq. Feet: 1,442
  • Acreage: 0.17
  • Est. Taxes: $5,777
  • Lot Desc: Level Lot,Sloping Lot
  • Elem. School: Per Board of Ed
  • High School: Per Board of Ed
  • Appliances: Electric Cooktop,Wall Oven,Range Hood,Refrigerator
  • MLS#: 24142464
  • Website: https://www.raveis.com
    /prop/24142464/443rdstreet_wallingford_ct?source=qrflyer
Copyright © 2025  SmartMLS, Inc.
The data relating to real estate for sale on this website appears in part through the SMARTMLS Internet Data Exchange program, a voluntary cooperative exchange of property listing data between licensed real estate brokerage firms, and is provided by SMARTMLS through a licensing agreement. Listing information is from various brokers who participate in the SMARTMLS IDX program and not all listings may be visible on the site. The property information being provided on or through the website is for the personal, non-commercial use of consumers and such information may not be used for any purpose other than to identify prospective properties consumers may be interested in purchasing. Some properties which appear for sale on the website may no longer be available because they are for instance, under contract, sold or are no longer being offered for sale. Property information displayed is deemed reliable but is not guaranteed.
Listing courtesy of eXp Realty   Phone: (866) 828-3951

Room Information

Type Level
Bedroom 1 Main
Bedroom 2 Main
Dining Room Main
Full Bath Main
Full Bath Main
Living Room Main
Primary Bedroom Main

William Raveis Family of Services

Our family of companies partner in delivering quality services in a one-stop-shopping environment. Together, we integrate the most comprehensive real estate, mortgage and insurance services available to fulfill your specific real estate needs.

Customer Service

888.699.8876

Contact@raveis.com

Our family of companies offer our clients a new level of full-service real estate. We shall:

  • Market your home to realize a quick sale at the best possible price
  • Place up to 20+ photos of your home on our website, raveis.com
  • Provide frequent communication and tracking reports showing the Internet views your home received on raveis.com
  • Showcase your home on raveis.com with a larger and more prominent format
  • Give you the full resources and strength of William Raveis Real Estate, Mortgage & Insurance and our cutting-edge technology

To learn more about our credentials, visit raveis.com today.

Frank KolbSenior Vice President - Coaching & Strategic, William Raveis Mortgage, LLC

NMLS Mortgage Loan Originator ID 81725

203.980.8025

Frank.Kolb@raveis.com

Our Executive Mortgage Banker:

  • Is available to meet with you in our office, your home or office, evenings or weekends
  • Offers you pre-approval in minutes!
  • Provides a guaranteed closing date that meets your needs
  • Has access to hundreds of loan programs, all at competitive rates
  • Is in constant contact with a full processing, underwriting, and closing staff to ensure an efficient transaction

Robert ReadeRegional SVP Insurance Sales, William Raveis Insurance

860.690.5052

Robert.Reade@raveis.com

Our Insurance Division:

  • Will Provide a home insurance quote within 24 hours
  • Offers full-service coverage such as Homeowner's, Auto, Life, Renter's, Flood and Valuable Items
  • Partners with major insurance companies including Chubb, Kemper Unitrin, The Hartford, Progressive,
    Encompass, Travelers, Fireman's Fund, Middleoak Mutual, One Beacon and American Reliable

Ray CashenPresident, William Raveis Attorney Network

203.925.4590

For homebuyers and sellers, our Attorney Network:

  • Consult on purchase/sale and financing issues, reviews and prepares the sale agreement, fulfills lender
    requirements, sets up escrows and title insurance, coordinates closing documents
  • Offers one-stop shopping; to satisfy closing, title, and insurance needs in a single consolidated experience
  • Offers access to experienced closing attorneys at competitive rates
  • Streamlines the process as a direct result of the established synergies among the William Raveis Family of Companies

44 3rd Street, Wallingford, CT, 06492

$349,900

Customer Service

William Raveis Real Estate

Phone: 888.699.8876

Contact@raveis.com

Frank Kolb

Senior Vice President - Coaching & Strategic

William Raveis Mortgage, LLC

Phone: 203.980.8025

Frank.Kolb@raveis.com

NMLS Mortgage Loan Originator ID 81725

5/6 (30 Yr)
Adjustable Rate Conforming*
30 Year
Fixed-Rate Conforming
15 Year
Fixed-Rate Conforming
Loan Amount $279,920 $279,920 $279,920
Term 360 months 360 months 180 months
Initial Interest Rate** 5.750% 6.375% 5.375%
Interest Rate based on Index + Margin 8.125%
Annual Percentage Rate 6.533% 6.533% 5.668%
Monthly Tax Payment $481 $481 $481
H/O Insurance Payment $75 $75 $75
Initial Principal & Interest Pmt $1,634 $1,746 $2,269
Total Monthly Payment $2,190 $2,302 $2,825

* The Initial Interest Rate and Initial Principal & Interest Payment are fixed for the first and adjust every six months thereafter for the remainder of the loan term. The Interest Rate and annual percentage rate may increase after consummation. The Index for this product is the SOFR. The margin for this adjustable rate mortgage may vary with your unique credit history, and terms of your loan.

** Mortgage Rates are subject to change, loan amount and product restrictions and may not be available for your specific transaction at commitment or closing. Rates, and the margin for adjustable rate mortgages [if applicable], are subject to change without prior notice.

The rates and Annual Percentage Rate (APR) cited above may be only samples for the purpose of calculating payments and are based upon the following assumptions: minimum credit score of 740, 20% down payment (e.g. $20,000 down on a $100,000 purchase price), $1,950 in finance charges, and 30 days prepaid interest, 1 point, 30 day rate lock. The rates and APR will vary depending upon your unique credit history and the terms of your loan, e.g. the actual down payment percentages, points and fees for your transaction. Property taxes and homeowner's insurance are estimates and subject to change.