586 Back Road, Windham, CT, 06256 | $299,000

Enjoy easy, one-level living in this charming 2-bed, 1-bath ranch tucked away on a private lot in Windham. A 2-car garage adds convenience, while the spacious yard offers room to relax, garden, or entertain. Step inside to a bright, open layout with comfortable living and dining areas that flow naturally together. Just steps from Bibbins Pond and Beaver Brook Park trails, this home is a nature lover's dream - close to town yet surrounded by serenity. Perfect as a first home, downsizer, or weekend retreat - come experience the peaceful charm for yourself.

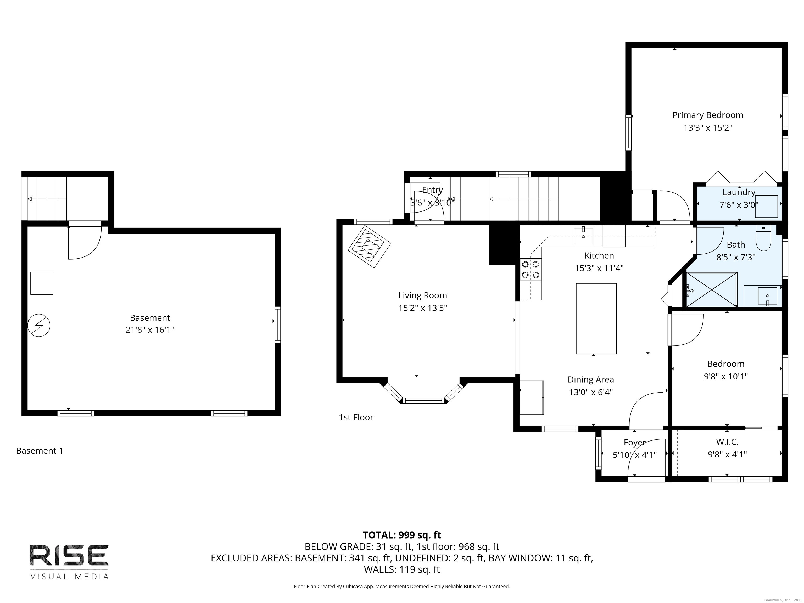
Features

  • Rooms: 5
  • Bedrooms: 2
  • Baths: 1 full
  • Laundry: Main Level
  • Style: Ranch
  • Year Built: 1950
  • Garage: 2-car Detached Garage,Paved,Driveway
  • Heating: Baseboard,Other
  • Cooling: Split System,Window Unit
  • Basement: Partial,Unfinished
  • Above Grade Approx. Sq. Feet: 996
  • Acreage: 2.7
  • Est. Taxes: $3,456
  • Lot Desc: Level Lot,Cleared
  • Elem. School: Per Board of Ed
  • High School: Per Board of Ed
  • Appliances: Oven/Range,Microwave,Dishwasher,Washer,Electric Dryer
  • MLS#: 24139980
  • Website: https://www.raveis.com
    /raveis/24139980/586backroad_windham_ct?source=qrflyer
The data relating to real estate for sale on this website appears in part through the SMARTMLS Internet Data Exchange program, a voluntary cooperative exchange of property listing data between licensed real estate brokerage firms, and is provided by SMARTMLS through a licensing agreement. Listing information is from various brokers who participate in the SMARTMLS IDX program and not all listings may be visible on the site. The property information being provided on or through the website is for the personal, non-commercial use of consumers and such information may not be used for any purpose other than to identify prospective properties consumers may be interested in purchasing. Some properties which appear for sale on the website may no longer be available because they are for instance, under contract, sold or are no longer being offered for sale. Property information displayed is deemed reliable but is not guaranteed.

Room Information

Type Level
Bedroom 1 Main
Dining Room Main
Living Room Main
Primary Bedroom Main

William Raveis Family of Services

Our family of companies partner in delivering quality services in a one-stop-shopping environment. Together, we integrate the most comprehensive real estate, mortgage and insurance services available to fulfill your specific real estate needs.

The One TeamSales Associates

OneandCompany@raveis.com

Our family of companies offer our clients a new level of full-service real estate. We shall:

  • Market your home to realize a quick sale at the best possible price
  • Place up to 20+ photos of your home on our website, raveis.com
  • Provide frequent communication and tracking reports showing the Internet views your home received on raveis.com
  • Showcase your home on raveis.com with a larger and more prominent format
  • Give you the full resources and strength of William Raveis Real Estate, Mortgage & Insurance and our cutting-edge technology

To learn more about our credentials, visit raveis.com today.

Kevin DeTullioVP, Mortgage Banker / Production Manager, William Raveis Mortgage, LLC

NMLS Mortgage Loan Originator ID 1724767

203.305.5736

Kevin.DeTullio@Raveis.com

Our Executive Mortgage Banker:

  • Is available to meet with you in our office, your home or office, evenings or weekends
  • Offers you pre-approval in minutes!
  • Provides a guaranteed closing date that meets your needs
  • Has access to hundreds of loan programs, all at competitive rates
  • Is in constant contact with a full processing, underwriting, and closing staff to ensure an efficient transaction

Brian SkellyVP, Mortgage Banker, William Raveis Mortgage, LLC

NMLS Mortgage Loan Originator ID 793093

203.415.2989

Brian.Skelly@raveis.com

Our Executive Mortgage Banker:

  • Is available to meet with you in our office, your home or office, evenings or weekends
  • Offers you pre-approval in minutes!
  • Provides a guaranteed closing date that meets your needs
  • Has access to hundreds of loan programs, all at competitive rates
  • Is in constant contact with a full processing, underwriting, and closing staff to ensure an efficient transaction

Diane PadelliInsurance Sales Director, William Raveis Insurance

203.444.0494

Diane.Padelli@raveis.com

Our Insurance Division:

  • Will Provide a home insurance quote within 24 hours
  • Offers full-service coverage such as Homeowner's, Auto, Life, Renter's, Flood and Valuable Items
  • Partners with major insurance companies including Chubb, Kemper Unitrin, The Hartford, Progressive,
    Encompass, Travelers, Fireman's Fund, Middleoak Mutual, One Beacon and American Reliable

Ray CashenPresident, William Raveis Attorney Network

203.925.4590

For homebuyers and sellers, our Attorney Network:

  • Consult on purchase/sale and financing issues, reviews and prepares the sale agreement, fulfills lender
    requirements, sets up escrows and title insurance, coordinates closing documents
  • Offers one-stop shopping; to satisfy closing, title, and insurance needs in a single consolidated experience
  • Offers access to experienced closing attorneys at competitive rates
  • Streamlines the process as a direct result of the established synergies among the William Raveis Family of Companies

586 Back Road, Windham, CT, 06256

$299,000

The One Team

Sales Associates

William Raveis Real Estate

Phone: 860.850.0500

OneandCompany@raveis.com

Kevin DeTullio

VP, Mortgage Banker / Production Manager

William Raveis Mortgage, LLC

Phone: 203.305.5736

Kevin.DeTullio@Raveis.com

NMLS Mortgage Loan Originator ID 1724767

Brian Skelly

VP, Mortgage Banker

William Raveis Mortgage, LLC

Phone: 203.415.2989

Brian.Skelly@raveis.com

NMLS Mortgage Loan Originator ID 793093

5/6 (30 Yr)
Adjustable Rate Conforming*
30 Year
Fixed-Rate Conforming
15 Year
Fixed-Rate Conforming
Loan Amount $239,200 $239,200 $239,200
Term 360 months 360 months 180 months
Initial Interest Rate** 5.500% 6.125% 5.375%
Interest Rate based on Index + Margin 8.125%
Annual Percentage Rate 6.285% 6.292% 5.628%
Monthly Tax Payment $288 $288 $288
H/O Insurance Payment $75 $75 $75
Initial Principal & Interest Pmt $1,358 $1,453 $1,939
Total Monthly Payment $1,721 $1,816 $2,302

* The Initial Interest Rate and Initial Principal & Interest Payment are fixed for the first and adjust every six months thereafter for the remainder of the loan term. The Interest Rate and annual percentage rate may increase after consummation. The Index for this product is the SOFR. The margin for this adjustable rate mortgage may vary with your unique credit history, and terms of your loan.

** Mortgage Rates are subject to change, loan amount and product restrictions and may not be available for your specific transaction at commitment or closing. Rates, and the margin for adjustable rate mortgages [if applicable], are subject to change without prior notice.

The rates and Annual Percentage Rate (APR) cited above may be only samples for the purpose of calculating payments and are based upon the following assumptions: minimum credit score of 740, 20% down payment (e.g. $20,000 down on a $100,000 purchase price), $1,950 in finance charges, and 30 days prepaid interest, 1 point, 30 day rate lock. The rates and APR will vary depending upon your unique credit history and the terms of your loan, e.g. the actual down payment percentages, points and fees for your transaction. Property taxes and homeowner's insurance are estimates and subject to change.