22 Longmeadow Drive, Concord, NH, 03301 | $49,900

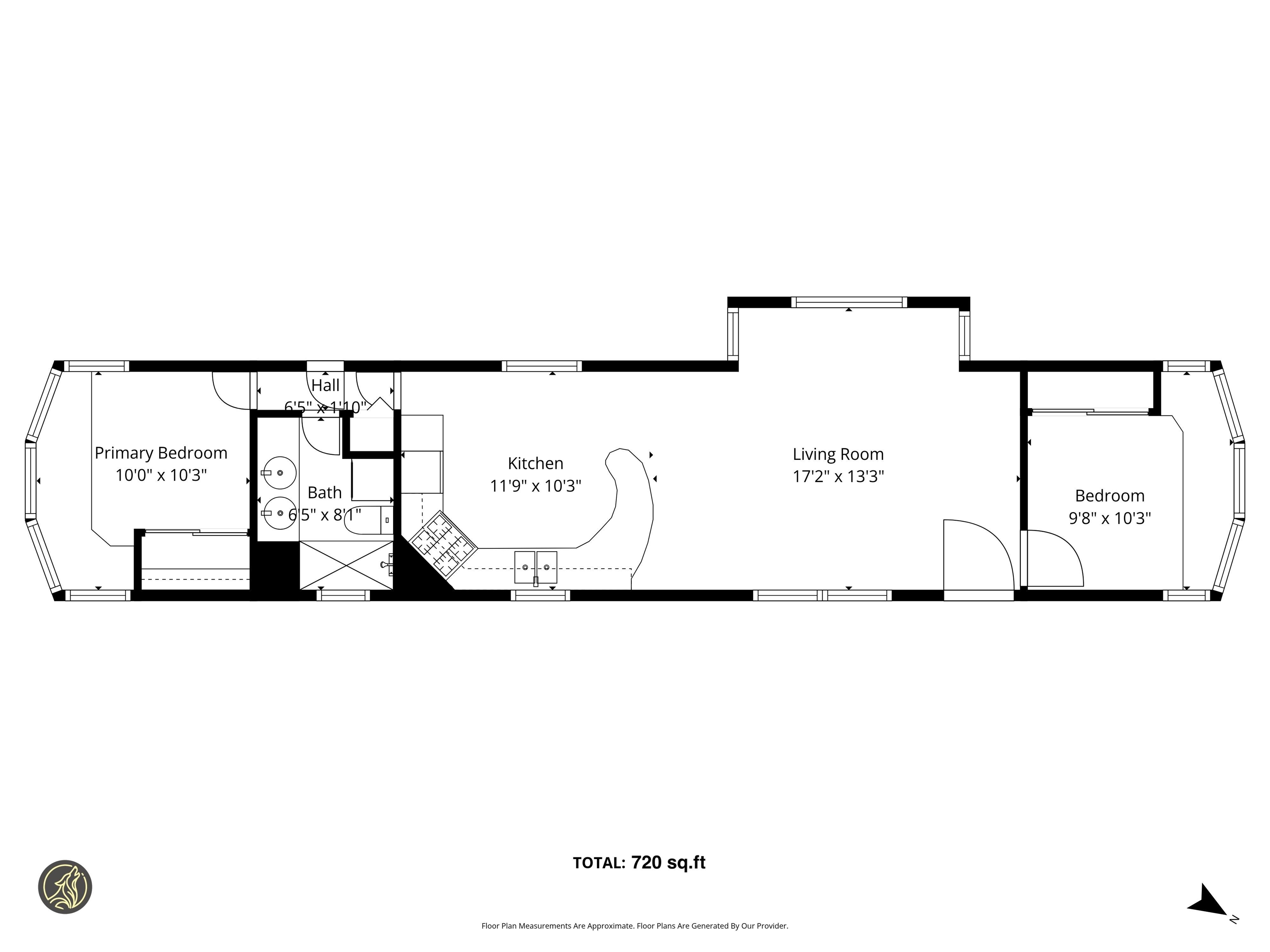
BACK ON MARKET due to buyer’s inability to secure financing. Welcome to 22 Longmeadow Dr, an affordable and well-maintained 2-bedroom, 1-bathroom home located in the highly desirable River’s Edge Estates community. Don’t let the age fool you—this 1972 home has received numerous updates over the years, offering comfort, value, and the opportunity to add equity over time. Inside, you’ll appreciate the practical layout and steady improvements, including a new furnace (2015), replacement windows (2006), walk-in shower and toilet (2016), and a new washer/dryer (2018). The exterior has been thoughtfully upgraded as well, featuring a porch added in 2011, vinyl siding, a Feltback Sarnafil membrane roof (2005) for long-lasting durability, and a shed that’s great for additional storage and outdoor equipment. Nestled among beautiful hardwood trees and just steps from the Merrimack River, this home offers peace and privacy while being only minutes from all that Concord has to offer. With cosmetic updating, there is excellent potential to build instant equity and make this home truly your own. Park approval is required (one-time $125 application fee). Monthly park rent is $575 (a security deposit equal to one month’s rent is due at closing), and pets are allowed with breed and size restrictions (see Section 3 of Rules & Regs). Park requires owner to occupy the home (you can't rent/lease out to non-owners). This is an affordable opportunity in a prime location.

Features

  • Rooms: 4
  • Bedrooms: 2
  • Baths: 1 three-quarter
  • Style: Manuf/Mobile
  • Year Built: 1972
  • Heating: Oil,Forced Air,Hot Air
  • Cooling: Other
  • Approx Sq. Feet: 720
  • Est. Taxes: $734
  • Lot Desc: Level
  • Middle School: Rundlett Middle School
  • High School: Concord High School
  • School District: Concord School District SAU #8
  • MLS#: 5070629
  • Website: https://www.raveis.com
    /prop/5070629/22longmeadowdrive_concord_nh?source=qrflyer
©2026 New England Real Estate Network, Inc. All rights reserved.This information is deemed reliable, but not guaranteed. The data relating to real estate displayed on this Site comes in part from the IDX Program of PrimMLS. The information being provided is for consumers' personal, non-commercial use and may not be used for any purpose other than to identify prospective properties consumers may be interested in purchasing. Data last updated 1/14/2026

William Raveis Family of Services

Our family of companies partner in delivering quality services in a one-stop-shopping environment. Together, we integrate the most comprehensive real estate, mortgage and insurance services available to fulfill your specific real estate needs.

Amy HesikSales Associate

650.218.5803

Amy.Hesik@raveis.com

Our family of companies offer our clients a new level of full-service real estate. We shall:

  • Market your home to realize a quick sale at the best possible price
  • Place up to 20+ photos of your home on our website, raveis.com
  • Provide frequent communication and tracking reports showing the Internet views your home received on raveis.com
  • Showcase your home on raveis.com with a larger and more prominent format
  • Give you the full resources and strength of William Raveis Real Estate, Mortgage & Insurance and our cutting-edge technology

To learn more about our credentials, visit raveis.com today.

Kate RockettRVP, Mortgage Banker, William Raveis Mortgage, LLC

NMLS Mortgage Loan Originator ID 1500191

617.281.4872

Kate.Rockett@raveis.com

Our Executive Mortgage Banker:

  • Is available to meet with you in our office, your home or office, evenings or weekends
  • Offers you pre-approval in minutes!
  • Provides a guaranteed closing date that meets your needs
  • Has access to hundreds of loan programs, all at competitive rates
  • Is in constant contact with a full processing, underwriting, and closing staff to ensure an efficient transaction

Jennifer HartInsurance Sales Director, William Raveis Insurance

978.457.6220

Jennifer.Hart@raveis.com

Our Insurance Division:

  • Will Provide a home insurance quote within 24 hours
  • Offers full-service coverage such as Homeowner's, Auto, Life, Renter's, Flood and Valuable Items
  • Partners with major insurance companies including Chubb, Kemper Unitrin, The Hartford, Progressive,
    Encompass, Travelers, Fireman's Fund, Middleoak Mutual, One Beacon and American Reliable

22 Longmeadow Drive, Concord, NH, 03301

$49,900

Amy Hesik

Sales Associate

William Raveis Real Estate

Phone: 650.218.5803

Amy.Hesik@raveis.com

Kate Rockett

RVP, Mortgage Banker

William Raveis Mortgage, LLC

Phone: 617.281.4872

Kate.Rockett@raveis.com

NMLS Mortgage Loan Originator ID 1500191

5/6 (30 Yr)
Adjustable Rate Conforming*
30 Year
Fixed-Rate Conforming
15 Year
Fixed-Rate Conforming
Loan Amount $39,920 $39,920 $39,920
Term 360 months 360 months 180 months
Initial Interest Rate** 5.625% 5.990% 5.125%
Interest Rate based on Index + Margin 8.125%
Annual Percentage Rate 6.322% 6.156% 5.415%
Monthly Tax Payment $61 $61 $61
H/O Insurance Payment $75 $75 $75
Initial Principal & Interest Pmt $230 $239 $318
Total Monthly Payment $366 $375 $454

* The Initial Interest Rate and Initial Principal & Interest Payment are fixed for the first and adjust every six months thereafter for the remainder of the loan term. The Interest Rate and annual percentage rate may increase after consummation. The Index for this product is the SOFR. The margin for this adjustable rate mortgage may vary with your unique credit history, and terms of your loan.

** Mortgage Rates are subject to change, loan amount and product restrictions and may not be available for your specific transaction at commitment or closing. Rates, and the margin for adjustable rate mortgages [if applicable], are subject to change without prior notice.

The rates and Annual Percentage Rate (APR) cited above may be only samples for the purpose of calculating payments and are based upon the following assumptions: minimum credit score of 740, 20% down payment (e.g. $20,000 down on a $100,000 purchase price), $1,950 in finance charges, and 30 days prepaid interest, 1 point, 30 day rate lock. The rates and APR will vary depending upon your unique credit history and the terms of your loan, e.g. the actual down payment percentages, points and fees for your transaction. Property taxes and homeowner's insurance are estimates and subject to change.