1 Sanctuary Lane, Meredith, NH, 03253 | $1,825,000

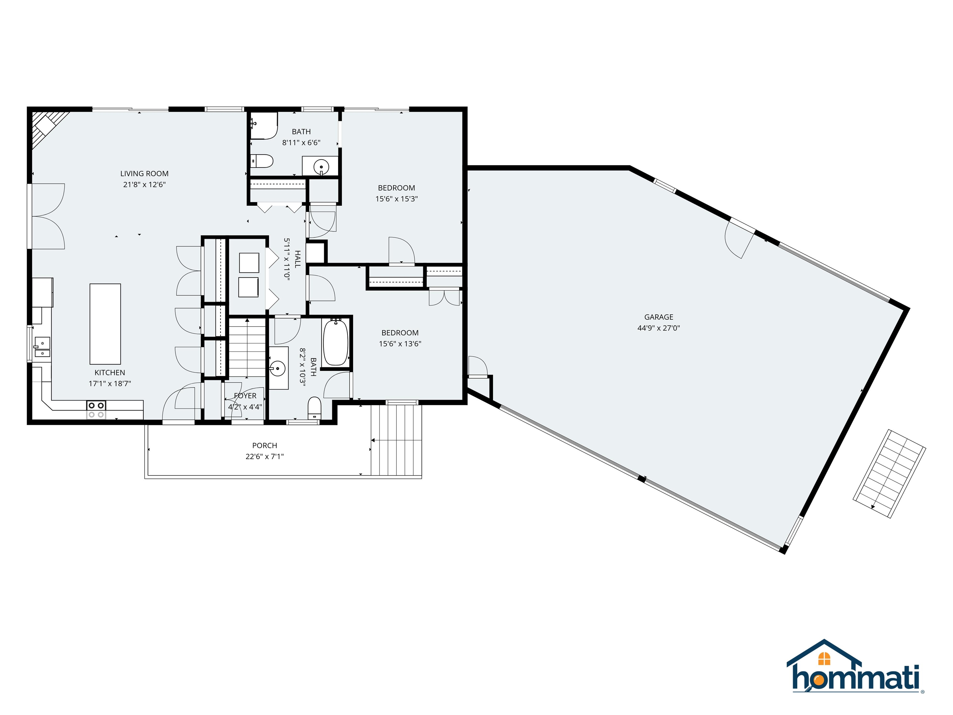
Lake Winnisquam with your own privated deeded beach&boating access. Here you will find a beautifully crafted home and thoughtfully designed to accommodate the needs of today's Modern Families! To begin with the home has two family areas , both with high-end kitchens, two bedrooms and two baths. The First-floor level also has nice covered porch with plenty of room to take in the lake view. Up the stairs and you have another family living area, kitchen, decking, two bedrooms and two more baths. This is ideal for single family living or your older children could have more space and privacy. Or use one of the spaces as an in-law space with its own separate entrance. There is an awesome studio/office space also on second floor or be easily be converted into more living space. There is a large garage under the home. Main level of home has a massive garage/workshop with 14' ceilings. This would also be great for any of your indoor storage needs. The home is located on 3. 49 acres with lake view! In addition, this property also has Deeded Beach rights to the lake. Enjoy kayaking and swimming from you access in a NO Wake Cove with the Chemung State Forest on the opposite shoreline. As and additional bonus there is also an adorable cottage by the babbling brook that has outside firepit patio area for grilling and chilling. Lots of opportunity here and is located in the desirable town of Meredith and close to I93 for commuters!

Features

  • Rooms: 10
  • Bedrooms: 4
  • Baths: 2 full / 4 three-quarter
  • Style: Contemporary
  • Year Built: 2016
  • Garage: 5-car Garage
  • Heating: Propane,Electric,Radiator
  • Cooling: Mini Split
  • Approx Sq. Feet: 2,958
  • Acreage: 3.49
  • Est. Taxes: $6,895
  • Lot Desc: Beach Access,Lake Access,Lake View,View,Near Shopping,Near Skiing,Near School(s)
  • Elem. School: Inter-Lakes Elementary
  • Middle School: Inter-Lakes Middle School
  • High School: Inter-Lakes High School
  • School District: Inter-Lakes Coop Sch Dst
  • MLS#: 5070514
  • Website: https://www.raveis.com
    /eprop/5070514/1sanctuarylane_meredith_nh?source=qrflyer
©2026 New England Real Estate Network, Inc. All rights reserved.This information is deemed reliable, but not guaranteed. The data relating to real estate displayed on this Site comes in part from the IDX Program of PrimMLS. The information being provided is for consumers' personal, non-commercial use and may not be used for any purpose other than to identify prospective properties consumers may be interested in purchasing. Data last updated 5/21/2026
Listing courtesy of Coldwell Banker Realty Center Harbor NH   Phone: 603-253-4345
Listing Agent: Danielle McIntosh

William Raveis Family of Services

Our family of companies partner in delivering quality services in a one-stop-shopping environment. Together, we integrate the most comprehensive real estate, mortgage and insurance services available to fulfill your specific real estate needs.

Customer Service

888.699.8876

Contact@raveis.com

Our family of companies offer our clients a new level of full-service real estate. We shall:

  • Market your home to realize a quick sale at the best possible price
  • Place up to 20+ photos of your home on our website, raveis.com
  • Provide frequent communication and tracking reports showing the Internet views your home received on raveis.com
  • Showcase your home on raveis.com with a larger and more prominent format
  • Give you the full resources and strength of William Raveis Real Estate, Mortgage & Insurance and our cutting-edge technology

To learn more about our credentials, visit raveis.com today.

Frank KolbSenior Vice President - Coaching & Strategic, William Raveis Mortgage, LLC

NMLS Mortgage Loan Originator ID 81725

203.980.8025

Frank.Kolb@raveis.com

Our Executive Mortgage Banker:

  • Is available to meet with you in our office, your home or office, evenings or weekends
  • Offers you pre-approval in minutes!
  • Provides a guaranteed closing date that meets your needs
  • Has access to hundreds of loan programs, all at competitive rates
  • Is in constant contact with a full processing, underwriting, and closing staff to ensure an efficient transaction

Joel FanjoyRegional SVP Insurance Sales, William Raveis Insurance

617.320.5687

Joel.Fanjoy@raveis.com

Our Insurance Division:

  • Will Provide a home insurance quote within 24 hours
  • Offers full-service coverage such as Homeowner's, Auto, Life, Renter's, Flood and Valuable Items
  • Partners with major insurance companies including Chubb, Kemper Unitrin, The Hartford, Progressive,
    Encompass, Travelers, Fireman's Fund, Middleoak Mutual, One Beacon and American Reliable

1 Sanctuary Lane, Meredith, NH, 03253

$1,825,000

Customer Service

William Raveis Real Estate

Phone: 888.699.8876

Contact@raveis.com

Frank Kolb

Senior Vice President - Coaching & Strategic

William Raveis Mortgage, LLC

Phone: 203.980.8025

Frank.Kolb@raveis.com

NMLS Mortgage Loan Originator ID 81725

5/6 (30 Yr)
Adjustable Rate Jumbo*
30 Year
Fixed-Rate Jumbo
15 Year
Fixed-Rate Jumbo
Loan Amount $1,460,000 $1,460,000 $1,460,000
Term 360 months 360 months 180 months
Initial Interest Rate** 5.500% 6.250% 6.000%
Interest Rate based on Index + Margin 8.125%
Annual Percentage Rate 6.165% 6.361% 6.183%
Monthly Tax Payment $575 $575 $575
H/O Insurance Payment $125 $125 $125
Initial Principal & Interest Pmt $8,290 $8,989 $12,320
Total Monthly Payment $8,990 $9,689 $13,020

* The Initial Interest Rate and Initial Principal & Interest Payment are fixed for the first and adjust every six months thereafter for the remainder of the loan term. The Interest Rate and annual percentage rate may increase after consummation. The Index for this product is the SOFR. The margin for this adjustable rate mortgage may vary with your unique credit history, and terms of your loan.

** Mortgage Rates are subject to change, loan amount and product restrictions and may not be available for your specific transaction at commitment or closing. Rates, and the margin for adjustable rate mortgages [if applicable], are subject to change without prior notice.

The rates and Annual Percentage Rate (APR) cited above may be only samples for the purpose of calculating payments and are based upon the following assumptions: minimum credit score of 740, 20% down payment (e.g. $20,000 down on a $100,000 purchase price), $1,950 in finance charges, and 30 days prepaid interest, 1 point, 30 day rate lock. The rates and APR will vary depending upon your unique credit history and the terms of your loan, e.g. the actual down payment percentages, points and fees for your transaction. Property taxes and homeowner's insurance are estimates and subject to change.