49 Exeter Road, North Hampton, NH, 03862 | $599,000

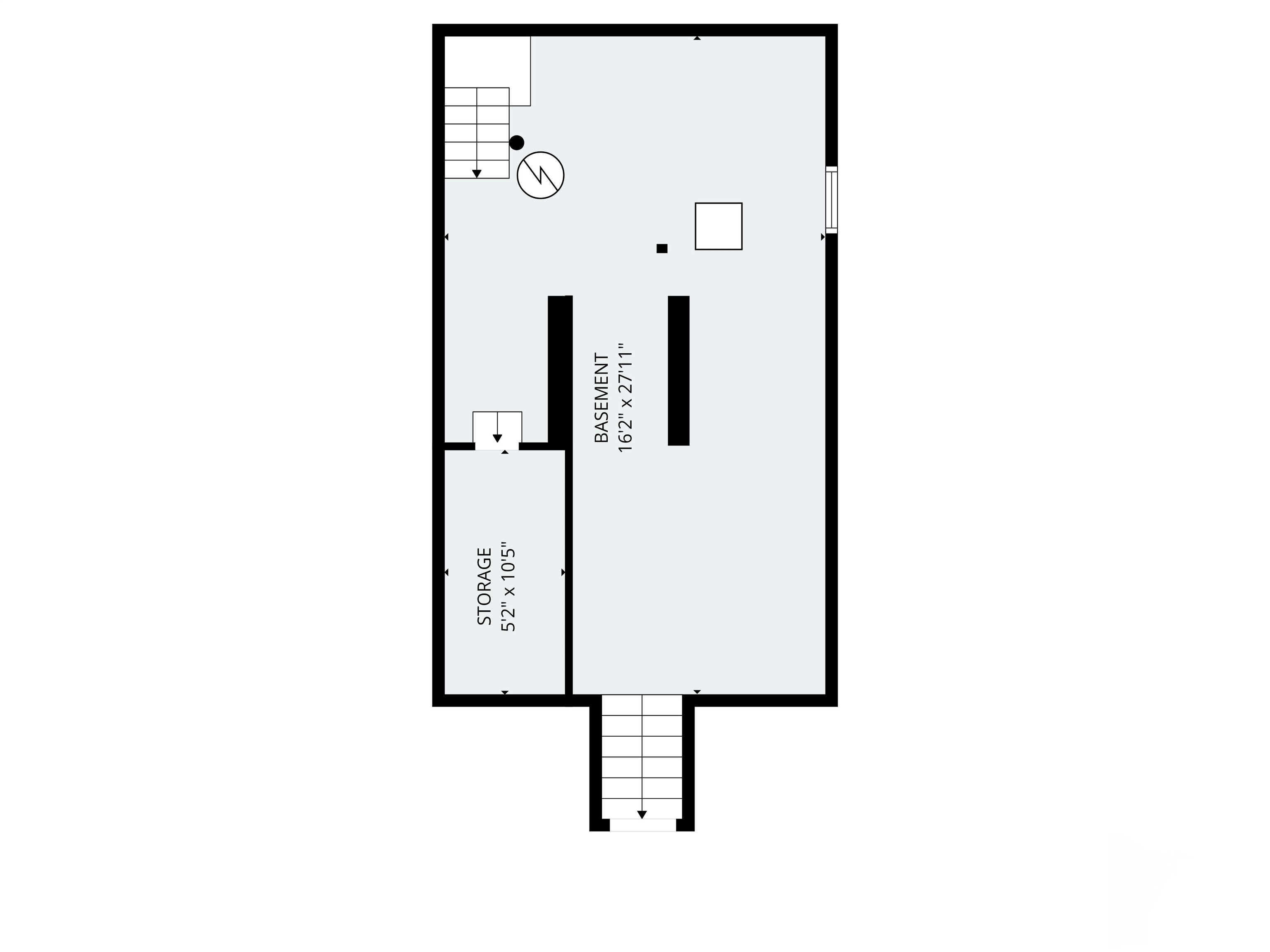
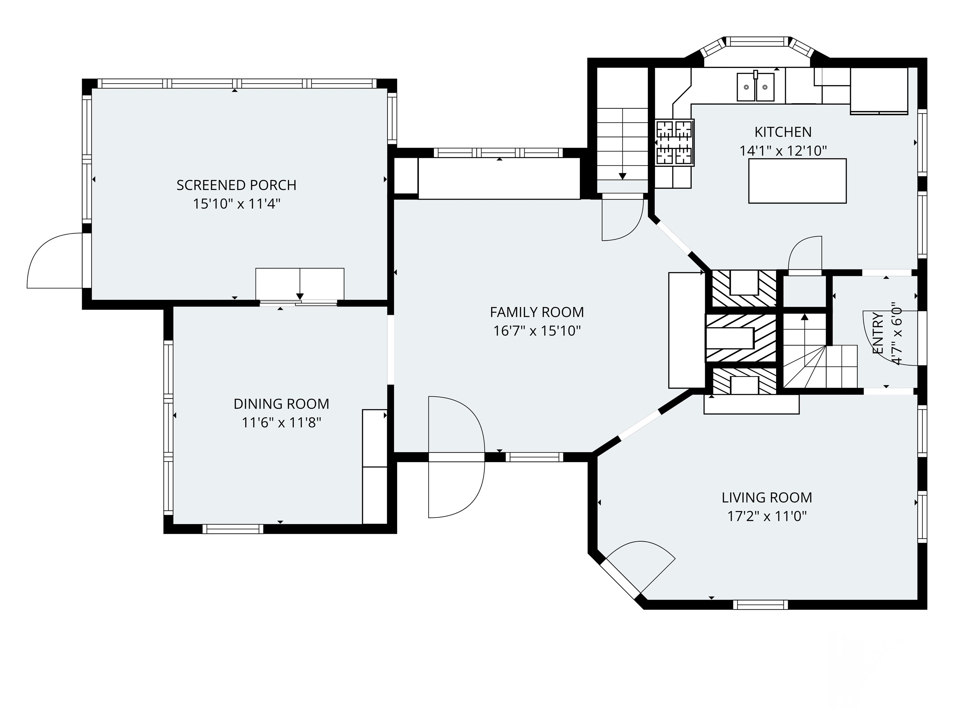
Welcome to one of North Hampton's most cherished historic properties. Lovingly maintained by he same owners for over 30 years, this timeless New England classic sits on a beautifully tended lot with fruit bushes and perennial gardens, offering space, soul, and a true sense of place. Two character-filled barns anchor the property, each thoughtfully improved over time. Ideal for storage, creative pursuits, or workshop space. A detached single car garage adds everyday convenience. Inside the home blends period charm with meaningful updates. The inviting kitchen, cozy living room, library, and enclosed sun-porch create warm, functional living space perfect for bother quiet moments and entertaining. Original details including three brick fireplaces, add authenticity and character throughout. Upstairs offers 2 bedrooms, full bath, and laundry. The staircase to the second level reflects the home's historic nature, with a steeper pitch typical of properties of this era. Major updates have been completed, including windows, water heater, septic system, driveway, and water filtration for the kitchen. Ideally located just minutes from I95 and the Seacoast beaches, this property offers a rare balance of charm and convenience. Whether you're dreaming of gardens, hobby space, or simply a place with heart and history, this home is ready for its next chapter! Pre-inspected.

Features

  • Rooms: 7
  • Bedrooms: 2
  • Baths: 1 full
  • Style: Cape
  • Year Built: 1850
  • Garage: 2-car Garage
  • Heating: Forced Air
  • Cooling: None
  • Basement: Bulkhead,Concrete Floor,Dirt Floor,Interior Access
  • Approx Sq. Feet: 1,410
  • Acreage: 0.8
  • Est. Taxes: $6,324
  • Lot Desc: Country Setting,Rolling
  • School District: North Hampton
  • MLS#: 5070135
  • Website: https://www.raveis.com
    /prop/5070135/49exeterroad_northhampton_nh?source=qrflyer
©2026 New England Real Estate Network, Inc. All rights reserved.This information is deemed reliable, but not guaranteed. The data relating to real estate displayed on this Site comes in part from the IDX Program of PrimMLS. The information being provided is for consumers' personal, non-commercial use and may not be used for any purpose other than to identify prospective properties consumers may be interested in purchasing. Data last updated 3/20/2026
Listing courtesy of Keller Williams Coastal and Lakes & Mountains Realty   Phone: 603-610-8500
Listing Agent: Alicia Goodwin

William Raveis Family of Services

Our family of companies partner in delivering quality services in a one-stop-shopping environment. Together, we integrate the most comprehensive real estate, mortgage and insurance services available to fulfill your specific real estate needs.

Customer Service

888.699.8876

Contact@raveis.com

Our family of companies offer our clients a new level of full-service real estate. We shall:

  • Market your home to realize a quick sale at the best possible price
  • Place up to 20+ photos of your home on our website, raveis.com
  • Provide frequent communication and tracking reports showing the Internet views your home received on raveis.com
  • Showcase your home on raveis.com with a larger and more prominent format
  • Give you the full resources and strength of William Raveis Real Estate, Mortgage & Insurance and our cutting-edge technology

To learn more about our credentials, visit raveis.com today.

Frank KolbSenior Vice President - Coaching & Strategic, William Raveis Mortgage, LLC

NMLS Mortgage Loan Originator ID 81725

203.980.8025

Frank.Kolb@raveis.com

Our Executive Mortgage Banker:

  • Is available to meet with you in our office, your home or office, evenings or weekends
  • Offers you pre-approval in minutes!
  • Provides a guaranteed closing date that meets your needs
  • Has access to hundreds of loan programs, all at competitive rates
  • Is in constant contact with a full processing, underwriting, and closing staff to ensure an efficient transaction

Joel FanjoyRegional SVP Insurance Sales, William Raveis Insurance

617.320.5687

Joel.Fanjoy@raveis.com

Our Insurance Division:

  • Will Provide a home insurance quote within 24 hours
  • Offers full-service coverage such as Homeowner's, Auto, Life, Renter's, Flood and Valuable Items
  • Partners with major insurance companies including Chubb, Kemper Unitrin, The Hartford, Progressive,
    Encompass, Travelers, Fireman's Fund, Middleoak Mutual, One Beacon and American Reliable

49 Exeter Road, North Hampton, NH, 03862

$599,000

Customer Service

William Raveis Real Estate

Phone: 888.699.8876

Contact@raveis.com

Frank Kolb

Senior Vice President - Coaching & Strategic

William Raveis Mortgage, LLC

Phone: 203.980.8025

Frank.Kolb@raveis.com

NMLS Mortgage Loan Originator ID 81725

5/6 (30 Yr)
Adjustable Rate Conforming*
30 Year
Fixed-Rate Conforming
15 Year
Fixed-Rate Conforming
Loan Amount $479,200 $479,200 $479,200
Term 360 months 360 months 180 months
Initial Interest Rate** 6.000% 6.375% 5.500%
Interest Rate based on Index + Margin 8.125%
Annual Percentage Rate 6.395% 6.508% 5.794%
Monthly Tax Payment $527 $527 $527
H/O Insurance Payment $92 $92 $92
Initial Principal & Interest Pmt $2,873 $2,990 $3,915
Total Monthly Payment $3,492 $3,609 $4,534

* The Initial Interest Rate and Initial Principal & Interest Payment are fixed for the first and adjust every six months thereafter for the remainder of the loan term. The Interest Rate and annual percentage rate may increase after consummation. The Index for this product is the SOFR. The margin for this adjustable rate mortgage may vary with your unique credit history, and terms of your loan.

** Mortgage Rates are subject to change, loan amount and product restrictions and may not be available for your specific transaction at commitment or closing. Rates, and the margin for adjustable rate mortgages [if applicable], are subject to change without prior notice.

The rates and Annual Percentage Rate (APR) cited above may be only samples for the purpose of calculating payments and are based upon the following assumptions: minimum credit score of 740, 20% down payment (e.g. $20,000 down on a $100,000 purchase price), $1,950 in finance charges, and 30 days prepaid interest, 1 point, 30 day rate lock. The rates and APR will vary depending upon your unique credit history and the terms of your loan, e.g. the actual down payment percentages, points and fees for your transaction. Property taxes and homeowner's insurance are estimates and subject to change.