850 Seagate DR, Naples, FL, 34103 | $2,550,000

Exceptional Commercial Opportunity in the Heart of Naples — 850 Seagate Drive
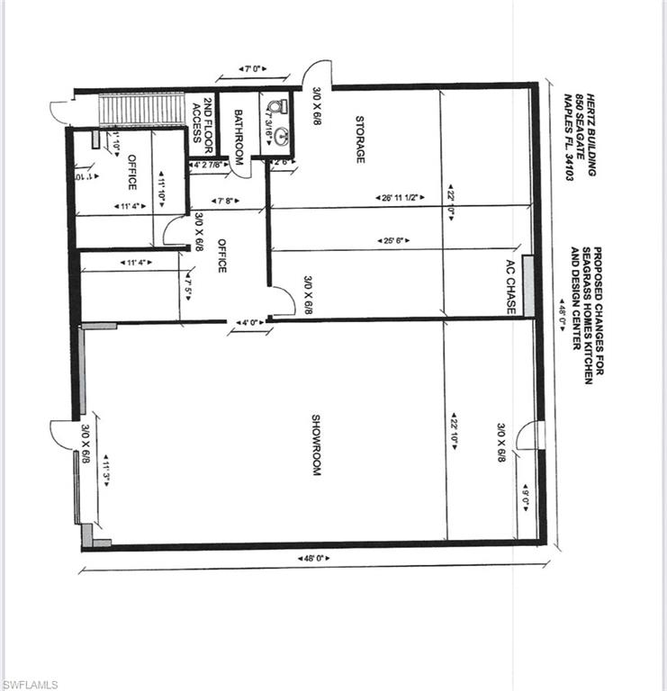
Position your business for success with this premier . 46 acre mixed-use commercial property located on highly coveted Seagate Drive. Perfectly suited for a wide range of retail, showroom, and professional office uses, this flexible space offers an outstanding platform for both established businesses and growing brands. In addition, this property on its rear southern property line abuts 843 Myrtle Terrace, also commercially listed for sale, that would create a combined size of . 7 acres, as reflected in the images.
Ideally situated in one of Naples’ most in-demand commercial corridors, the property benefits from excellent frontage, strong visibility, and convenient accessibility from surrounding residential and resort communities. Consistent foot and vehicle traffic make this an ideal location for businesses seeking maximum exposure.
A generous on-site parking lot—an increasingly rare asset in this district—provides exceptional convenience for customers, clients, and employees. The layout supports multiple configurations, giving tenants the ability to tailor the space to their operational needs.
This is a standout opportunity to secure a high-value commercial address in one of Naples’ most desirable and fastest-growing areas. Perfect for retailers, professional services, wellness concepts, or boutique office users seeking an exceptional location.

Features

  • Levels: 2
  • Year Built: 1964
  • Approx Sq. Feet: 20,539
  • Acreage: 0.46
  • Est. Taxes: $9,581
  • MLS#: 225079602
  • Website: https://www.raveis.com
    /raveis/225079602/850seagatedr_naples_fl?source=qrflyer
Courtesy of

William Raveis Family of Services

Our family of companies partner in delivering quality services in a one-stop-shopping environment. Together, we integrate the most comprehensive real estate, mortgage and insurance services available to fulfill your specific real estate needs.

Karl FaerberLuxury Properties Specialist

239.248.1961

Karl.Faerber@raveis.com

Our family of companies offer our clients a new level of full-service real estate. We shall:

  • Market your home to realize a quick sale at the best possible price
  • Place up to 20+ photos of your home on our website, raveis.com
  • Provide frequent communication and tracking reports showing the Internet views your home received on raveis.com
  • Showcase your home on raveis.com with a larger and more prominent format
  • Give you the full resources and strength of William Raveis Real Estate, Mortgage & Insurance and our cutting-edge technology

To learn more about our credentials, visit raveis.com today.

Melissa CohnRVP, Mortgage Banker, William Raveis Mortgage, LLC

NMLS Mortgage Loan Originator ID 16953

917.838.7300

Melissa.Cohn@raveis.com

Our Executive Mortgage Banker:

  • Is available to meet with you in our office, your home or office, evenings or weekends
  • Offers you pre-approval in minutes!
  • Provides a guaranteed closing date that meets your needs
  • Has access to hundreds of loan programs, all at competitive rates
  • Is in constant contact with a full processing, underwriting, and closing staff to ensure an efficient transaction

Pedro DelgadilloInsurance Sales Director, William Raveis Insurance

305.922.5393

Pedro.Delgadillo@raveis.com

Our Insurance Division:

  • Will Provide a home insurance quote within 24 hours
  • Offers full-service coverage such as Homeowner's, Auto, Life, Renter's, Flood and Valuable Items
  • Partners with major insurance companies including Chubb, Kemper Unitrin, The Hartford, Progressive,
    Encompass, Travelers, Fireman's Fund, Middleoak Mutual, One Beacon and American Reliable

850 Seagate DR, Naples, FL, 34103

$2,550,000

Karl Faerber

Luxury Properties Specialist

William Raveis Real Estate

Phone: 239.248.1961

Karl.Faerber@raveis.com

Melissa Cohn

RVP, Mortgage Banker

William Raveis Mortgage, LLC

Phone: 917.838.7300

Melissa.Cohn@raveis.com

NMLS Mortgage Loan Originator ID 16953

5/6 (30 Yr)
Adjustable Rate Jumbo*
30 Year
Fixed-Rate Jumbo
15 Year
Fixed-Rate Jumbo
Loan Amount $2,040,000 $2,040,000 $2,040,000
Term 360 months 360 months 180 months
Initial Interest Rate** 5.875% 6.250% 6.000%
Interest Rate based on Index + Margin 8.125%
Annual Percentage Rate 6.312% 6.385% 6.223%
Monthly Tax Payment $798 $798 $798
H/O Insurance Payment $125 $125 $125
Initial Principal & Interest Pmt $12,067 $12,561 $17,215
Total Monthly Payment $12,990 $13,484 $18,138

* The Initial Interest Rate and Initial Principal & Interest Payment are fixed for the first and adjust every six months thereafter for the remainder of the loan term. The Interest Rate and annual percentage rate may increase after consummation. The Index for this product is the SOFR. The margin for this adjustable rate mortgage may vary with your unique credit history, and terms of your loan.

** Mortgage Rates are subject to change, loan amount and product restrictions and may not be available for your specific transaction at commitment or closing. Rates, and the margin for adjustable rate mortgages [if applicable], are subject to change without prior notice.

The rates and Annual Percentage Rate (APR) cited above may be only samples for the purpose of calculating payments and are based upon the following assumptions: minimum credit score of 740, 20% down payment (e.g. $20,000 down on a $100,000 purchase price), $1,950 in finance charges, and 30 days prepaid interest, 1 point, 30 day rate lock. The rates and APR will vary depending upon your unique credit history and the terms of your loan, e.g. the actual down payment percentages, points and fees for your transaction. Property taxes and homeowner's insurance are estimates and subject to change.