160-34 83rd Street, Howard Beach, NY, 11414 | $875,000

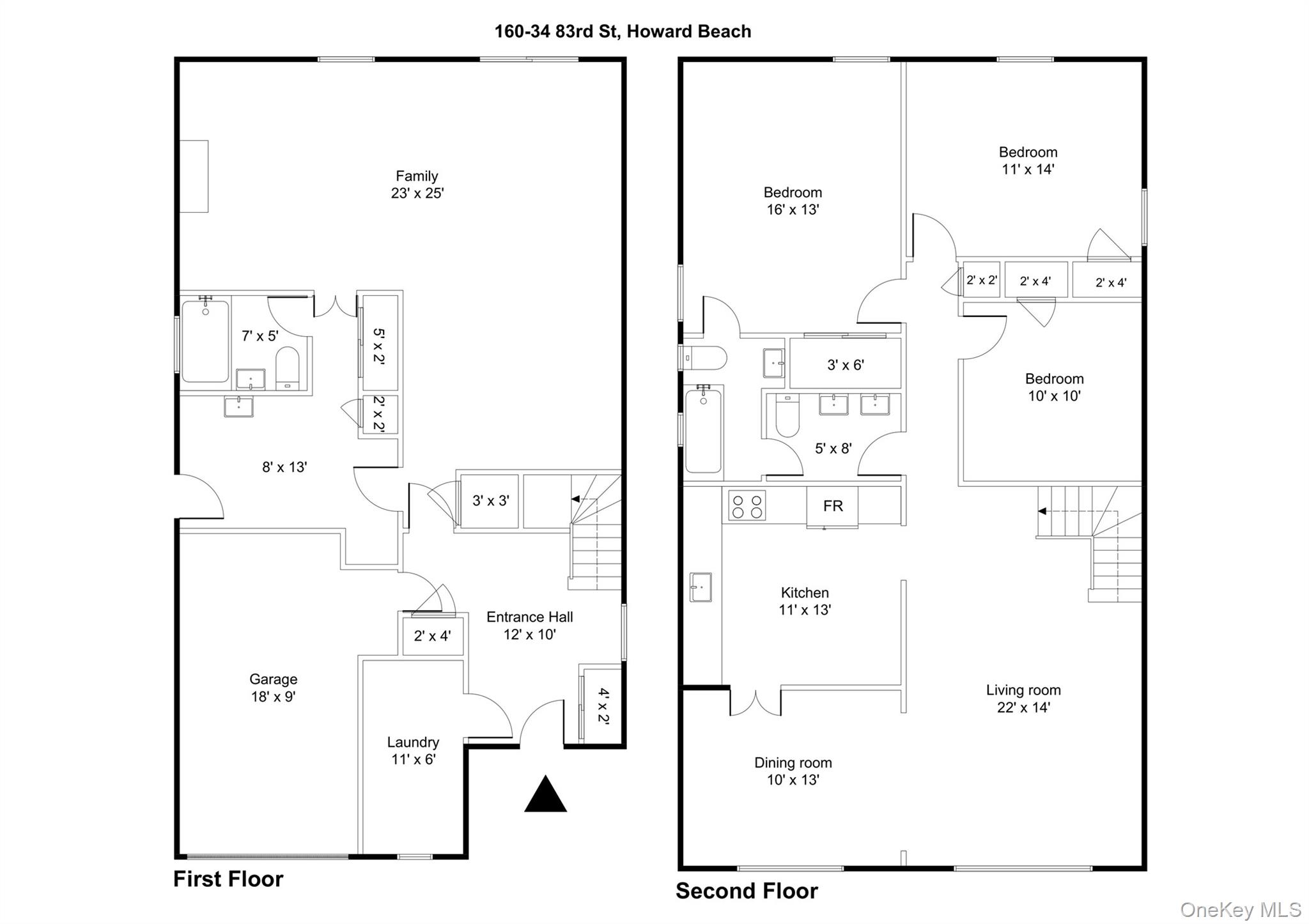
Welcome to this spacious Hi-Ranch located in the New Howard Beach section on a 40x100 lot, offering just under 2, 500 square feet of living space. Being sold "as-is". This home presents an excellent opportunity for someone looking to update and personalize. The main level features a formal living room, dining room, and a large eat-in kitchen with great potential to be opened for a more open and airy layout, along with three bedrooms including a generously sized primary bedroom (approx. 16' x 13'). The main bathroom is currently set up in a shared configuration connecting both the hallway and the primary bedroom, featuring two separate toilet areas that share one tub/shower, providing the option to reconfigure into a private en-suite and a separate hall bath if desired. The lower level offers flexible living space with a large L-shaped family room, full bath, and a work/prep area, with access from the front entry as well as a side entrance and rear sliding doors to the backyard. The fireplace on this level is decorative only, as the chimney was previously removed. Additional features include a one-car attached garage, large backyard, forced air heat and central air conditioning, new heater (2021), new roof (March 2025), gutters replaced in 2023, and a new sliding door to the yard (2024). This home offers space and potential to create a layout and style that suits your needs.

Features

  • Rooms: 8
  • Bedrooms: 3
  • Baths: 2 full / 1 half
  • Laundry: Laundry Room
  • Style: Hi Ranch
  • Year Built: 1970
  • Garage: 1-car
  • Heating: Hot Water
  • Cooling: Central Air
  • Approx Sq. Feet: 2,480
  • Est. Taxes: $9,492
  • Lot Desc: Back Yard, Front Yard, Near Public Transit, Near School, Near Shops
  • Elem. School: Ps 207 Rockwood Park
  • Middle School: Jhs 202 Robert H Goddard
  • High School: John Adams High School
  • School District: Community District 27
  • Appliances: Range, Refrigerator
  • MLS#: 934249
  • Days on Market: 64 days
  • Website: https://www.raveis.com
    /prop/934249/1603483rdstreet_howardbeach_ny?source=qrflyer
Listing information has been assembled from various sources of varying degrees of reliability. Any information critical to the buying decision should be independently verified.Listing courtesy of Century 21 Amiable Rlty Grp II   Phone: 718-835-4700

William Raveis Family of Services

Our family of companies partner in delivering quality services in a one-stop-shopping environment. Together, we integrate the most comprehensive real estate, mortgage and insurance services available to fulfill your specific real estate needs.

Customer Service

888.699.8876

Contact@raveis.com

Our family of companies offer our clients a new level of full-service real estate. We shall:

  • Market your home to realize a quick sale at the best possible price
  • Place up to 20+ photos of your home on our website, raveis.com
  • Provide frequent communication and tracking reports showing the Internet views your home received on raveis.com
  • Showcase your home on raveis.com with a larger and more prominent format
  • Give you the full resources and strength of William Raveis Real Estate, Mortgage & Insurance and our cutting-edge technology

To learn more about our credentials, visit raveis.com today.

Frank KolbSenior Vice President - Coaching & Strategic, William Raveis Mortgage, LLC

NMLS Mortgage Loan Originator ID 81725

203.980.8025

Frank.Kolb@raveis.com

Our Executive Mortgage Banker:

  • Is available to meet with you in our office, your home or office, evenings or weekends
  • Offers you pre-approval in minutes!
  • Provides a guaranteed closing date that meets your needs
  • Has access to hundreds of loan programs, all at competitive rates
  • Is in constant contact with a full processing, underwriting, and closing staff to ensure an efficient transaction

Ryan FortierInsurance Sales Director, William Raveis Insurance

516.739.7731

Ryan.Fortier@raveis.com

Our Insurance Division:

  • Will Provide a home insurance quote within 24 hours
  • Offers full-service coverage such as Homeowner's, Auto, Life, Renter's, Flood and Valuable Items
  • Partners with major insurance companies including Chubb, Kemper Unitrin, The Hartford, Progressive,
    Encompass, Travelers, Fireman's Fund, Middleoak Mutual, One Beacon and American Reliable

160-34 83rd Street, Howard Beach, NY, 11414

$875,000

Customer Service

William Raveis Real Estate

Phone: 888.699.8876

Contact@raveis.com

Frank Kolb

Senior Vice President - Coaching & Strategic

William Raveis Mortgage, LLC

Phone: 203.980.8025

Frank.Kolb@raveis.com

NMLS Mortgage Loan Originator ID 81725

5/6 (30 Yr)
Adjustable Rate Jumbo*
30 Year
Fixed-Rate Jumbo
15 Year
Fixed-Rate Jumbo
Loan Amount $700,000 $700,000 $700,000
Term 360 months 360 months 180 months
Initial Interest Rate** 4.750% 5.625% 5.375%
Interest Rate based on Index + Margin 8.125%
Annual Percentage Rate 5.878% 5.732% 5.555%
Monthly Tax Payment $791 $791 $791
H/O Insurance Payment $92 $92 $92
Initial Principal & Interest Pmt $3,652 $4,030 $5,673
Total Monthly Payment $4,535 $4,913 $6,556

* The Initial Interest Rate and Initial Principal & Interest Payment are fixed for the first and adjust every six months thereafter for the remainder of the loan term. The Interest Rate and annual percentage rate may increase after consummation. The Index for this product is the SOFR. The margin for this adjustable rate mortgage may vary with your unique credit history, and terms of your loan.

** Mortgage Rates are subject to change, loan amount and product restrictions and may not be available for your specific transaction at commitment or closing. Rates, and the margin for adjustable rate mortgages [if applicable], are subject to change without prior notice.

The rates and Annual Percentage Rate (APR) cited above may be only samples for the purpose of calculating payments and are based upon the following assumptions: minimum credit score of 740, 20% down payment (e.g. $20,000 down on a $100,000 purchase price), $1,950 in finance charges, and 30 days prepaid interest, 1 point, 30 day rate lock. The rates and APR will vary depending upon your unique credit history and the terms of your loan, e.g. the actual down payment percentages, points and fees for your transaction. Property taxes and homeowner's insurance are estimates and subject to change.